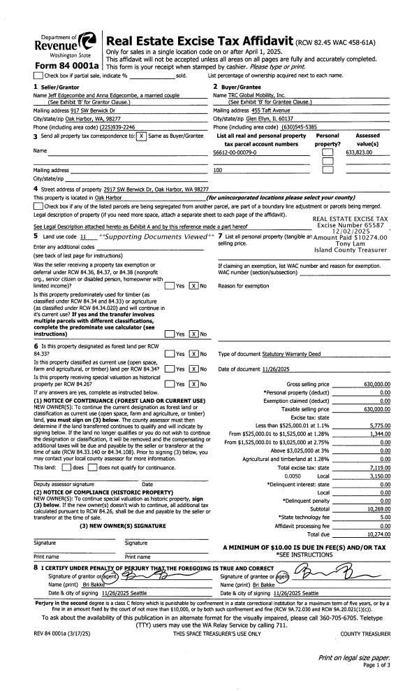
Property
Account |
| Property ID: | 219230 | Abbreviated Legal Description: | CCC 22 LOT 9 BLK 45 |
| Geographic ID: | S6250-22-45009-0 | Agent Code: | |
| Type: | Real | | |
| Tax Area: | 510 - APPRAISER-Stan/Cam Schl Dist, improved & 1 acre or less | Land Use Code | 11 |
| Open Space: | N | DFL | N |
| Historic Property: | N | Remodel Property: | N |
| Multi-Family Redevelopment: | N | | |
| Township: | | Section: | |
| Range: | |
Location |
| Address: | 1443 CRESTVIEW DR CAMANO IS, WA 98282 | Mapsco: | |
| Neighborhood: | Cycle 5 | Map ID: | 930 |
| Neighborhood CD: | 5 |
Owner |
| Name: | BRUCE, STEVEN C | Owner ID: | 311955 |
| Mailing Address: | TERESA L BRUCE 1443 CREST VIEW DR CAMANO ISLAND, WA 98282 | % Ownership: | 100.0000000000% |
| | | Exemptions: | |
Taxes and Assessment Details
Values
| (+) Improvement Homesite Value: | + | $0 | |
| (+) Improvement Non-Homesite Value: | + | $697,296 | |
| (+) Land Homesite Value: | + | $0 | |
| (+) Land Non-Homesite Value: | + | $390,000 | |
| (+) Curr Use (HS): | + | $0 | $0 |
| (+) Curr Use (NHS): | + | $0 | $0 |
| | | -------------------------- | |
| (=) Market Value: | = | $1,087,296 | |
| (–) Productivity Loss: | – | $0 | |
| | | -------------------------- | |
| (=) Subtotal: | = | $1,087,296 | |
| (+) Senior Appraised Value: | + | $0 | |
| (+) Non-Senior Appraised Value: | + | $1,087,296 | |
| | | -------------------------- | |
| (=) Total Appraised Value: | = | $1,087,296 | |
| (–) Senior Exemption Loss: | – | $0 | |
| (–) Exemption Loss: | – | $0 | |
| | | -------------------------- | |
| (=) Taxable Value: | = | $1,087,296 | |
Taxing Jurisdiction
| Owner: | BRUCE, STEVEN C | | |
| % Ownership: | 100.0000000000% | | |
| Total Value: | $1,087,296 | | |
| Tax Area: | 510 - APPRAISER-Stan/Cam Schl Dist, improved & 1 acre or less |
| CF | Conservation Futures | 0.0316035091 | $1,087,296 | $1,087,296 | $34.36 | | |
| EMS1 | Fire & Rescue Dist #1 Camano GEN (EMS) | 0.3677864386 | $1,087,296 | $1,087,296 | $399.89 | | |
| FIRE1 | Fire & Rescue Dist #1 Camano GEN | 1.2502910536 | $1,087,296 | $1,087,296 | $1,359.44 | | |
| FIRE1BOND | Fire & Rescue Dist #1 Camano BOND | 0.1570001679 | $1,087,296 | $1,087,296 | $170.71 | | |
| CE | County Current Expense | 0.3708482477 | $1,087,296 | $1,087,296 | $403.22 | | |
| CR | County Roads | 0.4584763726 | $1,087,296 | $1,087,296 | $498.50 | | |
| LCIB | Library Sno-Isle BOND (Camano Island) | 0.0396325772 | $1,087,296 | $1,087,296 | $43.09 | | |
| LIB | Library Sno-Isle GEN | 0.3153421757 | $1,087,296 | $1,087,296 | $342.87 | | |
| SCH205_401 | School 205-401 Enrichment | 1.2698420524 | $1,087,296 | $1,087,296 | $1,380.69 | | |
| SCH205BOND | School 205-401 BOND | 0.9396497583 | $1,087,296 | $1,087,296 | $1,021.68 | | |
| ST | State School | 1.3035497053 | $1,087,296 | $1,087,296 | $1,417.34 | | |
| ST2 | State School Part 2 | 0.8169543533 | $1,087,296 | $1,087,296 | $888.27 | | |
| | Total Tax Rate: | 7.3209764117 | | | | | |
| | | | | Taxes w/Current Exemptions: | $7,960.06 | | |
| | | | | Taxes w/o Exemptions: | $7,960.06 | | |
Improvement / Building
| Improvement #1: | RESIDENTIAL | State Code: | Y | 2766.0 sqft | Value: | $697,296 |
| Bathrooms: | 2.5 | Bedrooms: | 4 | | Ceiling: | DRYWALL PAINTED | Cooling: | HEAT PUMP/CONV/V | | Exterior Wall/Cover: | CEMENT FIBER | Floor Covering: | CARPET/VINYL 60-40 | | Floor Structure: | WOOD W/SUBFLOOR | Foundation: | CONCRETE | | Interior Finish: | DRYWALL PAINT | Plumbing Fixture Cnt: | 13 | | Roof Slope: | 4" IN 12" | Roof Structure/Cover: | CJ ASPHALT |
|
| | Type | Description | Class CD | Sub Class CD | Year Built | Area |
| | BAS | BASE/MAIN FLOOR | 4 | 0 | 2022 | 2766.0 |
| | AGR | ATTACHED GARAGE | 4 | 0 | 2022 | 717.2 |
| | OWP | OPEN WOOD PORCH W/STEPS | 4 | 0 | 2022 | 659.0 |
| | OWC | OPEN WOOD PORCH W/STEPS/ROOF/C | 4 | 0 | 2022 | 380.0 |
| | UB8 | BASEMENT UNFINISHED 8" | 4 | 0 | 2022 | 1449.0 |
| | OWP | OPEN WOOD PORCH W/STEPS | 4 | 0 | 2022 | 128.0 |
| | OP1 | OPEN PORCH SLAB | 4 | 0 | 2022 | 975.0 |
| | OP4 | OPEN PORCH W/CEILING-ROOF | 4 | 0 | 2022 | 46.0 |
Sketch
Property Image
Land
| 1 | 15 | SQ (12001-21780) | 0.0000 | 0.00 | 0.00 | 0.00 | 1.00 | $390,000 | $0 |
Roll Value History
| 2026 | N/A | N/A | N/A | N/A | N/A |
| 2025 | $697,296 | $390,000 | $0 | $1,087,296 | $1,087,296 |
| 2024 | $671,671 | $360,000 | $0 | $1,031,671 | $1,031,671 |
| 2023 | $683,882 | $330,000 | $0 | $1,013,882 | $1,013,882 |
| 2022 | $260,180 | $170,000 | $0 | $430,180 | $430,180 |
| 2021 | $0 | $140,000 | $0 | $140,000 | $140,000 |
| 2020 | $0 | $130,000 | $0 | $130,000 | $130,000 |
| 2019 | $0 | $130,000 | $0 | $130,000 | $130,000 |
| 2018 | $0 | $130,000 | $0 | $130,000 | $130,000 |
| 2017 | $0 | $130,000 | $0 | $130,000 | $130,000 |
| 2016 | $0 | $100,000 | $0 | $100,000 | $100,000 |
| 2015 | $0 | $100,000 | $0 | $100,000 | $100,000 |
| 2014 | $0 | $100,000 | $0 | $100,000 | $100,000 |
| 2013 | $0 | $100,000 | $0 | $100,000 | $100,000 |
| 2012 | $0 | $100,000 | $0 | $100,000 | $100,000 |
| 2011 | $0 | $100,000 | $0 | $100,000 | $100,000 |
| 2010 | $0 | $100,000 | $0 | $100,000 | $100,000 |
| 2009 | $0 | $109,440 | $0 | $109,440 | $109,440 |
| 2008 | $0 | $190,000 | $0 | $190,000 | $190,000 |
| 2007 | $0 | $119,000 | $0 | $119,000 | $119,000 |
Deed and Sales History
| 1 | 04/08/2024 | WD | Warranty Deed | MACDOUGALL, JULIE R | BRUCE, STEVEN C | | | $1,595,000.00 | 59630 | 4571133 |
| 2 | 05/19/2023 | QCD | Quit Claim Deed | MACDOUGALL, ROBERT | MACDOUGALL, JULIE R | | | $0.00 | 56801 | 4560265 |
| 3 | 05/19/2023 | QCD | Quit Claim Deed | RAEBURN HOMES, LLC | MACDOUGALL, JULIE R | | | $0.00 | 56800 | 4560264 |
| 4 | 11/16/2021 | WD | Warranty Deed | DASCHEL, STEPHEN | RAEBURN HOMES, LLC | | | $400,000.00 | 50955 | 4534106 |
| 5 | 08/29/2016 | WD | Warranty Deed | BERG, RICHARD H | DASCHEL, STEPHEN | | | $150,000.00 | 25906 | 4406275 |
Payout Agreement
| No payout information available.. |