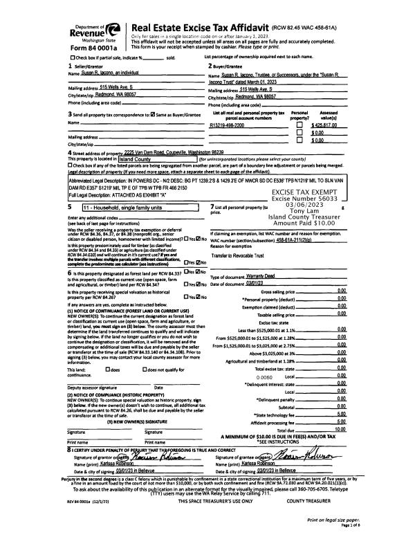
Property
Account |
| Property ID: | 219374 | Abbreviated Legal Description: | CCC 23 LOTS 13 & 14 |
| Geographic ID: | S6250-23-00013-0 | Agent Code: | |
| Type: | Real | | |
| Tax Area: | 510 - APPRAISER-Stan/Cam Schl Dist, improved & 1 acre or less | Land Use Code | 11 |
| Open Space: | N | DFL | N |
| Historic Property: | N | Remodel Property: | N |
| Multi-Family Redevelopment: | N | | |
| Township: | | Section: | |
| Range: | |
Location |
| Address: | 1906 PORTER ST CAMANO ISLAND, WA 98282 | Mapsco: | |
| Neighborhood: | Cycle 5 | Map ID: | 933 |
| Neighborhood CD: | 5 |
Owner |
| Name: | NICKLE, DEAN | Owner ID: | 309730 |
| Mailing Address: | JOANNE LUPENEC 1906 PORTER ST CAMANO ISLAND, WA 98282 | % Ownership: | 100.0000000000% |
| | | Exemptions: | |
Taxes and Assessment Details
Values
| (+) Improvement Homesite Value: | + | $0 | |
| (+) Improvement Non-Homesite Value: | + | $204,868 | |
| (+) Land Homesite Value: | + | $0 | |
| (+) Land Non-Homesite Value: | + | $250,000 | |
| (+) Curr Use (HS): | + | $0 | $0 |
| (+) Curr Use (NHS): | + | $0 | $0 |
| | | -------------------------- | |
| (=) Market Value: | = | $454,868 | |
| (–) Productivity Loss: | – | $0 | |
| | | -------------------------- | |
| (=) Subtotal: | = | $454,868 | |
| (+) Senior Appraised Value: | + | $0 | |
| (+) Non-Senior Appraised Value: | + | $454,868 | |
| | | -------------------------- | |
| (=) Total Appraised Value: | = | $454,868 | |
| (–) Senior Exemption Loss: | – | $0 | |
| (–) Exemption Loss: | – | $0 | |
| | | -------------------------- | |
| (=) Taxable Value: | = | $454,868 | |
Taxing Jurisdiction
| Owner: | NICKLE, DEAN | | |
| % Ownership: | 100.0000000000% | | |
| Total Value: | $454,868 | | |
| Tax Area: | 510 - APPRAISER-Stan/Cam Schl Dist, improved & 1 acre or less |
| CF | Conservation Futures | 0.0316035091 | $454,868 | $454,868 | $14.38 | | |
| EMS1 | Fire & Rescue Dist #1 Camano GEN (EMS) | 0.3677864386 | $454,868 | $454,868 | $167.29 | | |
| FIRE1 | Fire & Rescue Dist #1 Camano GEN | 1.2502910536 | $454,868 | $454,868 | $568.72 | | |
| FIRE1BOND | Fire & Rescue Dist #1 Camano BOND | 0.1570001679 | $454,868 | $454,868 | $71.41 | | |
| CE | County Current Expense | 0.3708482477 | $454,868 | $454,868 | $168.69 | | |
| CR | County Roads | 0.4584763726 | $454,868 | $454,868 | $208.55 | | |
| LCIB | Library Sno-Isle BOND (Camano Island) | 0.0396325772 | $454,868 | $454,868 | $18.03 | | |
| LIB | Library Sno-Isle GEN | 0.3153421757 | $454,868 | $454,868 | $143.44 | | |
| SCH205_401 | School 205-401 Enrichment | 1.2698420524 | $454,868 | $454,868 | $577.61 | | |
| SCH205BOND | School 205-401 BOND | 0.9396497583 | $454,868 | $454,868 | $427.42 | | |
| ST | State School | 1.3035497053 | $454,868 | $454,868 | $592.94 | | |
| ST2 | State School Part 2 | 0.8169543533 | $454,868 | $454,868 | $371.61 | | |
| | Total Tax Rate: | 7.3209764117 | | | | | |
| | | | | Taxes w/Current Exemptions: | $3,330.09 | | |
| | | | | Taxes w/o Exemptions: | $3,330.09 | | |
Improvement / Building
| Improvement #1: | MANUFACTURED HOME | State Code: | Y | 1457.5 sqft | Value: | $204,868 |
| Bathrooms: | 1 | Bedrooms: | 2 | | Ceiling: | PLASTER PAINTED | Cooling: | EVAP NO DUCT | | Exterior Wall/Cover: | VINYL | Floor Covering: | CARPET 100% | | Floor Structure: | SLAB ON GRADE | Foundation: | SLAB | | Heating: | FHA ELECTRIC | Interior Finish: | PLASTER | | Plumbing Fixture Cnt: | 1 | Roof Slope: | FLAT | | Roof Structure/Cover: | CJ ALUMINIUM HEAVY |   |   |
|
| | Type | Description | Class CD | Sub Class CD | Year Built | Area |
| | BAS | BASE/MAIN FLOOR | 4 | 0 | 2023 | 1457.5 |
| | DGR | DETACHED GARAGE | 4 | 0 | 1975 | 676.0 |
| | DGR | DETACHED GARAGE | 4 | 0 | 1975 | 560.0 |
| | OWP | OPEN WOOD PORCH W/STEPS | 4 | 0 | 2023 | 304.0 |
Sketch
Property Image
Land
| 1 | 15 | SQ (12001-21780) | 0.0000 | 0.00 | 0.00 | 0.00 | 1.00 | $250,000 | $0 |
Roll Value History
| 2026 | N/A | N/A | N/A | N/A | N/A |
| 2025 | $204,868 | $250,000 | $0 | $454,868 | $454,868 |
| 2024 | $206,959 | $250,000 | $0 | $456,959 | $456,959 |
| 2023 | $179,965 | $210,000 | $0 | $389,965 | $389,965 |
| 2022 | $20,322 | $100,000 | $0 | $120,322 | $120,322 |
| 2021 | $54,151 | $140,000 | $0 | $194,151 | $194,151 |
| 2020 | $52,568 | $120,000 | $0 | $172,568 | $172,568 |
| 2019 | $45,554 | $170,000 | $0 | $215,554 | $215,554 |
| 2018 | $49,695 | $140,000 | $0 | $189,695 | $43,878 |
| 2017 | $51,765 | $90,000 | $0 | $141,765 | $43,878 |
| 2016 | $55,906 | $65,000 | $0 | $120,906 | $43,878 |
| 2015 | $59,695 | $50,000 | $0 | $109,695 | $43,878 |
| 2014 | $60,881 | $50,000 | $0 | $110,881 | $110,881 |
| 2013 | $61,475 | $61,752 | $0 | $123,227 | $123,227 |
| 2012 | $62,662 | $61,752 | $0 | $124,414 | $124,414 |
| 2011 | $63,848 | $77,190 | $0 | $141,038 | $141,038 |
| 2010 | $66,177 | $77,190 | $0 | $143,367 | $143,367 |
| 2009 | $67,606 | $100,000 | $0 | $167,606 | $167,606 |
| 2008 | $68,397 | $100,000 | $0 | $168,397 | $168,397 |
| 2007 | $69,249 | $118,000 | $0 | $187,249 | $187,249 |
Deed and Sales History
| 1 | 08/17/2023 | WD | Warranty Deed | GETTER, RHONDA S. | NICKLE, DEAN | | | $639,950.00 | 57680 | 4563714 |
| 2 | 11/16/2022 | WD | Warranty Deed | HAMILTON, CHRISTOPHER L. | GETTER, RHONDA S. | | | $195,000.00 | 55217 | 4554123 |
| 3 | 06/14/2013 | WD | Warranty Deed | NIVER, JUDITH E | HAMILTON, CHRISTOPHER L. | | | $120,000.00 | 11659 | 4341908 |
| 4 | 03/05/2012 | TOD | Transfer On Death Deed | NIVER, CHARLES A | NIVER, JUDITH E | | | | 82298 | |
| 5 | 12/18/2001 | 5 | DNU - Marriage License/Name Change | MCMICHAEL, CLIFFORD B | NIVER, CHARLES A | | | $0.00 | 69266 | 0 |
| 6 | 03/01/1992 | OTHER | Other - Misc. Documents | MCMICHAEL, CLIFFORD B | MCMICHAEL, CLIFFORD B | | | $21,086.00 | 21072 | 377826 |
| 7 | 03/01/1992 | WD | Warranty Deed | NICHOL, HOMER A | MCMICHAEL, CLIFFORD B | | | $73,414.00 | 21071 | 92005289 |
| 8 | 09/01/1986 | WD | Warranty Deed | DAVISSON, DONALD L | NICHOL, HOMER A | | | $67,000.00 | 62424 | 86010964 |
| 9 | 12/01/1980 | WD | Warranty Deed | SCHUVER, FRED P | DAVISSON, DONALD L | | | $53,000.00 | 4280 | 377826 |
| 10 | 08/01/1978 | OTHER | Other - Misc. Documents | Unknown | SCHUVER, FRED P | | | $38,000.00 | 83737 | 337477 |
Payout Agreement
| No payout information available.. |