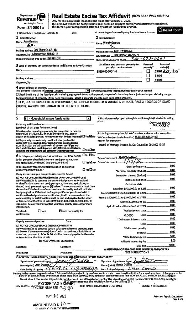
Property
Account |
| Property ID: | 219551 | Abbreviated Legal Description: | CAMANO HTS 1 LOT 1 |
| Geographic ID: | S6260-00-00001-0 | Agent Code: | |
| Type: | Real | | |
| Tax Area: | 510 - APPRAISER-Stan/Cam Schl Dist, improved & 1 acre or less | Land Use Code | 11 |
| Open Space: | N | DFL | N |
| Historic Property: | N | Remodel Property: | N |
| Multi-Family Redevelopment: | N | | |
| Township: | | Section: | |
| Range: | |
Location |
| Address: | 1001 FALCON RD CAMANO ISLAND, WA 98282 | Mapsco: | |
| Neighborhood: | Cycle 5 | Map ID: | 481 |
| Neighborhood CD: | 5 |
Owner |
| Name: | BOITANO, LARRY J | Owner ID: | 255943 |
| Mailing Address: | 1001 FALCON RD CAMANO ISLAND, WA 98282-7585 | % Ownership: | 100.0000000000% |
| | | Exemptions: | |
Taxes and Assessment Details
Values
| (+) Improvement Homesite Value: | + | $0 | |
| (+) Improvement Non-Homesite Value: | + | $211,754 | |
| (+) Land Homesite Value: | + | $0 | |
| (+) Land Non-Homesite Value: | + | $210,000 | |
| (+) Curr Use (HS): | + | $0 | $0 |
| (+) Curr Use (NHS): | + | $0 | $0 |
| | | -------------------------- | |
| (=) Market Value: | = | $421,754 | |
| (–) Productivity Loss: | – | $0 | |
| | | -------------------------- | |
| (=) Subtotal: | = | $421,754 | |
| (+) Senior Appraised Value: | + | $0 | |
| (+) Non-Senior Appraised Value: | + | $421,754 | |
| | | -------------------------- | |
| (=) Total Appraised Value: | = | $421,754 | |
| (–) Senior Exemption Loss: | – | $0 | |
| (–) Exemption Loss: | – | $0 | |
| | | -------------------------- | |
| (=) Taxable Value: | = | $421,754 | |
Taxing Jurisdiction
| Owner: | BOITANO, LARRY J | | |
| % Ownership: | 100.0000000000% | | |
| Total Value: | $421,754 | | |
| Tax Area: | 510 - APPRAISER-Stan/Cam Schl Dist, improved & 1 acre or less |
| CF | Conservation Futures | 0.0316035091 | $421,754 | $421,754 | $13.33 | | |
| EMS1 | Fire & Rescue Dist #1 Camano GEN (EMS) | 0.3677864386 | $421,754 | $421,754 | $155.12 | | |
| FIRE1 | Fire & Rescue Dist #1 Camano GEN | 1.2502910536 | $421,754 | $421,754 | $527.32 | | |
| FIRE1BOND | Fire & Rescue Dist #1 Camano BOND | 0.1570001679 | $421,754 | $421,754 | $66.22 | | |
| CE | County Current Expense | 0.3708482477 | $421,754 | $421,754 | $156.41 | | |
| CR | County Roads | 0.4584763726 | $421,754 | $421,754 | $193.36 | | |
| LCIB | Library Sno-Isle BOND (Camano Island) | 0.0396325772 | $421,754 | $421,754 | $16.72 | | |
| LIB | Library Sno-Isle GEN | 0.3153421757 | $421,754 | $421,754 | $133.00 | | |
| SCH205_401 | School 205-401 Enrichment | 1.2698420524 | $421,754 | $421,754 | $535.56 | | |
| SCH205BOND | School 205-401 BOND | 0.9396497583 | $421,754 | $421,754 | $396.30 | | |
| ST | State School | 1.3035497053 | $421,754 | $421,754 | $549.78 | | |
| ST2 | State School Part 2 | 0.8169543533 | $421,754 | $421,754 | $344.55 | | |
| | Total Tax Rate: | 7.3209764117 | | | | | |
| | | | | Taxes w/Current Exemptions: | $3,087.67 | | |
| | | | | Taxes w/o Exemptions: | $3,087.67 | | |
Improvement / Building
| Improvement #1: | RESIDENTIAL | State Code: | Y | 1112.0 sqft | Value: | $211,754 |
| Bathrooms: | 1 | Bedrooms: | 3 | | Ceiling: | DRYWALL PAINTED | Exterior Wall/Cover: | PLY/HARDBOARD T-111 | | Floor Covering: | CARPET/VINYL 80-20 | Floor Structure: | WOOD W/SUBFLOOR | | Foundation: | CONCRETE | Heating: | WALL HEAT ELECTRIC | | Interior Finish: | DRYWALL PAINT | Plumbing Fixture Cnt: | 6 | | Roof Slope: | 5" IN 12" | Roof Structure/Cover: | CJ ASPHALT |
|
| | Type | Description | Class CD | Sub Class CD | Year Built | Area |
| | BAS | BASE/MAIN FLOOR | 4 | 0 | 1991 | 1112.0 |
| | AGR | ATTACHED GARAGE | 4 | 0 | 1991 | 440.0 |
| | OWP | OPEN WOOD PORCH W/STEPS | 4 | 0 | 1991 | 152.3 |
Sketch
Property Image
Land
| 1 | 14 | SQ (08001-12000) | 0.2148 | 9356.69 | 0.00 | 0.00 | 1.00 | $210,000 | $0 |
Roll Value History
| 2026 | N/A | N/A | N/A | N/A | N/A |
| 2025 | $211,754 | $210,000 | $0 | $421,754 | $421,754 |
| 2024 | $214,606 | $210,000 | $0 | $424,606 | $424,606 |
| 2023 | $217,459 | $210,000 | $0 | $427,459 | $427,459 |
| 2022 | $199,486 | $210,000 | $0 | $409,486 | $409,486 |
| 2021 | $139,530 | $140,000 | $0 | $279,530 | $279,530 |
| 2020 | $136,141 | $120,000 | $0 | $256,141 | $256,141 |
| 2019 | $97,143 | $140,000 | $0 | $237,143 | $237,143 |
| 2018 | $97,453 | $100,000 | $0 | $197,453 | $197,453 |
| 2017 | $98,073 | $100,000 | $0 | $198,073 | $198,073 |
| 2016 | $99,315 | $90,000 | $0 | $189,315 | $189,315 |
| 2015 | $99,956 | $65,000 | $0 | $164,956 | $164,956 |
| 2014 | $101,256 | $65,000 | $0 | $166,256 | $166,256 |
| 2013 | $102,554 | $65,000 | $0 | $167,554 | $167,554 |
| 2012 | $103,854 | $66,400 | $0 | $170,254 | $170,254 |
| 2011 | $105,154 | $83,000 | $0 | $188,154 | $188,154 |
| 2010 | $109,044 | $83,000 | $0 | $192,044 | $192,044 |
| 2009 | $117,204 | $100,000 | $0 | $217,204 | $217,204 |
| 2008 | $118,683 | $113,000 | $0 | $231,683 | $231,683 |
| 2007 | $120,188 | $88,000 | $0 | $208,188 | $208,188 |
Deed and Sales History
| 1 | 09/23/2011 | WD | Warranty Deed | BANK OF AMERICA NATIONAL ASSOCIATION | BOITANO, LARRY J | | | $108,000.00 | 5828 | 4302842 |
| 2 | 11/01/2010 | TRUSTEED | Trustee's Deed | JOHNSON, RYAN K | BANK OF AMERICA NATIONAL ASSOCIATION | | | $170,000.00 | 2761 | 4284088 |
| 3 | 03/04/2003 | WD | Warranty Deed | LAYTON, JEFFREY J | JOHNSON, RYAN K | | | $149,900.00 | 31231 | 4052522 |
| 4 | 07/01/1991 | WD | Warranty Deed | JOHNSON, DAVID B | LAYTON, JEFFREY J | | | $87,950.00 | 12670 | 91011392 |
| 5 | 06/01/1990 | WD | Warranty Deed | PETERSON, HARRY E | JOHNSON, DAVID B | | | $18,000.00 | 3966 | 90012926 |
| 6 | 01/01/1900 | OTHER | Other - Misc. Documents | Unknown | PETERSON, HARRY E | | | $0.00 | 0 | 0 |
Payout Agreement
| No payout information available.. |