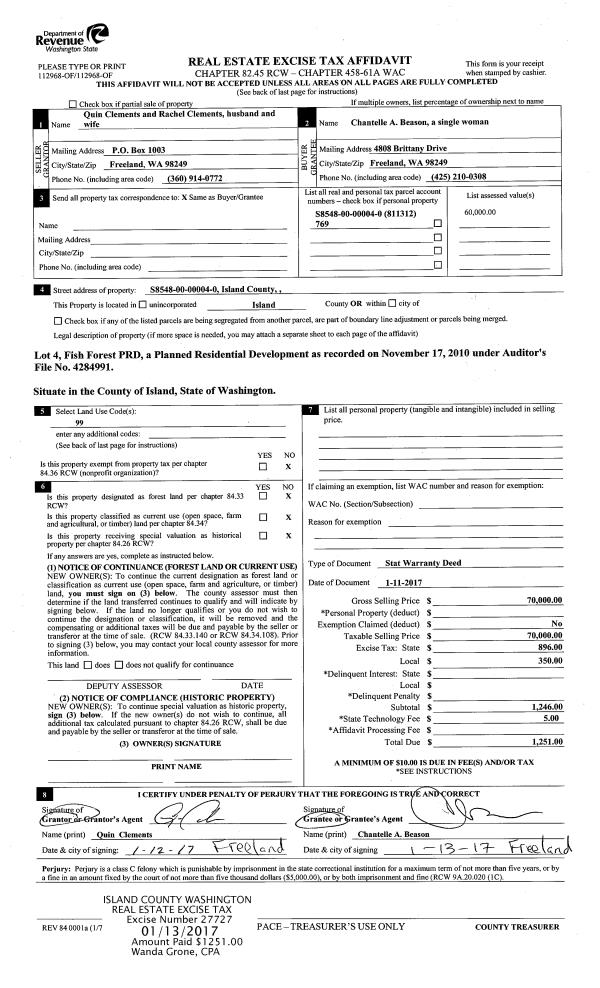
Property
Account |
| Property ID: | 219659 | Abbreviated Legal Description: | CAMANO HTS 1 SUBLOT 1: W70' OF LOT 11 |
| Geographic ID: | S6260-00-00011-1 | Agent Code: | |
| Type: | Real | | |
| Tax Area: | 510 - APPRAISER-Stan/Cam Schl Dist, improved & 1 acre or less | Land Use Code | 11 |
| Open Space: | N | DFL | N |
| Historic Property: | N | Remodel Property: | N |
| Multi-Family Redevelopment: | N | | |
| Township: | | Section: | |
| Range: | |
Location |
| Address: | 619 FIR LN CAMANO ISLAND, WA 98282 | Mapsco: | |
| Neighborhood: | Cycle 5 | Map ID: | 481 |
| Neighborhood CD: | 5 |
Owner |
| Name: | ADAMS, DIANA | Owner ID: | 286261 |
| Mailing Address: | 619 FIR LANE CAMANO ISLAND, WA 98282 | % Ownership: | 100.0000000000% |
| | | Exemptions: | |
Taxes and Assessment Details
Values
| (+) Improvement Homesite Value: | + | $0 | |
| (+) Improvement Non-Homesite Value: | + | $29,806 | |
| (+) Land Homesite Value: | + | $0 | |
| (+) Land Non-Homesite Value: | + | $210,000 | |
| (+) Curr Use (HS): | + | $0 | $0 |
| (+) Curr Use (NHS): | + | $0 | $0 |
| | | -------------------------- | |
| (=) Market Value: | = | $239,806 | |
| (–) Productivity Loss: | – | $0 | |
| | | -------------------------- | |
| (=) Subtotal: | = | $239,806 | |
| (+) Senior Appraised Value: | + | $0 | |
| (+) Non-Senior Appraised Value: | + | $239,806 | |
| | | -------------------------- | |
| (=) Total Appraised Value: | = | $239,806 | |
| (–) Senior Exemption Loss: | – | $0 | |
| (–) Exemption Loss: | – | $0 | |
| | | -------------------------- | |
| (=) Taxable Value: | = | $239,806 | |
Taxing Jurisdiction
| Owner: | ADAMS, DIANA | | |
| % Ownership: | 100.0000000000% | | |
| Total Value: | $239,806 | | |
| Tax Area: | 510 - APPRAISER-Stan/Cam Schl Dist, improved & 1 acre or less |
| CF | Conservation Futures | 0.0316035091 | $239,806 | $239,806 | $7.58 | | |
| EMS1 | Fire & Rescue Dist #1 Camano GEN (EMS) | 0.3677864386 | $239,806 | $239,806 | $88.20 | | |
| FIRE1 | Fire & Rescue Dist #1 Camano GEN | 1.2502910536 | $239,806 | $239,806 | $299.83 | | |
| FIRE1BOND | Fire & Rescue Dist #1 Camano BOND | 0.1570001679 | $239,806 | $239,806 | $37.65 | | |
| CE | County Current Expense | 0.3708482477 | $239,806 | $239,806 | $88.93 | | |
| CR | County Roads | 0.4584763726 | $239,806 | $239,806 | $109.95 | | |
| LCIB | Library Sno-Isle BOND (Camano Island) | 0.0396325772 | $239,806 | $239,806 | $9.50 | | |
| LIB | Library Sno-Isle GEN | 0.3153421757 | $239,806 | $239,806 | $75.62 | | |
| SCH205_401 | School 205-401 Enrichment | 1.2698420524 | $239,806 | $239,806 | $304.52 | | |
| SCH205BOND | School 205-401 BOND | 0.9396497583 | $239,806 | $239,806 | $225.33 | | |
| ST | State School | 1.3035497053 | $239,806 | $239,806 | $312.60 | | |
| ST2 | State School Part 2 | 0.8169543533 | $239,806 | $239,806 | $195.91 | | |
| | Total Tax Rate: | 7.3209764117 | | | | | |
| | | | | Taxes w/Current Exemptions: | $1,755.62 | | |
| | | | | Taxes w/o Exemptions: | $1,755.62 | | |
Improvement / Building
| Improvement #1: | MANUFACTURED HOME | State Code: | Y | 924.0 sqft | Value: | $29,806 |
| Bathrooms: | 2 | Bedrooms: | 3 | | Ceiling: | PLASTER PAINTED | Cooling: | EVAP NO DUCT | | Exterior Wall/Cover: | VINYL | Floor Covering: | CARPET 100% | | Floor Structure: | SLAB ON GRADE | Foundation: | SLAB | | Heating: | FHA ELECTRIC | Interior Finish: | PLASTER | | Plumbing Fixture Cnt: | 1 | Roof Slope: | FLAT | | Roof Structure/Cover: | CJ ALUMINIUM HEAVY |   |   |
|
| | Type | Description | Class CD | Sub Class CD | Year Built | Area |
| | BAS | BASE/MAIN FLOOR | 2 | 0 | 1982 | 924.0 |
| | DGR | DETACHED GARAGE | 2 | 0 | 1982 | 480.0 |
| | OWR | OPEN WOOD PORCH W/STEPS/ROOF | 2 | 0 | 1982 | 120.0 |
| | OWP | OPEN WOOD PORCH W/STEPS | 2 | 0 | 1982 | 72.0 |
Sketch
Property Image
Land
| 1 | 14 | SQ (08001-12000) | 0.2114 | 9208.58 | 0.00 | 0.00 | 1.00 | $210,000 | $0 |
Roll Value History
| 2026 | N/A | N/A | N/A | N/A | N/A |
| 2025 | $29,806 | $210,000 | $0 | $239,806 | $239,806 |
| 2024 | $31,101 | $210,000 | $0 | $241,101 | $241,101 |
| 2023 | $28,737 | $210,000 | $0 | $238,737 | $238,737 |
| 2022 | $27,042 | $210,000 | $0 | $237,042 | $237,042 |
| 2021 | $22,421 | $140,000 | $0 | $162,421 | $162,421 |
| 2020 | $22,620 | $120,000 | $0 | $142,620 | $142,620 |
| 2019 | $18,491 | $140,000 | $0 | $158,491 | $158,491 |
| 2018 | $19,165 | $100,000 | $0 | $119,165 | $119,165 |
| 2017 | $20,172 | $100,000 | $0 | $120,172 | $48,069 |
| 2016 | $20,846 | $90,000 | $0 | $110,846 | $110,846 |
| 2015 | $21,256 | $65,000 | $0 | $86,256 | $86,256 |
| 2014 | $21,722 | $65,000 | $0 | $86,722 | $86,722 |
| 2013 | $22,188 | $65,000 | $0 | $87,188 | $87,188 |
| 2012 | $22,654 | $66,400 | $0 | $89,054 | $89,054 |
| 2011 | $23,354 | $83,000 | $0 | $106,354 | $106,354 |
| 2010 | $21,366 | $83,000 | $0 | $104,366 | $104,366 |
| 2009 | $24,054 | $100,000 | $0 | $124,054 | $124,054 |
| 2008 | $25,133 | $113,000 | $0 | $138,133 | $138,133 |
| 2007 | $26,192 | $64,775 | $0 | $90,967 | $90,967 |
Deed and Sales History
| 1 | 07/18/2018 | WD | Warranty Deed | BOYD, DANIEL | ADAMS, DIANA | | | $123,000.00 | 35141 | 4448624 |
| 2 | 01/20/2017 | WD | Warranty Deed | BIGELOW, JONATHAN A | BOYD, DANIEL | | | $91,000.00 | 27819 | 4415657 |
| 3 | 05/12/2005 | WD | Warranty Deed | CRICHFIELD, DOROTHY | BIGELOW, JONATHAN A | | | $94,000.00 | 52173 | 4134470 |
| 4 | 04/01/1993 | OTHER | Other - Misc. Documents | CRICHFIELD, DOROTHY M | CRICHFIELD, DOROTHY | | | $0.00 | 31334 | 0 |
| 5 | 01/01/1993 | OTHER | Other - Misc. Documents | CRITCHFIELD, JOHN | CRICHFIELD, DOROTHY M | | | $0.00 | 65193 | 93000133 |
| 6 | 01/01/1983 | OTHER | Other - Misc. Documents | CRICHFIELD, JOHN A | CRITCHFIELD, JOHN | | | $14,500.00 | 11111111 | 0 |
| 7 | 09/01/1982 | TRUSTEED | Trustee's Deed | BERK, ROBERT F | CRICHFIELD, JOHN A | | | $12,000.00 | 22367 | 401245 |
Payout Agreement
| No payout information available.. |