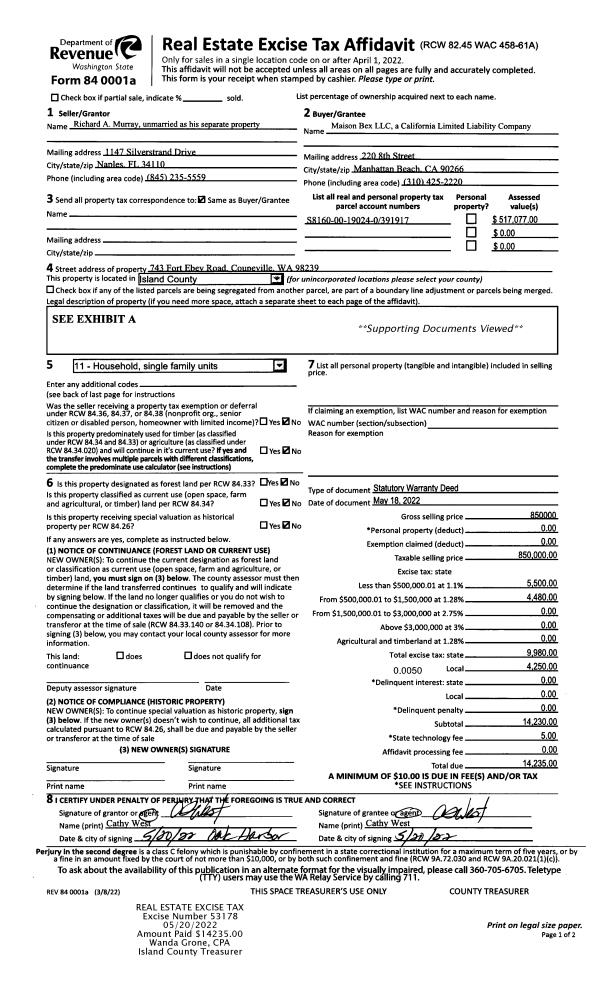
Property
Account |
| Property ID: | 219793 | Abbreviated Legal Description: | CAMANO HTS 3 LOT 1 |
| Geographic ID: | S6260-03-00001-0 | Agent Code: | |
| Type: | Real | | |
| Tax Area: | 510 - APPRAISER-Stan/Cam Schl Dist, improved & 1 acre or less | Land Use Code | 11 |
| Open Space: | N | DFL | N |
| Historic Property: | N | Remodel Property: | N |
| Multi-Family Redevelopment: | N | | |
| Township: | | Section: | |
| Range: | |
Location |
| Address: | 941 FALCON RD CAMANO ISLAND, WA 98282 | Mapsco: | |
| Neighborhood: | Cycle 5 | Map ID: | 483 |
| Neighborhood CD: | 5 |
Owner |
| Name: | HERNANDEZ, CRYSTAL E | Owner ID: | 310530 |
| Mailing Address: | JOSHUA PAUL RETANA 941 FALCON RD CAMANO ISLAND, WA 98282 | % Ownership: | 100.0000000000% |
| | | Exemptions: | |
Taxes and Assessment Details
Values
| (+) Improvement Homesite Value: | + | $0 | |
| (+) Improvement Non-Homesite Value: | + | $135,772 | |
| (+) Land Homesite Value: | + | $0 | |
| (+) Land Non-Homesite Value: | + | $210,000 | |
| (+) Curr Use (HS): | + | $0 | $0 |
| (+) Curr Use (NHS): | + | $0 | $0 |
| | | -------------------------- | |
| (=) Market Value: | = | $345,772 | |
| (–) Productivity Loss: | – | $0 | |
| | | -------------------------- | |
| (=) Subtotal: | = | $345,772 | |
| (+) Senior Appraised Value: | + | $0 | |
| (+) Non-Senior Appraised Value: | + | $345,772 | |
| | | -------------------------- | |
| (=) Total Appraised Value: | = | $345,772 | |
| (–) Senior Exemption Loss: | – | $0 | |
| (–) Exemption Loss: | – | $0 | |
| | | -------------------------- | |
| (=) Taxable Value: | = | $345,772 | |
Taxing Jurisdiction
| Owner: | HERNANDEZ, CRYSTAL E | | |
| % Ownership: | 100.0000000000% | | |
| Total Value: | $345,772 | | |
| Tax Area: | 510 - APPRAISER-Stan/Cam Schl Dist, improved & 1 acre or less |
| CF | Conservation Futures | 0.0316035091 | $345,772 | $345,772 | $10.93 | | |
| EMS1 | Fire & Rescue Dist #1 Camano GEN (EMS) | 0.3677864386 | $345,772 | $345,772 | $127.17 | | |
| FIRE1 | Fire & Rescue Dist #1 Camano GEN | 1.2502910536 | $345,772 | $345,772 | $432.32 | | |
| FIRE1BOND | Fire & Rescue Dist #1 Camano BOND | 0.1570001679 | $345,772 | $345,772 | $54.29 | | |
| CE | County Current Expense | 0.3708482477 | $345,772 | $345,772 | $128.23 | | |
| CR | County Roads | 0.4584763726 | $345,772 | $345,772 | $158.53 | | |
| LCIB | Library Sno-Isle BOND (Camano Island) | 0.0396325772 | $345,772 | $345,772 | $13.70 | | |
| LIB | Library Sno-Isle GEN | 0.3153421757 | $345,772 | $345,772 | $109.04 | | |
| SCH205_401 | School 205-401 Enrichment | 1.2698420524 | $345,772 | $345,772 | $439.08 | | |
| SCH205BOND | School 205-401 BOND | 0.9396497583 | $345,772 | $345,772 | $324.90 | | |
| ST | State School | 1.3035497053 | $345,772 | $345,772 | $450.73 | | |
| ST2 | State School Part 2 | 0.8169543533 | $345,772 | $345,772 | $282.48 | | |
| | Total Tax Rate: | 7.3209764117 | | | | | |
| | | | | Taxes w/Current Exemptions: | $2,531.40 | | |
| | | | | Taxes w/o Exemptions: | $2,531.40 | | |
Improvement / Building
| Improvement #1: | MANUFACTURED HOME | State Code: | Y | 1296.0 sqft | Value: | $135,772 |
| Bathrooms: | 0 | Bedrooms: | 0 | | Ceiling: | PLASTER PAINTED | Cooling: | EVAP NO DUCT | | Exterior Wall/Cover: | VINYL | Floor Covering: | CARPET 100% | | Floor Structure: | SLAB ON GRADE | Foundation: | SLAB | | Heating: | FHA ELECTRIC | Interior Finish: | PLASTER | | Plumbing Fixture Cnt: | 1 | Roof Slope: | FLAT | | Roof Structure/Cover: | CJ ALUMINIUM HEAVY |   |   |
|
| | Type | Description | Class CD | Sub Class CD | Year Built | Area |
| | BAS | BASE/MAIN FLOOR | 4 | 0 | 1984 | 1296.0 |
| | OWP | OPEN WOOD PORCH W/STEPS | 4 | 0 | 1984 | 32.0 |
| | OWP | OPEN WOOD PORCH W/STEPS | 4 | 0 | 1984 | 156.0 |
Sketch
Property Image
Land
| 1 | 14 | SQ (08001-12000) | 0.0000 | 0.00 | 0.00 | 0.00 | 1.00 | $210,000 | $0 |
Roll Value History
| 2026 | N/A | N/A | N/A | N/A | N/A |
| 2025 | $135,772 | $210,000 | $0 | $345,772 | $345,772 |
| 2024 | $139,045 | $210,000 | $0 | $349,045 | $349,045 |
| 2023 | $115,777 | $210,000 | $0 | $325,777 | $325,777 |
| 2022 | $106,053 | $210,000 | $0 | $316,053 | $316,053 |
| 2021 | $64,535 | $140,000 | $0 | $204,535 | $204,535 |
| 2020 | $64,614 | $120,000 | $0 | $184,614 | $184,614 |
| 2019 | $45,885 | $140,000 | $0 | $185,885 | $185,885 |
| 2018 | $47,234 | $100,000 | $0 | $147,234 | $147,234 |
| 2017 | $48,583 | $100,000 | $0 | $148,583 | $148,583 |
| 2016 | $49,258 | $90,000 | $0 | $139,258 | $139,258 |
| 2015 | $28,828 | $65,000 | $0 | $93,828 | $93,828 |
| 2014 | $29,811 | $65,000 | $0 | $94,811 | $94,811 |
| 2013 | $31,284 | $65,000 | $0 | $96,284 | $96,284 |
| 2012 | $32,267 | $66,400 | $0 | $98,667 | $98,667 |
| 2011 | $33,249 | $83,000 | $0 | $116,249 | $116,249 |
| 2010 | $31,398 | $83,000 | $0 | $114,398 | $114,398 |
| 2009 | $33,489 | $100,000 | $0 | $133,489 | $133,489 |
| 2008 | $34,831 | $113,000 | $0 | $147,831 | $147,831 |
| 2007 | $36,212 | $101,000 | $0 | $137,212 | $137,212 |
Deed and Sales History
| 1 | 10/31/2023 | WD | Warranty Deed | RIVERA, JORGE | HERNANDEZ, CRYSTAL E | | | $400,000.00 | 58387 | 4566256 |
| 2 | 12/08/2021 | WD | Warranty Deed | AJI, MICHAEL F | RIVERA, JORGE | | | $383,500.00 | 51249 | 4535532 |
| 3 | 04/24/2019 | WD | Warranty Deed | DUNNE, JAMES M | AJI, MICHAEL F | | | $210,000.00 | 38197 | 4461979 |
| 4 | 06/22/2005 | WD | Warranty Deed | PAONE, DONNA | DUNNE, JAMES M | | | $142,000.00 | 53011 | 4137955 |
| 5 | 11/03/1999 | WD | Warranty Deed | PAONE, DONNA | PAONE, DONNA | | | $94,000.00 | 94656 | 99026047 |
| 6 | 11/03/1999 | OTHER | Other - Misc. Documents | VA REGIONAL LOAN CTR, | PAONE, DONNA | | | $0.00 | 94659 | 0 |
| 7 | 08/11/1999 | WD | Warranty Deed | VA REGIONAL LOAN CTR, | VA REGIONAL LOAN CTR, | | | $0.00 | 93331 | 99019152 |
| 8 | 07/27/1999 | WD | Warranty Deed | COUNTRYWIDE HOME LOANS, | VA REGIONAL LOAN CTR, | | | $71,728.00 | 93027 | 99017769 |
| 9 | 03/05/1999 | TRUSTEED | Trustee's Deed | FOUSE, GUY E | COUNTRYWIDE HOME LOANS, | | | $71,728.00 | 90843 | 99005933 |
| 10 | 04/01/1995 | OTHER | Other - Misc. Documents | GALE, ROBERTA B | FOUSE, GUY E | | | $25,000.00 | 51372 | 0 |
| 11 | 04/01/1995 | WD | Warranty Deed | FOUSE, GUY E | FOUSE, GUY E | | | $49,950.00 | 51373 | 95006413 |
| 12 | 08/01/1991 | OTHER | Other - Misc. Documents | LEISHMAND, GILBERT H | GALE, ROBERTA B | | | $56,950.00 | 12936 | 0 |
| 13 | 08/01/1991 | WD | Warranty Deed | GALE, ROBERTA B | GALE, ROBERTA B | | | $18,000.00 | 12832 | 91012033 |
| 14 | 04/01/1987 | QCD | Quit Claim Deed | AUDETTE, STEVEN M | LEISHMAND, GILBERT H | | | $0.00 | 71177 | 87005850 |
| 15 | 04/01/1987 | WD | Warranty Deed | JAT, CORPORATION | AUDETTE, STEVEN M | | | $11,950.00 | 71178 | 87005851 |
| 16 | 01/01/1982 | EXECUTORD | Executor Deed | SHUBERT, RICHARD & | JAT, CORPORATION | | | $9,300.00 | 20105 | 392096 |
| 17 | 07/01/1981 | CD | DNU - Correction Deed | SHUBERT, RICHARD | SHUBERT, RICHARD & | | | $1.00 | 12216 | 385608 |
| 18 | 01/01/1900 | OTHER | Other - Misc. Documents | Unknown | SHUBERT, RICHARD | | | $0.00 | 0 | 0 |
Payout Agreement
| No payout information available.. |