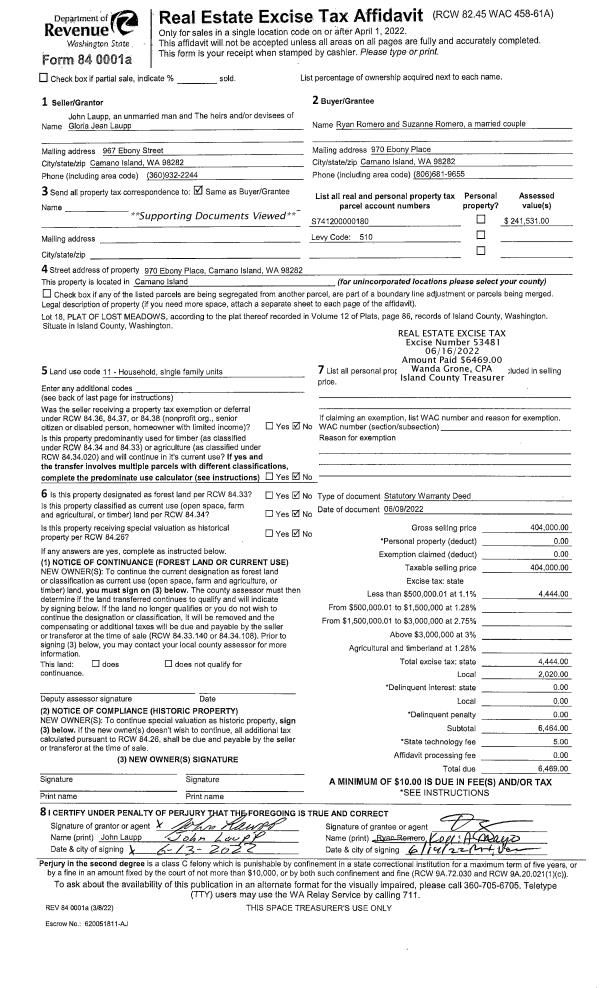
Property
Account |
| Property ID: | 219971 | Abbreviated Legal Description: | CAMANO HTS 3 LOT 21 |
| Geographic ID: | S6260-03-00021-0 | Agent Code: | |
| Type: | Real | | |
| Tax Area: | 510 - APPRAISER-Stan/Cam Schl Dist, improved & 1 acre or less | Land Use Code | 11 |
| Open Space: | N | DFL | N |
| Historic Property: | N | Remodel Property: | N |
| Multi-Family Redevelopment: | N | | |
| Township: | | Section: | |
| Range: | |
Location |
| Address: | 1034 GARY LN CAMANO ISLAND, WA 98282 | Mapsco: | |
| Neighborhood: | Cycle 5 | Map ID: | 483 |
| Neighborhood CD: | 5 |
Owner |
| Name: | GRAY, TIMOTHY M | Owner ID: | 263469 |
| Mailing Address: | 1028 GARY LN CAMANO ISLAND, WA 98282 | % Ownership: | 100.0000000000% |
| | | Exemptions: | |
Taxes and Assessment Details
Values
| (+) Improvement Homesite Value: | + | $0 | |
| (+) Improvement Non-Homesite Value: | + | $12,130 | |
| (+) Land Homesite Value: | + | $0 | |
| (+) Land Non-Homesite Value: | + | $210,000 | |
| (+) Curr Use (HS): | + | $0 | $0 |
| (+) Curr Use (NHS): | + | $0 | $0 |
| | | -------------------------- | |
| (=) Market Value: | = | $222,130 | |
| (–) Productivity Loss: | – | $0 | |
| | | -------------------------- | |
| (=) Subtotal: | = | $222,130 | |
| (+) Senior Appraised Value: | + | $0 | |
| (+) Non-Senior Appraised Value: | + | $222,130 | |
| | | -------------------------- | |
| (=) Total Appraised Value: | = | $222,130 | |
| (–) Senior Exemption Loss: | – | $0 | |
| (–) Exemption Loss: | – | $0 | |
| | | -------------------------- | |
| (=) Taxable Value: | = | $222,130 | |
Taxing Jurisdiction
| Owner: | GRAY, TIMOTHY M | | |
| % Ownership: | 100.0000000000% | | |
| Total Value: | $222,130 | | |
| Tax Area: | 510 - APPRAISER-Stan/Cam Schl Dist, improved & 1 acre or less |
| CF | Conservation Futures | 0.0316035091 | $222,130 | $222,130 | $7.02 | | |
| EMS1 | Fire & Rescue Dist #1 Camano GEN (EMS) | 0.3677864386 | $222,130 | $222,130 | $81.70 | | |
| FIRE1 | Fire & Rescue Dist #1 Camano GEN | 1.2502910536 | $222,130 | $222,130 | $277.73 | | |
| FIRE1BOND | Fire & Rescue Dist #1 Camano BOND | 0.1570001679 | $222,130 | $222,130 | $34.87 | | |
| CE | County Current Expense | 0.3708482477 | $222,130 | $222,130 | $82.38 | | |
| CR | County Roads | 0.4584763726 | $222,130 | $222,130 | $101.84 | | |
| LCIB | Library Sno-Isle BOND (Camano Island) | 0.0396325772 | $222,130 | $222,130 | $8.80 | | |
| LIB | Library Sno-Isle GEN | 0.3153421757 | $222,130 | $222,130 | $70.05 | | |
| SCH205_401 | School 205-401 Enrichment | 1.2698420524 | $222,130 | $222,130 | $282.07 | | |
| SCH205BOND | School 205-401 BOND | 0.9396497583 | $222,130 | $222,130 | $208.72 | | |
| ST | State School | 1.3035497053 | $222,130 | $222,130 | $289.56 | | |
| ST2 | State School Part 2 | 0.8169543533 | $222,130 | $222,130 | $181.47 | | |
| | Total Tax Rate: | 7.3209764117 | | | | | |
| | | | | Taxes w/Current Exemptions: | $1,626.21 | | |
| | | | | Taxes w/o Exemptions: | $1,626.21 | | |
Improvement / Building
| Improvement #1: | MANUFACTURED HOME | State Code: | Y | 1020.0 sqft | Value: | $12,130 |
| Bathrooms: | 0 | Bedrooms: | 0 | | Ceiling: | PLASTER PAINTED | Cooling: | EVAP NO DUCT | | Exterior Wall/Cover: | VINYL | Floor Covering: | CARPET 100% | | Floor Structure: | SLAB ON GRADE | Foundation: | SLAB | | Heating: | FHA ELECTRIC | Interior Finish: | PLASTER | | Plumbing Fixture Cnt: | 1 | Roof Slope: | FLAT | | Roof Structure/Cover: | CJ ALUMINIUM HEAVY |   |   |
|
| | Type | Description | Class CD | Sub Class CD | Year Built | Area |
| | BAS | BASE/MAIN FLOOR | 3 | 0 | 1979 | 1020.0 |
| | OWP | OPEN WOOD PORCH W/STEPS | 3 | 0 | 1979 | 173.5 |
| | OWR | OPEN WOOD PORCH W/STEPS/ROOF | 3 | 0 | 1979 | 44.0 |
| | OWR | OPEN WOOD PORCH W/STEPS/ROOF | 3 | 0 | 1979 | 24.0 |
Sketch
Property Image
Land
| 1 | 14 | SQ (08001-12000) | 0.0000 | 0.00 | 0.00 | 0.00 | 1.00 | $210,000 | $0 |
Roll Value History
| 2026 | N/A | N/A | N/A | N/A | N/A |
| 2025 | $12,130 | $210,000 | $0 | $222,130 | $222,130 |
| 2024 | $12,998 | $210,000 | $0 | $222,998 | $222,998 |
| 2023 | $13,431 | $210,000 | $0 | $223,431 | $223,431 |
| 2022 | $12,948 | $210,000 | $0 | $222,948 | $222,948 |
| 2021 | $10,472 | $140,000 | $0 | $150,472 | $150,472 |
| 2020 | $11,037 | $120,000 | $0 | $131,037 | $131,037 |
| 2019 | $9,149 | $140,000 | $0 | $149,149 | $149,149 |
| 2018 | $9,606 | $100,000 | $0 | $109,606 | $109,606 |
| 2017 | $10,064 | $100,000 | $0 | $110,064 | $110,064 |
| 2016 | $10,521 | $90,000 | $0 | $100,521 | $100,521 |
| 2015 | $15,840 | $65,000 | $0 | $80,840 | $80,840 |
| 2014 | $16,596 | $65,000 | $0 | $81,596 | $81,596 |
| 2013 | $17,100 | $65,000 | $0 | $82,100 | $82,100 |
| 2012 | $17,603 | $66,400 | $0 | $84,003 | $84,003 |
| 2011 | $18,107 | $83,000 | $0 | $101,107 | $101,107 |
| 2010 | $15,949 | $83,000 | $0 | $98,949 | $98,949 |
| 2009 | $18,249 | $100,000 | $0 | $118,249 | $118,249 |
| 2008 | $18,830 | $113,000 | $0 | $131,830 | $131,830 |
| 2007 | $19,442 | $64,775 | $0 | $84,217 | $84,217 |
Deed and Sales History
| 1 | 08/20/2013 | WD | Warranty Deed | POLLOCK, GARY A | GRAY, TIMOTHY M | | | $77,000.00 | 12489 | 4346755 |
|   | |
| 2 | 03/21/2001 | WD | Warranty Deed | POLLOCK, GARY A | POLLOCK, GARY A | | | $0.00 | 12488 | 4346754 |
| 3 | 03/21/2001 | TRUSTEED | Trustee's Deed | POLLOCK, COREY A | POLLOCK, GARY A | | | $0.00 | 11365 | 20030446 |
| 4 | 08/01/1989 | WD | Warranty Deed | POLLOCK, COREY A | POLLOCK, COREY A | | | $10,370.00 | 93306 | 89011127 |
| 5 | 08/01/1989 | OTHER | Other - Misc. Documents | LINDSAY, RICHARD D | POLLOCK, COREY A | | | $15,000.00 | 93305 | 0 |
| 6 | 07/01/1982 | OTHER | Other - Misc. Documents | LINDSAY, RICHARD D | LINDSAY, RICHARD D | | | $17,000.00 | 21822 | 0 |
| 7 | 02/01/1982 | WD | Warranty Deed | BANK, OF S | LINDSAY, RICHARD D | | | $5,292.00 | 21831 | 399003 |
| 8 | 11/01/1981 | F | Deed In Fulfillment Of Contract | NIX, IDA M | BANK, OF S | | | $5,292.00 | 21825 | 399002 |
| 9 | 10/01/1980 | OTHER | Other - Misc. Documents | CAMPBELL, IDA M | NIX, IDA M | | | $0.00 | 58943 | 0 |
| 10 | 01/01/1900 | OTHER | Other - Misc. Documents | Unknown | CAMPBELL, IDA M | | | $15,566.00 | 0 | 0 |
Payout Agreement
| No payout information available.. |