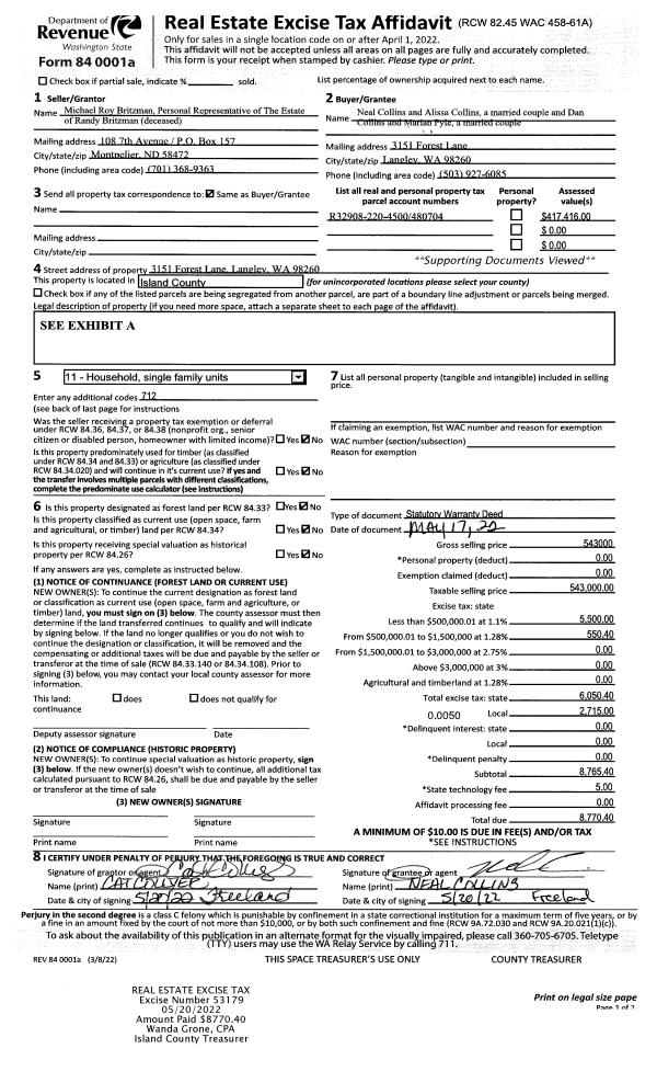
Property
Account |
| Property ID: | 220031 | Abbreviated Legal Description: | CAMANO HTS 3 LOT 27 |
| Geographic ID: | S6260-03-00027-0 | Agent Code: | |
| Type: | Real | | |
| Tax Area: | 510 - APPRAISER-Stan/Cam Schl Dist, improved & 1 acre or less | Land Use Code | 11 |
| Open Space: | N | DFL | N |
| Historic Property: | N | Remodel Property: | N |
| Multi-Family Redevelopment: | N | | |
| Township: | | Section: | |
| Range: | |
Location |
| Address: | 1004 GARY LN CAMANO ISLAND, WA 98282 | Mapsco: | |
| Neighborhood: | Cycle 5 | Map ID: | 483 |
| Neighborhood CD: | 5 |
Owner |
| Name: | BEHNKE, LARRY | Owner ID: | 198453 |
| Mailing Address: | SHERYL D CARPENTER-BEHNKE 987 FALCON RD CAMANO ISLAND, WA 98282-8411 | % Ownership: | 100.0000000000% |
| | | Exemptions: | |
Taxes and Assessment Details
Values
| (+) Improvement Homesite Value: | + | $0 | |
| (+) Improvement Non-Homesite Value: | + | $179,511 | |
| (+) Land Homesite Value: | + | $0 | |
| (+) Land Non-Homesite Value: | + | $210,000 | |
| (+) Curr Use (HS): | + | $0 | $0 |
| (+) Curr Use (NHS): | + | $0 | $0 |
| | | -------------------------- | |
| (=) Market Value: | = | $389,511 | |
| (–) Productivity Loss: | – | $0 | |
| | | -------------------------- | |
| (=) Subtotal: | = | $389,511 | |
| (+) Senior Appraised Value: | + | $0 | |
| (+) Non-Senior Appraised Value: | + | $389,511 | |
| | | -------------------------- | |
| (=) Total Appraised Value: | = | $389,511 | |
| (–) Senior Exemption Loss: | – | $0 | |
| (–) Exemption Loss: | – | $0 | |
| | | -------------------------- | |
| (=) Taxable Value: | = | $389,511 | |
Taxing Jurisdiction
| Owner: | BEHNKE, LARRY | | |
| % Ownership: | 100.0000000000% | | |
| Total Value: | $389,511 | | |
| Tax Area: | 510 - APPRAISER-Stan/Cam Schl Dist, improved & 1 acre or less |
| CF | Conservation Futures | 0.0316035091 | $389,511 | $389,511 | $12.31 | | |
| EMS1 | Fire & Rescue Dist #1 Camano GEN (EMS) | 0.3677864386 | $389,511 | $389,511 | $143.26 | | |
| FIRE1 | Fire & Rescue Dist #1 Camano GEN | 1.2502910536 | $389,511 | $389,511 | $487.00 | | |
| FIRE1BOND | Fire & Rescue Dist #1 Camano BOND | 0.1570001679 | $389,511 | $389,511 | $61.15 | | |
| CE | County Current Expense | 0.3708482477 | $389,511 | $389,511 | $144.45 | | |
| CR | County Roads | 0.4584763726 | $389,511 | $389,511 | $178.58 | | |
| LCIB | Library Sno-Isle BOND (Camano Island) | 0.0396325772 | $389,511 | $389,511 | $15.44 | | |
| LIB | Library Sno-Isle GEN | 0.3153421757 | $389,511 | $389,511 | $122.83 | | |
| SCH205_401 | School 205-401 Enrichment | 1.2698420524 | $389,511 | $389,511 | $494.62 | | |
| SCH205BOND | School 205-401 BOND | 0.9396497583 | $389,511 | $389,511 | $366.00 | | |
| ST | State School | 1.3035497053 | $389,511 | $389,511 | $507.75 | | |
| ST2 | State School Part 2 | 0.8169543533 | $389,511 | $389,511 | $318.21 | | |
| | Total Tax Rate: | 7.3209764117 | | | | | |
| | | | | Taxes w/Current Exemptions: | $2,851.60 | | |
| | | | | Taxes w/o Exemptions: | $2,851.60 | | |
Improvement / Building
| Improvement #1: | MANUFACTURED HOME | State Code: | Y | 2227.5 sqft | Value: | $179,511 |
| Bathrooms: | 0 | Bedrooms: | 0 | | Ceiling: | PLASTER PAINTED | Cooling: | EVAP NO DUCT | | Exterior Wall/Cover: | VINYL | Floor Covering: | CARPET 100% | | Floor Structure: | SLAB ON GRADE | Foundation: | SLAB | | Heating: | FHA ELECTRIC | Interior Finish: | PLASTER | | Plumbing Fixture Cnt: | 1 | Roof Slope: | FLAT | | Roof Structure/Cover: | CJ ALUMINIUM HEAVY |   |   |
|
| | Type | Description | Class CD | Sub Class CD | Year Built | Area |
| | BAS | BASE/MAIN FLOOR | 5 | 0 | 1998 | 2227.5 |
| | OWC | OPEN WOOD PORCH W/STEPS/ROOF/C | 5 | 0 | 1998 | 139.1 |
| | oCBF | CON BLK FN | 5 | 0 | 1998 | 0.0 |
| | DGR | DETACHED GARAGE | 5 | 0 | 1998 | 440.0 |
| | OWP | OPEN WOOD PORCH W/STEPS | 5 | 0 | 1998 | 32.0 |
Sketch
Property Image
Land
| 1 | 13 | SQ (06001-08000) | 0.1800 | 7840.80 | 0.00 | 0.00 | 1.00 | $210,000 | $0 |
Roll Value History
| 2026 | N/A | N/A | N/A | N/A | N/A |
| 2025 | $179,511 | $210,000 | $0 | $389,511 | $389,511 |
| 2024 | $184,219 | $210,000 | $0 | $394,219 | $394,219 |
| 2023 | $166,818 | $210,000 | $0 | $376,818 | $376,818 |
| 2022 | $154,744 | $210,000 | $0 | $364,744 | $364,744 |
| 2021 | $124,645 | $140,000 | $0 | $264,645 | $264,645 |
| 2020 | $124,288 | $120,000 | $0 | $244,288 | $244,288 |
| 2019 | $104,184 | $140,000 | $0 | $244,184 | $244,184 |
| 2018 | $106,329 | $100,000 | $0 | $206,329 | $206,329 |
| 2017 | $108,490 | $100,000 | $0 | $208,490 | $208,490 |
| 2016 | $110,635 | $90,000 | $0 | $200,635 | $200,635 |
| 2015 | $108,814 | $65,000 | $0 | $173,814 | $173,814 |
| 2014 | $110,955 | $65,000 | $0 | $175,955 | $175,955 |
| 2013 | $113,096 | $65,000 | $0 | $178,096 | $178,096 |
| 2012 | $115,238 | $83,000 | $0 | $198,238 | $198,238 |
| 2011 | $117,379 | $83,000 | $0 | $200,379 | $200,379 |
| 2010 | $133,203 | $83,000 | $0 | $216,203 | $216,203 |
| 2009 | $138,064 | $100,000 | $0 | $238,064 | $238,064 |
| 2008 | $142,239 | $113,000 | $0 | $255,239 | $255,239 |
| 2007 | $143,931 | $101,000 | $0 | $244,931 | $244,931 |
Deed and Sales History
| 1 | 06/14/2007 | WD | Warranty Deed | SUN MOUNTAIN CONST INC, | BEHNKE, LARRY | | | $277,000.00 | 71991 | 4204723 |
| 2 | 01/11/2007 | WD | Warranty Deed | O'NEIL CONTRACTING & CONSTRUCT | SUN MOUNTAIN CONST INC, | | | $82,500.00 | 70154 | 4191811 |
| 3 | 04/11/2006 | SEG | DNU - Segregation | MULLEN, MARGUERITE J | O'NEIL CONTRACTING & CONSTRUCT | | | $0.00 | 70898 | 0 |
| 4 | 01/01/1900 | OTHER | Other - Misc. Documents | Unknown | MULLEN, MARGUERITE J | | | $0.00 | 0 | 0 |
Payout Agreement
| No payout information available.. |