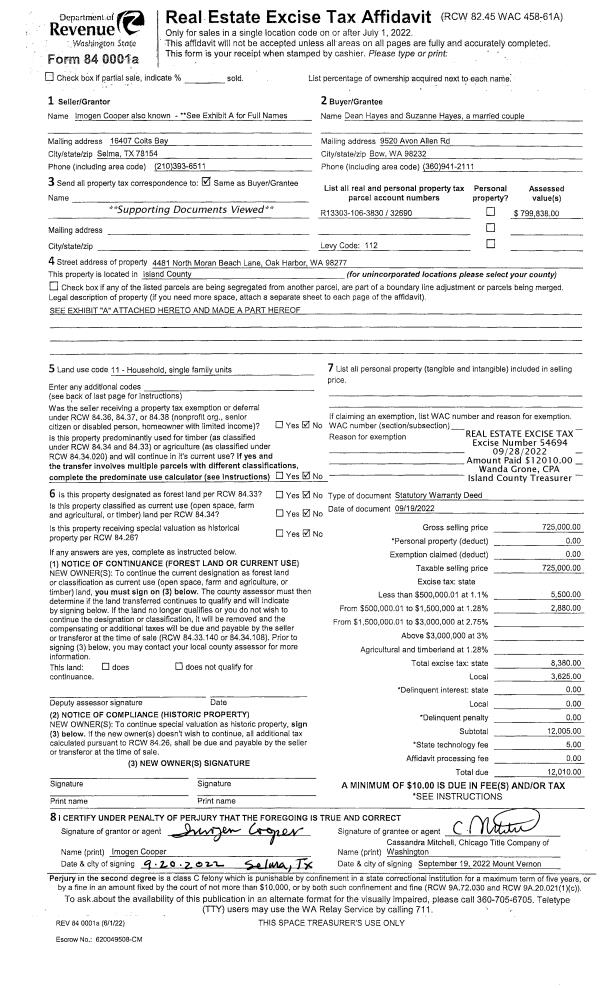
Property
Account |
| Property ID: | 220077 | Abbreviated Legal Description: | CAMANO HTS 4 LOT 3 |
| Geographic ID: | S6260-04-00003-0 | Agent Code: | |
| Type: | Real | | |
| Tax Area: | 510 - APPRAISER-Stan/Cam Schl Dist, improved & 1 acre or less | Land Use Code | 11 |
| Open Space: | N | DFL | N |
| Historic Property: | N | Remodel Property: | N |
| Multi-Family Redevelopment: | N | | |
| Township: | | Section: | |
| Range: | |
Location |
| Address: | 956 ROWE RD CAMANO ISLAND, WA 98282 | Mapsco: | |
| Neighborhood: | Cycle 5 | Map ID: | 484 |
| Neighborhood CD: | 5 |
Owner |
| Name: | DALTON, THOMAS S | Owner ID: | 277100 |
| Mailing Address: | CRYSTAL L DALTON 956 ROWE RD CAMANO ISLAND, WA 98282 | % Ownership: | 100.0000000000% |
| | | Exemptions: | |
Taxes and Assessment Details
Values
| (+) Improvement Homesite Value: | + | $0 | |
| (+) Improvement Non-Homesite Value: | + | $369,029 | |
| (+) Land Homesite Value: | + | $0 | |
| (+) Land Non-Homesite Value: | + | $210,000 | |
| (+) Curr Use (HS): | + | $0 | $0 |
| (+) Curr Use (NHS): | + | $0 | $0 |
| | | -------------------------- | |
| (=) Market Value: | = | $579,029 | |
| (–) Productivity Loss: | – | $0 | |
| | | -------------------------- | |
| (=) Subtotal: | = | $579,029 | |
| (+) Senior Appraised Value: | + | $0 | |
| (+) Non-Senior Appraised Value: | + | $579,029 | |
| | | -------------------------- | |
| (=) Total Appraised Value: | = | $579,029 | |
| (–) Senior Exemption Loss: | – | $0 | |
| (–) Exemption Loss: | – | $0 | |
| | | -------------------------- | |
| (=) Taxable Value: | = | $579,029 | |
Taxing Jurisdiction
| Owner: | DALTON, THOMAS S | | |
| % Ownership: | 100.0000000000% | | |
| Total Value: | $579,029 | | |
| Tax Area: | 510 - APPRAISER-Stan/Cam Schl Dist, improved & 1 acre or less |
| CF | Conservation Futures | 0.0316035091 | $579,029 | $579,029 | $18.30 | | |
| EMS1 | Fire & Rescue Dist #1 Camano GEN (EMS) | 0.3677864386 | $579,029 | $579,029 | $212.96 | | |
| FIRE1 | Fire & Rescue Dist #1 Camano GEN | 1.2502910536 | $579,029 | $579,029 | $723.95 | | |
| FIRE1BOND | Fire & Rescue Dist #1 Camano BOND | 0.1570001679 | $579,029 | $579,029 | $90.91 | | |
| CE | County Current Expense | 0.3708482477 | $579,029 | $579,029 | $214.73 | | |
| CR | County Roads | 0.4584763726 | $579,029 | $579,029 | $265.47 | | |
| LCIB | Library Sno-Isle BOND (Camano Island) | 0.0396325772 | $579,029 | $579,029 | $22.95 | | |
| LIB | Library Sno-Isle GEN | 0.3153421757 | $579,029 | $579,029 | $182.59 | | |
| SCH205_401 | School 205-401 Enrichment | 1.2698420524 | $579,029 | $579,029 | $735.28 | | |
| SCH205BOND | School 205-401 BOND | 0.9396497583 | $579,029 | $579,029 | $544.08 | | |
| ST | State School | 1.3035497053 | $579,029 | $579,029 | $754.79 | | |
| ST2 | State School Part 2 | 0.8169543533 | $579,029 | $579,029 | $473.04 | | |
| | Total Tax Rate: | 7.3209764117 | | | | | |
| | | | | Taxes w/Current Exemptions: | $4,239.05 | | |
| | | | | Taxes w/o Exemptions: | $4,239.05 | | |
Improvement / Building
| Improvement #1: | RESIDENTIAL | State Code: | Y | 1922.0 sqft | Value: | $369,029 |
| Bathrooms: | 2.5 | Bedrooms: | 3 | | Ceiling: | DRYWALL PAINTED | Exterior Wall/Cover: | CEMENT FIBER | | Floor Covering: | CARPET/VINYL 60-40 | Floor Structure: | WOOD W/SUBFLOOR | | Foundation: | CONCRETE | Heating: | FHA GAS | | Interior Finish: | DRYWALL PAINT | Plumbing Fixture Cnt: | 11 | | Roof Slope: | 5" IN 12" | Roof Structure/Cover: | CJ ASPHALT |
|
| | Type | Description | Class CD | Sub Class CD | Year Built | Area |
| | BAS | BASE/MAIN FLOOR | 3 | 0 | 2009 | 1922.0 |
| | OP4 | OPEN PORCH W/CEILING-ROOF | 3 | 0 | 2009 | 215.0 |
| | AGR | ATTACHED GARAGE | 3 | 0 | 2009 | 876.0 |
| | OWC | OPEN WOOD PORCH W/STEPS/ROOF/C | 3 | 0 | 2009 | 404.0 |
Sketch
Property Image
Land
| 1 | 16 | AC (00.51-01.00) | 0.8400 | 36590.40 | 0.00 | 0.00 | 1.00 | $210,000 | $0 |
Roll Value History
| 2026 | N/A | N/A | N/A | N/A | N/A |
| 2025 | $369,029 | $210,000 | $0 | $579,029 | $579,029 |
| 2024 | $372,131 | $210,000 | $0 | $582,131 | $582,131 |
| 2023 | $375,439 | $210,000 | $0 | $585,439 | $585,439 |
| 2022 | $342,579 | $210,000 | $0 | $552,579 | $552,579 |
| 2021 | $287,304 | $140,000 | $0 | $427,304 | $427,304 |
| 2020 | $279,782 | $120,000 | $0 | $399,782 | $399,782 |
| 2019 | $210,340 | $140,000 | $0 | $350,340 | $350,340 |
| 2018 | $210,923 | $100,000 | $0 | $310,923 | $310,923 |
| 2017 | $212,089 | $100,000 | $0 | $312,089 | $312,089 |
| 2016 | $214,418 | $100,000 | $0 | $314,418 | $314,418 |
| 2015 | $212,485 | $70,000 | $0 | $282,485 | $282,485 |
| 2014 | $214,770 | $70,000 | $0 | $284,770 | $284,770 |
| 2013 | $217,054 | $70,000 | $0 | $287,054 | $287,054 |
| 2012 | $220,294 | $60,000 | $0 | $280,294 | $280,294 |
| 2011 | $222,578 | $75,000 | $0 | $297,578 | $297,578 |
| 2010 | $222,761 | $75,000 | $0 | $297,761 | $297,761 |
| 2009 | $231,905 | $71,400 | $0 | $303,305 | $303,305 |
| 2008 | $955 | $71,400 | $0 | $72,355 | $72,355 |
| 2007 | $1,057 | $59,000 | $0 | $60,057 | $60,057 |
Deed and Sales History
| 1 | 09/03/2016 | CCOMPROP | Create Community Property | DALTON, THOMAS S | DALTON, THOMAS S | | | $0.00 | 26472 | 4408873 |
| 2 | 11/10/2009 | WD | Warranty Deed | PETERSON, MICHAEL J | DALTON, THOMAS S | | | $310,000.00 | 92837 | 4263978 |
| 3 | 06/30/2009 | QCD | Quit Claim Deed | PETERSON, MARK E | PETERSON, MICHAEL J | | | $0.00 | 91535 | 4255751 |
| 4 | 01/30/2008 | WD | Warranty Deed | KIM NESJE CONSTRUCTION, INC, | PETERSON, MARK E | | | $75,000.00 | 80242 | 4220775 |
| 5 | 11/01/2006 | WD | Warranty Deed | WHITCHER, DONALD G | KIM NESJE CONSTRUCTION, INC, | | | $60,000.00 | 64857 | 4186896 |
| 6 | 08/01/1993 | WD | Warranty Deed | MULLEN, MARGUERITE J | WHITCHER, DONALD G | | | $9,000.00 | 33211 | 93016748 |
| 7 | 04/01/1979 | OTHER | Other - Misc. Documents | Unknown | MULLEN, MARGUERITE J | | | $0.00 | 58566 | 0 |
Payout Agreement
| No payout information available.. |