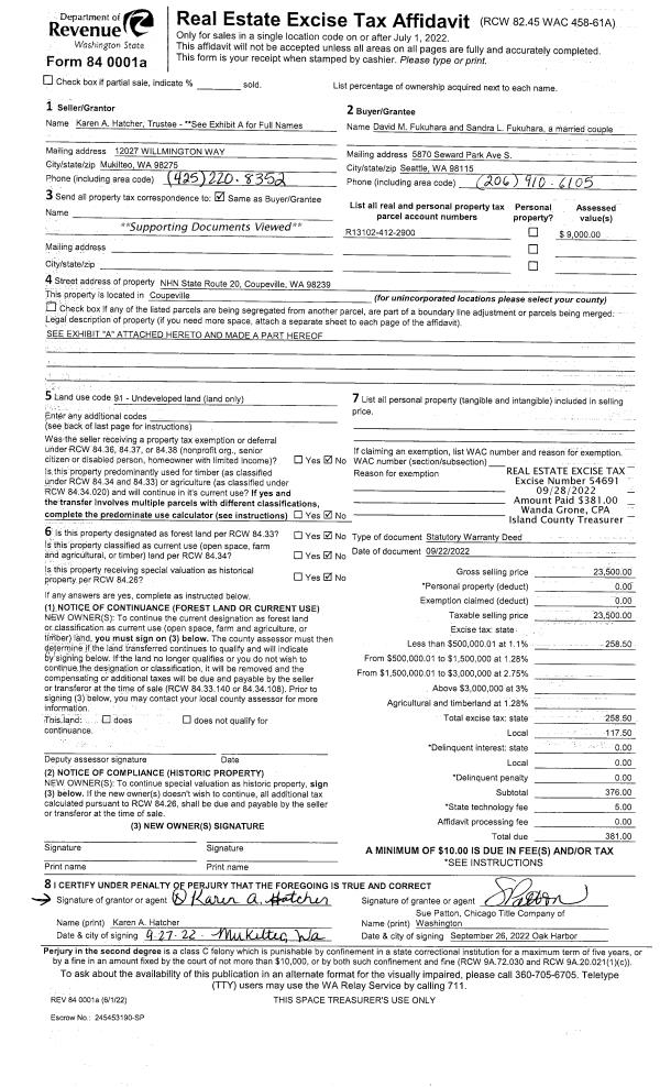
Property
Account |
| Property ID: | 220157 | Abbreviated Legal Description: | CAMANO HTS 4 LOTS 11 & 12 |
| Geographic ID: | S6260-04-00011-0 | Agent Code: | |
| Type: | Real | | |
| Tax Area: | 512 - APPRAISER-Stan/Cam Schl Dist, improved, greater than 1 acre | Land Use Code | 11 |
| Open Space: | N | DFL | N |
| Historic Property: | N | Remodel Property: | N |
| Multi-Family Redevelopment: | N | | |
| Township: | | Section: | |
| Range: | |
Location |
| Address: | 918 ROWE RD CAMANO ISLAND, WA 98282 | Mapsco: | |
| Neighborhood: | Cycle 5 | Map ID: | 484 |
| Neighborhood CD: | 5 |
Owner |
| Name: | ISBELLE, DANIEL R | Owner ID: | 263919 |
| Mailing Address: | KAITLIN S ISBELLE 918 ROWE RD CAMANO ISLAND, WA 98282 | % Ownership: | 100.0000000000% |
| | | Exemptions: | |
Taxes and Assessment Details
Values
| (+) Improvement Homesite Value: | + | $0 | |
| (+) Improvement Non-Homesite Value: | + | $150,455 | |
| (+) Land Homesite Value: | + | $0 | |
| (+) Land Non-Homesite Value: | + | $210,000 | |
| (+) Curr Use (HS): | + | $0 | $0 |
| (+) Curr Use (NHS): | + | $0 | $0 |
| | | -------------------------- | |
| (=) Market Value: | = | $360,455 | |
| (–) Productivity Loss: | – | $0 | |
| | | -------------------------- | |
| (=) Subtotal: | = | $360,455 | |
| (+) Senior Appraised Value: | + | $0 | |
| (+) Non-Senior Appraised Value: | + | $360,455 | |
| | | -------------------------- | |
| (=) Total Appraised Value: | = | $360,455 | |
| (–) Senior Exemption Loss: | – | $0 | |
| (–) Exemption Loss: | – | $0 | |
| | | -------------------------- | |
| (=) Taxable Value: | = | $360,455 | |
Taxing Jurisdiction
| Owner: | ISBELLE, DANIEL R | | |
| % Ownership: | 100.0000000000% | | |
| Total Value: | $360,455 | | |
| Tax Area: | 512 - APPRAISER-Stan/Cam Schl Dist, improved, greater than 1 acre |
| CF | Conservation Futures | 0.0316035091 | $360,455 | $360,455 | $11.39 | | |
| EMS1 | Fire & Rescue Dist #1 Camano GEN (EMS) | 0.3677864386 | $360,455 | $360,455 | $132.57 | | |
| FIRE1 | Fire & Rescue Dist #1 Camano GEN | 1.2502910536 | $360,455 | $360,455 | $450.67 | | |
| FIRE1BOND | Fire & Rescue Dist #1 Camano BOND | 0.1570001679 | $360,455 | $360,455 | $56.59 | | |
| CE | County Current Expense | 0.3708482477 | $360,455 | $360,455 | $133.67 | | |
| CR | County Roads | 0.4584763726 | $360,455 | $360,455 | $165.26 | | |
| LCIB | Library Sno-Isle BOND (Camano Island) | 0.0396325772 | $360,455 | $360,455 | $14.29 | | |
| LIB | Library Sno-Isle GEN | 0.3153421757 | $360,455 | $360,455 | $113.67 | | |
| SCH205_401 | School 205-401 Enrichment | 1.2698420524 | $360,455 | $360,455 | $457.72 | | |
| SCH205BOND | School 205-401 BOND | 0.9396497583 | $360,455 | $360,455 | $338.70 | | |
| ST | State School | 1.3035497053 | $360,455 | $360,455 | $469.87 | | |
| ST2 | State School Part 2 | 0.8169543533 | $360,455 | $360,455 | $294.48 | | |
| | Total Tax Rate: | 7.3209764117 | | | | | |
| | | | | Taxes w/Current Exemptions: | $2,638.88 | | |
| | | | | Taxes w/o Exemptions: | $2,638.88 | | |
Improvement / Building
| Improvement #1: | MANUFACTURED HOME | State Code: | Y | 1716.0 sqft | Value: | $150,455 |
| Bathrooms: | 0 | Bedrooms: | 0 | | Ceiling: | PLASTER PAINTED | Cooling: | EVAP NO DUCT | | Exterior Wall/Cover: | VINYL | Floor Covering: | CARPET 100% | | Floor Structure: | SLAB ON GRADE | Foundation: | SLAB | | Heating: | FHA ELECTRIC | Interior Finish: | PLASTER | | Plumbing Fixture Cnt: | 1 | Roof Slope: | FLAT | | Roof Structure/Cover: | CJ ALUMINIUM HEAVY |   |   |
|
| | Type | Description | Class CD | Sub Class CD | Year Built | Area |
| | BAS | BASE/MAIN FLOOR | 5 | 0 | 1989 | 1716.0 |
| | OCP | OPEN CARPORT | 5 | 0 | 1989 | 288.0 |
| | DGR | DETACHED GARAGE | 5 | 0 | 1989 | 528.0 |
| | OWC | OPEN WOOD PORCH W/STEPS/ROOF/C | 5 | 0 | 1989 | 204.0 |
| | OWP | OPEN WOOD PORCH W/STEPS | 5 | 0 | 1989 | 586.2 |
Sketch
Property Image
Land
| 1 | 17 | AC (01.01-02.00) | 1.9100 | 83199.60 | 0.00 | 0.00 | 1.00 | $210,000 | $0 |
Roll Value History
| 2026 | N/A | N/A | N/A | N/A | N/A |
| 2025 | $150,455 | $210,000 | $0 | $360,455 | $360,455 |
| 2024 | $154,791 | $210,000 | $0 | $364,791 | $364,791 |
| 2023 | $138,755 | $210,000 | $0 | $348,755 | $348,755 |
| 2022 | $127,637 | $210,000 | $0 | $337,637 | $337,637 |
| 2021 | $103,954 | $160,000 | $0 | $263,954 | $263,954 |
| 2020 | $103,897 | $150,000 | $0 | $253,897 | $253,897 |
| 2019 | $84,743 | $160,000 | $0 | $244,743 | $244,743 |
| 2018 | $85,878 | $80,000 | $0 | $165,878 | $165,878 |
| 2017 | $88,150 | $80,000 | $0 | $168,150 | $168,150 |
| 2016 | $90,420 | $75,000 | $0 | $165,420 | $165,420 |
| 2015 | $93,094 | $80,000 | $0 | $173,094 | $173,094 |
| 2014 | $96,028 | $80,000 | $0 | $176,028 | $176,028 |
| 2013 | $97,983 | $80,000 | $0 | $177,983 | $177,983 |
| 2012 | $99,939 | $83,000 | $0 | $182,939 | $182,939 |
| 2011 | $101,894 | $83,000 | $0 | $184,894 | $184,894 |
| 2010 | $102,580 | $83,000 | $0 | $185,580 | $185,580 |
| 2009 | $108,722 | $135,000 | $0 | $243,722 | $243,722 |
| 2008 | $111,200 | $136,000 | $0 | $247,200 | $247,200 |
| 2007 | $114,665 | $123,750 | $0 | $238,415 | $238,415 |
Deed and Sales History
| 1 | 10/02/2013 | WD | Warranty Deed | PIERCE, ROBERT H | ISBELLE, DANIEL R | | | $130,000.00 | 13053 | 4349295 |
| 2 | 08/01/1996 | OTHER | Other - Misc. Documents | PIERCE, ROBERT H | PIERCE, ROBERT H | | | $69,071.00 | 62918 | 0 |
| 3 | 08/01/1996 | WD | Warranty Deed | CRINES, JAMES M | PIERCE, ROBERT H | | | $66,929.00 | 62917 | 96014259 |
| 4 | 11/01/1993 | OTHER | Other - Misc. Documents | CRINES, JAMES M | CRINES, JAMES M | | | $63,756.00 | 34696 | 0 |
| 5 | 11/01/1993 | WD | Warranty Deed | LOGAN, ALLEN C | CRINES, JAMES M | | | $51,244.00 | 34672 | 93024448 |
| 6 | 07/01/1989 | OTHER | Other - Misc. Documents | LOGAN, ALLEN / | LOGAN, ALLEN C | | | $0.00 | 63221 | 89008787 |
| 7 | 06/01/1989 | OTHER | Other - Misc. Documents | LOGAN, ALLEN C | LOGAN, ALLEN / | | | $56,113.00 | 11111111 | 0 |
| 8 | 06/01/1989 | WD | Warranty Deed | COPELAND, JOHN H | LOGAN, ALLEN C | | | $20,000.00 | 92609 | 89008815 |
| 9 | 08/01/1981 | PACD | Purchaser's Assignment | KOCH, ARTHUR | COPELAND, JOHN H | | | $4,928.00 | 12386 | 386278 |
| 10 | 01/01/1900 | OTHER | Other - Misc. Documents | Unknown | KOCH, ARTHUR | | | $0.00 | 0 | 0 |
Payout Agreement
| No payout information available.. |