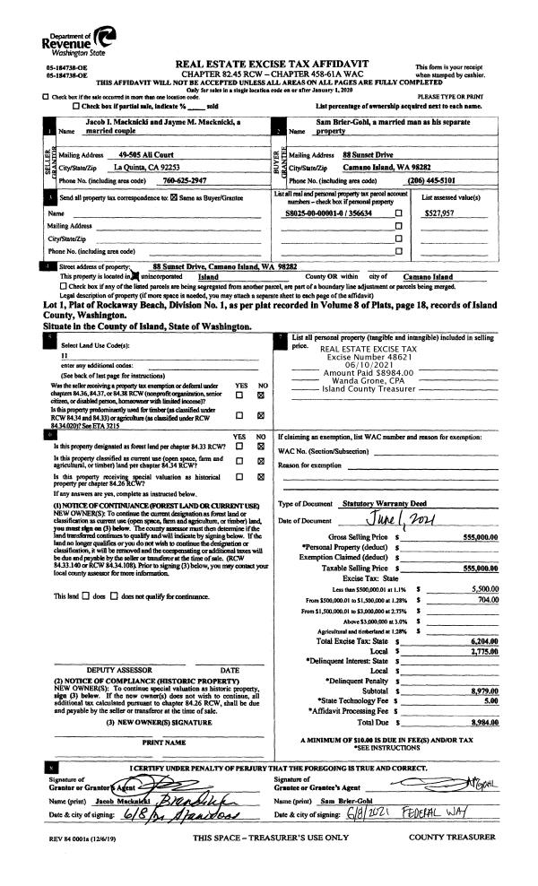
Property
Account |
| Property ID: | 220291 | Abbreviated Legal Description: | CAM LAGUNA VISTA 1 LOT 6 TGW EZ AF#87016109 |
| Geographic ID: | S6265-00-00006-0 | Agent Code: | |
| Type: | Real | | |
| Tax Area: | 510 - APPRAISER-Stan/Cam Schl Dist, improved & 1 acre or less | Land Use Code | 11 |
| Open Space: | N | DFL | N |
| Historic Property: | N | Remodel Property: | N |
| Multi-Family Redevelopment: | N | | |
| Township: | | Section: | |
| Range: | |
Location |
| Address: | 353 LAGUNA VISTA TERRACE CAMANO ISLAND, WA 98282 | Mapsco: | |
| Neighborhood: | North Camano | Map ID: | 574 |
| Neighborhood CD: | 06-C |
Owner |
| Name: | JAGIELO, THOMAS H | Owner ID: | 297956 |
| Mailing Address: | KAREN L LINDSAY 353 LAGUNA VISTA TERR CAMANO ISLAND, WA 98282 | % Ownership: | 100.0000000000% |
| | | Exemptions: | |
Taxes and Assessment Details
Values
| (+) Improvement Homesite Value: | + | $0 | |
| (+) Improvement Non-Homesite Value: | + | $363,782 | |
| (+) Land Homesite Value: | + | $0 | |
| (+) Land Non-Homesite Value: | + | $400,000 | |
| (+) Curr Use (HS): | + | $0 | $0 |
| (+) Curr Use (NHS): | + | $0 | $0 |
| | | -------------------------- | |
| (=) Market Value: | = | $763,782 | |
| (–) Productivity Loss: | – | $0 | |
| | | -------------------------- | |
| (=) Subtotal: | = | $763,782 | |
| (+) Senior Appraised Value: | + | $0 | |
| (+) Non-Senior Appraised Value: | + | $763,782 | |
| | | -------------------------- | |
| (=) Total Appraised Value: | = | $763,782 | |
| (–) Senior Exemption Loss: | – | $0 | |
| (–) Exemption Loss: | – | $0 | |
| | | -------------------------- | |
| (=) Taxable Value: | = | $763,782 | |
Taxing Jurisdiction
| Owner: | JAGIELO, THOMAS H | | |
| % Ownership: | 100.0000000000% | | |
| Total Value: | $763,782 | | |
| Tax Area: | 510 - APPRAISER-Stan/Cam Schl Dist, improved & 1 acre or less |
| CF | Conservation Futures | 0.0316035091 | $763,782 | $763,782 | $24.14 | | |
| EMS1 | Fire & Rescue Dist #1 Camano GEN (EMS) | 0.3677864386 | $763,782 | $763,782 | $280.91 | | |
| FIRE1 | Fire & Rescue Dist #1 Camano GEN | 1.2502910536 | $763,782 | $763,782 | $954.95 | | |
| FIRE1BOND | Fire & Rescue Dist #1 Camano BOND | 0.1570001679 | $763,782 | $763,782 | $119.91 | | |
| CE | County Current Expense | 0.3708482477 | $763,782 | $763,782 | $283.25 | | |
| CR | County Roads | 0.4584763726 | $763,782 | $763,782 | $350.18 | | |
| LCIB | Library Sno-Isle BOND (Camano Island) | 0.0396325772 | $763,782 | $763,782 | $30.27 | | |
| LIB | Library Sno-Isle GEN | 0.3153421757 | $763,782 | $763,782 | $240.85 | | |
| SCH205_401 | School 205-401 Enrichment | 1.2698420524 | $763,782 | $763,782 | $969.88 | | |
| SCH205BOND | School 205-401 BOND | 0.9396497583 | $763,782 | $763,782 | $717.69 | | |
| ST | State School | 1.3035497053 | $763,782 | $763,782 | $995.63 | | |
| ST2 | State School Part 2 | 0.8169543533 | $763,782 | $763,782 | $623.98 | | |
| | Total Tax Rate: | 7.3209764117 | | | | | |
| | | | | Taxes w/Current Exemptions: | $5,591.64 | | |
| | | | | Taxes w/o Exemptions: | $5,591.64 | | |
Improvement / Building
| Improvement #1: | RESIDENTIAL | State Code: | Y | 2572.0 sqft | Value: | $363,782 |
| Bathrooms: | 2.5 | Bedrooms: | 2 | | Ceiling: | DRYWALL PAINTED | Exterior Wall/Cover: | WOOD SIDING | | Floor Covering: | CARPET/VINYL 20-80 | Floor Structure: | WOOD W/SUBFLOOR | | Foundation: | CONCRETE | Heating: | WALL HEAT ELECTRIC | | Interior Finish: | DRYWALL PAINT | Plumbing Fixture Cnt: | 11 | | Roof Slope: | 4" IN 12" | Roof Structure/Cover: | CJ WOOD SHAKES |
|
| | Type | Description | Class CD | Sub Class CD | Year Built | Area |
| | BAS | BASE/MAIN FLOOR | 3 | 0 | 1986 | 1420.0 |
| | OP4 | OPEN PORCH W/CEILING-ROOF | 3 | 0 | 1986 | 480.0 |
| | AGR | ATTACHED GARAGE | 3 | 0 | 1986 | 528.0 |
| | OWP | OPEN WOOD PORCH W/STEPS | 3 | 0 | 1986 | 264.0 |
| | OWC | OPEN WOOD PORCH W/STEPS/ROOF/C | 3 | 0 | 1986 | 65.0 |
| | OWC | OPEN WOOD PORCH W/STEPS/ROOF/C | 3 | 0 | 1986 | 168.0 |
| | DWN | DOWNSTAIRS LIVING AREA | 3 | 0 | 1986 | 1152.0 |
| | OWP | OPEN WOOD PORCH W/STEPS | 3 | 0 | 1986 | 95.0 |
Sketch
Property Image
Land
| 1 | 15 | SQ (12001-21780) | 0.0000 | 0.00 | 0.00 | 0.00 | 1.00 | $400,000 | $0 |
Roll Value History
| 2026 | N/A | N/A | N/A | N/A | N/A |
| 2025 | $363,782 | $400,000 | $0 | $763,782 | $763,782 |
| 2024 | $368,371 | $400,000 | $0 | $768,371 | $768,371 |
| 2023 | $372,960 | $400,000 | $0 | $772,960 | $772,960 |
| 2022 | $308,621 | $360,000 | $0 | $668,621 | $668,621 |
| 2021 | $271,986 | $350,000 | $0 | $621,986 | $621,986 |
| 2020 | $265,908 | $200,000 | $0 | $465,908 | $465,908 |
| 2019 | $208,153 | $230,000 | $0 | $438,153 | $438,153 |
| 2018 | $208,828 | $210,000 | $0 | $418,828 | $418,828 |
| 2017 | $210,174 | $150,000 | $0 | $360,174 | $360,174 |
| 2016 | $201,465 | $130,000 | $0 | $331,465 | $331,465 |
| 2015 | $204,223 | $92,800 | $0 | $297,023 | $297,023 |
| 2014 | $206,985 | $92,800 | $0 | $299,785 | $299,785 |
| 2013 | $209,743 | $92,800 | $0 | $302,543 | $302,543 |
| 2012 | $212,504 | $92,800 | $0 | $305,304 | $305,304 |
| 2011 | $215,263 | $116,000 | $0 | $331,263 | $331,263 |
| 2010 | $221,696 | $116,000 | $0 | $337,696 | $337,696 |
| 2009 | $231,388 | $200,000 | $0 | $431,388 | $431,388 |
| 2008 | $234,447 | $200,000 | $0 | $434,447 | $434,447 |
| 2007 | $227,530 | $210,028 | $0 | $437,558 | $437,558 |
Deed and Sales History
| 1 | 01/27/2021 | WD | Warranty Deed | GROSSMAN TRUST, ROBERT J | JAGIELO, THOMAS H | | | $760,000.00 | 46803 | 4509834 |
| 2 | 06/19/2001 | WD | Warranty Deed | MCKENNA-SMITH, JOSEPH | GROSSMAN TRUST, ROBERT J | | | $279,500.00 | 12273 | 20035380 |
| 3 | 06/21/1999 | WD | Warranty Deed | KILLINGSWORTH, RICHARD W | MCKENNA-SMITH, JOSEPH | | | $255,000.00 | 92468 | 99014955 |
| 4 | 08/01/1992 | QCD | Quit Claim Deed | KILLINGSWORTH, RICHARD W | KILLINGSWORTH, RICHARD W | | | $0.00 | 23383 | 92016457 |
| 5 | 05/01/1986 | QCD | Quit Claim Deed | KILLINGSWORTH, RICHARD W | KILLINGSWORTH, RICHARD W | | | $0.00 | 61201 | 86005625 |
| 6 | 06/01/1985 | REC | Real Estate Contract | SKAHILL, WILLIAM H | KILLINGSWORTH, RICHARD W | | | $18,500.00 | 51445 | 85005864 |
| 7 | 07/01/1978 | OTHER | Other - Misc. Documents | Unknown | SKAHILL, WILLIAM H | | | $11,500.00 | 83406 | 336450 |
Payout Agreement
| No payout information available.. |