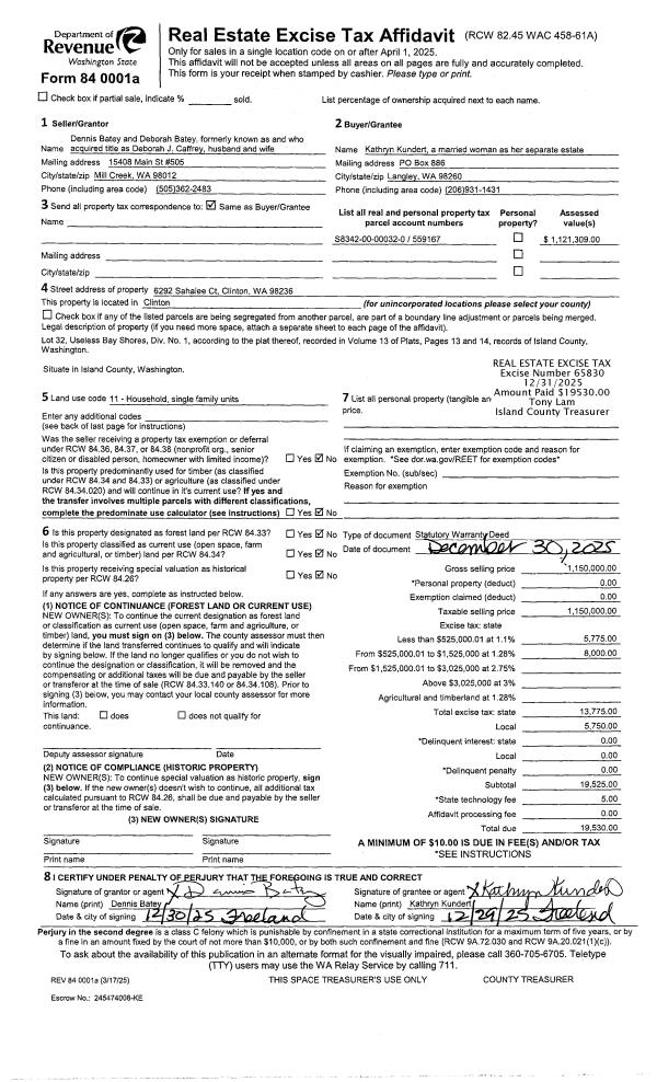
Property
Account |
| Property ID: | 2204 | Abbreviated Legal Description: | S/2 W/2 SW SW NW EX W40' SUB TO EZ (TR B SP78-60 AF#337044) |
| Geographic ID: | R13102-281-0190 | Agent Code: | |
| Type: | Real | | |
| Tax Area: | 312 - APPRAISER-Cpvl Schl Dist, outside Cpvl, improved, greater than 1 acre | Land Use Code | 11 |
| Open Space: | N | DFL | N |
| Historic Property: | N | Remodel Property: | N |
| Multi-Family Redevelopment: | N | | |
| Township: | 31 | Section: | 02 |
| Range: | R1 |
Location |
| Address: | 187 JACOBS RD COUPEVILLE, WA 98239 | Mapsco: | |
| Neighborhood: | Cycle 2 | Map ID: | 23 |
| Neighborhood CD: | 2 |
Owner |
| Name: | SIBON, GREG N | Owner ID: | 5644 |
| Mailing Address: | DANELLA L SIBON 187 JACOBS RD COUPEVILLE, WA 98239-9552 | % Ownership: | 100.0000000000% |
| | | Exemptions: | |
Taxes and Assessment Details
Values
| (+) Improvement Homesite Value: | + | $0 | |
| (+) Improvement Non-Homesite Value: | + | $334,622 | |
| (+) Land Homesite Value: | + | $0 | |
| (+) Land Non-Homesite Value: | + | $298,600 | |
| (+) Curr Use (HS): | + | $0 | $0 |
| (+) Curr Use (NHS): | + | $0 | $0 |
| | | -------------------------- | |
| (=) Market Value: | = | $633,222 | |
| (–) Productivity Loss: | – | $0 | |
| | | -------------------------- | |
| (=) Subtotal: | = | $633,222 | |
| (+) Senior Appraised Value: | + | $0 | |
| (+) Non-Senior Appraised Value: | + | $633,222 | |
| | | -------------------------- | |
| (=) Total Appraised Value: | = | $633,222 | |
| (–) Senior Exemption Loss: | – | $0 | |
| (–) Exemption Loss: | – | $0 | |
| | | -------------------------- | |
| (=) Taxable Value: | = | $633,222 | |
Taxing Jurisdiction
| Owner: | SIBON, GREG N | | |
| % Ownership: | 100.0000000000% | | |
| Total Value: | $633,222 | | |
| Tax Area: | 312 - APPRAISER-Cpvl Schl Dist, outside Cpvl, improved, greater than 1 acre |
| CF | Conservation Futures | 0.0316035091 | $633,222 | $633,222 | $20.01 | | |
| CEM2 | Cemetery #2 | 0.0095056933 | $633,222 | $633,222 | $6.02 | | |
| FIRE5 | Fire & Rescue Dist #5 C Whidbey GEN | 1.2008080668 | $633,222 | $633,222 | $760.38 | | |
| FIRE5BOND | Fire & Rescue Dist #5 C Whidbey BOND | 0.1400090713 | $633,222 | $633,222 | $88.66 | | |
| HOBOND | Hospital BOND | 0.1910887512 | $633,222 | $633,222 | $121.00 | | |
| HOGEN | Hospital GEN | 0.3902502903 | $633,222 | $633,222 | $247.12 | | |
| CE | County Current Expense | 0.3708482477 | $633,222 | $633,222 | $234.83 | | |
| CR | County Roads | 0.4584763726 | $633,222 | $633,222 | $290.32 | | |
| ISLANDEMS | Hospital GEN (EMS) | 0.5000000000 | $633,222 | $633,222 | $316.61 | | |
| LIB | Library Sno-Isle GEN | 0.3153421757 | $633,222 | $633,222 | $199.68 | | |
| LIBCAP | Library Sno-Isle BOND (Cap Fac Imp Area) | 0.0543427938 | $633,222 | $633,222 | $34.41 | | |
| POCOUP | Port of Coupeville GEN | 0.1093371703 | $633,222 | $633,222 | $69.23 | | |
| POCOUPIDD | Port of Coupeville IDD | 0.3409740022 | $633,222 | $633,222 | $215.91 | | |
| COUPSDTECH | School 204 CP (TECH) | 0.7545480007 | $633,222 | $633,222 | $477.80 | | |
| SCH204MO | School 204 Enrichment | 0.6716186034 | $633,222 | $633,222 | $425.28 | | |
| ST | State School | 1.3035497053 | $633,222 | $633,222 | $825.44 | | |
| ST2 | State School Part 2 | 0.8169543533 | $633,222 | $633,222 | $517.31 | | |
| | Total Tax Rate: | 7.6592568070 | | | | | |
| | | | | Taxes w/Current Exemptions: | $4,850.01 | | |
| | | | | Taxes w/o Exemptions: | $4,850.01 | | |
Improvement / Building
| Improvement #1: | RESIDENTIAL | State Code: | Y | 1323.0 sqft | Value: | $334,622 |
| Bathrooms: | 2.25 | Bedrooms: | 3 | | Ceiling: | DRYWALL PAINTED | Cooling: | HEAT PUMP/CONV/V | | Exterior Wall/Cover: | WOOD SIDING | Floor Covering: | HARDWOOD/CARP 20-80 | | Floor Structure: | WOOD W/SUBFLOOR | Foundation: | CONCRETE | | Interior Finish: | DRYWALL PAINT | Plumbing Fixture Cnt: | 11 | | Roof Slope: | 5" IN 12" | Roof Structure/Cover: | CJ ASPHALT |
|
| | Type | Description | Class CD | Sub Class CD | Year Built | Area |
| | BAS | BASE/MAIN FLOOR | 3 | 0 | 1986 | 1323.0 |
| | OCP | OPEN CARPORT | 3 | 0 | 1986 | 552.0 |
| | UTY | STORAGE/UTILITY | 3 | 0 | 1986 | 207.0 |
| | OWP | OPEN WOOD PORCH W/STEPS | 3 | 0 | 1986 | 266.0 |
| | OWC | OPEN WOOD PORCH W/STEPS/ROOF/C | 3 | 0 | 1986 | 192.0 |
| | oPOL | POLE BARN | 3 | 0 | 1986 | 1968.0 |
| | OP3 | OPEN PORCH W/ROOF | 3 | 0 | 1986 | 60.0 |
Sketch
Property Image
Land
| 1 | HS | HOMESITE | 1.0000 | 43560.00 | 0.00 | 0.00 | 1.00 | $220,000 | $0 |
| 2 | 91 | UNDEVELOPED LAND-METES AND BOUNDS | 1.2000 | 52272.00 | 0.00 | 0.00 | 1.00 | $78,600 | $0 |
Roll Value History
| 2026 | N/A | N/A | N/A | N/A | N/A |
| 2025 | $334,622 | $298,600 | $0 | $633,222 | $633,222 |
| 2024 | $330,465 | $280,000 | $0 | $610,465 | $610,465 |
| 2023 | $334,914 | $270,000 | $0 | $604,914 | $604,914 |
| 2022 | $307,294 | $250,000 | $0 | $557,294 | $557,294 |
| 2021 | $270,713 | $150,000 | $0 | $420,713 | $420,713 |
| 2020 | $263,362 | $150,000 | $0 | $413,362 | $413,362 |
| 2019 | $187,195 | $180,000 | $0 | $367,195 | $367,195 |
| 2018 | $160,858 | $160,000 | $0 | $320,858 | $320,858 |
| 2017 | $160,858 | $130,000 | $0 | $290,858 | $290,858 |
| 2016 | $162,537 | $120,000 | $0 | $282,537 | $282,537 |
| 2015 | $164,214 | $114,750 | $0 | $278,964 | $278,964 |
| 2014 | $165,894 | $114,750 | $0 | $280,644 | $280,644 |
| 2013 | $167,572 | $114,750 | $0 | $282,322 | $282,322 |
| 2012 | $168,458 | $114,750 | $0 | $283,208 | $283,208 |
| 2011 | $170,109 | $135,000 | $0 | $305,109 | $305,109 |
| 2010 | $175,264 | $135,000 | $0 | $310,264 | $310,264 |
| 2009 | $181,999 | $150,000 | $0 | $331,999 | $331,999 |
| 2008 | $185,144 | $124,000 | $0 | $309,144 | $309,144 |
| 2007 | $187,799 | $124,000 | $0 | $311,799 | $311,799 |
Deed and Sales History
| 1 | 03/13/2000 | WD | Warranty Deed | JASPERSON, JOHN L | SIBON, GREG N | | | $142,000.00 | 921 | 20004562 |
| 2 | 12/01/1988 | WD | Warranty Deed | BAILEY, ROBERT A | JASPERSON, JOHN L | | | $78,000.00 | 84327 | 88016088 |
| 3 | 07/01/1983 | WD | Warranty Deed | HASSLER, GILBERT D | BAILEY, ROBERT A | | | $15,000.00 | 31870 | 411860 |
| 4 | 10/01/1979 | CD | DNU - Correction Deed | Unknown | HASSLER, GILBERT D | | | $5,000.00 | 95094 | 360475 |
| 5 | 01/01/1900 | OTHER | Other - Misc. Documents | Unknown | HOUSE, TERRY D | | | $0.00 | 0 | 0 |
Payout Agreement
| No payout information available.. |