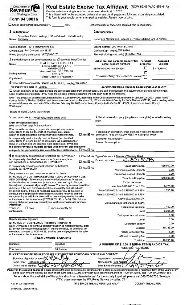
Property
Account |
| Property ID: | 220479 | Abbreviated Legal Description: | CAM LAGUNA VISTA 1 LOT 24 |
| Geographic ID: | S6265-00-00024-0 | Agent Code: | |
| Type: | Real | | |
| Tax Area: | 510 - APPRAISER-Stan/Cam Schl Dist, improved & 1 acre or less | Land Use Code | 11 |
| Open Space: | N | DFL | N |
| Historic Property: | N | Remodel Property: | N |
| Multi-Family Redevelopment: | N | | |
| Township: | | Section: | |
| Range: | |
Location |
| Address: | 375 ROBERTS WAY CAMANO ISLAND, WA 98282 | Mapsco: | |
| Neighborhood: | North Camano | Map ID: | 574 |
| Neighborhood CD: | 06-C |
Owner |
| Name: | PETERSON, BETH M | Owner ID: | 313960 |
| Mailing Address: | 2630 129TH AVE SE BELLEVUE, WA 98005 | % Ownership: | 100.0000000000% |
| | | Exemptions: | |
Taxes and Assessment Details
Values
| (+) Improvement Homesite Value: | + | $0 | |
| (+) Improvement Non-Homesite Value: | + | $189,609 | |
| (+) Land Homesite Value: | + | $0 | |
| (+) Land Non-Homesite Value: | + | $300,000 | |
| (+) Curr Use (HS): | + | $0 | $0 |
| (+) Curr Use (NHS): | + | $0 | $0 |
| | | -------------------------- | |
| (=) Market Value: | = | $489,609 | |
| (–) Productivity Loss: | – | $0 | |
| | | -------------------------- | |
| (=) Subtotal: | = | $489,609 | |
| (+) Senior Appraised Value: | + | $0 | |
| (+) Non-Senior Appraised Value: | + | $489,609 | |
| | | -------------------------- | |
| (=) Total Appraised Value: | = | $489,609 | |
| (–) Senior Exemption Loss: | – | $0 | |
| (–) Exemption Loss: | – | $0 | |
| | | -------------------------- | |
| (=) Taxable Value: | = | $489,609 | |
Taxing Jurisdiction
| Owner: | PETERSON, BETH M | | |
| % Ownership: | 100.0000000000% | | |
| Total Value: | $489,609 | | |
| Tax Area: | 510 - APPRAISER-Stan/Cam Schl Dist, improved & 1 acre or less |
| CF | Conservation Futures | 0.0316035091 | $489,609 | $489,609 | $15.47 | | |
| EMS1 | Fire & Rescue Dist #1 Camano GEN (EMS) | 0.3677864386 | $489,609 | $489,609 | $180.07 | | |
| FIRE1 | Fire & Rescue Dist #1 Camano GEN | 1.2502910536 | $489,609 | $489,609 | $612.15 | | |
| FIRE1BOND | Fire & Rescue Dist #1 Camano BOND | 0.1570001679 | $489,609 | $489,609 | $76.87 | | |
| CE | County Current Expense | 0.3708482477 | $489,609 | $489,609 | $181.57 | | |
| CR | County Roads | 0.4584763726 | $489,609 | $489,609 | $224.47 | | |
| LCIB | Library Sno-Isle BOND (Camano Island) | 0.0396325772 | $489,609 | $489,609 | $19.40 | | |
| LIB | Library Sno-Isle GEN | 0.3153421757 | $489,609 | $489,609 | $154.39 | | |
| SCH205_401 | School 205-401 Enrichment | 1.2698420524 | $489,609 | $489,609 | $621.73 | | |
| SCH205BOND | School 205-401 BOND | 0.9396497583 | $489,609 | $489,609 | $460.06 | | |
| ST | State School | 1.3035497053 | $489,609 | $489,609 | $638.23 | | |
| ST2 | State School Part 2 | 0.8169543533 | $489,609 | $489,609 | $399.99 | | |
| | Total Tax Rate: | 7.3209764117 | | | | | |
| | | | | Taxes w/Current Exemptions: | $3,584.40 | | |
| | | | | Taxes w/o Exemptions: | $3,584.40 | | |
Improvement / Building
| Improvement #1: | RESIDENTIAL | State Code: | Y | 1632.0 sqft | Value: | $189,609 |
| Bathrooms: | 2 | Bedrooms: | 2 | | Ceiling: | DRY WALL SPRAYED | Exterior Wall/Cover: | VINYL | | Floor Covering: | CARPET/VINYL 80-20 | Floor Structure: | WOOD W/SUBFLOOR | | Foundation: | CONCRETE | Heating: | BASEBOARD ELECTRIC | | Interior Finish: | DRYWALL PAINT | Plumbing Fixture Cnt: | 9 | | Roof Slope: | 4" IN 12" | Roof Structure/Cover: | BEAM ASPHALT |
|
| | Type | Description | Class CD | Sub Class CD | Year Built | Area |
| | BAS | BASE/MAIN FLOOR | 3 | 0 | 1977 | 816.0 |
| | DWN | DOWNSTAIRS LIVING AREA | 3 | 0 | 1977 | 816.0 |
| | OWP | OPEN WOOD PORCH W/STEPS | 3 | 0 | 1977 | 450.0 |
| | UTY | STORAGE/UTILITY | 3 | 0 | 1977 | 117.0 |
Sketch
Property Image
Land
| 1 | 15 | SQ (12001-21780) | 0.0000 | 0.00 | 0.00 | 0.00 | 1.00 | $300,000 | $0 |
Roll Value History
| 2026 | N/A | N/A | N/A | N/A | N/A |
| 2025 | $189,609 | $300,000 | $0 | $489,609 | $489,609 |
| 2024 | $196,411 | $300,000 | $0 | $496,411 | $496,411 |
| 2023 | $199,289 | $300,000 | $0 | $499,289 | $499,289 |
| 2022 | $174,688 | $280,000 | $0 | $454,688 | $454,688 |
| 2021 | $154,125 | $250,000 | $0 | $404,125 | $404,125 |
| 2020 | $150,655 | $180,000 | $0 | $330,655 | $330,655 |
| 2019 | $109,684 | $220,000 | $0 | $329,684 | $329,684 |
| 2018 | $110,069 | $160,000 | $0 | $270,069 | $270,069 |
| 2017 | $110,838 | $130,000 | $0 | $240,838 | $240,838 |
| 2016 | $100,685 | $110,000 | $0 | $210,685 | $210,685 |
| 2015 | $102,212 | $92,800 | $0 | $195,012 | $195,012 |
| 2014 | $103,736 | $92,800 | $0 | $196,536 | $196,536 |
| 2013 | $105,263 | $92,800 | $0 | $198,063 | $198,063 |
| 2012 | $106,788 | $92,800 | $0 | $199,588 | $199,588 |
| 2011 | $108,313 | $116,000 | $0 | $224,313 | $224,313 |
| 2010 | $109,678 | $116,000 | $0 | $225,678 | $225,678 |
| 2009 | $114,481 | $148,000 | $0 | $262,481 | $262,481 |
| 2008 | $116,111 | $148,000 | $0 | $264,111 | $264,111 |
| 2007 | $117,683 | $148,000 | $0 | $265,683 | $265,683 |
Deed and Sales History
| 1 | 09/20/2024 | QCD | Quit Claim Deed | KAUPPILA, WILLIAM | PETERSON, BETH M | | | $0.00 | 61347 | 4577378 |
| 2 | 11/04/2014 | PRD | Personal Representatives Deed | WILSON, ALICE | KAUPPILA, WILLIAM | | | $0.00 | 17424 | 4367944 |
| 3 | 11/08/2004 | PRD | Personal Representatives Deed | KAUPPILA, W R | WILSON, ALICE | | | $0.00 | 45462 | 4118630 |
| 4 | 01/01/1900 | OTHER | Other - Misc. Documents | Unknown | KAUPPILA, W R | | | $0.00 | 0 | 0 |
Payout Agreement
| No payout information available.. |