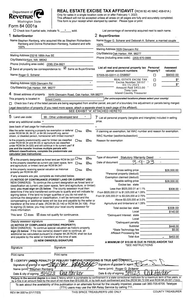
Property
Account |
| Property ID: | 221003 | Abbreviated Legal Description: | CAM LAGUNA VISTA #2 LOT 64-1: LOT 64 EX S150' SP 77-24 |
| Geographic ID: | S6265-02-00064-1 | Agent Code: | |
| Type: | Real | | |
| Tax Area: | 510 - APPRAISER-Stan/Cam Schl Dist, improved & 1 acre or less | Land Use Code | 11 |
| Open Space: | N | DFL | N |
| Historic Property: | N | Remodel Property: | N |
| Multi-Family Redevelopment: | N | | |
| Township: | | Section: | |
| Range: | |
Location |
| Address: | 325 GRANDVIEW AVE CAMANO ISLAND, WA 98282 | Mapsco: | |
| Neighborhood: | North Camano | Map ID: | 574 |
| Neighborhood CD: | 06-C |
Owner |
| Name: | PHILLIPS, RYAN W | Owner ID: | 295494 |
| Mailing Address: | 325 GRANDVIEW AVE CAMANO ISLAND, WA 98282 | % Ownership: | 100.0000000000% |
| | | Exemptions: | |
Taxes and Assessment Details
Values
| (+) Improvement Homesite Value: | + | $399,238 | |
| (+) Improvement Non-Homesite Value: | + | $0 | |
| (+) Land Homesite Value: | + | $300,000 | |
| (+) Land Non-Homesite Value: | + | $0 | |
| (+) Curr Use (HS): | + | $0 | $0 |
| (+) Curr Use (NHS): | + | $0 | $0 |
| | | -------------------------- | |
| (=) Market Value: | = | $699,238 | |
| (–) Productivity Loss: | – | $0 | |
| | | -------------------------- | |
| (=) Subtotal: | = | $699,238 | |
| (+) Senior Appraised Value: | + | $0 | |
| (+) Non-Senior Appraised Value: | + | $699,238 | |
| | | -------------------------- | |
| (=) Total Appraised Value: | = | $699,238 | |
| (–) Senior Exemption Loss: | – | $0 | |
| (–) Exemption Loss: | – | $0 | |
| | | -------------------------- | |
| (=) Taxable Value: | = | $699,238 | |
Taxing Jurisdiction
| Owner: | PHILLIPS, RYAN W | | |
| % Ownership: | 100.0000000000% | | |
| Total Value: | $699,238 | | |
| Tax Area: | 510 - APPRAISER-Stan/Cam Schl Dist, improved & 1 acre or less |
| CF | Conservation Futures | 0.0316035091 | $699,238 | $699,238 | $22.10 | | |
| EMS1 | Fire & Rescue Dist #1 Camano GEN (EMS) | 0.3677864386 | $699,238 | $699,238 | $257.17 | | |
| FIRE1 | Fire & Rescue Dist #1 Camano GEN | 1.2502910536 | $699,238 | $699,238 | $874.25 | | |
| FIRE1BOND | Fire & Rescue Dist #1 Camano BOND | 0.1570001679 | $699,238 | $699,238 | $109.78 | | |
| CE | County Current Expense | 0.3708482477 | $699,238 | $699,238 | $259.31 | | |
| CR | County Roads | 0.4584763726 | $699,238 | $699,238 | $320.58 | | |
| LCIB | Library Sno-Isle BOND (Camano Island) | 0.0396325772 | $699,238 | $699,238 | $27.71 | | |
| LIB | Library Sno-Isle GEN | 0.3153421757 | $699,238 | $699,238 | $220.50 | | |
| SCH205_401 | School 205-401 Enrichment | 1.2698420524 | $699,238 | $699,238 | $887.92 | | |
| SCH205BOND | School 205-401 BOND | 0.9396497583 | $699,238 | $699,238 | $657.04 | | |
| ST | State School | 1.3035497053 | $699,238 | $699,238 | $911.49 | | |
| ST2 | State School Part 2 | 0.8169543533 | $699,238 | $699,238 | $571.25 | | |
| | Total Tax Rate: | 7.3209764117 | | | | | |
| | | | | Taxes w/Current Exemptions: | $5,119.10 | | |
| | | | | Taxes w/o Exemptions: | $5,119.10 | | |
Improvement / Building
| Improvement #1: | RESIDENTIAL | State Code: | Y | 2492.7 sqft | Value: | $399,238 |
| Bathrooms: | 2.5 | Bedrooms: | 4 | | Ceiling: | DRYWALL PAINTED | Cooling: | HEAT PUMP/CONV/V | | Exterior Wall/Cover: | CEMENT FIBER | Floor Covering: | HARDWOOD/CARP 20-80 | | Floor Structure: | WOOD W/SUBFLOOR | Foundation: | CONCRETE | | Interior Finish: | DRYWALL PAINT | Plumbing Fixture Cnt: | 12 | | Roof Slope: | 6" IN 12" | Roof Structure/Cover: | CJ ASPHALT |
|
| | Type | Description | Class CD | Sub Class CD | Year Built | Area |
| | BAS | BASE/MAIN FLOOR | 3 | 0 | 2002 | 1517.1 |
| | OP4 | OPEN PORCH W/CEILING-ROOF | 3 | 0 | 2002 | 70.0 |
| | DGR | DETACHED GARAGE | 3 | 0 | 2002 | 1128.0 |
| | BIG | BUILT IN GARAGE | 3 | 0 | 2002 | 567.9 |
| | OWC | OPEN WOOD PORCH W/STEPS/ROOF/C | 3 | 0 | 2002 | 383.0 |
| | DWN | DOWNSTAIRS LIVING AREA | 3 | 0 | 2002 | 975.6 |
Sketch
Property Image
Land
| 1 | 15 | SQ (12001-21780) | 0.0000 | 0.00 | 0.00 | 0.00 | 1.00 | $300,000 | $0 |
Roll Value History
| 2026 | N/A | N/A | N/A | N/A | N/A |
| 2025 | $399,238 | $300,000 | $0 | $699,238 | $699,238 |
| 2024 | $404,274 | $300,000 | $0 | $704,274 | $704,274 |
| 2023 | $409,313 | $300,000 | $0 | $709,313 | $709,313 |
| 2022 | $375,190 | $280,000 | $0 | $655,190 | $655,190 |
| 2021 | $326,111 | $250,000 | $0 | $576,111 | $576,111 |
| 2020 | $318,225 | $180,000 | $0 | $498,225 | $498,225 |
| 2019 | $246,879 | $220,000 | $0 | $466,879 | $138,091 |
| 2018 | $247,604 | $160,000 | $0 | $407,604 | $138,091 |
| 2017 | $249,019 | $130,000 | $0 | $379,019 | $138,091 |
| 2016 | $246,625 | $110,000 | $0 | $356,625 | $138,091 |
| 2015 | $249,527 | $92,800 | $0 | $342,327 | $136,931 |
| 2014 | $252,427 | $92,800 | $0 | $345,227 | $138,091 |
| 2013 | $255,329 | $92,800 | $0 | $348,129 | $348,129 |
| 2012 | $258,231 | $92,800 | $0 | $351,031 | $351,031 |
| 2011 | $261,133 | $116,000 | $0 | $377,133 | $377,133 |
| 2010 | $270,371 | $116,000 | $0 | $386,371 | $386,371 |
| 2009 | $278,894 | $148,000 | $0 | $426,894 | $426,894 |
| 2008 | $282,083 | $148,000 | $0 | $430,083 | $430,083 |
| 2007 | $288,170 | $148,000 | $0 | $436,170 | $436,170 |
Deed and Sales History
| 1 | 07/21/2020 | WD | Warranty Deed | OPPRECHT, NEIL E | PHILLIPS, RYAN W | | | $575,000.00 | 43944 | 4492118 |
| 2 | 05/25/2011 | QCD | Quit Claim Deed | OPPRECHT, NEIL E | OPPRECHT, NEIL E | | | $0.00 | 4599 | 4296219 |
| 3 | 03/06/2003 | BLA | DNU - Boundary Line Adjustment | KROGUE, STEVEN R | KROGUE, STEVEN R/BEULAH V | | | $0.00 | 69732 | 4019277 |
| 4 | 08/12/2002 | WD | Warranty Deed | HAYES, MIKE | OPPRECHT, NEIL E | | | $277,000.00 | 23358 | 4029412 |
| 5 | 05/23/2002 | WD | Warranty Deed | KROGUE, STEVEN R/BEULAH V | HAYES, MIKE | | | $57,500.00 | 22230 | 4022676 |
| 6 | 10/01/1993 | WD | Warranty Deed | PHELPS, ROBERT L | KROGUE, STEVEN R | | | $29,500.00 | 34350 | 93022637 |
| 7 | 01/01/1900 | OTHER | Other - Misc. Documents | Unknown | PHELPS, ROBERT L | | | $0.00 | 0 | 0 |
Payout Agreement
| No payout information available.. |