Property
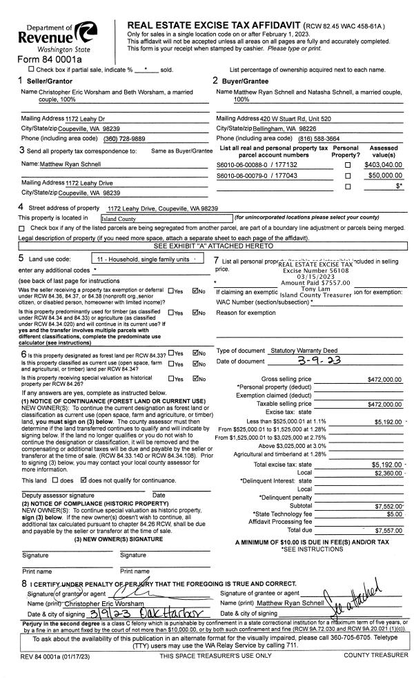
Account |
| Property ID: | 221012 | Abbreviated Legal Description: | CAM LAGUNA VISTA #2 LOT 64-2: N80' OF S150' OF LOT 64 TR B SP 77-24 |
| Geographic ID: | S6265-02-00064-2 | Agent Code: | |
| Type: | Real | | |
| Tax Area: | 510 - APPRAISER-Stan/Cam Schl Dist, improved & 1 acre or less | Land Use Code | 11 |
| Open Space: | N | DFL | N |
| Historic Property: | N | Remodel Property: | N |
| Multi-Family Redevelopment: | N | | |
| Township: | | Section: | |
| Range: | |
Location |
| Address: | 311 GRANDVIEW AVE CAMANO ISLAND, WA 98282 | Mapsco: | |
| Neighborhood: | North Camano | Map ID: | 574 |
| Neighborhood CD: | 06-C |
Owner |
| Name: | PAULL JTWROS, DEBORAH G | Owner ID: | 295522 |
| Mailing Address: | ADELE FONTAINE, JTWROS 311 GRANDVIEW AVE CAMANO ISLAND, WA 98282 | % Ownership: | 100.0000000000% |
| | | Exemptions: | |
Taxes and Assessment Details
Values
| (+) Improvement Homesite Value: | + | $0 | |
| (+) Improvement Non-Homesite Value: | + | $333,402 | |
| (+) Land Homesite Value: | + | $0 | |
| (+) Land Non-Homesite Value: | + | $300,000 | |
| (+) Curr Use (HS): | + | $0 | $0 |
| (+) Curr Use (NHS): | + | $0 | $0 |
| | | -------------------------- | |
| (=) Market Value: | = | $633,402 | |
| (–) Productivity Loss: | – | $0 | |
| | | -------------------------- | |
| (=) Subtotal: | = | $633,402 | |
| (+) Senior Appraised Value: | + | $0 | |
| (+) Non-Senior Appraised Value: | + | $633,402 | |
| | | -------------------------- | |
| (=) Total Appraised Value: | = | $633,402 | |
| (–) Senior Exemption Loss: | – | $0 | |
| (–) Exemption Loss: | – | $0 | |
| | | -------------------------- | |
| (=) Taxable Value: | = | $633,402 | |
Taxing Jurisdiction
| Owner: | PAULL JTWROS, DEBORAH G | | |
| % Ownership: | 100.0000000000% | | |
| Total Value: | $633,402 | | |
| Tax Area: | 510 - APPRAISER-Stan/Cam Schl Dist, improved & 1 acre or less |
| CF | Conservation Futures | 0.0316035091 | $633,402 | $633,402 | $20.02 | | |
| EMS1 | Fire & Rescue Dist #1 Camano GEN (EMS) | 0.3677864386 | $633,402 | $633,402 | $232.96 | | |
| FIRE1 | Fire & Rescue Dist #1 Camano GEN | 1.2502910536 | $633,402 | $633,402 | $791.94 | | |
| FIRE1BOND | Fire & Rescue Dist #1 Camano BOND | 0.1570001679 | $633,402 | $633,402 | $99.44 | | |
| CE | County Current Expense | 0.3708482477 | $633,402 | $633,402 | $234.90 | | |
| CR | County Roads | 0.4584763726 | $633,402 | $633,402 | $290.40 | | |
| LCIB | Library Sno-Isle BOND (Camano Island) | 0.0396325772 | $633,402 | $633,402 | $25.10 | | |
| LIB | Library Sno-Isle GEN | 0.3153421757 | $633,402 | $633,402 | $199.74 | | |
| SCH205_401 | School 205-401 Enrichment | 1.2698420524 | $633,402 | $633,402 | $804.32 | | |
| SCH205BOND | School 205-401 BOND | 0.9396497583 | $633,402 | $633,402 | $595.18 | | |
| ST | State School | 1.3035497053 | $633,402 | $633,402 | $825.67 | | |
| ST2 | State School Part 2 | 0.8169543533 | $633,402 | $633,402 | $517.46 | | |
| | Total Tax Rate: | 7.3209764117 | | | | | |
| | | | | Taxes w/Current Exemptions: | $4,637.13 | | |
| | | | | Taxes w/o Exemptions: | $4,637.13 | | |
Improvement / Building
| Improvement #1: | RESIDENTIAL | State Code: | Y | 2523.5 sqft | Value: | $333,402 |
| Bathrooms: | 2 | Bedrooms: | 3 | | Ceiling: | DRYWALL PAINTED | Exterior Wall/Cover: | WOOD SIDING | | Floor Covering: | CARPET/VINYL 80-20 | Floor Structure: | WOOD W/SUBFLOOR | | Foundation: | CONCRETE | Heating: | FHA ELECTRIC | | Interior Finish: | DRYWALL PAINT | Plumbing Fixture Cnt: | 11 | | Roof Slope: | 6" IN 12" | Roof Structure/Cover: | CJ ASPHALT |
|
| | Type | Description | Class CD | Sub Class CD | Year Built | Area |
| | BAS | BASE/MAIN FLOOR | 3 | 0 | 1978 | 1275.5 |
| | DGR | DETACHED GARAGE | 3 | 0 | 1978 | 672.0 |
| | OWP | OPEN WOOD PORCH W/STEPS | 3 | 0 | 1978 | 520.0 |
| | OWC | OPEN WOOD PORCH W/STEPS/ROOF/C | 3 | 0 | 1978 | 37.5 |
| | DWN | DOWNSTAIRS LIVING AREA | 3 | 0 | 1978 | 1248.0 |
Sketch
Property Image
Land
| 1 | 14 | SQ (08001-12000) | 0.0000 | 0.00 | 0.00 | 0.00 | 1.00 | $300,000 | $0 |
Roll Value History
| 2026 | N/A | N/A | N/A | N/A | N/A |
| 2025 | $333,402 | $300,000 | $0 | $633,402 | $633,402 |
| 2024 | $337,505 | $300,000 | $0 | $637,505 | $637,505 |
| 2023 | $341,608 | $300,000 | $0 | $641,608 | $641,608 |
| 2022 | $305,611 | $280,000 | $0 | $585,611 | $585,611 |
| 2021 | $268,981 | $230,000 | $0 | $498,981 | $498,981 |
| 2020 | $262,631 | $180,000 | $0 | $442,631 | $442,631 |
| 2019 | $204,613 | $220,000 | $0 | $424,613 | $424,613 |
| 2018 | $205,213 | $160,000 | $0 | $365,213 | $365,213 |
| 2017 | $206,387 | $130,000 | $0 | $336,387 | $336,387 |
| 2016 | $166,415 | $130,000 | $0 | $296,415 | $296,415 |
| 2015 | $168,828 | $92,800 | $0 | $261,628 | $261,628 |
| 2014 | $171,239 | $92,800 | $0 | $264,039 | $264,039 |
| 2013 | $173,652 | $92,800 | $0 | $266,452 | $266,452 |
| 2012 | $176,064 | $92,800 | $0 | $268,864 | $268,864 |
| 2011 | $178,475 | $116,000 | $0 | $294,475 | $294,475 |
| 2010 | $187,004 | $116,000 | $0 | $303,004 | $303,004 |
| 2009 | $195,040 | $200,000 | $0 | $395,040 | $395,040 |
| 2008 | $195,139 | $200,000 | $0 | $395,139 | $395,139 |
| 2007 | $186,955 | $210,822 | $0 | $397,777 | $397,777 |
Deed and Sales History
| 1 | 07/17/2020 | QCD | Quit Claim Deed | PAULL, DEBORAH G | PAULL JTWROS, DEBORAH G | | | $0.00 | 44119 | 4493166 |
| 2 | 05/22/2018 | WD | Warranty Deed | D & S LOVING ANIMAL RESCUE | PAULL, DEBORAH G | | | $254,000.00 | 34316 | 4445305 |
| 3 | 04/30/2015 | REC | Real Estate Contract | PETTY, CLAUDIA J | D & S LOVING ANIMAL RESCUE | | | $348,900.00 | 19426 | 4377743 |
| 4 | 09/25/2006 | WD | Warranty Deed | VANCE, CHARLTON B | PETTY, CLAUDIA J | | | $357,500.00 | 64247 | 4183293 |
| 5 | 03/06/2003 | BLA | DNU - Boundary Line Adjustment | KROGUE, STEVEN R | KROGUE, STEVEN R/BEULAH V | | | $0.00 | 69732 | 4019277 |
| 6 | 08/23/2002 | WD | Warranty Deed | KROGUE, STEVEN R/BEULAH V | VANCE, CHARLTON B | | | $188,500.00 | 23411 | 4029763 |
| 7 | 11/01/1991 | WD | Warranty Deed | SMITH, MARY F | KROGUE, STEVEN R | | | $133,000.00 | 14201 | 91018201 |
| 8 | 05/01/1989 | WD | Warranty Deed | LAUN, HERBERT E | SMITH, MARY F | | | $85,250.00 | 91984 | 89006813 |
| 9 | 08/01/1988 | QCD | Quit Claim Deed | LAUN, EARL R | LAUN, HERBERT E | | | $0.00 | 83042 | 88011369 |
| 10 | 08/01/1988 | QCD | Quit Claim Deed | LAUN, HERBERT E | LAUN, EARL R | | | $0.00 | 83069 | 88011425 |
| 11 | 01/01/1988 | WD | Warranty Deed | MURPHY, RAY L | LAUN, HERBERT E | | | $85,000.00 | 80213 | 88001011 |
| 12 | 01/01/1988 | QCD | Quit Claim Deed | LAUN, HERBERT E | LAUN, HERBERT E | | | $0.00 | 80214 | 88001012 |
| 13 | 08/01/1978 | OTHER | Other - Misc. Documents | Unknown | MURPHY, RAY L | | | $12,000.00 | 84142 | 338753 |
Payout Agreement
| No payout information available.. |