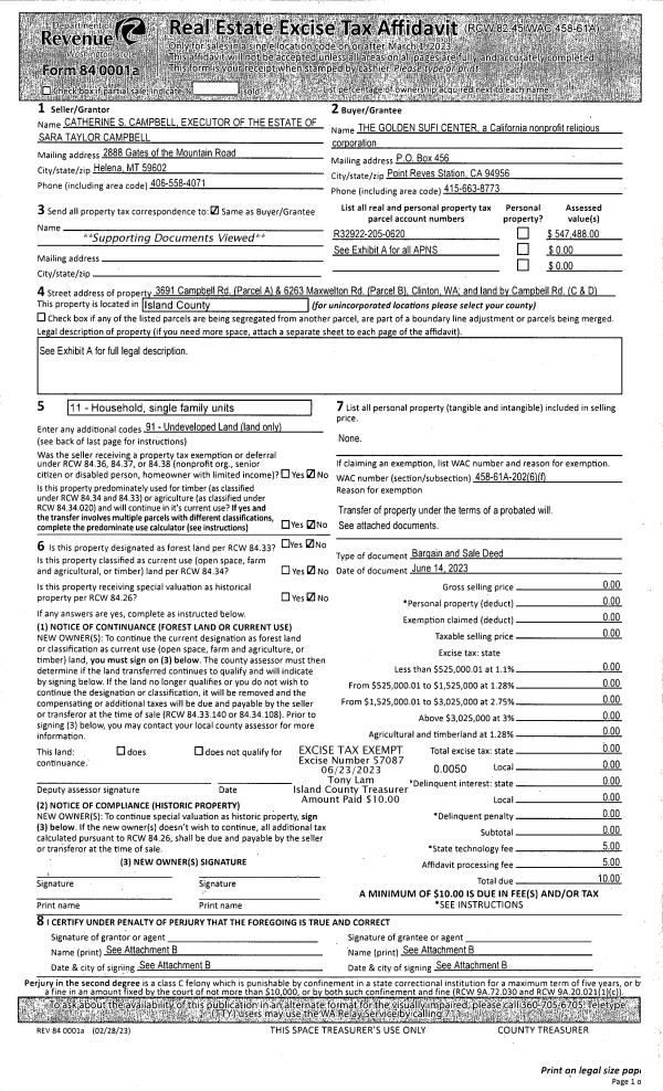
Property
Account |
| Property ID: | 221058 | Abbreviated Legal Description: | CAM LAG VISTA 2 LOT 67-1 W158' OF N73.50' TGW EZ SP 72-049 |
| Geographic ID: | S6265-02-00067-1 | Agent Code: | |
| Type: | Real | | |
| Tax Area: | 510 - APPRAISER-Stan/Cam Schl Dist, improved & 1 acre or less | Land Use Code | 11 |
| Open Space: | N | DFL | N |
| Historic Property: | N | Remodel Property: | N |
| Multi-Family Redevelopment: | N | | |
| Township: | | Section: | |
| Range: | |
Location |
| Address: | 351 SEAVIEW CT CAMANO ISLAND, WA 98282 | Mapsco: | |
| Neighborhood: | North Camano | Map ID: | 574 |
| Neighborhood CD: | 06-C |
Owner |
| Name: | JDIRA, ABDALLAH | Owner ID: | 258055 |
| Mailing Address: | LISA JDIRA 351 SEAVIEW COURT CAMANO ISLAND, WA 98282 | % Ownership: | 100.0000000000% |
| | | Exemptions: | |
Taxes and Assessment Details
Values
| (+) Improvement Homesite Value: | + | $0 | |
| (+) Improvement Non-Homesite Value: | + | $192,073 | |
| (+) Land Homesite Value: | + | $0 | |
| (+) Land Non-Homesite Value: | + | $250,000 | |
| (+) Curr Use (HS): | + | $0 | $0 |
| (+) Curr Use (NHS): | + | $0 | $0 |
| | | -------------------------- | |
| (=) Market Value: | = | $442,073 | |
| (–) Productivity Loss: | – | $0 | |
| | | -------------------------- | |
| (=) Subtotal: | = | $442,073 | |
| (+) Senior Appraised Value: | + | $0 | |
| (+) Non-Senior Appraised Value: | + | $442,073 | |
| | | -------------------------- | |
| (=) Total Appraised Value: | = | $442,073 | |
| (–) Senior Exemption Loss: | – | $0 | |
| (–) Exemption Loss: | – | $0 | |
| | | -------------------------- | |
| (=) Taxable Value: | = | $442,073 | |
Taxing Jurisdiction
| Owner: | JDIRA, ABDALLAH | | |
| % Ownership: | 100.0000000000% | | |
| Total Value: | $442,073 | | |
| Tax Area: | 510 - APPRAISER-Stan/Cam Schl Dist, improved & 1 acre or less |
| CF | Conservation Futures | 0.0316035091 | $442,073 | $442,073 | $13.97 | | |
| EMS1 | Fire & Rescue Dist #1 Camano GEN (EMS) | 0.3677864386 | $442,073 | $442,073 | $162.59 | | |
| FIRE1 | Fire & Rescue Dist #1 Camano GEN | 1.2502910536 | $442,073 | $442,073 | $552.72 | | |
| FIRE1BOND | Fire & Rescue Dist #1 Camano BOND | 0.1570001679 | $442,073 | $442,073 | $69.41 | | |
| CE | County Current Expense | 0.3708482477 | $442,073 | $442,073 | $163.94 | | |
| CR | County Roads | 0.4584763726 | $442,073 | $442,073 | $202.68 | | |
| LCIB | Library Sno-Isle BOND (Camano Island) | 0.0396325772 | $442,073 | $442,073 | $17.52 | | |
| LIB | Library Sno-Isle GEN | 0.3153421757 | $442,073 | $442,073 | $139.40 | | |
| SCH205_401 | School 205-401 Enrichment | 1.2698420524 | $442,073 | $442,073 | $561.36 | | |
| SCH205BOND | School 205-401 BOND | 0.9396497583 | $442,073 | $442,073 | $415.39 | | |
| ST | State School | 1.3035497053 | $442,073 | $442,073 | $576.26 | | |
| ST2 | State School Part 2 | 0.8169543533 | $442,073 | $442,073 | $361.15 | | |
| | Total Tax Rate: | 7.3209764117 | | | | | |
| | | | | Taxes w/Current Exemptions: | $3,236.39 | | |
| | | | | Taxes w/o Exemptions: | $3,236.39 | | |
Improvement / Building
| Improvement #1: | RESIDENTIAL | State Code: | Y | 1480.0 sqft | Value: | $192,073 |
| Bathrooms: | 1.5 | Bedrooms: | 2 | | Ceiling: | DRY WALL SPRAYED | Exterior Wall/Cover: | VINYL | | Floor Covering: | CARPET/VINYL 80-20 | Floor Structure: | WOOD W/SUBFLOOR | | Foundation: | CONCRETE | Heating: | FHA GAS | | Interior Finish: | DRYWALL PAINT | Plumbing Fixture Cnt: | 8 | | Roof Slope: | 4" IN 12" | Roof Structure/Cover: | CJ ASPHALT |
|
| | Type | Description | Class CD | Sub Class CD | Year Built | Area |
| | BAS | BASE/MAIN FLOOR | 3 | 0 | 1979 | 1000.0 |
| | DWN | DOWNSTAIRS LIVING AREA | 3 | 0 | 1979 | 480.0 |
| | BGR | BASEMENT GARAGE | 3 | 0 | 1979 | 480.0 |
| | OWP | OPEN WOOD PORCH W/STEPS | 3 | 0 | 1979 | 380.0 |
| | OWP | OPEN WOOD PORCH W/STEPS | 3 | 0 | 1979 | 32.0 |
| | OWC | OPEN WOOD PORCH W/STEPS/ROOF/C | 3 | 0 | 1979 | 19.2 |
Sketch
Property Image
Land
| 1 | 14 | SQ (08001-12000) | 0.0000 | 0.00 | 0.00 | 0.00 | 1.00 | $250,000 | $0 |
Roll Value History
| 2026 | N/A | N/A | N/A | N/A | N/A |
| 2025 | $192,073 | $250,000 | $0 | $442,073 | $442,073 |
| 2024 | $195,110 | $250,000 | $0 | $445,110 | $445,110 |
| 2023 | $198,147 | $250,000 | $0 | $448,147 | $448,147 |
| 2022 | $176,676 | $210,000 | $0 | $386,676 | $386,676 |
| 2021 | $156,019 | $200,000 | $0 | $356,019 | $356,019 |
| 2020 | $152,629 | $160,000 | $0 | $312,629 | $312,629 |
| 2019 | $111,798 | $180,000 | $0 | $291,798 | $291,798 |
| 2018 | $112,213 | $130,000 | $0 | $242,213 | $242,213 |
| 2017 | $113,041 | $120,000 | $0 | $233,041 | $233,041 |
| 2016 | $104,796 | $110,000 | $0 | $214,796 | $214,796 |
| 2015 | $106,433 | $92,800 | $0 | $199,233 | $199,233 |
| 2014 | $108,070 | $92,800 | $0 | $200,870 | $200,870 |
| 2013 | $109,707 | $92,800 | $0 | $202,507 | $202,507 |
| 2012 | $111,346 | $92,800 | $0 | $204,146 | $204,146 |
| 2011 | $112,982 | $116,000 | $0 | $228,982 | $228,982 |
| 2010 | $120,865 | $116,000 | $0 | $236,865 | $236,865 |
| 2009 | $126,205 | $148,000 | $0 | $274,205 | $274,205 |
| 2008 | $127,895 | $148,000 | $0 | $275,895 | $275,895 |
| 2007 | $129,585 | $148,000 | $0 | $277,585 | $277,585 |
Deed and Sales History
| 1 | 06/26/2012 | WD | Warranty Deed | ALLMARAS, KATHLEEN E | JDIRA, ABDALLAH | | | $161,000.00 | 8088 | 4318229 |
| 2 | 06/19/2000 | WD | Warranty Deed | SKIDMORE, LAWRENCE K | ALLMARAS, KATHLEEN E | | | $169,500.00 | 2427 | 20011540 |
| 3 | 12/01/1986 | WD | Warranty Deed | COGSWELL, RAY H | SKIDMORE, LAWRENCE K | | | $76,500.00 | 63454 | 86015596 |
| 4 | 02/01/1981 | TRUSTEED | Trustee's Deed | GIBSON, JACK F | COGSWELL, RAY H | | | $64,000.00 | 10470 | 379605 |
| 5 | 12/01/1978 | OTHER | Other - Misc. Documents | Unknown | GIBSON, JACK F | | | $15,000.00 | 90032 | 345488 |
Payout Agreement
| No payout information available.. |