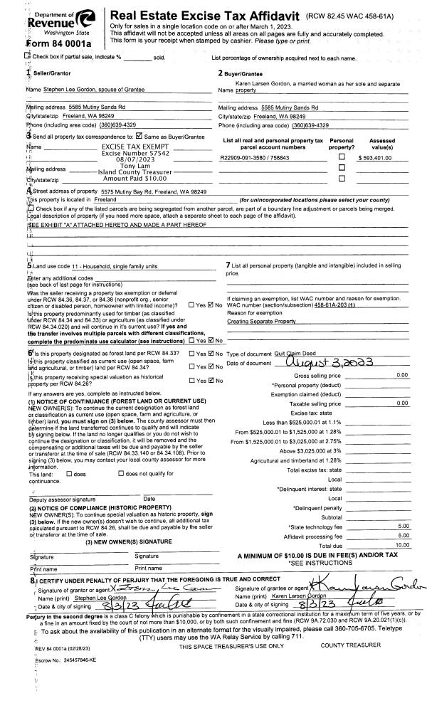
Property
Account |
| Property ID: | 221085 | Abbreviated Legal Description: | CAM LAG VISTA 2 LOT 67-4: S73.50' OF LOT 67 EX W158' TGW EZ SP 72-049 |
| Geographic ID: | S6265-02-00067-4 | Agent Code: | |
| Type: | Real | | |
| Tax Area: | 510 - APPRAISER-Stan/Cam Schl Dist, improved & 1 acre or less | Land Use Code | 11 |
| Open Space: | N | DFL | N |
| Historic Property: | N | Remodel Property: | N |
| Multi-Family Redevelopment: | N | | |
| Township: | | Section: | |
| Range: | |
Location |
| Address: | 347 GRANDVIEW AVE CAMANO ISLAND, WA 98282 | Mapsco: | |
| Neighborhood: | North Camano | Map ID: | 574 |
| Neighborhood CD: | 06-C |
Owner |
| Name: | KOOPER, TODD | Owner ID: | 272757 |
| Mailing Address: | TAMI KOOPER 347 GRANDVIEW AVE CAMANO ISLAND, WA 98282 | % Ownership: | 100.0000000000% |
| | | Exemptions: | |
Taxes and Assessment Details
Values
| (+) Improvement Homesite Value: | + | $0 | |
| (+) Improvement Non-Homesite Value: | + | $318,605 | |
| (+) Land Homesite Value: | + | $0 | |
| (+) Land Non-Homesite Value: | + | $250,000 | |
| (+) Curr Use (HS): | + | $0 | $0 |
| (+) Curr Use (NHS): | + | $0 | $0 |
| | | -------------------------- | |
| (=) Market Value: | = | $568,605 | |
| (–) Productivity Loss: | – | $0 | |
| | | -------------------------- | |
| (=) Subtotal: | = | $568,605 | |
| (+) Senior Appraised Value: | + | $0 | |
| (+) Non-Senior Appraised Value: | + | $568,605 | |
| | | -------------------------- | |
| (=) Total Appraised Value: | = | $568,605 | |
| (–) Senior Exemption Loss: | – | $0 | |
| (–) Exemption Loss: | – | $0 | |
| | | -------------------------- | |
| (=) Taxable Value: | = | $568,605 | |
Taxing Jurisdiction
| Owner: | KOOPER, TODD | | |
| % Ownership: | 100.0000000000% | | |
| Total Value: | $568,605 | | |
| Tax Area: | 510 - APPRAISER-Stan/Cam Schl Dist, improved & 1 acre or less |
| CF | Conservation Futures | 0.0316035091 | $568,605 | $568,605 | $17.97 | | |
| EMS1 | Fire & Rescue Dist #1 Camano GEN (EMS) | 0.3677864386 | $568,605 | $568,605 | $209.13 | | |
| FIRE1 | Fire & Rescue Dist #1 Camano GEN | 1.2502910536 | $568,605 | $568,605 | $710.92 | | |
| FIRE1BOND | Fire & Rescue Dist #1 Camano BOND | 0.1570001679 | $568,605 | $568,605 | $89.27 | | |
| CE | County Current Expense | 0.3708482477 | $568,605 | $568,605 | $210.87 | | |
| CR | County Roads | 0.4584763726 | $568,605 | $568,605 | $260.69 | | |
| LCIB | Library Sno-Isle BOND (Camano Island) | 0.0396325772 | $568,605 | $568,605 | $22.54 | | |
| LIB | Library Sno-Isle GEN | 0.3153421757 | $568,605 | $568,605 | $179.31 | | |
| SCH205_401 | School 205-401 Enrichment | 1.2698420524 | $568,605 | $568,605 | $722.04 | | |
| SCH205BOND | School 205-401 BOND | 0.9396497583 | $568,605 | $568,605 | $534.29 | | |
| ST | State School | 1.3035497053 | $568,605 | $568,605 | $741.20 | | |
| ST2 | State School Part 2 | 0.8169543533 | $568,605 | $568,605 | $464.52 | | |
| | Total Tax Rate: | 7.3209764117 | | | | | |
| | | | | Taxes w/Current Exemptions: | $4,162.75 | | |
| | | | | Taxes w/o Exemptions: | $4,162.75 | | |
Improvement / Building
| Improvement #1: | RESIDENTIAL | State Code: | Y | 1830.0 sqft | Value: | $318,605 |
| Bathrooms: | 2 | Bedrooms: | 3 | | Ceiling: | DRYWALL PAINTED | Exterior Wall/Cover: | CEMENT FIBER | | Floor Covering: | CARPET/VINYL 80-20 | Floor Structure: | WOOD W/SUBFLOOR | | Foundation: | CONCRETE | Heating: | WALL HEAT ELECTRIC | | Interior Finish: | DRYWALL PAINT | Plumbing Fixture Cnt: | 9 | | Roof Slope: | 5" IN 12" | Roof Structure/Cover: | CJ ASPHALT |
|
| | Type | Description | Class CD | Sub Class CD | Year Built | Area |
| | BAS | BASE/MAIN FLOOR | 3 | 0 | 2013 | 1830.0 |
| | AGR | ATTACHED GARAGE | 3 | 0 | 2013 | 456.0 |
| | OP4 | OPEN PORCH W/CEILING-ROOF | 3 | 0 | 2013 | 114.0 |
| | OP3 | OPEN PORCH W/ROOF | 3 | 0 | 2013 | 225.0 |
Sketch
Property Image
Land
| 1 | 14 | SQ (08001-12000) | 0.0000 | 0.00 | 0.00 | 0.00 | 1.00 | $250,000 | $0 |
Roll Value History
| 2026 | N/A | N/A | N/A | N/A | N/A |
| 2025 | $318,605 | $250,000 | $0 | $568,605 | $568,605 |
| 2024 | $321,282 | $250,000 | $0 | $571,282 | $571,282 |
| 2023 | $324,139 | $250,000 | $0 | $574,139 | $574,139 |
| 2022 | $293,510 | $210,000 | $0 | $503,510 | $503,510 |
| 2021 | $257,196 | $200,000 | $0 | $457,196 | $457,196 |
| 2020 | $249,886 | $160,000 | $0 | $409,886 | $409,886 |
| 2019 | $188,677 | $180,000 | $0 | $368,677 | $368,677 |
| 2018 | $189,177 | $130,000 | $0 | $319,177 | $319,177 |
| 2017 | $190,178 | $120,000 | $0 | $310,178 | $310,178 |
| 2016 | $188,800 | $90,000 | $0 | $278,800 | $278,800 |
| 2015 | $190,768 | $66,400 | $0 | $257,168 | $257,168 |
| 2014 | $192,735 | $66,400 | $0 | $259,135 | $259,135 |
| 2013 | $196,668 | $71,040 | $0 | $267,708 | $267,708 |
| 2012 | $0 | $71,040 | $0 | $71,040 | $71,040 |
| 2011 | $0 | $88,800 | $0 | $88,800 | $88,800 |
| 2010 | $0 | $88,800 | $0 | $88,800 | $88,800 |
| 2009 | $0 | $76,000 | $0 | $76,000 | $76,000 |
| 2008 | $0 | $50,000 | $0 | $50,000 | $50,000 |
| 2007 | $0 | $50,000 | $0 | $50,000 | $50,000 |
Deed and Sales History
| 1 | 11/09/2015 | QCD | Quit Claim Deed | T G KOOPER CONSTRUCTION INC | KOOPER, TODD | | | $0.00 | 22141 | 4389481 |
| 2 | 09/24/2012 | WD | Warranty Deed | BRUNNER HOMES INC | T G KOOPER CONSTRUCTION INC | | | $55,000.00 | 8972 | 4323904 |
| 3 | 07/12/2012 | WD | Warranty Deed | RAY, JAMES L | BRUNNER HOMES INC | | | $42,000.00 | 8191 | 4319046 |
| 4 | 08/07/2007 | WD | Warranty Deed | GWINN, KATHARINE S | RAY, JAMES L | | | $115,000.00 | 72718 | 4209178 |
| 5 | 05/01/1990 | DECREE | Divorce Decree/Legal Separation | GWINN, STEPHEN M | GWINN, KATHARINE S | | | $0.00 | 3032 | 90009926 |
| 6 | 07/01/1984 | WD | Warranty Deed | KOOY, VERNON E | GWINN, STEPHEN M | | | $13,800.00 | 42281 | 84001542 |
| 7 | 10/01/1979 | TRUSTEED | Trustee's Deed | ROBINSON, WILFRED | KOOY, VERNON E | | | $8,500.00 | 95295 | 361159 |
| 8 | 01/01/1900 | OTHER | Other - Misc. Documents | Unknown | ROBINSON, WILFRED | | | $0.00 | 0 | 0 |
Payout Agreement
| No payout information available.. |