Property
Account |
| Property ID: | 221138 | Abbreviated Legal Description: | CAM LAG VISTA 2 LOT 69 |
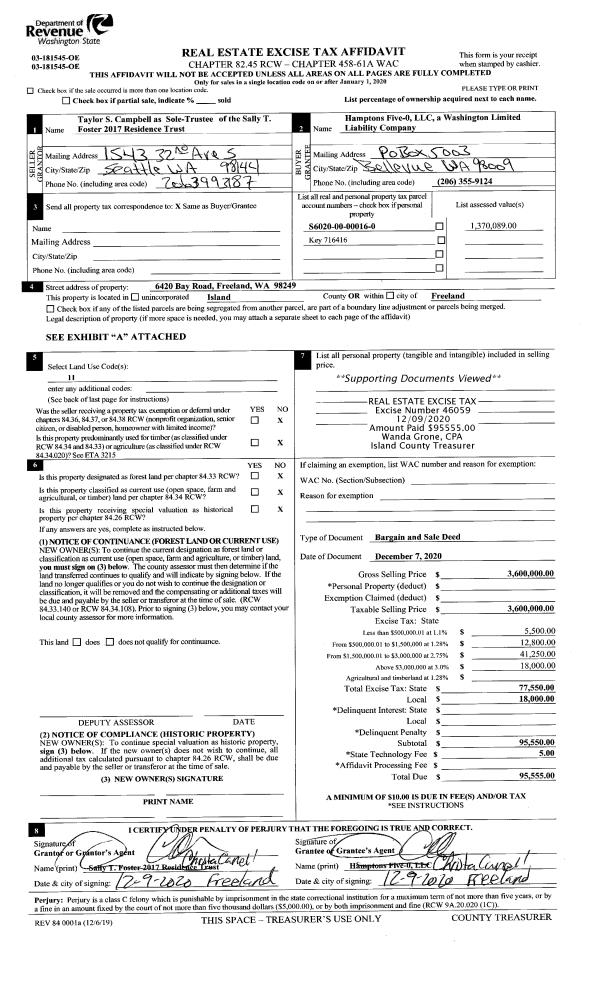
| Geographic ID: | S6265-02-00069-0 | Agent Code: | |
| Type: | Real | | |
| Tax Area: | 510 - APPRAISER-Stan/Cam Schl Dist, improved & 1 acre or less | Land Use Code | 11 |
| Open Space: | N | DFL | N |
| Historic Property: | N | Remodel Property: | N |
| Multi-Family Redevelopment: | N | | |
| Township: | | Section: | |
| Range: | |
Location |
| Address: | 371 GRANDVIEW AVE CAMANO ISLAND, WA 98282 | Mapsco: | |
| Neighborhood: | North Camano | Map ID: | 574 |
| Neighborhood CD: | 06-C |
Owner |
| Name: | SIDES, ROCHELLE | Owner ID: | 295570 |
| Mailing Address: | KENNETH SIDES 371 GRANDVIEW AVE CAMANO ISLAND, WA 98282 | % Ownership: | 100.0000000000% |
| | | Exemptions: | |
Taxes and Assessment Details
Values
| (+) Improvement Homesite Value: | + | $0 | |
| (+) Improvement Non-Homesite Value: | + | $622,111 | |
| (+) Land Homesite Value: | + | $0 | |
| (+) Land Non-Homesite Value: | + | $300,000 | |
| (+) Curr Use (HS): | + | $0 | $0 |
| (+) Curr Use (NHS): | + | $0 | $0 |
| | | -------------------------- | |
| (=) Market Value: | = | $922,111 | |
| (–) Productivity Loss: | – | $0 | |
| | | -------------------------- | |
| (=) Subtotal: | = | $922,111 | |
| (+) Senior Appraised Value: | + | $0 | |
| (+) Non-Senior Appraised Value: | + | $922,111 | |
| | | -------------------------- | |
| (=) Total Appraised Value: | = | $922,111 | |
| (–) Senior Exemption Loss: | – | $0 | |
| (–) Exemption Loss: | – | $0 | |
| | | -------------------------- | |
| (=) Taxable Value: | = | $922,111 | |
Taxing Jurisdiction
| Owner: | SIDES, ROCHELLE | | |
| % Ownership: | 100.0000000000% | | |
| Total Value: | $922,111 | | |
| Tax Area: | 510 - APPRAISER-Stan/Cam Schl Dist, improved & 1 acre or less |
| CF | Conservation Futures | 0.0316035091 | $922,111 | $922,111 | $29.14 | | |
| EMS1 | Fire & Rescue Dist #1 Camano GEN (EMS) | 0.3677864386 | $922,111 | $922,111 | $339.14 | | |
| FIRE1 | Fire & Rescue Dist #1 Camano GEN | 1.2502910536 | $922,111 | $922,111 | $1,152.91 | | |
| FIRE1BOND | Fire & Rescue Dist #1 Camano BOND | 0.1570001679 | $922,111 | $922,111 | $144.77 | | |
| CE | County Current Expense | 0.3708482477 | $922,111 | $922,111 | $341.96 | | |
| CR | County Roads | 0.4584763726 | $922,111 | $922,111 | $422.77 | | |
| LCIB | Library Sno-Isle BOND (Camano Island) | 0.0396325772 | $922,111 | $922,111 | $36.55 | | |
| LIB | Library Sno-Isle GEN | 0.3153421757 | $922,111 | $922,111 | $290.78 | | |
| SCH205_401 | School 205-401 Enrichment | 1.2698420524 | $922,111 | $922,111 | $1,170.94 | | |
| SCH205BOND | School 205-401 BOND | 0.9396497583 | $922,111 | $922,111 | $866.46 | | |
| ST | State School | 1.3035497053 | $922,111 | $922,111 | $1,202.02 | | |
| ST2 | State School Part 2 | 0.8169543533 | $922,111 | $922,111 | $753.32 | | |
| | Total Tax Rate: | 7.3209764117 | | | | | |
| | | | | Taxes w/Current Exemptions: | $6,750.76 | | |
| | | | | Taxes w/o Exemptions: | $6,750.76 | | |
Improvement / Building
| Improvement #1: | RESIDENTIAL | State Code: | Y | 3714.0 sqft | Value: | $622,111 |
| Bathrooms: | 2.5 | Bedrooms: | 5 | | Ceiling: | DRYWALL PAINTED | Cooling: | HEAT PUMP/CONV/V | | Exterior Wall/Cover: | WOOD SIDING | Floor Covering: | HARDWOOD/CARP 60-40 | | Floor Structure: | WOOD W/SUBFLOOR | Foundation: | CONCRETE | | Interior Finish: | DRYWALL PAINT | Plumbing Fixture Cnt: | 15 | | Roof Slope: | 5" IN 12" | Roof Structure/Cover: | CJ ASPHALT |
|
| | Type | Description | Class CD | Sub Class CD | Year Built | Area |
| | BAS | BASE/MAIN FLOOR | 4 | 0 | 1976 | 1908.0 |
| | OP1 | OPEN PORCH SLAB | 4 | 0 | 1976 | 798.0 |
| | DGR | DETACHED GARAGE | 4 | 0 | 1976 | 1152.0 |
| | DGR | DETACHED GARAGE | 4 | 0 | 1976 | 864.0 |
| | OWP | OPEN WOOD PORCH W/STEPS | 4 | 0 | 1976 | 718.0 |
| | DWN | DOWNSTAIRS LIVING AREA | 4 | 0 | 1976 | 1806.0 |
Sketch
Property Image
Land
| 1 | 16 | AC (00.51-01.00) | 0.0000 | 0.00 | 0.00 | 0.00 | 1.00 | $300,000 | $0 |
Roll Value History
| 2026 | N/A | N/A | N/A | N/A | N/A |
| 2025 | $622,111 | $300,000 | $0 | $922,111 | $922,111 |
| 2024 | $629,583 | $300,000 | $0 | $929,583 | $929,583 |
| 2023 | $637,055 | $300,000 | $0 | $937,055 | $937,055 |
| 2022 | $481,248 | $280,000 | $0 | $761,248 | $761,248 |
| 2021 | $423,972 | $250,000 | $0 | $673,972 | $673,972 |
| 2020 | $414,401 | $180,000 | $0 | $594,401 | $594,401 |
| 2019 | $335,029 | $220,000 | $0 | $555,029 | $555,029 |
| 2018 | $336,087 | $160,000 | $0 | $496,087 | $496,087 |
| 2017 | $338,199 | $130,000 | $0 | $468,199 | $468,199 |
| 2016 | $336,521 | $110,000 | $0 | $446,521 | $446,521 |
| 2015 | $340,780 | $92,800 | $0 | $433,580 | $433,580 |
| 2014 | $345,040 | $92,800 | $0 | $437,840 | $437,840 |
| 2013 | $349,300 | $92,800 | $0 | $442,100 | $442,100 |
| 2012 | $353,559 | $92,800 | $0 | $446,359 | $446,359 |
| 2011 | $357,819 | $116,000 | $0 | $473,819 | $473,819 |
| 2010 | $365,127 | $116,000 | $0 | $481,127 | $481,127 |
| 2009 | $380,339 | $148,000 | $0 | $528,339 | $528,339 |
| 2008 | $382,413 | $148,000 | $0 | $530,413 | $530,413 |
| 2007 | $386,619 | $148,000 | $0 | $534,619 | $534,619 |
Deed and Sales History
| 1 | 07/31/2020 | WD | Warranty Deed | JARRETT TRUSTEE, PAUL W | SIDES, ROCHELLE | | | $651,000.00 | 44165 | 4493353 |
| 2 | 03/09/2011 | QCD | Quit Claim Deed | JARRETT TRUSTEE, PAUL W | JARRETT TRUSTEE, PAUL W | | | $0.00 | 3881 | 4292301 |
| 3 | 10/28/2010 | QCD | Quit Claim Deed | JARRETT, PAUL | JARRETT TRUSTEE, PAUL W | | | $0.00 | 2757 | 4284080 |
| 4 | 07/22/2005 | WD | Warranty Deed | TIILTON, EDWARD R | JARRETT, PAUL | | | $539,900.00 | 53584 | 4142062 |
| 5 | 06/15/1998 | WD | Warranty Deed | JOHNSON, RICHARD E | TIILTON, EDWARD R | | | $235,000.00 | 82298 | 99011987 |
| 6 | 01/01/1990 | WD | Warranty Deed | BENEDICT, PHILLIP W | JOHNSON, RICHARD E | | | $150,000.00 | 621 | 90002028 |
| 7 | 01/01/1900 | OTHER | Other - Misc. Documents | Unknown | TILTON, EDWARD R | | | $0.00 | 82298 | 98011987 |
Payout Agreement
| No payout information available.. |