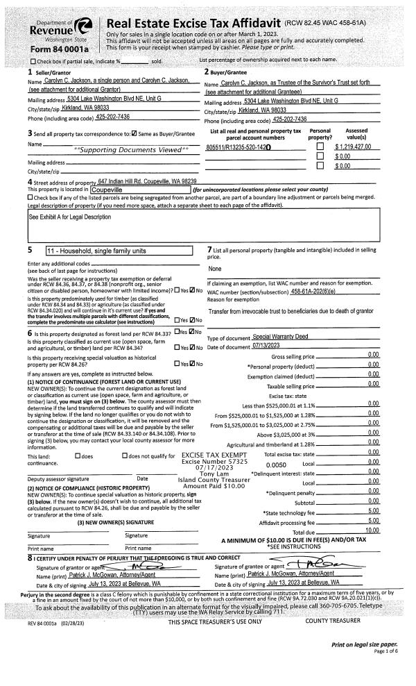
Property
Account |
| Property ID: | 221227 | Abbreviated Legal Description: | CAM LAG VISTA 2 LOT 78 |
| Geographic ID: | S6265-02-00078-0 | Agent Code: | |
| Type: | Real | | |
| Tax Area: | 510 - APPRAISER-Stan/Cam Schl Dist, improved & 1 acre or less | Land Use Code | 11 |
| Open Space: | N | DFL | N |
| Historic Property: | N | Remodel Property: | N |
| Multi-Family Redevelopment: | N | | |
| Township: | | Section: | |
| Range: | |
Location |
| Address: | 320 MELISSA ST CAMANO ISLAND, WA 98282 | Mapsco: | |
| Neighborhood: | North Camano | Map ID: | 574 |
| Neighborhood CD: | 06-C |
Owner |
| Name: | SCHULTZ, RICHARD C | Owner ID: | 289423 |
| Mailing Address: | KAARON L SCHULTZ 320 MELISSA ST CAMANO ISLAND, WA 98282 | % Ownership: | 100.0000000000% |
| | | Exemptions: | SNR/DSBL |
Taxes and Assessment Details
Values
| (+) Improvement Homesite Value: | + | $269,827 | |
| (+) Improvement Non-Homesite Value: | + | $0 | |
| (+) Land Homesite Value: | + | $250,000 | |
| (+) Land Non-Homesite Value: | + | $0 | |
| (+) Curr Use (HS): | + | $0 | $0 |
| (+) Curr Use (NHS): | + | $0 | $0 |
| | | -------------------------- | |
| (=) Market Value: | = | $519,827 | |
| (–) Productivity Loss: | – | $0 | |
| | | -------------------------- | |
| (=) Subtotal: | = | $519,827 | |
| (+) Senior Appraised Value: | + | $366,248 | |
| (+) Non-Senior Appraised Value: | + | $0 | |
| | | -------------------------- | |
| (=) Total Appraised Value: | = | $366,248 | |
| (–) Senior Exemption Loss: | – | $219,749 | |
| (–) Exemption Loss: | – | $0 | |
| | | -------------------------- | |
| (=) Taxable Value: | = | $146,499 | |
Taxing Jurisdiction
| Owner: | SCHULTZ, RICHARD C | | |
| % Ownership: | 100.0000000000% | | |
| Total Value: | $519,827 | | |
| Tax Area: | 510 - APPRAISER-Stan/Cam Schl Dist, improved & 1 acre or less |
| CF | Conservation Futures | 0.0316035091 | $519,827 | $146,499 | $4.63 | | |
| EMS1 | Fire & Rescue Dist #1 Camano GEN (EMS) | 0.3677864386 | $519,827 | $146,499 | $53.88 | | |
| FIRE1 | Fire & Rescue Dist #1 Camano GEN | 1.2502910536 | $519,827 | $146,499 | $183.17 | | |
| FIRE1BOND | Fire & Rescue Dist #1 Camano BOND | 0.0000000000 | $519,827 | $0 | $0.00 | | |
| CE | County Current Expense | 0.3708482477 | $519,827 | $146,499 | $54.33 | | |
| CR | County Roads | 0.4584763726 | $519,827 | $146,499 | $67.17 | | |
| LCIB | Library Sno-Isle BOND (Camano Island) | 0.0000000000 | $519,827 | $0 | $0.00 | | |
| LIB | Library Sno-Isle GEN | 0.3153421757 | $519,827 | $146,499 | $46.20 | | |
| SCH205_401 | School 205-401 Enrichment | 0.0000000000 | $519,827 | $0 | $0.00 | | |
| SCH205BOND | School 205-401 BOND | 0.0000000000 | $519,827 | $0 | $0.00 | | |
| ST | State School | 1.3035497053 | $519,827 | $146,499 | $190.97 | | |
| ST2 | State School Part 2 | 0.0000000000 | $519,827 | $0 | $0.00 | | |
| | Total Tax Rate: | 4.0978975026 | | | | | |
| | | | | Taxes w/Current Exemptions: | $600.35 | | |
| | | | | Taxes w/o Exemptions: | $3,805.65 | | |
Improvement / Building
| Improvement #1: | RESIDENTIAL | State Code: | Y | 1434.0 sqft | Value: | $269,827 |
| Bathrooms: | 2 | Bedrooms: | 3 | | Ceiling: | DRYWALL PAINTED | Exterior Wall/Cover: | SHINGLE | | Floor Covering: | CARPET/VINYL 80-20 | Floor Structure: | WOOD W/SUBFLOOR | | Foundation: | CONCRETE | Heating: | WALL HEAT ELECTRIC | | Interior Finish: | DRYWALL PAINT | Plumbing Fixture Cnt: | 9 | | Roof Slope: | 6" IN 12" | Roof Structure/Cover: | CJ ASPHALT |
|
| | Type | Description | Class CD | Sub Class CD | Year Built | Area |
| | BAS | BASE/MAIN FLOOR | 3 | 0 | 1990 | 1434.0 |
| | AGR | ATTACHED GARAGE | 3 | 0 | 1990 | 440.0 |
| | UTY | STORAGE/UTILITY | 3 | 0 | 1990 | 48.0 |
| | OWP | OPEN WOOD PORCH W/STEPS | 3 | 0 | 1990 | 140.0 |
| | ENP | ENCLOSED PORCH | 3 | 0 | 1990 | 180.0 |
| | OWC | OPEN WOOD PORCH W/STEPS/ROOF/C | 3 | 0 | 1990 | 15.0 |
Sketch
Property Image
Land
| 1 | 14 | SQ (08001-12000) | 0.0000 | 0.00 | 0.00 | 0.00 | 1.00 | $250,000 | $0 |
Roll Value History
| 2026 | N/A | N/A | N/A | N/A | N/A |
| 2025 | $269,827 | $250,000 | $0 | $519,827 | $146,499 |
| 2024 | $273,321 | $250,000 | $0 | $523,321 | $146,499 |
| 2023 | $276,813 | $250,000 | $0 | $526,813 | $146,499 |
| 2022 | $240,317 | $210,000 | $0 | $450,317 | $296,248 |
| 2021 | $211,642 | $200,000 | $0 | $411,642 | $296,248 |
| 2020 | $206,248 | $160,000 | $0 | $366,248 | $296,248 |
| 2019 | $149,377 | $180,000 | $0 | $329,377 | $329,377 |
| 2018 | $149,837 | $130,000 | $0 | $279,837 | $279,837 |
| 2017 | $150,757 | $120,000 | $0 | $270,757 | $270,757 |
| 2016 | $124,843 | $90,000 | $0 | $214,843 | $214,843 |
| 2015 | $126,507 | $66,400 | $0 | $192,907 | $192,907 |
| 2014 | $128,170 | $66,400 | $0 | $194,570 | $194,570 |
| 2013 | $129,836 | $66,400 | $0 | $196,236 | $196,236 |
| 2012 | $131,500 | $66,400 | $0 | $197,900 | $197,900 |
| 2011 | $133,165 | $83,000 | $0 | $216,165 | $216,165 |
| 2010 | $132,897 | $83,000 | $0 | $215,897 | $215,897 |
| 2009 | $138,664 | $100,000 | $0 | $238,664 | $238,664 |
| 2008 | $140,407 | $100,000 | $0 | $240,407 | $240,407 |
| 2007 | $142,148 | $100,000 | $0 | $242,148 | $242,148 |
Deed and Sales History
| 1 | 04/23/2019 | WD | Warranty Deed | VERD, E THOMAS AND TERESA | SCHULTZ, RICHARD C | | | $363,000.00 | 38156 | 4461789 |
| 2 | 09/03/1998 | WD | Warranty Deed | SPENCER, HAMPTON E | VERD, E THOMAS AND TERESA | | | $139,000.00 | 83608 | 98018851 |
| 3 | 09/01/1992 | QCD | Quit Claim Deed | SPENCER, HAMPTON E | SPENCER, HAMPTON E | | | $0.00 | 23572 | 92017327 |
| 4 | 09/01/1992 | QCD | Quit Claim Deed | SPENCER, HAMPTON E | SPENCER, HAMPTON E | | | $0.00 | 24408 | 92021572 |
| 5 | 06/01/1991 | QCD | Quit Claim Deed | SPENCER, HAMPTON E | SPENCER, HAMPTON E | | | $0.00 | 12125 | 91009011 |
| 6 | 12/01/1989 | WD | Warranty Deed | NESJE, KIM W | SPENCER, HAMPTON E | | | $99,500.00 | 95914 | 89019037 |
| 7 | 04/01/1986 | WD | Warranty Deed | REAL, DEVELOP C | NESJE, KIM W | | | $7,000.00 | 60998 | 86004671 |
| 8 | 01/01/1900 | OTHER | Other - Misc. Documents | Unknown | REAL, DEVELOP C | | | $0.00 | 0 | 0 |
Payout Agreement
| No payout information available.. |