Property
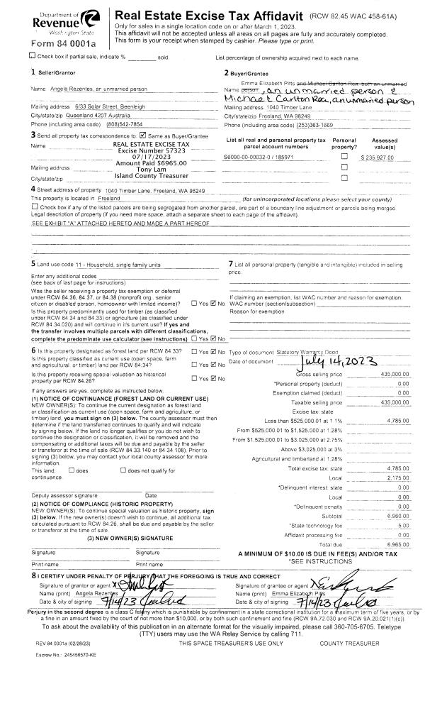
Account |
| Property ID: | 221254 | Abbreviated Legal Description: | CAM LAG VISTA 2 LOT 81 |
| Geographic ID: | S6265-02-00081-0 | Agent Code: | |
| Type: | Real | | |
| Tax Area: | 510 - APPRAISER-Stan/Cam Schl Dist, improved & 1 acre or less | Land Use Code | 11 |
| Open Space: | N | DFL | N |
| Historic Property: | N | Remodel Property: | N |
| Multi-Family Redevelopment: | N | | |
| Township: | | Section: | |
| Range: | |
Location |
| Address: | 306 MELISSA ST CAMANO ISLAND, WA 98282 | Mapsco: | |
| Neighborhood: | North Camano | Map ID: | 574 |
| Neighborhood CD: | 06-C |
Owner |
| Name: | KNIGHT, JAMES | Owner ID: | 268869 |
| Mailing Address: | DEBORAH KNIGHT PO BOX 1516 DUVALL, WA 98019 | % Ownership: | 100.0000000000% |
| | | Exemptions: | |
Taxes and Assessment Details
Values
| (+) Improvement Homesite Value: | + | $0 | |
| (+) Improvement Non-Homesite Value: | + | $180,716 | |
| (+) Land Homesite Value: | + | $0 | |
| (+) Land Non-Homesite Value: | + | $300,000 | |
| (+) Curr Use (HS): | + | $0 | $0 |
| (+) Curr Use (NHS): | + | $0 | $0 |
| | | -------------------------- | |
| (=) Market Value: | = | $480,716 | |
| (–) Productivity Loss: | – | $0 | |
| | | -------------------------- | |
| (=) Subtotal: | = | $480,716 | |
| (+) Senior Appraised Value: | + | $0 | |
| (+) Non-Senior Appraised Value: | + | $480,716 | |
| | | -------------------------- | |
| (=) Total Appraised Value: | = | $480,716 | |
| (–) Senior Exemption Loss: | – | $0 | |
| (–) Exemption Loss: | – | $0 | |
| | | -------------------------- | |
| (=) Taxable Value: | = | $480,716 | |
Taxing Jurisdiction
| Owner: | KNIGHT, JAMES | | |
| % Ownership: | 100.0000000000% | | |
| Total Value: | $480,716 | | |
| Tax Area: | 510 - APPRAISER-Stan/Cam Schl Dist, improved & 1 acre or less |
| CF | Conservation Futures | 0.0316035091 | $480,716 | $480,716 | $15.19 | | |
| EMS1 | Fire & Rescue Dist #1 Camano GEN (EMS) | 0.3677864386 | $480,716 | $480,716 | $176.80 | | |
| FIRE1 | Fire & Rescue Dist #1 Camano GEN | 1.2502910536 | $480,716 | $480,716 | $601.03 | | |
| FIRE1BOND | Fire & Rescue Dist #1 Camano BOND | 0.1570001679 | $480,716 | $480,716 | $75.47 | | |
| CE | County Current Expense | 0.3708482477 | $480,716 | $480,716 | $178.27 | | |
| CR | County Roads | 0.4584763726 | $480,716 | $480,716 | $220.40 | | |
| LCIB | Library Sno-Isle BOND (Camano Island) | 0.0396325772 | $480,716 | $480,716 | $19.05 | | |
| LIB | Library Sno-Isle GEN | 0.3153421757 | $480,716 | $480,716 | $151.59 | | |
| SCH205_401 | School 205-401 Enrichment | 1.2698420524 | $480,716 | $480,716 | $610.43 | | |
| SCH205BOND | School 205-401 BOND | 0.9396497583 | $480,716 | $480,716 | $451.70 | | |
| ST | State School | 1.3035497053 | $480,716 | $480,716 | $626.64 | | |
| ST2 | State School Part 2 | 0.8169543533 | $480,716 | $480,716 | $392.72 | | |
| | Total Tax Rate: | 7.3209764117 | | | | | |
| | | | | Taxes w/Current Exemptions: | $3,519.29 | | |
| | | | | Taxes w/o Exemptions: | $3,519.29 | | |
Improvement / Building
| Improvement #1: | RESIDENTIAL | State Code: | Y | 972.0 sqft | Value: | $180,716 |
| Bathrooms: | 1 | Bedrooms: | 2 | | Ceiling: | TONGUE & GROOVE | Cooling: | HEAT PUMP/CONV/V | | Exterior Wall/Cover: | PLY/HARDBOARD T-111 | Floor Covering: | HARDWOOD/CARP 20-80 | | Floor Structure: | WOOD W/SUBFLOOR | Foundation: | CONCRETE | | Interior Finish: | DRYWALL PAINT | Plumbing Fixture Cnt: | 6 | | Roof Slope: | 10" IN 12" | Roof Structure/Cover: | BEAM ALUMINUM HEAVY |
|
| | Type | Description | Class CD | Sub Class CD | Year Built | Area |
| | BAS | BASE/MAIN FLOOR | 3 | 0 | 1977 | 768.0 |
| | OWP | OPEN WOOD PORCH W/STEPS | 3 | 0 | 1977 | 913.0 |
| | LOF | LOFT | 3 | 0 | 1977 | 204.0 |
| | CPD | OPEN CARPORT DIRT FLOOR | 3 | 0 | 1977 | 220.0 |
| | UTY | STORAGE/UTILITY | 3 | 0 | 1977 | 60.0 |
Sketch
Property Image
Land
| 1 | 14 | SQ (08001-12000) | 0.0000 | 0.00 | 0.00 | 0.00 | 1.00 | $300,000 | $0 |
Roll Value History
| 2026 | N/A | N/A | N/A | N/A | N/A |
| 2025 | $180,716 | $300,000 | $0 | $480,716 | $480,716 |
| 2024 | $183,053 | $300,000 | $0 | $483,053 | $483,053 |
| 2023 | $185,393 | $300,000 | $0 | $485,393 | $485,393 |
| 2022 | $163,398 | $280,000 | $0 | $443,398 | $443,398 |
| 2021 | $143,901 | $230,000 | $0 | $373,901 | $373,901 |
| 2020 | $140,348 | $180,000 | $0 | $320,348 | $320,348 |
| 2019 | $101,156 | $220,000 | $0 | $321,156 | $321,156 |
| 2018 | $101,467 | $160,000 | $0 | $261,467 | $261,467 |
| 2017 | $102,089 | $130,000 | $0 | $232,089 | $232,089 |
| 2016 | $100,379 | $130,000 | $0 | $230,379 | $230,379 |
| 2015 | $98,852 | $92,800 | $0 | $191,652 | $191,652 |
| 2014 | $79,228 | $92,800 | $0 | $172,028 | $172,028 |
| 2013 | $80,359 | $92,800 | $0 | $173,159 | $173,159 |
| 2012 | $81,491 | $92,800 | $0 | $174,291 | $174,291 |
| 2011 | $82,623 | $116,000 | $0 | $198,623 | $198,623 |
| 2010 | $87,800 | $116,000 | $0 | $203,800 | $203,800 |
| 2009 | $91,653 | $200,000 | $0 | $291,653 | $291,653 |
| 2008 | $93,044 | $200,000 | $0 | $293,044 | $293,044 |
| 2007 | $88,324 | $206,089 | $0 | $294,413 | $294,413 |
Deed and Sales History
| 1 | 12/23/2014 | WD | Warranty Deed | JOHNSON, MARC O | KNIGHT, JAMES | | | $201,900.00 | 18056 | 4370901 |
| 2 | 07/21/1998 | WD | Warranty Deed | RUTLAND-DRURY, MELISSA K | JOHNSON, MARC O | | | $125,500.00 | 82590 | 98015202 |
| 3 | 07/01/1995 | QCD | Quit Claim Deed | RUTLAND-DRURY, MELISSA K | RUTLAND-DRURY, MELISSA K | | | $0.00 | 52653 | 95012157 |
| 4 | 06/01/1994 | WD | Warranty Deed | WECKESSER, CRAIG | RUTLAND-DRURY, MELISSA K | | | $98,500.00 | 42626 | 94014549 |
| 5 | 03/01/1986 | WD | Warranty Deed | ONDRACEK, CONNIE M | WECKESSER, CRAIG | | | $45,000.00 | 60613 | 86002980 |
| 6 | 04/01/1978 | OTHER | Other - Misc. Documents | WYANT, CONNIE M | ONDRACEK, CONNIE M | | | $0.00 | 58946 | 0 |
| 7 | 10/01/1976 | CD | DNU - Correction Deed | WYANT, JERRY L | WYANT, CONNIE M | | | $0.00 | 58943 | 0 |
Payout Agreement
| No payout information available.. |