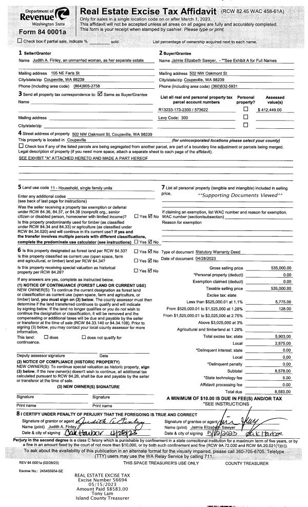
Property
Account |
| Property ID: | 221281 | Abbreviated Legal Description: | CAM LAG VISTA 2 LOT 84 |
| Geographic ID: | S6265-02-00084-0 | Agent Code: | |
| Type: | Real | | |
| Tax Area: | 510 - APPRAISER-Stan/Cam Schl Dist, improved & 1 acre or less | Land Use Code | 11 |
| Open Space: | N | DFL | N |
| Historic Property: | N | Remodel Property: | N |
| Multi-Family Redevelopment: | N | | |
| Township: | | Section: | |
| Range: | |
Location |
| Address: | 317 MELISSA ST CAMANO ISLAND, WA 98282 | Mapsco: | |
| Neighborhood: | North Camano | Map ID: | 574 |
| Neighborhood CD: | 06-C |
Owner |
| Name: | CASSANO, STEVEN A | Owner ID: | 267361 |
| Mailing Address: | ROBERTA L CASSANO 317 MELISSA ST CAMANO ISLAND, WA 98282-8635 | % Ownership: | 100.0000000000% |
| | | Exemptions: | |
Taxes and Assessment Details
Values
| (+) Improvement Homesite Value: | + | $0 | |
| (+) Improvement Non-Homesite Value: | + | $332,569 | |
| (+) Land Homesite Value: | + | $0 | |
| (+) Land Non-Homesite Value: | + | $300,000 | |
| (+) Curr Use (HS): | + | $0 | $0 |
| (+) Curr Use (NHS): | + | $0 | $0 |
| | | -------------------------- | |
| (=) Market Value: | = | $632,569 | |
| (–) Productivity Loss: | – | $0 | |
| | | -------------------------- | |
| (=) Subtotal: | = | $632,569 | |
| (+) Senior Appraised Value: | + | $0 | |
| (+) Non-Senior Appraised Value: | + | $632,569 | |
| | | -------------------------- | |
| (=) Total Appraised Value: | = | $632,569 | |
| (–) Senior Exemption Loss: | – | $0 | |
| (–) Exemption Loss: | – | $0 | |
| | | -------------------------- | |
| (=) Taxable Value: | = | $632,569 | |
Taxing Jurisdiction
| Owner: | CASSANO, STEVEN A | | |
| % Ownership: | 100.0000000000% | | |
| Total Value: | $632,569 | | |
| Tax Area: | 510 - APPRAISER-Stan/Cam Schl Dist, improved & 1 acre or less |
| CF | Conservation Futures | 0.0316035091 | $632,569 | $632,569 | $19.99 | | |
| EMS1 | Fire & Rescue Dist #1 Camano GEN (EMS) | 0.3677864386 | $632,569 | $632,569 | $232.65 | | |
| FIRE1 | Fire & Rescue Dist #1 Camano GEN | 1.2502910536 | $632,569 | $632,569 | $790.90 | | |
| FIRE1BOND | Fire & Rescue Dist #1 Camano BOND | 0.1570001679 | $632,569 | $632,569 | $99.31 | | |
| CE | County Current Expense | 0.3708482477 | $632,569 | $632,569 | $234.59 | | |
| CR | County Roads | 0.4584763726 | $632,569 | $632,569 | $290.02 | | |
| LCIB | Library Sno-Isle BOND (Camano Island) | 0.0396325772 | $632,569 | $632,569 | $25.07 | | |
| LIB | Library Sno-Isle GEN | 0.3153421757 | $632,569 | $632,569 | $199.48 | | |
| SCH205_401 | School 205-401 Enrichment | 1.2698420524 | $632,569 | $632,569 | $803.26 | | |
| SCH205BOND | School 205-401 BOND | 0.9396497583 | $632,569 | $632,569 | $594.39 | | |
| ST | State School | 1.3035497053 | $632,569 | $632,569 | $824.59 | | |
| ST2 | State School Part 2 | 0.8169543533 | $632,569 | $632,569 | $516.78 | | |
| | Total Tax Rate: | 7.3209764117 | | | | | |
| | | | | Taxes w/Current Exemptions: | $4,631.03 | | |
| | | | | Taxes w/o Exemptions: | $4,631.03 | | |
Improvement / Building
| Improvement #1: | RESIDENTIAL | State Code: | Y | 2126.7 sqft | Value: | $332,569 |
| Bathrooms: | 2.5 | Bedrooms: | 4 | | Ceiling: | DRYWALL PAINTED | Exterior Wall/Cover: | PLY/HARDBOARD T-111 | | Floor Covering: | VINYL 100% | Floor Structure: | WOOD W/SUBFLOOR | | Foundation: | CONCRETE | Heating: | FHA GAS | | Interior Finish: | DRYWALL PAINT | Plumbing Fixture Cnt: | 13 | | Roof Slope: | 5" IN 12" | Roof Structure/Cover: | CJ ASPHALT |
|
| | Type | Description | Class CD | Sub Class CD | Year Built | Area |
| | BAS | BASE/MAIN FLOOR | 3 | 0 | 2000 | 1159.8 |
| | AGR | ATTACHED GARAGE | 3 | 0 | 2000 | 433.1 |
| | BIG | BUILT IN GARAGE | 3 | 0 | 2000 | 82.4 |
| | UPS | UPPER STORY | 3 | 0 | 2000 | 966.9 |
| | OWP | OPEN WOOD PORCH W/STEPS | 3 | 0 | 2000 | 750.0 |
| | OWC | OPEN WOOD PORCH W/STEPS/ROOF/C | 3 | 0 | 2000 | 140.6 |
Sketch
Property Image
Land
| 1 | 14 | SQ (08001-12000) | 0.0000 | 0.00 | 0.00 | 0.00 | 1.00 | $300,000 | $0 |
Roll Value History
| 2026 | N/A | N/A | N/A | N/A | N/A |
| 2025 | $332,569 | $300,000 | $0 | $632,569 | $632,569 |
| 2024 | $336,662 | $300,000 | $0 | $636,662 | $636,662 |
| 2023 | $340,753 | $300,000 | $0 | $640,753 | $640,753 |
| 2022 | $302,986 | $280,000 | $0 | $582,986 | $582,986 |
| 2021 | $266,664 | $230,000 | $0 | $496,664 | $496,664 |
| 2020 | $259,791 | $180,000 | $0 | $439,791 | $439,791 |
| 2019 | $198,145 | $220,000 | $0 | $418,145 | $418,145 |
| 2018 | $195,851 | $160,000 | $0 | $355,851 | $355,851 |
| 2017 | $196,972 | $130,000 | $0 | $326,972 | $326,972 |
| 2016 | $193,760 | $90,000 | $0 | $283,760 | $283,760 |
| 2015 | $196,092 | $66,400 | $0 | $262,492 | $262,492 |
| 2014 | $198,426 | $66,400 | $0 | $264,826 | $264,826 |
| 2013 | $200,762 | $66,400 | $0 | $267,162 | $267,162 |
| 2012 | $203,097 | $66,400 | $0 | $269,497 | $269,497 |
| 2011 | $205,430 | $83,000 | $0 | $288,430 | $288,430 |
| 2010 | $212,352 | $83,000 | $0 | $295,352 | $295,352 |
| 2009 | $221,360 | $100,000 | $0 | $321,360 | $321,360 |
| 2008 | $223,881 | $100,000 | $0 | $323,881 | $323,881 |
| 2007 | $224,052 | $100,000 | $0 | $324,052 | $324,052 |
Deed and Sales History
| 1 | 07/21/2014 | SPWARDEED | Special Warranty Deed | NATIONAL RESIDENTIAL NOMINEE | CASSANO, STEVEN A | | | $270,000.00 | 16250 | 4363287 |
| 2 | 05/07/2014 | WD | Warranty Deed | OLIVER, JAMES W | NATIONAL RESIDENTIAL NOMINEE | | | $270,000.00 | 16249 | 4363286 |
| 3 | 09/24/2013 | WD | Warranty Deed | SHEFTER, MILTON R | OLIVER, JAMES W | | | $310,000.00 | 12920 | 4348667 |
| 4 | 06/20/2013 | SPWARDEED | Special Warranty Deed | DEUTSCHE BANK NATIONAL TRUST COMPANY | SHEFTER, MILTON R | | | $184,299.00 | 11790 | 4342718 |
| 5 | 11/13/2012 | TRUSTEED | Trustee's Deed | GUITRON, SHANNON R | DEUTSCHE BANK NATIONAL TRUST COMPANY | | | $194,650.00 | 9538 | 4327757 |
| 6 | 07/17/2000 | WD | Warranty Deed | HAYES, MIKE | GUITRON, SHANNON R | | | $199,000.00 | 2857 | 20013483 |
| 7 | 03/03/2000 | WD | Warranty Deed | BETZLER, EVELYN | HAYES, MIKE | | | $45,000.00 | 922 | 20004564 |
| 8 | 01/01/1900 | OTHER | Other - Misc. Documents | Unknown | BETZLER, EVELYN | | | $0.00 | 0 | 0 |
Payout Agreement
| No payout information available.. |