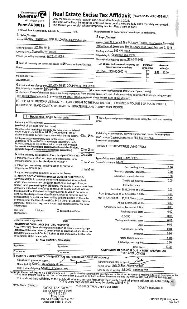
Property
Account |
| Property ID: | 221325 | Abbreviated Legal Description: | CAM LAG VISTA 2 LOT 88 |
| Geographic ID: | S6265-02-00088-0 | Agent Code: | |
| Type: | Real | | |
| Tax Area: | 510 - APPRAISER-Stan/Cam Schl Dist, improved & 1 acre or less | Land Use Code | 11 |
| Open Space: | N | DFL | N |
| Historic Property: | N | Remodel Property: | N |
| Multi-Family Redevelopment: | N | | |
| Township: | | Section: | |
| Range: | |
Location |
| Address: | 343 MELISSA ST CAMANO ISLAND, WA 98282 | Mapsco: | |
| Neighborhood: | North Camano | Map ID: | 574 |
| Neighborhood CD: | 06-C |
Owner |
| Name: | SUFFERN, GARY W & ELLEN L | Owner ID: | 63711 |
| Mailing Address: | 343 MELISSA ST CAMANO ISLAND, WA 98282-8635 | % Ownership: | 100.0000000000% |
| | | Exemptions: | |
Taxes and Assessment Details
Values
| (+) Improvement Homesite Value: | + | $0 | |
| (+) Improvement Non-Homesite Value: | + | $338,719 | |
| (+) Land Homesite Value: | + | $0 | |
| (+) Land Non-Homesite Value: | + | $250,000 | |
| (+) Curr Use (HS): | + | $0 | $0 |
| (+) Curr Use (NHS): | + | $0 | $0 |
| | | -------------------------- | |
| (=) Market Value: | = | $588,719 | |
| (–) Productivity Loss: | – | $0 | |
| | | -------------------------- | |
| (=) Subtotal: | = | $588,719 | |
| (+) Senior Appraised Value: | + | $0 | |
| (+) Non-Senior Appraised Value: | + | $588,719 | |
| | | -------------------------- | |
| (=) Total Appraised Value: | = | $588,719 | |
| (–) Senior Exemption Loss: | – | $0 | |
| (–) Exemption Loss: | – | $0 | |
| | | -------------------------- | |
| (=) Taxable Value: | = | $588,719 | |
Taxing Jurisdiction
| Owner: | SUFFERN, GARY W & ELLEN L | | |
| % Ownership: | 100.0000000000% | | |
| Total Value: | $588,719 | | |
| Tax Area: | 510 - APPRAISER-Stan/Cam Schl Dist, improved & 1 acre or less |
| CF | Conservation Futures | 0.0316035091 | $588,719 | $588,719 | $18.61 | | |
| EMS1 | Fire & Rescue Dist #1 Camano GEN (EMS) | 0.3677864386 | $588,719 | $588,719 | $216.52 | | |
| FIRE1 | Fire & Rescue Dist #1 Camano GEN | 1.2502910536 | $588,719 | $588,719 | $736.07 | | |
| FIRE1BOND | Fire & Rescue Dist #1 Camano BOND | 0.1570001679 | $588,719 | $588,719 | $92.43 | | |
| CE | County Current Expense | 0.3708482477 | $588,719 | $588,719 | $218.33 | | |
| CR | County Roads | 0.4584763726 | $588,719 | $588,719 | $269.91 | | |
| LCIB | Library Sno-Isle BOND (Camano Island) | 0.0396325772 | $588,719 | $588,719 | $23.33 | | |
| LIB | Library Sno-Isle GEN | 0.3153421757 | $588,719 | $588,719 | $185.65 | | |
| SCH205_401 | School 205-401 Enrichment | 1.2698420524 | $588,719 | $588,719 | $747.58 | | |
| SCH205BOND | School 205-401 BOND | 0.9396497583 | $588,719 | $588,719 | $553.19 | | |
| ST | State School | 1.3035497053 | $588,719 | $588,719 | $767.42 | | |
| ST2 | State School Part 2 | 0.8169543533 | $588,719 | $588,719 | $480.96 | | |
| | Total Tax Rate: | 7.3209764117 | | | | | |
| | | | | Taxes w/Current Exemptions: | $4,310.00 | | |
| | | | | Taxes w/o Exemptions: | $4,310.00 | | |
Improvement / Building
| Improvement #1: | RESIDENTIAL | State Code: | Y | 2758.9 sqft | Value: | $338,719 |
| Bathrooms: | 3 | Bedrooms: | 3 | | Ceiling: | DRYWALL PAINTED | Exterior Wall/Cover: | PLY/HARDBOARD T-111 | | Floor Covering: | HARDWOOD/CARP 20-80 | Floor Structure: | WOOD W/SUBFLOOR | | Foundation: | CONCRETE | Heating: | BASEBOARD ELECTRIC | | Interior Finish: | DRYWALL PAINT | Plumbing Fixture Cnt: | 15 | | Roof Slope: | 4" IN 12" | Roof Structure/Cover: | CJ ASPHALT |
|
| | Type | Description | Class CD | Sub Class CD | Year Built | Area |
| | BAS | BASE/MAIN FLOOR | 3 | 0 | 1979 | 1812.9 |
| | AGR | ATTACHED GARAGE | 3 | 0 | 1979 | 136.0 |
| | BIG | BUILT IN GARAGE | 3 | 0 | 1979 | 558.2 |
| | OWP | OPEN WOOD PORCH W/STEPS | 3 | 0 | 1979 | 111.0 |
| | OWP | OPEN WOOD PORCH W/STEPS | 3 | 0 | 1979 | 338.7 |
| | DWN | DOWNSTAIRS LIVING AREA | 3 | 0 | 1979 | 946.0 |
Sketch
Property Image
Land
| 1 | 14 | SQ (08001-12000) | 0.0000 | 0.00 | 0.00 | 0.00 | 1.00 | $250,000 | $0 |
Roll Value History
| 2026 | N/A | N/A | N/A | N/A | N/A |
| 2025 | $338,719 | $250,000 | $0 | $588,719 | $588,719 |
| 2024 | $350,603 | $250,000 | $0 | $600,603 | $600,603 |
| 2023 | $355,200 | $250,000 | $0 | $605,200 | $605,200 |
| 2022 | $311,801 | $280,000 | $0 | $591,801 | $591,801 |
| 2021 | $274,683 | $230,000 | $0 | $504,683 | $504,683 |
| 2020 | $267,989 | $180,000 | $0 | $447,989 | $447,989 |
| 2019 | $209,512 | $220,000 | $0 | $429,512 | $429,512 |
| 2018 | $210,172 | $160,000 | $0 | $370,172 | $370,172 |
| 2017 | $211,438 | $130,000 | $0 | $341,438 | $341,438 |
| 2016 | $199,102 | $110,000 | $0 | $309,102 | $309,102 |
| 2015 | $201,688 | $92,800 | $0 | $294,488 | $294,488 |
| 2014 | $204,275 | $92,800 | $0 | $297,075 | $297,075 |
| 2013 | $206,861 | $92,800 | $0 | $299,661 | $299,661 |
| 2012 | $209,448 | $92,800 | $0 | $302,248 | $302,248 |
| 2011 | $212,032 | $116,000 | $0 | $328,032 | $328,032 |
| 2010 | $214,061 | $116,000 | $0 | $330,061 | $330,061 |
| 2009 | $223,108 | $148,000 | $0 | $371,108 | $371,108 |
| 2008 | $225,639 | $148,000 | $0 | $373,639 | $373,639 |
| 2007 | $228,184 | $148,000 | $0 | $376,184 | $376,184 |
Deed and Sales History
| 1 | 01/01/1995 | QCD | Quit Claim Deed | SUFFERN, GARY W | SUFFERN, GARY W | | | $0.00 | 50269 | 95001274 |
| 2 | 08/01/1990 | WD | Warranty Deed | BURKE, PATRICK P | SUFFERN, GARY W | | | $139,000.00 | 4689 | 90015515 |
| 3 | 01/01/1980 | TRUSTEED | Trustee's Deed | MOUNT, VERNON C | BURKE, PATRICK P | | | $40,000.00 | 222 | 364211 |
| 4 | 08/01/1979 | TRUSTEED | Trustee's Deed | BURKE, ROBERT E | MOUNT, VERNON C | | | $6,500.00 | 94116 | 357648 |
| 5 | 01/01/1900 | OTHER | Other - Misc. Documents | Unknown | BURKE, ROBERT E | | | $0.00 | 0 | 0 |
Payout Agreement
| No payout information available.. |