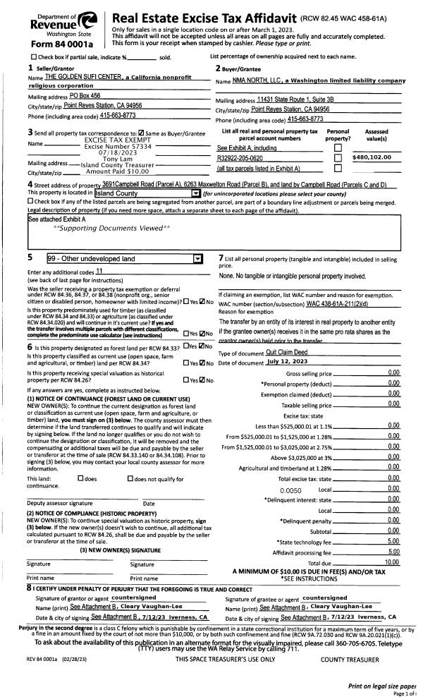
Property
Account |
| Property ID: | 221352 | Abbreviated Legal Description: | CAM LAG VISTA 2 LOT 91 |
| Geographic ID: | S6265-02-00091-0 | Agent Code: | |
| Type: | Real | | |
| Tax Area: | 510 - APPRAISER-Stan/Cam Schl Dist, improved & 1 acre or less | Land Use Code | 11 |
| Open Space: | N | DFL | N |
| Historic Property: | N | Remodel Property: | N |
| Multi-Family Redevelopment: | N | | |
| Township: | | Section: | |
| Range: | |
Location |
| Address: | 361 MELISSA ST CAMANO ISLAND, WA 98282 | Mapsco: | |
| Neighborhood: | North Camano | Map ID: | 574 |
| Neighborhood CD: | 06-C |
Owner |
| Name: | MONGER, RICHARD L | Owner ID: | 29765 |
| Mailing Address: | 361 MELISSA ST CAMANO ISLAND, WA 98282-8635 | % Ownership: | 100.0000000000% |
| | | Exemptions: | |
Taxes and Assessment Details
Values
| (+) Improvement Homesite Value: | + | $0 | |
| (+) Improvement Non-Homesite Value: | + | $343,376 | |
| (+) Land Homesite Value: | + | $0 | |
| (+) Land Non-Homesite Value: | + | $250,000 | |
| (+) Curr Use (HS): | + | $0 | $0 |
| (+) Curr Use (NHS): | + | $0 | $0 |
| | | -------------------------- | |
| (=) Market Value: | = | $593,376 | |
| (–) Productivity Loss: | – | $0 | |
| | | -------------------------- | |
| (=) Subtotal: | = | $593,376 | |
| (+) Senior Appraised Value: | + | $0 | |
| (+) Non-Senior Appraised Value: | + | $593,376 | |
| | | -------------------------- | |
| (=) Total Appraised Value: | = | $593,376 | |
| (–) Senior Exemption Loss: | – | $0 | |
| (–) Exemption Loss: | – | $0 | |
| | | -------------------------- | |
| (=) Taxable Value: | = | $593,376 | |
Taxing Jurisdiction
| Owner: | MONGER, RICHARD L | | |
| % Ownership: | 100.0000000000% | | |
| Total Value: | $593,376 | | |
| Tax Area: | 510 - APPRAISER-Stan/Cam Schl Dist, improved & 1 acre or less |
| CF | Conservation Futures | 0.0316035091 | $593,376 | $593,376 | $18.75 | | |
| EMS1 | Fire & Rescue Dist #1 Camano GEN (EMS) | 0.3677864386 | $593,376 | $593,376 | $218.24 | | |
| FIRE1 | Fire & Rescue Dist #1 Camano GEN | 1.2502910536 | $593,376 | $593,376 | $741.89 | | |
| FIRE1BOND | Fire & Rescue Dist #1 Camano BOND | 0.1570001679 | $593,376 | $593,376 | $93.16 | | |
| CE | County Current Expense | 0.3708482477 | $593,376 | $593,376 | $220.05 | | |
| CR | County Roads | 0.4584763726 | $593,376 | $593,376 | $272.05 | | |
| LCIB | Library Sno-Isle BOND (Camano Island) | 0.0396325772 | $593,376 | $593,376 | $23.52 | | |
| LIB | Library Sno-Isle GEN | 0.3153421757 | $593,376 | $593,376 | $187.12 | | |
| SCH205_401 | School 205-401 Enrichment | 1.2698420524 | $593,376 | $593,376 | $753.49 | | |
| SCH205BOND | School 205-401 BOND | 0.9396497583 | $593,376 | $593,376 | $557.57 | | |
| ST | State School | 1.3035497053 | $593,376 | $593,376 | $773.50 | | |
| ST2 | State School Part 2 | 0.8169543533 | $593,376 | $593,376 | $484.76 | | |
| | Total Tax Rate: | 7.3209764117 | | | | | |
| | | | | Taxes w/Current Exemptions: | $4,344.10 | | |
| | | | | Taxes w/o Exemptions: | $4,344.10 | | |
Improvement / Building
| Improvement #1: | RESIDENTIAL | State Code: | Y | 2078.0 sqft | Value: | $343,376 |
| Bathrooms: | 2 | Bedrooms: | 3 | | Ceiling: | DRYWALL PAINTED | Cooling: | HEAT PUMP/CONV/V | | Exterior Wall/Cover: | WOOD SIDING | Floor Covering: | CARPET/VINYL 80-20 | | Floor Structure: | WOOD W/SUBFLOOR | Foundation: | CONCRETE | | Interior Finish: | DRYWALL PAINT | Plumbing Fixture Cnt: | 10 | | Roof Slope: | 5" IN 12" | Roof Structure/Cover: | CJ ASPHALT |
|
| | Type | Description | Class CD | Sub Class CD | Year Built | Area |
| | BAS | BASE/MAIN FLOOR | 3 | 0 | 1990 | 840.0 |
| | OP4 | OPEN PORCH W/CEILING-ROOF | 3 | 0 | 1990 | 196.0 |
| | AGR | ATTACHED GARAGE | 3 | 0 | 1990 | 242.0 |
| | BIG | BUILT IN GARAGE | 3 | 0 | 1990 | 330.0 |
| | UPS | UPPER STORY | 3 | 0 | 1990 | 1238.0 |
| | OWC | OPEN WOOD PORCH W/STEPS/ROOF/C | 3 | 0 | 1990 | 186.0 |
| | OWC | OPEN WOOD PORCH W/STEPS/ROOF/C | 3 | 0 | 1990 | 270.0 |
Sketch
Property Image
Land
| 1 | 14 | SQ (08001-12000) | 0.0000 | 0.00 | 0.00 | 0.00 | 1.00 | $250,000 | $0 |
Roll Value History
| 2026 | N/A | N/A | N/A | N/A | N/A |
| 2025 | $343,376 | $250,000 | $0 | $593,376 | $593,376 |
| 2024 | $347,709 | $250,000 | $0 | $597,709 | $597,709 |
| 2023 | $352,042 | $250,000 | $0 | $602,042 | $602,042 |
| 2022 | $288,745 | $210,000 | $0 | $498,745 | $498,745 |
| 2021 | $254,367 | $200,000 | $0 | $454,367 | $454,367 |
| 2020 | $248,469 | $160,000 | $0 | $408,469 | $408,469 |
| 2019 | $190,871 | $180,000 | $0 | $370,871 | $370,871 |
| 2018 | $191,473 | $130,000 | $0 | $321,473 | $321,473 |
| 2017 | $192,676 | $120,000 | $0 | $312,676 | $312,676 |
| 2016 | $170,804 | $90,000 | $0 | $260,804 | $260,804 |
| 2015 | $173,023 | $66,400 | $0 | $239,423 | $239,423 |
| 2014 | $175,242 | $66,400 | $0 | $241,642 | $241,642 |
| 2013 | $177,461 | $66,400 | $0 | $243,861 | $243,861 |
| 2012 | $179,678 | $66,400 | $0 | $246,078 | $246,078 |
| 2011 | $181,897 | $83,000 | $0 | $264,897 | $264,897 |
| 2010 | $182,174 | $83,000 | $0 | $265,174 | $265,174 |
| 2009 | $189,943 | $100,000 | $0 | $289,943 | $289,943 |
| 2008 | $192,384 | $100,000 | $0 | $292,384 | $292,384 |
| 2007 | $194,851 | $100,000 | $0 | $294,851 | $294,851 |
Deed and Sales History
| 1 | 08/01/1995 | WD | Warranty Deed | LEONARD, LARRY W | MONGER, RICHARD L | | | $141,500.00 | 52855 | 95013141 |
| 2 | 12/01/1990 | QCD | Quit Claim Deed | , | LEONARD, LARRY W | | | $0.00 | 6730 | 90023506 |
| 3 | 01/01/1900 | OTHER | Other - Misc. Documents | Unknown | , | | | $0.00 | 0 | 0 |
Payout Agreement
| No payout information available.. |