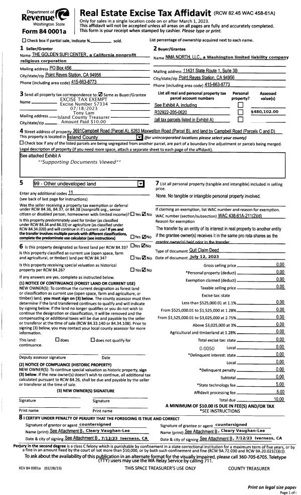
Property
Account |
| Property ID: | 221361 | Abbreviated Legal Description: | CAM LAG VISTA 2 LOT 92 |
| Geographic ID: | S6265-02-00092-0 | Agent Code: | |
| Type: | Real | | |
| Tax Area: | 510 - APPRAISER-Stan/Cam Schl Dist, improved & 1 acre or less | Land Use Code | 11 |
| Open Space: | N | DFL | N |
| Historic Property: | N | Remodel Property: | N |
| Multi-Family Redevelopment: | N | | |
| Township: | | Section: | |
| Range: | |
Location |
| Address: | 365 MELISSA ST CAMANO ISLAND, WA 98282 | Mapsco: | |
| Neighborhood: | North Camano | Map ID: | 574 |
| Neighborhood CD: | 06-C |
Owner |
| Name: | CREIGHTON III, JOHN L | Owner ID: | 296113 |
| Mailing Address: | 8798 PINLEY SPRING ST LAS VEGAS, NV 89113 | % Ownership: | 100.0000000000% |
| | | Exemptions: | |
Taxes and Assessment Details
Values
| (+) Improvement Homesite Value: | + | $292,320 | |
| (+) Improvement Non-Homesite Value: | + | $0 | |
| (+) Land Homesite Value: | + | $250,000 | |
| (+) Land Non-Homesite Value: | + | $0 | |
| (+) Curr Use (HS): | + | $0 | $0 |
| (+) Curr Use (NHS): | + | $0 | $0 |
| | | -------------------------- | |
| (=) Market Value: | = | $542,320 | |
| (–) Productivity Loss: | – | $0 | |
| | | -------------------------- | |
| (=) Subtotal: | = | $542,320 | |
| (+) Senior Appraised Value: | + | $0 | |
| (+) Non-Senior Appraised Value: | + | $542,320 | |
| | | -------------------------- | |
| (=) Total Appraised Value: | = | $542,320 | |
| (–) Senior Exemption Loss: | – | $0 | |
| (–) Exemption Loss: | – | $0 | |
| | | -------------------------- | |
| (=) Taxable Value: | = | $542,320 | |
Taxing Jurisdiction
| Owner: | CREIGHTON III, JOHN L | | |
| % Ownership: | 100.0000000000% | | |
| Total Value: | $542,320 | | |
| Tax Area: | 510 - APPRAISER-Stan/Cam Schl Dist, improved & 1 acre or less |
| CF | Conservation Futures | 0.0316035091 | $542,320 | $542,320 | $17.14 | | |
| EMS1 | Fire & Rescue Dist #1 Camano GEN (EMS) | 0.3677864386 | $542,320 | $542,320 | $199.46 | | |
| FIRE1 | Fire & Rescue Dist #1 Camano GEN | 1.2502910536 | $542,320 | $542,320 | $678.06 | | |
| FIRE1BOND | Fire & Rescue Dist #1 Camano BOND | 0.1570001679 | $542,320 | $542,320 | $85.14 | | |
| CE | County Current Expense | 0.3708482477 | $542,320 | $542,320 | $201.12 | | |
| CR | County Roads | 0.4584763726 | $542,320 | $542,320 | $248.64 | | |
| LCIB | Library Sno-Isle BOND (Camano Island) | 0.0396325772 | $542,320 | $542,320 | $21.49 | | |
| LIB | Library Sno-Isle GEN | 0.3153421757 | $542,320 | $542,320 | $171.02 | | |
| SCH205_401 | School 205-401 Enrichment | 1.2698420524 | $542,320 | $542,320 | $688.66 | | |
| SCH205BOND | School 205-401 BOND | 0.9396497583 | $542,320 | $542,320 | $509.59 | | |
| ST | State School | 1.3035497053 | $542,320 | $542,320 | $706.94 | | |
| ST2 | State School Part 2 | 0.8169543533 | $542,320 | $542,320 | $443.05 | | |
| | Total Tax Rate: | 7.3209764117 | | | | | |
| | | | | Taxes w/Current Exemptions: | $3,970.31 | | |
| | | | | Taxes w/o Exemptions: | $3,970.31 | | |
Improvement / Building
| Improvement #1: | RESIDENTIAL | State Code: | Y | 1750.5 sqft | Value: | $292,320 |
| Bathrooms: | 3 | Bedrooms: | 3 | | Ceiling: | DRYWALL PAINTED | Exterior Wall/Cover: | WOOD SIDING | | Floor Covering: | CARPET/VINYL 80-20 | Floor Structure: | WOOD W/SUBFLOOR | | Foundation: | CONCRETE | Heating: | WALL HEAT ELECTRIC | | Interior Finish: | DRYWALL PAINT | Plumbing Fixture Cnt: | 11 | | Roof Slope: | 5" IN 12" | Roof Structure/Cover: | CJ ASPHALT |
|
| | Type | Description | Class CD | Sub Class CD | Year Built | Area |
| | BAS | BASE/MAIN FLOOR | 3 | 0 | 1990 | 862.0 |
| | AGR | ATTACHED GARAGE | 3 | 0 | 1990 | 472.0 |
| | UPS | UPPER STORY | 3 | 0 | 1990 | 888.5 |
| | BAW | BALCONY WOOD RAIL | 3 | 0 | 1990 | 44.0 |
| | OWP | OPEN WOOD PORCH W/STEPS | 3 | 0 | 1990 | 805.1 |
| | OWC | OPEN WOOD PORCH W/STEPS/ROOF/C | 3 | 0 | 1990 | 165.0 |
Sketch
Property Image
Land
| 1 | 14 | SQ (08001-12000) | 0.0000 | 0.00 | 0.00 | 0.00 | 1.00 | $250,000 | $0 |
Roll Value History
| 2026 | N/A | N/A | N/A | N/A | N/A |
| 2025 | $292,320 | $250,000 | $0 | $542,320 | $542,320 |
| 2024 | $296,203 | $250,000 | $0 | $546,203 | $546,203 |
| 2023 | $300,089 | $250,000 | $0 | $550,089 | $550,089 |
| 2022 | $275,245 | $210,000 | $0 | $485,245 | $485,245 |
| 2021 | $242,410 | $200,000 | $0 | $442,410 | $442,410 |
| 2020 | $236,174 | $160,000 | $0 | $396,174 | $396,174 |
| 2019 | $173,366 | $180,000 | $0 | $353,366 | $88,817 |
| 2018 | $173,900 | $130,000 | $0 | $303,900 | $88,817 |
| 2017 | $174,927 | $120,000 | $0 | $294,927 | $88,817 |
| 2016 | $152,442 | $90,000 | $0 | $242,442 | $88,817 |
| 2015 | $154,422 | $92,800 | $0 | $247,222 | $88,817 |
| 2014 | $156,402 | $92,800 | $0 | $249,202 | $88,817 |
| 2013 | $158,382 | $92,800 | $0 | $251,182 | $88,817 |
| 2012 | $160,360 | $92,800 | $0 | $253,160 | $88,817 |
| 2011 | $162,341 | $116,000 | $0 | $278,341 | $152,042 |
| 2010 | $163,753 | $116,000 | $0 | $279,753 | $152,042 |
| 2009 | $170,716 | $148,000 | $0 | $318,716 | $152,042 |
| 2008 | $172,751 | $148,000 | $0 | $320,751 | $88,817 |
| 2007 | $174,801 | $148,000 | $0 | $322,801 | $88,817 |
Deed and Sales History
| 1 | 09/15/2020 | WD | Warranty Deed | CREIGHTON JR, JOHN L | CREIGHTON III, JOHN L | | | $425,000.00 | 44773 | 4496745 |
| 2 | 07/26/2018 | WD | Warranty Deed | WILHITE, MARY JOYCE | CREIGHTON JR, JOHN L | | | $0.00 | 44083 | 4449455 |
| 3 | 02/01/1998 | WD | Warranty Deed | CREIGHTON, JOHN L | WILHITE, MARY J | | | $199,900.00 | 80646 | 98003506 |
| 4 | 09/01/1993 | WD | Warranty Deed | BOWRON, JOHN N | CREIGHTON, JOHN L | | | $134,000.00 | 33505 | 93018190 |
| 5 | 11/01/1990 | WD | Warranty Deed | NORTH, STAR B | BOWRON, JOHN N | | | $129,500.00 | 6447 | 90022309 |
| 6 | 01/01/1990 | WD | Warranty Deed | LOVOLD, OLE | NORTH, STAR B | | | $18,000.00 | 406 | 90001255 |
| 7 | 06/01/1978 | OTHER | Other - Misc. Documents | Unknown | LOVOLD, OLE | | | $13,000.00 | 82861 | 334736 |
Payout Agreement
| No payout information available.. |