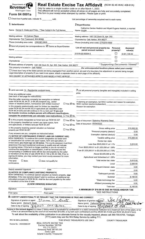
Property
Account |
| Property ID: | 221469 | Abbreviated Legal Description: | CAM LAG VISTA 2 LOT 102 |
| Geographic ID: | S6265-02-00102-0 | Agent Code: | |
| Type: | Real | | |
| Tax Area: | 510 - APPRAISER-Stan/Cam Schl Dist, improved & 1 acre or less | Land Use Code | 11 |
| Open Space: | N | DFL | N |
| Historic Property: | N | Remodel Property: | N |
| Multi-Family Redevelopment: | N | | |
| Township: | | Section: | |
| Range: | |
Location |
| Address: | 312 BURKE DR CAMANO ISLAND, WA 98282 | Mapsco: | |
| Neighborhood: | North Camano | Map ID: | 574 |
| Neighborhood CD: | 06-C |
Owner |
| Name: | KIKUCHI, MIDORI | Owner ID: | 176279 |
| Mailing Address: | JOHN P RAULS 312 BURKE DR CAMANO ISLAND, WA 98282-7326 | % Ownership: | 100.0000000000% |
| | | Exemptions: | |
Taxes and Assessment Details
Values
| (+) Improvement Homesite Value: | + | $0 | |
| (+) Improvement Non-Homesite Value: | + | $230,561 | |
| (+) Land Homesite Value: | + | $0 | |
| (+) Land Non-Homesite Value: | + | $300,000 | |
| (+) Curr Use (HS): | + | $0 | $0 |
| (+) Curr Use (NHS): | + | $0 | $0 |
| | | -------------------------- | |
| (=) Market Value: | = | $530,561 | |
| (–) Productivity Loss: | – | $0 | |
| | | -------------------------- | |
| (=) Subtotal: | = | $530,561 | |
| (+) Senior Appraised Value: | + | $0 | |
| (+) Non-Senior Appraised Value: | + | $530,561 | |
| | | -------------------------- | |
| (=) Total Appraised Value: | = | $530,561 | |
| (–) Senior Exemption Loss: | – | $0 | |
| (–) Exemption Loss: | – | $0 | |
| | | -------------------------- | |
| (=) Taxable Value: | = | $530,561 | |
Taxing Jurisdiction
| Owner: | KIKUCHI, MIDORI | | |
| % Ownership: | 100.0000000000% | | |
| Total Value: | $530,561 | | |
| Tax Area: | 510 - APPRAISER-Stan/Cam Schl Dist, improved & 1 acre or less |
| CF | Conservation Futures | 0.0316035091 | $530,561 | $530,561 | $16.77 | | |
| EMS1 | Fire & Rescue Dist #1 Camano GEN (EMS) | 0.3677864386 | $530,561 | $530,561 | $195.13 | | |
| FIRE1 | Fire & Rescue Dist #1 Camano GEN | 1.2502910536 | $530,561 | $530,561 | $663.36 | | |
| FIRE1BOND | Fire & Rescue Dist #1 Camano BOND | 0.1570001679 | $530,561 | $530,561 | $83.30 | | |
| CE | County Current Expense | 0.3708482477 | $530,561 | $530,561 | $196.76 | | |
| CR | County Roads | 0.4584763726 | $530,561 | $530,561 | $243.25 | | |
| LCIB | Library Sno-Isle BOND (Camano Island) | 0.0396325772 | $530,561 | $530,561 | $21.03 | | |
| LIB | Library Sno-Isle GEN | 0.3153421757 | $530,561 | $530,561 | $167.31 | | |
| SCH205_401 | School 205-401 Enrichment | 1.2698420524 | $530,561 | $530,561 | $673.73 | | |
| SCH205BOND | School 205-401 BOND | 0.9396497583 | $530,561 | $530,561 | $498.54 | | |
| ST | State School | 1.3035497053 | $530,561 | $530,561 | $691.61 | | |
| ST2 | State School Part 2 | 0.8169543533 | $530,561 | $530,561 | $433.44 | | |
| | Total Tax Rate: | 7.3209764117 | | | | | |
| | | | | Taxes w/Current Exemptions: | $3,884.23 | | |
| | | | | Taxes w/o Exemptions: | $3,884.23 | | |
Improvement / Building
| Improvement #1: | RESIDENTIAL | State Code: | Y | 1120.0 sqft | Value: | $230,561 |
| Bathrooms: | 1 | Bedrooms: | 2 | | Ceiling: | DRYWALL PAINTED | Exterior Wall/Cover: | VINYL | | Floor Covering: | HARDWOOD 100% | Floor Structure: | WOOD W/SUBFLOOR | | Foundation: | CONCRETE | Heating: | BASEBOARD ELECTRIC | | Interior Finish: | DRYWALL PAINT | Plumbing Fixture Cnt: | 6 | | Roof Slope: | 4" IN 12" | Roof Structure/Cover: | BEAM ASPHALT |
|
| | Type | Description | Class CD | Sub Class CD | Year Built | Area |
| | BAS | BASE/MAIN FLOOR | 3 | 0 | 1973 | 960.0 |
| | DWN | DOWNSTAIRS LIVING AREA | 3 | 0 | 1973 | 160.0 |
| | OP3 | OPEN PORCH W/ROOF | 3 | 0 | 1973 | 16.0 |
| | BGR | BASEMENT GARAGE | 3 | 0 | 1973 | 800.0 |
| | OWP | OPEN WOOD PORCH W/STEPS | 3 | 0 | 1973 | 171.0 |
Sketch
Property Image
Land
| 1 | 14 | SQ (08001-12000) | 0.0000 | 0.00 | 0.00 | 0.00 | 1.00 | $300,000 | $0 |
Roll Value History
| 2026 | N/A | N/A | N/A | N/A | N/A |
| 2025 | $230,561 | $300,000 | $0 | $530,561 | $530,561 |
| 2024 | $237,912 | $300,000 | $0 | $537,912 | $537,912 |
| 2023 | $240,805 | $300,000 | $0 | $540,805 | $540,805 |
| 2022 | $203,399 | $280,000 | $0 | $483,399 | $483,399 |
| 2021 | $179,125 | $230,000 | $0 | $409,125 | $409,125 |
| 2020 | $174,891 | $180,000 | $0 | $354,891 | $354,891 |
| 2019 | $126,884 | $220,000 | $0 | $346,884 | $346,884 |
| 2018 | $127,274 | $160,000 | $0 | $287,274 | $287,274 |
| 2017 | $128,055 | $130,000 | $0 | $258,055 | $258,055 |
| 2016 | $113,994 | $130,000 | $0 | $243,994 | $243,994 |
| 2015 | $115,327 | $92,800 | $0 | $208,127 | $208,127 |
| 2014 | $116,805 | $92,800 | $0 | $209,605 | $209,605 |
| 2013 | $118,285 | $92,800 | $0 | $211,085 | $211,085 |
| 2012 | $119,762 | $92,800 | $0 | $212,562 | $212,562 |
| 2011 | $121,241 | $116,000 | $0 | $237,241 | $237,241 |
| 2010 | $102,372 | $116,000 | $0 | $218,372 | $218,372 |
| 2009 | $106,980 | $200,000 | $0 | $306,980 | $306,980 |
| 2008 | $108,468 | $200,000 | $0 | $308,468 | $308,468 |
| 2007 | $102,285 | $207,670 | $0 | $309,955 | $309,955 |
Deed and Sales History
| 1 | 02/28/2002 | WD | Warranty Deed | HOLLAND, EDITH C | KIKUCHI, MIDORI | | | $174,000.00 | 20746 | 4012586 |
| 2 | 04/17/1998 | WD | Warranty Deed | HOLLAND, EDITH C | HOLLAND, EDITH C | | | $119,900.00 | 81435 | 98007810 |
| 3 | 01/01/1900 | OTHER | Other - Misc. Documents | Unknown | SIMMONS, GALE H | | | $0.00 | 0 | 0 |
| 4 | 01/01/1900 | OTHER | Other - Misc. Documents | SIMMONS, GALE H | HOLLAND, EDITH C | | | $0.00 | 81435 | 98007800 |
Payout Agreement
| No payout information available.. |