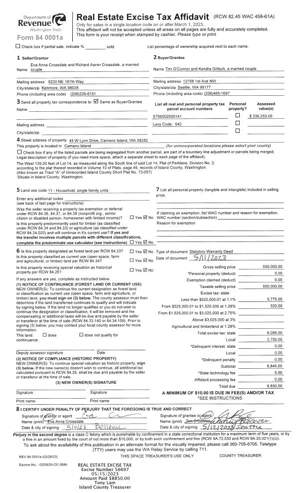
Property
Account |
| Property ID: | 221478 | Abbreviated Legal Description: | CAM LAG VISTA 2 LOT 103 TGW EZ N15' LOT 82 AF#423950 |
| Geographic ID: | S6265-02-00103-0 | Agent Code: | |
| Type: | Real | | |
| Tax Area: | 510 - APPRAISER-Stan/Cam Schl Dist, improved & 1 acre or less | Land Use Code | 11 |
| Open Space: | N | DFL | N |
| Historic Property: | N | Remodel Property: | N |
| Multi-Family Redevelopment: | N | | |
| Township: | | Section: | |
| Range: | |
Location |
| Address: | 306 BURKE DR CAMANO ISLAND, WA 98282 | Mapsco: | |
| Neighborhood: | North Camano | Map ID: | 574 |
| Neighborhood CD: | 06-C |
Owner |
| Name: | OLSON, LINDA M | Owner ID: | 63726 |
| Mailing Address: | CLIFFORD P OLSON 306 BURKE DR CAMANO ISLAND, WA 98282-7326 | % Ownership: | 100.0000000000% |
| | | Exemptions: | |
Taxes and Assessment Details
Values
| (+) Improvement Homesite Value: | + | $0 | |
| (+) Improvement Non-Homesite Value: | + | $340,481 | |
| (+) Land Homesite Value: | + | $0 | |
| (+) Land Non-Homesite Value: | + | $300,000 | |
| (+) Curr Use (HS): | + | $0 | $0 |
| (+) Curr Use (NHS): | + | $0 | $0 |
| | | -------------------------- | |
| (=) Market Value: | = | $640,481 | |
| (–) Productivity Loss: | – | $0 | |
| | | -------------------------- | |
| (=) Subtotal: | = | $640,481 | |
| (+) Senior Appraised Value: | + | $0 | |
| (+) Non-Senior Appraised Value: | + | $640,481 | |
| | | -------------------------- | |
| (=) Total Appraised Value: | = | $640,481 | |
| (–) Senior Exemption Loss: | – | $0 | |
| (–) Exemption Loss: | – | $0 | |
| | | -------------------------- | |
| (=) Taxable Value: | = | $640,481 | |
Taxing Jurisdiction
| Owner: | OLSON, LINDA M | | |
| % Ownership: | 100.0000000000% | | |
| Total Value: | $640,481 | | |
| Tax Area: | 510 - APPRAISER-Stan/Cam Schl Dist, improved & 1 acre or less |
| CF | Conservation Futures | 0.0316035091 | $640,481 | $640,481 | $20.24 | | |
| EMS1 | Fire & Rescue Dist #1 Camano GEN (EMS) | 0.3677864386 | $640,481 | $640,481 | $235.56 | | |
| FIRE1 | Fire & Rescue Dist #1 Camano GEN | 1.2502910536 | $640,481 | $640,481 | $800.79 | | |
| FIRE1BOND | Fire & Rescue Dist #1 Camano BOND | 0.1570001679 | $640,481 | $640,481 | $100.56 | | |
| CE | County Current Expense | 0.3708482477 | $640,481 | $640,481 | $237.52 | | |
| CR | County Roads | 0.4584763726 | $640,481 | $640,481 | $293.65 | | |
| LCIB | Library Sno-Isle BOND (Camano Island) | 0.0396325772 | $640,481 | $640,481 | $25.38 | | |
| LIB | Library Sno-Isle GEN | 0.3153421757 | $640,481 | $640,481 | $201.97 | | |
| SCH205_401 | School 205-401 Enrichment | 1.2698420524 | $640,481 | $640,481 | $813.31 | | |
| SCH205BOND | School 205-401 BOND | 0.9396497583 | $640,481 | $640,481 | $601.83 | | |
| ST | State School | 1.3035497053 | $640,481 | $640,481 | $834.90 | | |
| ST2 | State School Part 2 | 0.8169543533 | $640,481 | $640,481 | $523.24 | | |
| | Total Tax Rate: | 7.3209764117 | | | | | |
| | | | | Taxes w/Current Exemptions: | $4,688.95 | | |
| | | | | Taxes w/o Exemptions: | $4,688.95 | | |
Improvement / Building
| Improvement #1: | RESIDENTIAL | State Code: | Y | 1783.7 sqft | Value: | $340,481 |
| Bathrooms: | 2 | Bedrooms: | 2 | | Ceiling: | DRYWALL PAINTED | Exterior Wall/Cover: | WOOD SIDING | | Floor Covering: | CERAMIC TILE/CPT 40-60 | Floor Structure: | WOOD W/SUBFLOOR | | Foundation: | CONCRETE | Heating: | FHA ELECTRIC | | Interior Finish: | DRYWALL PAINT | Plumbing Fixture Cnt: | 11 | | Roof Slope: | 4" IN 12" | Roof Structure/Cover: | CJ ASPHALT |
|
| | Type | Description | Class CD | Sub Class CD | Year Built | Area |
| | BAS | BASE/MAIN FLOOR | 3 | 0 | 1976 | 1783.7 |
| | OP2 | OPEN PORCH W/STEPS | 3 | 0 | 1976 | 334.0 |
| | UTY | STORAGE/UTILITY | 3 | 0 | 1976 | 80.0 |
| | OP4 | OPEN PORCH W/CEILING-ROOF | 3 | 0 | 1976 | 144.0 |
| | AGR | ATTACHED GARAGE | 3 | 0 | 1976 | 396.4 |
| | OWP | OPEN WOOD PORCH W/STEPS | 3 | 0 | 1976 | 344.1 |
| | OWP | OPEN WOOD PORCH W/STEPS | 3 | 0 | 1976 | 104.8 |
Sketch
Property Image
Land
| 1 | 14 | SQ (08001-12000) | 0.0000 | 0.00 | 0.00 | 0.00 | 1.00 | $300,000 | $0 |
Roll Value History
| 2026 | N/A | N/A | N/A | N/A | N/A |
| 2025 | $340,481 | $300,000 | $0 | $640,481 | $640,481 |
| 2024 | $345,006 | $300,000 | $0 | $645,006 | $645,006 |
| 2023 | $349,530 | $300,000 | $0 | $649,530 | $649,530 |
| 2022 | $312,413 | $280,000 | $0 | $592,413 | $592,413 |
| 2021 | $275,211 | $230,000 | $0 | $505,211 | $505,211 |
| 2020 | $268,434 | $180,000 | $0 | $448,434 | $448,434 |
| 2019 | $198,744 | $220,000 | $0 | $418,744 | $418,744 |
| 2018 | $199,371 | $160,000 | $0 | $359,371 | $359,371 |
| 2017 | $200,497 | $130,000 | $0 | $330,497 | $330,497 |
| 2016 | $183,727 | $130,000 | $0 | $313,727 | $313,727 |
| 2015 | $186,391 | $92,800 | $0 | $279,191 | $279,191 |
| 2014 | $189,054 | $92,800 | $0 | $281,854 | $281,854 |
| 2013 | $191,716 | $92,800 | $0 | $284,516 | $284,516 |
| 2012 | $194,380 | $92,800 | $0 | $287,180 | $287,180 |
| 2011 | $197,043 | $116,000 | $0 | $313,043 | $313,043 |
| 2010 | $208,187 | $116,000 | $0 | $324,187 | $324,187 |
| 2009 | $217,272 | $200,000 | $0 | $417,272 | $417,272 |
| 2008 | $220,025 | $200,000 | $0 | $420,025 | $420,025 |
| 2007 | $211,439 | $211,439 | $0 | $422,877 | $422,877 |
Deed and Sales History
| 1 | 02/07/2000 | 5 | DNU - Marriage License/Name Change | CLARK, LINDA M | OLSON, LINDA M | | | $0.00 | 68580 | 97019539 |
| 2 | 03/01/1996 | QCD | Quit Claim Deed | CLARK, LINDA M | CLARK, LINDA M | | | $0.00 | 60756 | 96004070 |
| 3 | 12/01/1993 | DECREE | Divorce Decree/Legal Separation | CLARK, RICK D | CLARK, LINDA M | | | $0.00 | 34982 | 93025830 |
| 4 | 02/01/1989 | WD | Warranty Deed | HOUSTON, LORNA | CLARK, RICK D | | | $77,000.00 | 90417 | 89001436 |
| 5 | 04/01/1984 | EZ | Easement | HOUSTON, LORNA | HOUSTON, LORNA | | | $0.00 | 60973 | 423950 |
| 6 | 06/01/1978 | OTHER | Other - Misc. Documents | Unknown | HOUSTON, LORNA | | | $0.00 | 82941 | 3349920 |
Payout Agreement
| No payout information available.. |