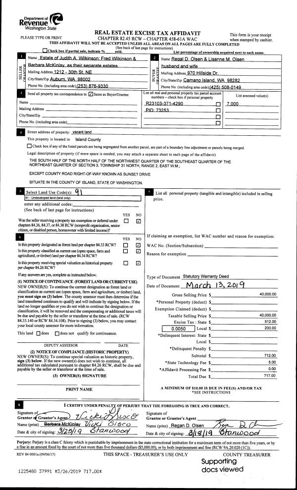
Property
Account |
| Property ID: | 221833 | Abbreviated Legal Description: | CAMANO SHORES 1 LOT 13 |
| Geographic ID: | S6270-00-00013-0 | Agent Code: | |
| Type: | Real | | |
| Tax Area: | 540 - APPRAISER-Stan/Cam Schl Dist, Special Dist, improved & less than 1 acre | Land Use Code | 11 |
| Open Space: | N | DFL | N |
| Historic Property: | N | Remodel Property: | N |
| Multi-Family Redevelopment: | N | | |
| Township: | | Section: | |
| Range: | |
Location |
| Address: | 2289 ELGER PARK RD CAMANO ISLAND, WA 98282 | Mapsco: | |
| Neighborhood: | Cycle 5 | Map ID: | 941 |
| Neighborhood CD: | 5 |
Owner |
| Name: | WONG, TIMOTHY F | Owner ID: | 286011 |
| Mailing Address: | SUNAE PARK 4217 NE 9TH PL RENTON, WA 98059 | % Ownership: | 100.0000000000% |
| | | Exemptions: | |
Taxes and Assessment Details
Values
| (+) Improvement Homesite Value: | + | $561,604 | |
| (+) Improvement Non-Homesite Value: | + | $0 | |
| (+) Land Homesite Value: | + | $0 | |
| (+) Land Non-Homesite Value: | + | $360,000 | |
| (+) Curr Use (HS): | + | $0 | $0 |
| (+) Curr Use (NHS): | + | $0 | $0 |
| | | -------------------------- | |
| (=) Market Value: | = | $921,604 | |
| (–) Productivity Loss: | – | $0 | |
| | | -------------------------- | |
| (=) Subtotal: | = | $921,604 | |
| (+) Senior Appraised Value: | + | $0 | |
| (+) Non-Senior Appraised Value: | + | $921,604 | |
| | | -------------------------- | |
| (=) Total Appraised Value: | = | $921,604 | |
| (–) Senior Exemption Loss: | – | $0 | |
| (–) Exemption Loss: | – | $0 | |
| | | -------------------------- | |
| (=) Taxable Value: | = | $921,604 | |
Taxing Jurisdiction
| Owner: | WONG, TIMOTHY F | | |
| % Ownership: | 100.0000000000% | | |
| Total Value: | $921,604 | | |
| Tax Area: | 540 - APPRAISER-Stan/Cam Schl Dist, Special Dist, improved & less than 1 acre |
| CF | Conservation Futures | 0.0316035091 | $921,604 | $921,604 | $29.13 | | |
| EMS1 | Fire & Rescue Dist #1 Camano GEN (EMS) | 0.3677864386 | $921,604 | $921,604 | $338.95 | | |
| FIRE1 | Fire & Rescue Dist #1 Camano GEN | 1.2502910536 | $921,604 | $921,604 | $1,152.27 | | |
| FIRE1BOND | Fire & Rescue Dist #1 Camano BOND | 0.1570001679 | $921,604 | $921,604 | $144.69 | | |
| CE | County Current Expense | 0.3708482477 | $921,604 | $921,604 | $341.78 | | |
| CR | County Roads | 0.4584763726 | $921,604 | $921,604 | $422.53 | | |
| LCIB | Library Sno-Isle BOND (Camano Island) | 0.0396325772 | $921,604 | $921,604 | $36.53 | | |
| LIB | Library Sno-Isle GEN | 0.3153421757 | $921,604 | $921,604 | $290.62 | | |
| SCH205_401 | School 205-401 Enrichment | 1.2698420524 | $921,604 | $921,604 | $1,170.29 | | |
| SCH205BOND | School 205-401 BOND | 0.9396497583 | $921,604 | $921,604 | $865.98 | | |
| ST | State School | 1.3035497053 | $921,604 | $921,604 | $1,201.36 | | |
| ST2 | State School Part 2 | 0.8169543533 | $921,604 | $921,604 | $752.91 | | |
| | Total Tax Rate: | 7.3209764117 | | | | | |
| | | | | Taxes w/Current Exemptions: | $6,747.04 | | |
| | | | | Taxes w/o Exemptions: | $6,747.04 | | |
Improvement / Building
| Improvement #1: | RESIDENTIAL | State Code: | Y | 2604.6 sqft | Value: | $561,604 |
| Bathrooms: | 3 | Bedrooms: | 2 | | Ceiling: | DRY WALL SPRAYED | Exterior Wall/Cover: | CEMENT FIBER | | Floor Covering: | HARDWOOD/CARP 60-40 | Floor Structure: | WOOD W/SUBFLOOR | | Foundation: | SLAB/CONCRETE | Heating: | FHA GAS | | Interior Finish: | DRYWALL PAINT | Plumbing Fixture Cnt: | 14 | | Roof Slope: | 5" IN 12" | Roof Structure/Cover: | CJ ASPHALT |
|
| | Type | Description | Class CD | Sub Class CD | Year Built | Area |
| | BAS | BASE/MAIN FLOOR | 4 | 0 | 2018 | 1645.1 |
| | UTY | STORAGE/UTILITY | 4 | 0 | 2018 | 555.7 |
| | AGR | ATTACHED GARAGE | 4 | 0 | 2018 | 484.0 |
| | DWN | DOWNSTAIRS LIVING AREA | 4 | 0 | 2018 | 959.5 |
| | OP3 | OPEN PORCH W/ROOF | 4 | 0 | 2018 | 357.5 |
| | OWC | OPEN WOOD PORCH W/STEPS/ROOF/C | 4 | 0 | 2018 | 293.3 |
Sketch
Property Image
Land
| 1 | 14 | SQ (08001-12000) | 0.0000 | 0.00 | 0.00 | 0.00 | 1.00 | $360,000 | $0 |
Roll Value History
| 2026 | N/A | N/A | N/A | N/A | N/A |
| 2025 | $561,604 | $360,000 | $0 | $921,604 | $921,604 |
| 2024 | $566,171 | $260,000 | $0 | $826,171 | $826,171 |
| 2023 | $570,738 | $260,000 | $0 | $830,738 | $830,738 |
| 2022 | $520,935 | $250,000 | $0 | $770,935 | $770,935 |
| 2021 | $387,531 | $200,000 | $0 | $587,531 | $587,531 |
| 2020 | $377,530 | $150,000 | $0 | $527,530 | $527,530 |
| 2019 | $304,749 | $180,000 | $0 | $484,749 | $484,749 |
| 2018 | $321,351 | $175,000 | $0 | $496,351 | $496,351 |
| 2017 | $0 | $95,000 | $0 | $95,000 | $95,000 |
| 2016 | $0 | $105,000 | $0 | $105,000 | $105,000 |
| 2015 | $0 | $102,100 | $0 | $102,100 | $102,100 |
| 2014 | $0 | $102,100 | $0 | $102,100 | $102,100 |
| 2013 | $0 | $102,100 | $0 | $102,100 | $102,100 |
| 2012 | $0 | $102,100 | $0 | $102,100 | $102,100 |
| 2011 | $0 | $102,100 | $0 | $102,100 | $102,100 |
| 2010 | $0 | $102,100 | $0 | $102,100 | $102,100 |
| 2009 | $0 | $127,500 | $0 | $127,500 | $127,500 |
| 2008 | $0 | $127,500 | $0 | $127,500 | $127,500 |
| 2007 | $0 | $127,500 | $0 | $127,500 | $127,500 |
Deed and Sales History
| 1 | 07/12/2018 | WD | Warranty Deed | NW BUILDERS INC | WONG, TIMOTHY F | | | $680,000.00 | 35000 | 4447973 |
| 2 | 04/08/2017 | WD | Warranty Deed | KEARNS, DAVID P | NW BUILDERS INC | | | $60,000.00 | 28886 | 4420761 |
| 3 | 12/15/2015 | SPWARDEED | Special Warranty Deed | WILSON, ANDREA L | KEARNS, DAVID P | | | $0.00 | 22530 | 4391221 |
| 4 | 01/24/2006 | PRD | Personal Representatives Deed | WILSON, JANET M | WILSON, ANDREA L | | | $0.00 | 60504 | 4161751 |
| 5 | 07/01/1997 | WD | Warranty Deed | SORENSEN, MARY C | WILSON, JANET M | | | $0.00 | 72282 | 97010745 |
| 6 | 06/01/1987 | OTHER | Other - Misc. Documents | SORENSEN, HERBERT | SORENSEN, MARY C | | | $0.00 | 62218 | 0 |
| 7 | 01/01/1900 | OTHER | Other - Misc. Documents | Unknown | SORENSEN, HERBERT | | | $0.00 | 0 | 0 |
Payout Agreement
| No payout information available.. |