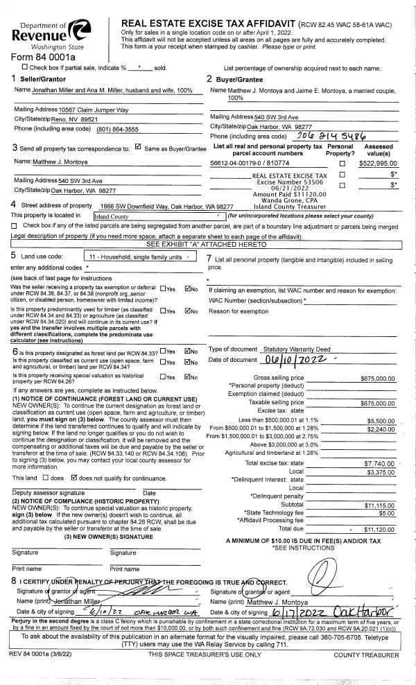
Property
Account |
| Property ID: | 221888 | Abbreviated Legal Description: | CAMANO SHORES 1 LOT 18 |
| Geographic ID: | S6270-00-00018-0 | Agent Code: | |
| Type: | Real | | |
| Tax Area: | 540 - APPRAISER-Stan/Cam Schl Dist, Special Dist, improved & less than 1 acre | Land Use Code | 11 |
| Open Space: | N | DFL | N |
| Historic Property: | N | Remodel Property: | N |
| Multi-Family Redevelopment: | N | | |
| Township: | | Section: | |
| Range: | |
Location |
| Address: | 2270 WAGNER RD CAMANO ISLAND, WA 98282 | Mapsco: | |
| Neighborhood: | Cycle 5 | Map ID: | 941 |
| Neighborhood CD: | 5 |
Owner |
| Name: | PETERSON, LAWRENCE R. | Owner ID: | 262621 |
| Mailing Address: | LINDA D PETERSON 198 FLEMING DR ALMA, MI 48801 | % Ownership: | 100.0000000000% |
| | | Exemptions: | |
Taxes and Assessment Details
Values
| (+) Improvement Homesite Value: | + | $0 | |
| (+) Improvement Non-Homesite Value: | + | $341,025 | |
| (+) Land Homesite Value: | + | $0 | |
| (+) Land Non-Homesite Value: | + | $360,000 | |
| (+) Curr Use (HS): | + | $0 | $0 |
| (+) Curr Use (NHS): | + | $0 | $0 |
| | | -------------------------- | |
| (=) Market Value: | = | $701,025 | |
| (–) Productivity Loss: | – | $0 | |
| | | -------------------------- | |
| (=) Subtotal: | = | $701,025 | |
| (+) Senior Appraised Value: | + | $0 | |
| (+) Non-Senior Appraised Value: | + | $701,025 | |
| | | -------------------------- | |
| (=) Total Appraised Value: | = | $701,025 | |
| (–) Senior Exemption Loss: | – | $0 | |
| (–) Exemption Loss: | – | $0 | |
| | | -------------------------- | |
| (=) Taxable Value: | = | $701,025 | |
Taxing Jurisdiction
| Owner: | PETERSON, LAWRENCE R. | | |
| % Ownership: | 100.0000000000% | | |
| Total Value: | $701,025 | | |
| Tax Area: | 540 - APPRAISER-Stan/Cam Schl Dist, Special Dist, improved & less than 1 acre |
| CF | Conservation Futures | 0.0316035091 | $701,025 | $701,025 | $22.15 | | |
| EMS1 | Fire & Rescue Dist #1 Camano GEN (EMS) | 0.3677864386 | $701,025 | $701,025 | $257.83 | | |
| FIRE1 | Fire & Rescue Dist #1 Camano GEN | 1.2502910536 | $701,025 | $701,025 | $876.49 | | |
| FIRE1BOND | Fire & Rescue Dist #1 Camano BOND | 0.1570001679 | $701,025 | $701,025 | $110.06 | | |
| CE | County Current Expense | 0.3708482477 | $701,025 | $701,025 | $259.97 | | |
| CR | County Roads | 0.4584763726 | $701,025 | $701,025 | $321.40 | | |
| LCIB | Library Sno-Isle BOND (Camano Island) | 0.0396325772 | $701,025 | $701,025 | $27.78 | | |
| LIB | Library Sno-Isle GEN | 0.3153421757 | $701,025 | $701,025 | $221.06 | | |
| SCH205_401 | School 205-401 Enrichment | 1.2698420524 | $701,025 | $701,025 | $890.19 | | |
| SCH205BOND | School 205-401 BOND | 0.9396497583 | $701,025 | $701,025 | $658.72 | | |
| ST | State School | 1.3035497053 | $701,025 | $701,025 | $913.82 | | |
| ST2 | State School Part 2 | 0.8169543533 | $701,025 | $701,025 | $572.71 | | |
| | Total Tax Rate: | 7.3209764117 | | | | | |
| | | | | Taxes w/Current Exemptions: | $5,132.18 | | |
| | | | | Taxes w/o Exemptions: | $5,132.18 | | |
Improvement / Building
| Improvement #1: | RESIDENTIAL | State Code: | Y | 2910.0 sqft | Value: | $341,025 |
| Bathrooms: | 3 | Bedrooms: | 3 | | Ceiling: | DRYWALL PAINTED | Exterior Wall/Cover: | WOOD SIDING | | Floor Covering: | HARDWOOD/CARP 20-80 | Floor Structure: | WOOD W/SUBFLOOR | | Foundation: | CONCRETE | Heating: | WALL HEAT ELECTRIC | | Interior Finish: | DRYWALL PAINT | Plumbing Fixture Cnt: | 12 | | Roof Slope: | 4" IN 12" | Roof Structure/Cover: | CJ ASPHALT |
|
| | Type | Description | Class CD | Sub Class CD | Year Built | Area |
| | BAS | BASE/MAIN FLOOR | 3 | 0 | 1989 | 1516.0 |
| | AGR | ATTACHED GARAGE | 3 | 0 | 1989 | 440.0 |
| | OWP | OPEN WOOD PORCH W/STEPS | 3 | 0 | 1989 | 90.0 |
| | OWP | OPEN WOOD PORCH W/STEPS | 3 | 0 | 1989 | 144.0 |
| | OWR | OPEN WOOD PORCH W/STEPS/ROOF | 3 | 0 | 1989 | 70.0 |
| | DWN | DOWNSTAIRS LIVING AREA | 3 | 0 | 1989 | 1394.0 |
Sketch
Property Image
Land
| 1 | 13 | SQ (06001-08000) | 0.0000 | 0.00 | 0.00 | 0.00 | 1.00 | $360,000 | $0 |
Roll Value History
| 2026 | N/A | N/A | N/A | N/A | N/A |
| 2025 | $341,025 | $360,000 | $0 | $701,025 | $701,025 |
| 2024 | $345,558 | $260,000 | $0 | $605,558 | $605,558 |
| 2023 | $350,090 | $260,000 | $0 | $610,090 | $610,090 |
| 2022 | $321,111 | $250,000 | $0 | $571,111 | $571,111 |
| 2021 | $281,686 | $200,000 | $0 | $481,686 | $481,686 |
| 2020 | $274,470 | $150,000 | $0 | $424,470 | $424,470 |
| 2019 | $199,335 | $180,000 | $0 | $379,335 | $379,335 |
| 2018 | $199,995 | $175,000 | $0 | $374,995 | $374,995 |
| 2017 | $201,321 | $125,000 | $0 | $326,321 | $326,321 |
| 2016 | $203,969 | $110,000 | $0 | $313,969 | $313,969 |
| 2015 | $198,971 | $110,112 | $0 | $309,083 | $309,083 |
| 2014 | $201,547 | $110,112 | $0 | $311,659 | $311,659 |
| 2013 | $204,126 | $110,112 | $0 | $314,238 | $314,238 |
| 2012 | $206,705 | $110,112 | $0 | $316,817 | $316,817 |
| 2011 | $209,282 | $137,640 | $0 | $346,922 | $346,922 |
| 2010 | $221,083 | $137,640 | $0 | $358,723 | $358,723 |
| 2009 | $222,005 | $190,000 | $0 | $412,005 | $412,005 |
| 2008 | $224,846 | $210,000 | $0 | $434,846 | $434,846 |
| 2007 | $227,716 | $210,000 | $0 | $437,716 | $437,716 |
Deed and Sales History
| 1 | 06/14/2013 | WD | Warranty Deed | EDDINS, ROGER & BETTY JO | PETERSON, LAWRENCE R. | | | $342,000.00 | 11673 | 4342105 |
| 2 | 04/01/1992 | QCD | Quit Claim Deed | EDDINS, ROGER | EDDINS, ROGER & | | | $0.00 | 21909 | 92009141 |
| 3 | 09/01/1989 | WD | Warranty Deed | FISHER, JOHN D | EDDINS, ROGER | | | $30,000.00 | 93996 | 89013269 |
| 4 | 08/01/1980 | EXECUTORD | Executor Deed | BREAKEY, JOHN W | FISHER, JOHN D | | | $20,000.00 | 2798 | 372801 |
| 5 | 01/01/1900 | OTHER | Other - Misc. Documents | Unknown | BREAKEY, JOHN W | | | $0.00 | 0 | 0 |
Payout Agreement
| No payout information available.. |