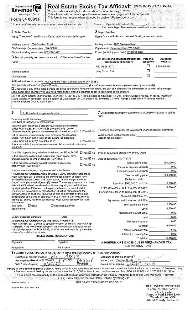
Property
Account |
| Property ID: | 221897 | Abbreviated Legal Description: | CAMANO SHORES 1 LOTS 19 & 20 |
| Geographic ID: | S6270-00-00019-0 | Agent Code: | |
| Type: | Real | | |
| Tax Area: | 540 - APPRAISER-Stan/Cam Schl Dist, Special Dist, improved & less than 1 acre | Land Use Code | 11 |
| Open Space: | N | DFL | N |
| Historic Property: | N | Remodel Property: | N |
| Multi-Family Redevelopment: | N | | |
| Township: | | Section: | |
| Range: | |
Location |
| Address: | 2256 ROBIN LN CAMANO ISLAND, WA 98282 | Mapsco: | |
| Neighborhood: | Cycle 5 | Map ID: | 941 |
| Neighborhood CD: | 5 |
Owner |
| Name: | ANDERSON TRUSTEE, DONALD H | Owner ID: | 63758 |
| Mailing Address: | MARY ANNE ANDERSON TRUSTEE 2256 ROBIN LN CAMANO ISLAND, WA 98282-8335 | % Ownership: | 100.0000000000% |
| | | Exemptions: | |
Taxes and Assessment Details
Values
| (+) Improvement Homesite Value: | + | $0 | |
| (+) Improvement Non-Homesite Value: | + | $437,214 | |
| (+) Land Homesite Value: | + | $0 | |
| (+) Land Non-Homesite Value: | + | $360,000 | |
| (+) Curr Use (HS): | + | $0 | $0 |
| (+) Curr Use (NHS): | + | $0 | $0 |
| | | -------------------------- | |
| (=) Market Value: | = | $797,214 | |
| (–) Productivity Loss: | – | $0 | |
| | | -------------------------- | |
| (=) Subtotal: | = | $797,214 | |
| (+) Senior Appraised Value: | + | $0 | |
| (+) Non-Senior Appraised Value: | + | $797,214 | |
| | | -------------------------- | |
| (=) Total Appraised Value: | = | $797,214 | |
| (–) Senior Exemption Loss: | – | $0 | |
| (–) Exemption Loss: | – | $0 | |
| | | -------------------------- | |
| (=) Taxable Value: | = | $797,214 | |
Taxing Jurisdiction
| Owner: | ANDERSON TRUSTEE, DONALD H | | |
| % Ownership: | 100.0000000000% | | |
| Total Value: | $797,214 | | |
| Tax Area: | 540 - APPRAISER-Stan/Cam Schl Dist, Special Dist, improved & less than 1 acre |
| CF | Conservation Futures | 0.0316035091 | $797,214 | $797,214 | $25.19 | | |
| EMS1 | Fire & Rescue Dist #1 Camano GEN (EMS) | 0.3677864386 | $797,214 | $797,214 | $293.20 | | |
| FIRE1 | Fire & Rescue Dist #1 Camano GEN | 1.2502910536 | $797,214 | $797,214 | $996.75 | | |
| FIRE1BOND | Fire & Rescue Dist #1 Camano BOND | 0.1570001679 | $797,214 | $797,214 | $125.16 | | |
| CE | County Current Expense | 0.3708482477 | $797,214 | $797,214 | $295.65 | | |
| CR | County Roads | 0.4584763726 | $797,214 | $797,214 | $365.50 | | |
| LCIB | Library Sno-Isle BOND (Camano Island) | 0.0396325772 | $797,214 | $797,214 | $31.60 | | |
| LIB | Library Sno-Isle GEN | 0.3153421757 | $797,214 | $797,214 | $251.40 | | |
| SCH205_401 | School 205-401 Enrichment | 1.2698420524 | $797,214 | $797,214 | $1,012.34 | | |
| SCH205BOND | School 205-401 BOND | 0.9396497583 | $797,214 | $797,214 | $749.10 | | |
| ST | State School | 1.3035497053 | $797,214 | $797,214 | $1,039.21 | | |
| ST2 | State School Part 2 | 0.8169543533 | $797,214 | $797,214 | $651.29 | | |
| | Total Tax Rate: | 7.3209764117 | | | | | |
| | | | | Taxes w/Current Exemptions: | $5,836.39 | | |
| | | | | Taxes w/o Exemptions: | $5,836.39 | | |
Improvement / Building
| Improvement #1: | RESIDENTIAL | State Code: | Y | 2746.0 sqft | Value: | $437,214 |
| Bathrooms: | 2.5 | Bedrooms: | 3 | | Ceiling: | DRY WALL SPRAYED | Exterior Wall/Cover: | WOOD SIDING | | Floor Covering: | HARDWOOD/CARP 60-40 | Floor Structure: | WOOD W/SUBFLOOR | | Foundation: | SLAB/CONCRETE | Heating: | WALL HEAT ELECTRIC | | Interior Finish: | DRYWALL PAINT | Plumbing Fixture Cnt: | 11 | | Roof Slope: | 5" IN 12" | Roof Structure/Cover: | CJ ASPHALT |
|
| | Type | Description | Class CD | Sub Class CD | Year Built | Area |
| | BAS | BASE/MAIN FLOOR | 4 | 0 | 1991 | 1670.0 |
| | DWN | DOWNSTAIRS LIVING AREA | 4 | 0 | 1991 | 1076.0 |
| | OP1 | OPEN PORCH SLAB | 4 | 0 | 1991 | 634.0 |
| | AGR | ATTACHED GARAGE | 4 | 0 | 1991 | 624.0 |
| | BIG | BUILT IN GARAGE | 4 | 0 | 1991 | 468.0 |
| | OWP | OPEN WOOD PORCH W/STEPS | 4 | 0 | 1991 | 580.0 |
| | OWR | OPEN WOOD PORCH W/STEPS/ROOF | 4 | 0 | 1991 | 80.0 |
Sketch
Property Image
Land
| 1 | 15 | SQ (12001-21780) | 0.0000 | 0.00 | 0.00 | 0.00 | 1.00 | $360,000 | $0 |
Roll Value History
| 2026 | N/A | N/A | N/A | N/A | N/A |
| 2025 | $437,214 | $360,000 | $0 | $797,214 | $797,214 |
| 2024 | $442,874 | $260,000 | $0 | $702,874 | $702,874 |
| 2023 | $448,535 | $260,000 | $0 | $708,535 | $708,535 |
| 2022 | $411,283 | $250,000 | $0 | $661,283 | $661,283 |
| 2021 | $324,920 | $200,000 | $0 | $524,920 | $524,920 |
| 2020 | $316,557 | $150,000 | $0 | $466,557 | $466,557 |
| 2019 | $230,496 | $180,000 | $0 | $410,496 | $410,496 |
| 2018 | $231,225 | $175,000 | $0 | $406,225 | $406,225 |
| 2017 | $232,678 | $125,000 | $0 | $357,678 | $357,678 |
| 2016 | $235,587 | $110,000 | $0 | $345,587 | $345,587 |
| 2015 | $230,493 | $110,112 | $0 | $340,605 | $340,605 |
| 2014 | $233,566 | $110,112 | $0 | $343,678 | $343,678 |
| 2013 | $236,639 | $110,112 | $0 | $346,751 | $346,751 |
| 2012 | $239,713 | $110,112 | $0 | $349,825 | $349,825 |
| 2011 | $242,784 | $137,640 | $0 | $380,424 | $380,424 |
| 2010 | $254,134 | $137,640 | $0 | $391,774 | $391,774 |
| 2009 | $265,054 | $190,000 | $0 | $455,054 | $455,054 |
| 2008 | $268,187 | $188,500 | $0 | $456,687 | $456,687 |
| 2007 | $271,321 | $188,500 | $0 | $459,821 | $459,821 |
Deed and Sales History
| 1 | 08/01/1993 | QCD | Quit Claim Deed | ANDERSON, DONALD H | ANDERSON, DONALD H | | | $0.00 | 33361 | 93017443 |
| 2 | 04/01/1990 | OTHER | Other - Misc. Documents | ANDERSON, DONALD H | ANDERSON, DONALD H | | | $0.00 | 63612 | 90006819 |
| 3 | 09/01/1988 | WD | Warranty Deed | BREAKEY, JOHN | ANDERSON, DONALD H | | | $16,500.00 | 83456 | 88012919 |
| 4 | 01/01/1900 | OTHER | Other - Misc. Documents | Unknown | BREAKEY, JOHN | | | $0.00 | 0 | 0 |
Payout Agreement
| No payout information available.. |