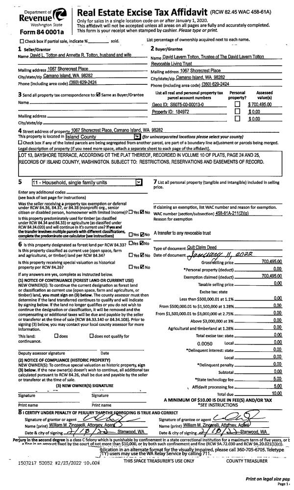
Property
Account |
| Property ID: | 221913 | Abbreviated Legal Description: | CAMANO SHORES 1 LOT 21 |
| Geographic ID: | S6270-00-00021-0 | Agent Code: | |
| Type: | Real | | |
| Tax Area: | 549 - APPRAISER-Stan/Cam Schl Dist, Special Dist, vacant & 50 acres or less | Land Use Code | 99 |
| Open Space: | N | DFL | N |
| Historic Property: | N | Remodel Property: | N |
| Multi-Family Redevelopment: | N | | |
| Township: | | Section: | |
| Range: | |
Location |
| Address: | | Mapsco: | |
| Neighborhood: | Cycle 5 | Map ID: | 941 |
| Neighborhood CD: | 5 |
Owner |
| Name: | ANDERSON, DONALD H | Owner ID: | 178458 |
| Mailing Address: | MARY ANN ANDERSON TRUSTEES 2256 ROBIN LN CAMANO ISLAND, WA 98282-8335 | % Ownership: | 100.0000000000% |
| | | Exemptions: | |
Taxes and Assessment Details
Values
| (+) Improvement Homesite Value: | + | $0 | |
| (+) Improvement Non-Homesite Value: | + | $0 | |
| (+) Land Homesite Value: | + | $0 | |
| (+) Land Non-Homesite Value: | + | $200,000 | |
| (+) Curr Use (HS): | + | $0 | $0 |
| (+) Curr Use (NHS): | + | $0 | $0 |
| | | -------------------------- | |
| (=) Market Value: | = | $200,000 | |
| (–) Productivity Loss: | – | $0 | |
| | | -------------------------- | |
| (=) Subtotal: | = | $200,000 | |
| (+) Senior Appraised Value: | + | $0 | |
| (+) Non-Senior Appraised Value: | + | $200,000 | |
| | | -------------------------- | |
| (=) Total Appraised Value: | = | $200,000 | |
| (–) Senior Exemption Loss: | – | $0 | |
| (–) Exemption Loss: | – | $0 | |
| | | -------------------------- | |
| (=) Taxable Value: | = | $200,000 | |
Taxing Jurisdiction
| Owner: | ANDERSON, DONALD H | | |
| % Ownership: | 100.0000000000% | | |
| Total Value: | $200,000 | | |
| Tax Area: | 549 - APPRAISER-Stan/Cam Schl Dist, Special Dist, vacant & 50 acres or less |
| CF | Conservation Futures | 0.0316035091 | $200,000 | $200,000 | $6.32 | | |
| EMS1 | Fire & Rescue Dist #1 Camano GEN (EMS) | 0.3677864386 | $200,000 | $200,000 | $73.56 | | |
| CE | County Current Expense | 0.3708482477 | $200,000 | $200,000 | $74.17 | | |
| CR | County Roads | 0.4584763726 | $200,000 | $200,000 | $91.70 | | |
| LCIB | Library Sno-Isle BOND (Camano Island) | 0.0396325772 | $200,000 | $200,000 | $7.93 | | |
| LIB | Library Sno-Isle GEN | 0.3153421757 | $200,000 | $200,000 | $63.07 | | |
| SCH205_401 | School 205-401 Enrichment | 1.2698420524 | $200,000 | $200,000 | $253.97 | | |
| SCH205BOND | School 205-401 BOND | 0.9396497583 | $200,000 | $200,000 | $187.93 | | |
| ST | State School | 1.3035497053 | $200,000 | $200,000 | $260.71 | | |
| ST2 | State School Part 2 | 0.8169543533 | $200,000 | $200,000 | $163.39 | | |
| | Total Tax Rate: | 5.9136851902 | | | | | |
| | | | | Taxes w/Current Exemptions: | $1,182.75 | | |
| | | | | Taxes w/o Exemptions: | $1,182.75 | | |
Improvement / Building
Sketch
| No sketches available for this property. |
Property Image
Land
| 1 | 14 | SQ (08001-12000) | 0.0000 | 0.00 | 0.00 | 0.00 | 1.00 | $200,000 | $0 |
Roll Value History
| 2026 | N/A | N/A | N/A | N/A | N/A |
| 2025 | $0 | $200,000 | $0 | $200,000 | $200,000 |
| 2024 | $0 | $200,000 | $0 | $200,000 | $200,000 |
| 2023 | $0 | $200,000 | $0 | $200,000 | $200,000 |
| 2022 | $0 | $200,000 | $0 | $200,000 | $200,000 |
| 2021 | $0 | $150,000 | $0 | $150,000 | $150,000 |
| 2020 | $0 | $110,000 | $0 | $110,000 | $110,000 |
| 2019 | $0 | $110,000 | $0 | $110,000 | $110,000 |
| 2018 | $0 | $95,000 | $0 | $95,000 | $95,000 |
| 2017 | $0 | $95,000 | $0 | $95,000 | $95,000 |
| 2016 | $0 | $105,000 | $0 | $105,000 | $105,000 |
| 2015 | $0 | $102,100 | $0 | $102,100 | $102,100 |
| 2014 | $0 | $102,100 | $0 | $102,100 | $102,100 |
| 2013 | $0 | $102,100 | $0 | $102,100 | $102,100 |
| 2012 | $0 | $102,100 | $0 | $102,100 | $102,100 |
| 2011 | $0 | $102,100 | $0 | $102,100 | $102,100 |
| 2010 | $0 | $102,100 | $0 | $102,100 | $102,100 |
| 2009 | $0 | $127,500 | $0 | $127,500 | $127,500 |
| 2008 | $0 | $127,500 | $0 | $127,500 | $127,500 |
| 2007 | $0 | $127,500 | $0 | $127,500 | $127,500 |
Deed and Sales History
| 1 | 10/14/1998 | WD | Warranty Deed | RIEGER, JURGEN K | ANDERSON, DONALD H | | | $50,000.00 | 84165 | 98022643 |
| 2 | 07/01/1989 | WD | Warranty Deed | SELMER, LOUIS D | RIEGER, JURGEN K | | | $23,500.00 | 92747 | 89009312 |
| 3 | 04/01/1984 | WD | Warranty Deed | STAN, JAMES E | SELMER, LOUIS D | | | $19,000.00 | 41090 | 423619 |
| 4 | 10/01/1978 | OTHER | Other - Misc. Documents | Unknown | STAN, JAMES E | | | $17,000.00 | 85301 | 342078 |
Payout Agreement
| No payout information available.. |