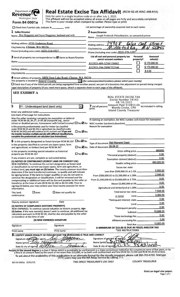
Property
Account |
| Property ID: | 222271 | Abbreviated Legal Description: | CAMANO SHORES 1 LOT 57 |
| Geographic ID: | S6270-00-00057-0 | Agent Code: | |
| Type: | Real | | |
| Tax Area: | 540 - APPRAISER-Stan/Cam Schl Dist, Special Dist, improved & less than 1 acre | Land Use Code | 11 |
| Open Space: | N | DFL | N |
| Historic Property: | N | Remodel Property: | N |
| Multi-Family Redevelopment: | N | | |
| Township: | | Section: | |
| Range: | |
Location |
| Address: | 2285 WAGNER RD CAMANO ISLAND, WA 98282 | Mapsco: | |
| Neighborhood: | Cycle 5 | Map ID: | 941 |
| Neighborhood CD: | 5 |
Owner |
| Name: | BODE TTEE, BRIAN JUDE | Owner ID: | 302485 |
| Mailing Address: | JANET SUZANNE BOOTH TTEE 2285 E WAGNER RD CAMANO ISLAND, WA 98282 | % Ownership: | 100.0000000000% |
| | | Exemptions: | |
Taxes and Assessment Details
Values
| (+) Improvement Homesite Value: | + | $0 | |
| (+) Improvement Non-Homesite Value: | + | $221,349 | |
| (+) Land Homesite Value: | + | $0 | |
| (+) Land Non-Homesite Value: | + | $260,000 | |
| (+) Curr Use (HS): | + | $0 | $0 |
| (+) Curr Use (NHS): | + | $0 | $0 |
| | | -------------------------- | |
| (=) Market Value: | = | $481,349 | |
| (–) Productivity Loss: | – | $0 | |
| | | -------------------------- | |
| (=) Subtotal: | = | $481,349 | |
| (+) Senior Appraised Value: | + | $0 | |
| (+) Non-Senior Appraised Value: | + | $481,349 | |
| | | -------------------------- | |
| (=) Total Appraised Value: | = | $481,349 | |
| (–) Senior Exemption Loss: | – | $0 | |
| (–) Exemption Loss: | – | $0 | |
| | | -------------------------- | |
| (=) Taxable Value: | = | $481,349 | |
Taxing Jurisdiction
| Owner: | BODE TTEE, BRIAN JUDE | | |
| % Ownership: | 100.0000000000% | | |
| Total Value: | $481,349 | | |
| Tax Area: | 540 - APPRAISER-Stan/Cam Schl Dist, Special Dist, improved & less than 1 acre |
| CF | Conservation Futures | 0.0316035091 | $481,349 | $481,349 | $15.21 | | |
| EMS1 | Fire & Rescue Dist #1 Camano GEN (EMS) | 0.3677864386 | $481,349 | $481,349 | $177.03 | | |
| FIRE1 | Fire & Rescue Dist #1 Camano GEN | 1.2502910536 | $481,349 | $481,349 | $601.83 | | |
| FIRE1BOND | Fire & Rescue Dist #1 Camano BOND | 0.1570001679 | $481,349 | $481,349 | $75.57 | | |
| CE | County Current Expense | 0.3708482477 | $481,349 | $481,349 | $178.51 | | |
| CR | County Roads | 0.4584763726 | $481,349 | $481,349 | $220.69 | | |
| LCIB | Library Sno-Isle BOND (Camano Island) | 0.0396325772 | $481,349 | $481,349 | $19.08 | | |
| LIB | Library Sno-Isle GEN | 0.3153421757 | $481,349 | $481,349 | $151.79 | | |
| SCH205_401 | School 205-401 Enrichment | 1.2698420524 | $481,349 | $481,349 | $611.24 | | |
| SCH205BOND | School 205-401 BOND | 0.9396497583 | $481,349 | $481,349 | $452.30 | | |
| ST | State School | 1.3035497053 | $481,349 | $481,349 | $627.46 | | |
| ST2 | State School Part 2 | 0.8169543533 | $481,349 | $481,349 | $393.24 | | |
| | Total Tax Rate: | 7.3209764117 | | | | | |
| | | | | Taxes w/Current Exemptions: | $3,523.95 | | |
| | | | | Taxes w/o Exemptions: | $3,523.95 | | |
Improvement / Building
| Improvement #1: | RESIDENTIAL | State Code: | Y | 1213.5 sqft | Value: | $221,349 |
| Bathrooms: | 1.5 | Bedrooms: | 2 | | Ceiling: | DRYWALL PAINTED | Exterior Wall/Cover: | CEMENT FIBER | | Floor Covering: | CARPET/VINYL 80-20 | Floor Structure: | WOOD W/SUBFLOOR | | Foundation: | CONCRETE | Heating: | WALL HEAT ELECTRIC | | Interior Finish: | DRYWALL PAINT | Plumbing Fixture Cnt: | 8 | | Roof Slope: | 4" IN 12" | Roof Structure/Cover: | CJ ASPHALT |
|
| | Type | Description | Class CD | Sub Class CD | Year Built | Area |
| | BAS | BASE/MAIN FLOOR | 3 | 0 | 2002 | 1213.5 |
| | AGR | ATTACHED GARAGE | 3 | 0 | 2002 | 457.0 |
| | OWC | OPEN WOOD PORCH W/STEPS/ROOF/C | 3 | 0 | 2002 | 92.5 |
| | OWC | OPEN WOOD PORCH W/STEPS/ROOF/C | 3 | 0 | 2002 | 122.2 |
Sketch
Property Image
Land
| 1 | 13 | SQ (06001-08000) | 0.1300 | 5662.80 | 0.00 | 0.00 | 1.00 | $260,000 | $0 |
Roll Value History
| 2026 | N/A | N/A | N/A | N/A | N/A |
| 2025 | $221,349 | $260,000 | $0 | $481,349 | $481,349 |
| 2024 | $224,107 | $250,000 | $0 | $474,107 | $474,107 |
| 2023 | $226,867 | $250,000 | $0 | $476,867 | $476,867 |
| 2022 | $207,923 | $220,000 | $0 | $427,923 | $427,923 |
| 2021 | $182,972 | $200,000 | $0 | $382,972 | $382,972 |
| 2020 | $178,047 | $150,000 | $0 | $328,047 | $328,047 |
| 2019 | $126,991 | $180,000 | $0 | $306,991 | $306,991 |
| 2018 | $127,360 | $175,000 | $0 | $302,360 | $302,360 |
| 2017 | $127,808 | $125,000 | $0 | $252,808 | $252,808 |
| 2016 | $129,277 | $110,000 | $0 | $239,277 | $239,277 |
| 2015 | $127,615 | $110,112 | $0 | $237,727 | $237,727 |
| 2014 | $129,087 | $110,112 | $0 | $239,199 | $239,199 |
| 2013 | $130,557 | $110,112 | $0 | $240,669 | $240,669 |
| 2012 | $132,028 | $110,112 | $0 | $242,140 | $242,140 |
| 2011 | $133,499 | $137,640 | $0 | $271,139 | $271,139 |
| 2010 | $137,158 | $137,640 | $0 | $274,798 | $274,798 |
| 2009 | $141,529 | $160,000 | $0 | $301,529 | $301,529 |
| 2008 | $143,214 | $190,000 | $0 | $333,214 | $333,214 |
| 2007 | $146,384 | $190,000 | $0 | $336,384 | $336,384 |
Deed and Sales History
| 1 | 12/22/2021 | QCD | Quit Claim Deed | BODE, BRIAN J | BODE TTEE, BRIAN JUDE | | | $0.00 | 51474 | 4536689 |
| 2 | 08/13/2013 | WD | Warranty Deed | STEVENS, HEATHER L | BODE, BRIAN J | | | $235,000.00 | 12394 | 4346333 |
| 3 | 06/28/2012 | ESTSEPPROP | Establish Separate Property | STEVENS, JOSEPH R | STEVENS, HEATHER L | | | $0.00 | 8136 | 4318521 |
| 4 | 06/14/2012 | WD | Warranty Deed | HOWISEY, MARILYN | STEVENS, HEATHER L | | | $234,000.00 | 8135 | 4318520 |
| 5 | 10/03/2008 | WD | Warranty Deed | CANTRELL TTEE, GLENDA DIANE | HOWISEY, MARILYN | | | $315,000.00 | 82618 | 4237942 |
| 6 | 08/02/2007 | QCD | Quit Claim Deed | CANTRELL, GLENDA DIANE | CANTRELL TTEE, GLENDA DIANE | | | $0.00 | 72632 | 4208684 |
| 7 | 07/15/2002 | WD | Warranty Deed | CONSTRUCTION, WICKSTROM | CANTRELL, GLENDA DIANE | | | $165,000.00 | 22781 | 4025900 |
| 8 | 03/07/2002 | WD | Warranty Deed | WALKER, DALE & | CONSTRUCTION, WICKSTROM | | | $47,000.00 | 20910 | 4013746 |
| 9 | 09/01/1997 | QCD | Quit Claim Deed | ERICKSON, DONALD L | WALKER, DALE & | | | $0.00 | 73209 | 97015125 |
| 10 | 07/01/1997 | WD | Warranty Deed | FREDRICKSON, JILL P | ERICKSON, DONALD L | | | $24,500.00 | 72329 | 97011017 |
| 11 | 09/01/1984 | OTHER | Other - Misc. Documents | GUNTHER, JILL P | FREDRICKSON, JILL P | | | $0.00 | 60801 | 0 |
| 12 | 01/01/1900 | OTHER | Other - Misc. Documents | Unknown | GUNTHER, JILL P | | | $0.00 | 0 | 0 |
Payout Agreement
| No payout information available.. |