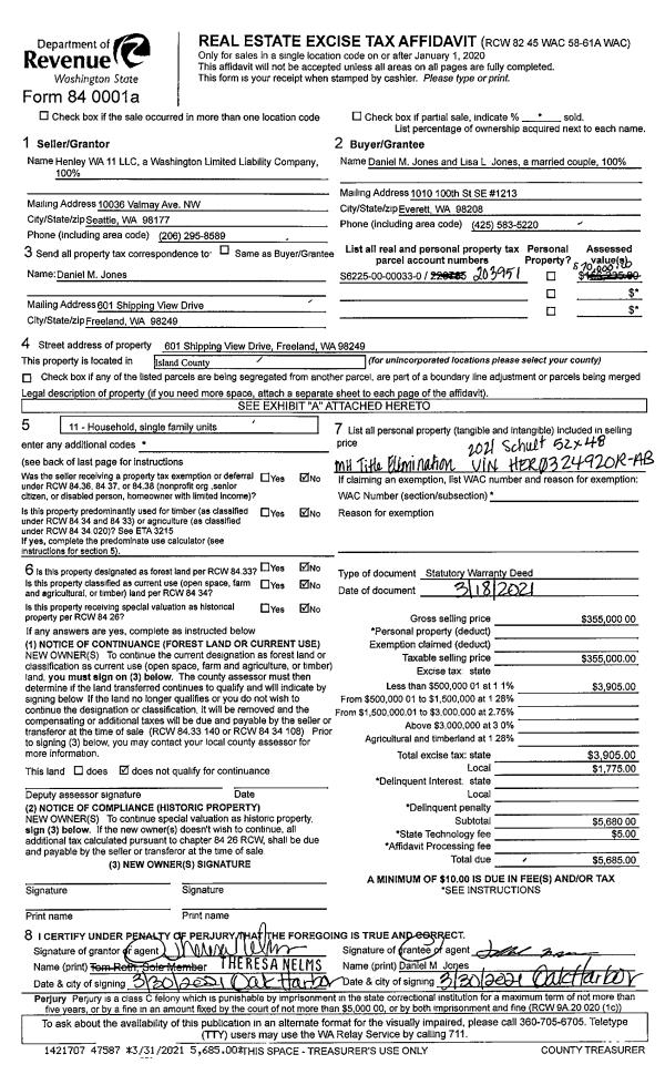
Property
Account |
| Property ID: | 222280 | Abbreviated Legal Description: | CAMANO SHORES 1 LOT 58 |
| Geographic ID: | S6270-00-00058-0 | Agent Code: | |
| Type: | Real | | |
| Tax Area: | 540 - APPRAISER-Stan/Cam Schl Dist, Special Dist, improved & less than 1 acre | Land Use Code | 11 |
| Open Space: | N | DFL | N |
| Historic Property: | N | Remodel Property: | N |
| Multi-Family Redevelopment: | N | | |
| Township: | | Section: | |
| Range: | |
Location |
| Address: | 2281 WAGNER RD CAMANO ISLAND, WA 98282 | Mapsco: | |
| Neighborhood: | Cycle 5 | Map ID: | 941 |
| Neighborhood CD: | 5 |
Owner |
| Name: | COSMO TTEE, ARVA GAIL | Owner ID: | 296767 |
| Mailing Address: | 2281 WAGNER RD CAMANO ISLAND, WA 98282 | % Ownership: | 100.0000000000% |
| | | Exemptions: | |
Taxes and Assessment Details
Values
| (+) Improvement Homesite Value: | + | $0 | |
| (+) Improvement Non-Homesite Value: | + | $366,220 | |
| (+) Land Homesite Value: | + | $0 | |
| (+) Land Non-Homesite Value: | + | $270,000 | |
| (+) Curr Use (HS): | + | $0 | $0 |
| (+) Curr Use (NHS): | + | $0 | $0 |
| | | -------------------------- | |
| (=) Market Value: | = | $636,220 | |
| (–) Productivity Loss: | – | $0 | |
| | | -------------------------- | |
| (=) Subtotal: | = | $636,220 | |
| (+) Senior Appraised Value: | + | $0 | |
| (+) Non-Senior Appraised Value: | + | $636,220 | |
| | | -------------------------- | |
| (=) Total Appraised Value: | = | $636,220 | |
| (–) Senior Exemption Loss: | – | $0 | |
| (–) Exemption Loss: | – | $0 | |
| | | -------------------------- | |
| (=) Taxable Value: | = | $636,220 | |
Taxing Jurisdiction
| Owner: | COSMO TTEE, ARVA GAIL | | |
| % Ownership: | 100.0000000000% | | |
| Total Value: | $636,220 | | |
| Tax Area: | 540 - APPRAISER-Stan/Cam Schl Dist, Special Dist, improved & less than 1 acre |
| CF | Conservation Futures | 0.0316035091 | $636,220 | $636,220 | $20.11 | | |
| EMS1 | Fire & Rescue Dist #1 Camano GEN (EMS) | 0.3677864386 | $636,220 | $636,220 | $233.99 | | |
| FIRE1 | Fire & Rescue Dist #1 Camano GEN | 1.2502910536 | $636,220 | $636,220 | $795.46 | | |
| FIRE1BOND | Fire & Rescue Dist #1 Camano BOND | 0.1570001679 | $636,220 | $636,220 | $99.89 | | |
| CE | County Current Expense | 0.3708482477 | $636,220 | $636,220 | $235.94 | | |
| CR | County Roads | 0.4584763726 | $636,220 | $636,220 | $291.69 | | |
| LCIB | Library Sno-Isle BOND (Camano Island) | 0.0396325772 | $636,220 | $636,220 | $25.22 | | |
| LIB | Library Sno-Isle GEN | 0.3153421757 | $636,220 | $636,220 | $200.63 | | |
| SCH205_401 | School 205-401 Enrichment | 1.2698420524 | $636,220 | $636,220 | $807.90 | | |
| SCH205BOND | School 205-401 BOND | 0.9396497583 | $636,220 | $636,220 | $597.82 | | |
| ST | State School | 1.3035497053 | $636,220 | $636,220 | $829.34 | | |
| ST2 | State School Part 2 | 0.8169543533 | $636,220 | $636,220 | $519.76 | | |
| | Total Tax Rate: | 7.3209764117 | | | | | |
| | | | | Taxes w/Current Exemptions: | $4,657.75 | | |
| | | | | Taxes w/o Exemptions: | $4,657.75 | | |
Improvement / Building
| Improvement #1: | RESIDENTIAL | State Code: | Y | 1746.0 sqft | Value: | $366,220 |
| Bathrooms: | 1.75 | Bedrooms: | 3 | | Ceiling: | DRYWALL PAINTED | Exterior Wall/Cover: | WOOD SIDING | | Floor Covering: | CARPET/VINYL 80-20 | Floor Structure: | WOOD W/SUBFLOOR | | Foundation: | CONCRETE | Heating: | BASEBOARD ELECTRIC | | Interior Finish: | DRYWALL PAINT | Plumbing Fixture Cnt: | 9 | | Roof Slope: | 6" IN 12" | Roof Structure/Cover: | CJ ASPHALT |
|
| | Type | Description | Class CD | Sub Class CD | Year Built | Area |
| | BAS | BASE/MAIN FLOOR | 4 | 0 | 1983 | 1746.0 |
| | AGR | ATTACHED GARAGE | 4 | 0 | 1983 | 792.0 |
| | OWP | OPEN WOOD PORCH W/STEPS | 4 | 0 | 1983 | 164.0 |
| | OWP | OPEN WOOD PORCH W/STEPS | 4 | 0 | 1983 | 60.0 |
| | OWP | OPEN WOOD PORCH W/STEPS | 4 | 0 | 1983 | 338.0 |
| | OWC | OPEN WOOD PORCH W/STEPS/ROOF/C | 4 | 0 | 1983 | 80.0 |
| | OWC | OPEN WOOD PORCH W/STEPS/ROOF/C | 4 | 0 | 1983 | 40.0 |
Sketch
Property Image
Land
| 1 | 14 | SQ (08001-12000) | 0.0000 | 0.00 | 0.00 | 0.00 | 1.00 | $270,000 | $0 |
Roll Value History
| 2026 | N/A | N/A | N/A | N/A | N/A |
| 2025 | $366,220 | $270,000 | $0 | $636,220 | $636,220 |
| 2024 | $378,286 | $250,000 | $0 | $628,286 | $628,286 |
| 2023 | $382,886 | $250,000 | $0 | $632,886 | $632,886 |
| 2022 | $350,877 | $220,000 | $0 | $570,877 | $570,877 |
| 2021 | $308,720 | $200,000 | $0 | $508,720 | $508,720 |
| 2020 | $224,316 | $150,000 | $0 | $374,316 | $374,316 |
| 2019 | $166,304 | $180,000 | $0 | $346,304 | $346,304 |
| 2018 | $166,830 | $175,000 | $0 | $341,830 | $341,830 |
| 2017 | $167,878 | $125,000 | $0 | $292,878 | $292,878 |
| 2016 | $169,977 | $110,000 | $0 | $279,977 | $279,977 |
| 2015 | $139,054 | $110,112 | $0 | $249,166 | $249,166 |
| 2014 | $152,769 | $110,112 | $0 | $262,881 | $262,881 |
| 2013 | $168,797 | $110,112 | $0 | $278,909 | $278,909 |
| 2012 | $171,131 | $110,112 | $0 | $281,243 | $281,243 |
| 2011 | $173,469 | $137,640 | $0 | $311,109 | $311,109 |
| 2010 | $181,805 | $137,640 | $0 | $319,445 | $319,445 |
| 2009 | $186,877 | $160,000 | $0 | $346,877 | $346,877 |
| 2008 | $189,263 | $125,000 | $0 | $314,263 | $314,263 |
| 2007 | $189,263 | $125,000 | $0 | $314,263 | $314,263 |
Deed and Sales History
| 1 | 11/12/2020 | WD | Warranty Deed | ENGLAND, GARY K | COSMO TTEE, ARVA GAIL | | | $515,000.00 | 45817 | 4503022 |
| 2 | 01/17/2019 | WD | Warranty Deed | WOOD, BARRY L | ENGLAND, GARY K | | | $357,700.00 | 37363 | 4458196 |
| 3 | 10/21/2013 | ESTSEPPROP | Establish Separate Property | WOOD, BARRY L | WOOD, BARRY L | | | $0.00 | 13239 | 4350442 |
| 4 | 10/21/2013 | WD | Warranty Deed | DUGDALE, RICHARD W / MARY E | WOOD, BARRY L | | | $187,186.00 | 13238 | 4350441 |
| 5 | 01/01/1995 | WD | Warranty Deed | SMITH, JAMES A | DUGDALE, RICHARD W | | | $170,000.00 | 50279 | 95001281 |
| 6 | 03/01/1983 | WD | Warranty Deed | NELSON, WAYNE S | SMITH, JAMES A | | | $15,000.00 | 31030 | 408537 |
| 7 | 01/01/1900 | OTHER | Other - Misc. Documents | Unknown | NELSON, WAYNE S | | | $0.00 | 0 | 0 |
Payout Agreement
| No payout information available.. |