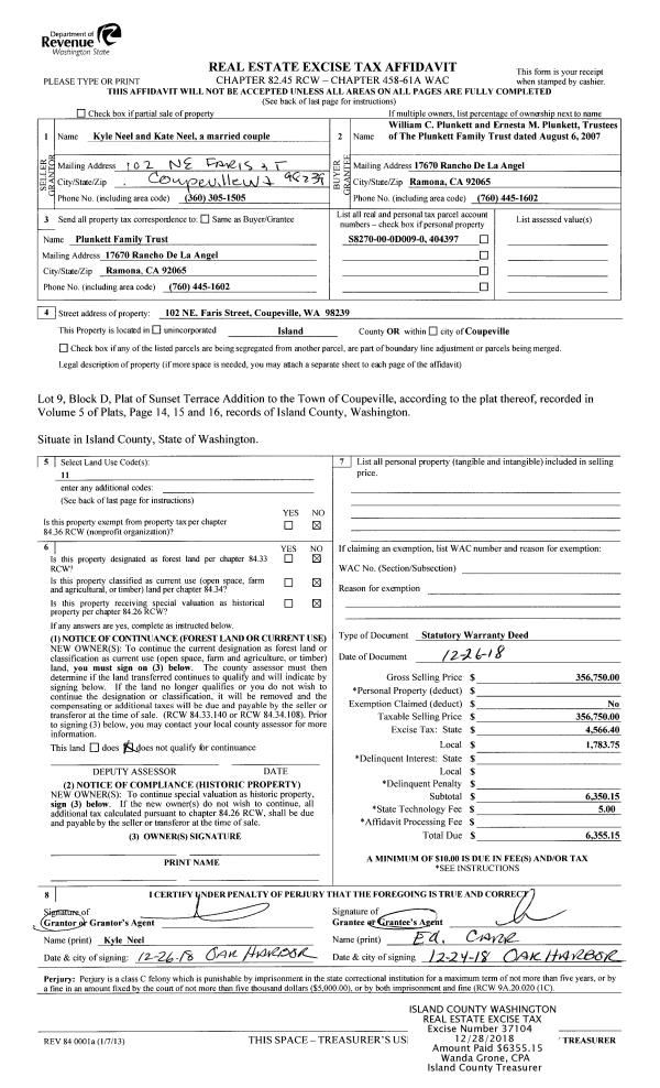
Property
Account |
| Property ID: | 222743 | Abbreviated Legal Description: | CAM VIEW TERR 2 LOT 6 TGW EZ AF#95017509 |
| Geographic ID: | S6275-02-00006-0 | Agent Code: | |
| Type: | Real | | |
| Tax Area: | 510 - APPRAISER-Stan/Cam Schl Dist, improved & 1 acre or less | Land Use Code | 11 |
| Open Space: | N | DFL | N |
| Historic Property: | N | Remodel Property: | N |
| Multi-Family Redevelopment: | N | | |
| Township: | | Section: | |
| Range: | |
Location |
| Address: | 689 CAMANO VIEW RD CAMANO ISLAND, WA 98282 | Mapsco: | |
| Neighborhood: | Cycle 5 | Map ID: | 481 |
| Neighborhood CD: | 5 |
Owner |
| Name: | SERIO, SUSAN J | Owner ID: | 287500 |
| Mailing Address: | 689 CAMANO VIEW RD CAMANO ISLAND, WA 98282 | % Ownership: | 100.0000000000% |
| | | Exemptions: | |
Taxes and Assessment Details
Values
| (+) Improvement Homesite Value: | + | $0 | |
| (+) Improvement Non-Homesite Value: | + | $300,996 | |
| (+) Land Homesite Value: | + | $0 | |
| (+) Land Non-Homesite Value: | + | $270,000 | |
| (+) Curr Use (HS): | + | $0 | $0 |
| (+) Curr Use (NHS): | + | $0 | $0 |
| | | -------------------------- | |
| (=) Market Value: | = | $570,996 | |
| (–) Productivity Loss: | – | $0 | |
| | | -------------------------- | |
| (=) Subtotal: | = | $570,996 | |
| (+) Senior Appraised Value: | + | $0 | |
| (+) Non-Senior Appraised Value: | + | $570,996 | |
| | | -------------------------- | |
| (=) Total Appraised Value: | = | $570,996 | |
| (–) Senior Exemption Loss: | – | $0 | |
| (–) Exemption Loss: | – | $0 | |
| | | -------------------------- | |
| (=) Taxable Value: | = | $570,996 | |
Taxing Jurisdiction
| Owner: | SERIO, SUSAN J | | |
| % Ownership: | 100.0000000000% | | |
| Total Value: | $570,996 | | |
| Tax Area: | 510 - APPRAISER-Stan/Cam Schl Dist, improved & 1 acre or less |
| CF | Conservation Futures | 0.0316035091 | $570,996 | $570,996 | $18.05 | | |
| EMS1 | Fire & Rescue Dist #1 Camano GEN (EMS) | 0.3677864386 | $570,996 | $570,996 | $210.00 | | |
| FIRE1 | Fire & Rescue Dist #1 Camano GEN | 1.2502910536 | $570,996 | $570,996 | $713.91 | | |
| FIRE1BOND | Fire & Rescue Dist #1 Camano BOND | 0.1570001679 | $570,996 | $570,996 | $89.65 | | |
| CE | County Current Expense | 0.3708482477 | $570,996 | $570,996 | $211.75 | | |
| CR | County Roads | 0.4584763726 | $570,996 | $570,996 | $261.79 | | |
| LCIB | Library Sno-Isle BOND (Camano Island) | 0.0396325772 | $570,996 | $570,996 | $22.63 | | |
| LIB | Library Sno-Isle GEN | 0.3153421757 | $570,996 | $570,996 | $180.06 | | |
| SCH205_401 | School 205-401 Enrichment | 1.2698420524 | $570,996 | $570,996 | $725.07 | | |
| SCH205BOND | School 205-401 BOND | 0.9396497583 | $570,996 | $570,996 | $536.54 | | |
| ST | State School | 1.3035497053 | $570,996 | $570,996 | $744.32 | | |
| ST2 | State School Part 2 | 0.8169543533 | $570,996 | $570,996 | $466.48 | | |
| | Total Tax Rate: | 7.3209764117 | | | | | |
| | | | | Taxes w/Current Exemptions: | $4,180.25 | | |
| | | | | Taxes w/o Exemptions: | $4,180.25 | | |
Improvement / Building
| Improvement #1: | RESIDENTIAL | State Code: | Y | 1200.0 sqft | Value: | $300,996 |
| Bathrooms: | 2 | Bedrooms: | 2 | | Ceiling: | DRYWALL PAINTED | Exterior Wall/Cover: | CEMENT FIBER | | Floor Covering: | VINYL 100% | Floor Structure: | WOOD W/SUBFLOOR | | Foundation: | CONCRETE | Heating: | WALL HEAT ELECTRIC | | Interior Finish: | DRYWALL PAINT | Plumbing Fixture Cnt: | 9 | | Roof Slope: | 4" IN 12" | Roof Structure/Cover: | CJ ASPHALT |
|
| | Type | Description | Class CD | Sub Class CD | Year Built | Area |
| | BAS | BASE/MAIN FLOOR | 3 | 0 | 2015 | 1200.0 |
| | AGR | ATTACHED GARAGE | 3 | 0 | 2015 | 484.0 |
| | ENP | ENCLOSED PORCH | 3 | 0 | 2015 | 320.0 |
| | OWR | OPEN WOOD PORCH W/STEPS/ROOF | 3 | 0 | 2015 | 256.0 |
| | UTY | STORAGE/UTILITY | 3 | 0 | 2015 | 81.8 |
Sketch
Property Image
Land
| 1 | 14 | SQ (08001-12000) | 0.0000 | 0.00 | 0.00 | 0.00 | 1.00 | $270,000 | $0 |
Roll Value History
| 2026 | N/A | N/A | N/A | N/A | N/A |
| 2025 | $300,996 | $270,000 | $0 | $570,996 | $570,996 |
| 2024 | $303,442 | $270,000 | $0 | $573,442 | $573,442 |
| 2023 | $305,890 | $210,000 | $0 | $515,890 | $515,890 |
| 2022 | $279,217 | $210,000 | $0 | $489,217 | $489,217 |
| 2021 | $238,943 | $150,000 | $0 | $388,943 | $388,943 |
| 2020 | $231,406 | $150,000 | $0 | $381,406 | $381,406 |
| 2019 | $166,472 | $170,000 | $0 | $336,472 | $336,472 |
| 2018 | $151,545 | $130,000 | $0 | $281,545 | $281,545 |
| 2017 | $141,855 | $110,000 | $0 | $251,855 | $251,855 |
| 2016 | $143,318 | $110,000 | $0 | $253,318 | $253,318 |
| 2015 | $0 | $73,500 | $0 | $73,500 | $73,500 |
| 2014 | $0 | $73,500 | $0 | $73,500 | $73,500 |
| 2013 | $0 | $73,500 | $0 | $73,500 | $73,500 |
| 2012 | $0 | $73,500 | $0 | $73,500 | $73,500 |
| 2011 | $0 | $73,500 | $0 | $73,500 | $73,500 |
| 2010 | $0 | $73,500 | $0 | $73,500 | $73,500 |
| 2009 | $0 | $74,300 | $0 | $74,300 | $74,300 |
| 2008 | $0 | $74,000 | $0 | $74,000 | $74,000 |
| 2007 | $0 | $77,200 | $0 | $77,200 | $77,200 |
Deed and Sales History
| 1 | 09/27/2018 | WD | Warranty Deed | GOODRICH, ROBERTA J | SERIO, SUSAN J | | | $345,000.00 | 36178 | 4452930 |
| 2 | 03/30/2015 | WD | Warranty Deed | SANT, LANE T | GOODRICH, ROBERTA J | | | $67,700.00 | 19000 | 4375864 |
| 3 | 01/27/1999 | WD | Warranty Deed | Unknown | SANT, LANE T | | | $59,000.00 | 90492 | 99003366 |
Payout Agreement
| No payout information available.. |