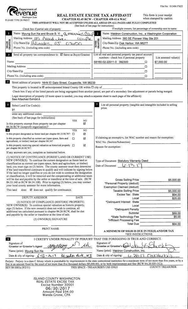
Property
Account |
| Property ID: | 222985 | Abbreviated Legal Description: | CAM VISTA 1 LOT 19 |
| Geographic ID: | S6280-00-00019-0 | Agent Code: | |
| Type: | Real | | |
| Tax Area: | 560 - APPRAISER-Stan/Cam Schl Dist, Special Dist, improved & less than 1 acre | Land Use Code | 11 |
| Open Space: | N | DFL | N |
| Historic Property: | N | Remodel Property: | N |
| Multi-Family Redevelopment: | N | | |
| Township: | | Section: | |
| Range: | |
Location |
| Address: | 3020 SAUK DR CAMANO ISLAND, WA 98282 | Mapsco: | |
| Neighborhood: | 58CamanoVistaS | Map ID: | 864 |
| Neighborhood CD: | 58RcmvstaS |
Owner |
| Name: | SPENCER, MICHAEL | Owner ID: | 285127 |
| Mailing Address: | MARIA R SPENCER 3020 SAUK DR CAMANO ISLAND, WA 98282 | % Ownership: | 100.0000000000% |
| | | Exemptions: | |
Taxes and Assessment Details
Values
| (+) Improvement Homesite Value: | + | $0 | |
| (+) Improvement Non-Homesite Value: | + | $332,614 | |
| (+) Land Homesite Value: | + | $0 | |
| (+) Land Non-Homesite Value: | + | $210,000 | |
| (+) Curr Use (HS): | + | $0 | $0 |
| (+) Curr Use (NHS): | + | $0 | $0 |
| | | -------------------------- | |
| (=) Market Value: | = | $542,614 | |
| (–) Productivity Loss: | – | $0 | |
| | | -------------------------- | |
| (=) Subtotal: | = | $542,614 | |
| (+) Senior Appraised Value: | + | $0 | |
| (+) Non-Senior Appraised Value: | + | $542,614 | |
| | | -------------------------- | |
| (=) Total Appraised Value: | = | $542,614 | |
| (–) Senior Exemption Loss: | – | $0 | |
| (–) Exemption Loss: | – | $0 | |
| | | -------------------------- | |
| (=) Taxable Value: | = | $542,614 | |
Taxing Jurisdiction
| Owner: | SPENCER, MICHAEL | | |
| % Ownership: | 100.0000000000% | | |
| Total Value: | $542,614 | | |
| Tax Area: | 560 - APPRAISER-Stan/Cam Schl Dist, Special Dist, improved & less than 1 acre |
| CF | Conservation Futures | 0.0316035091 | $542,614 | $542,614 | $17.15 | | |
| EMS1 | Fire & Rescue Dist #1 Camano GEN (EMS) | 0.3677864386 | $542,614 | $542,614 | $199.57 | | |
| FIRE1 | Fire & Rescue Dist #1 Camano GEN | 1.2502910536 | $542,614 | $542,614 | $678.43 | | |
| FIRE1BOND | Fire & Rescue Dist #1 Camano BOND | 0.1570001679 | $542,614 | $542,614 | $85.19 | | |
| CE | County Current Expense | 0.3708482477 | $542,614 | $542,614 | $201.23 | | |
| CR | County Roads | 0.4584763726 | $542,614 | $542,614 | $248.78 | | |
| LCIB | Library Sno-Isle BOND (Camano Island) | 0.0396325772 | $542,614 | $542,614 | $21.51 | | |
| LIB | Library Sno-Isle GEN | 0.3153421757 | $542,614 | $542,614 | $171.11 | | |
| SCH205_401 | School 205-401 Enrichment | 1.2698420524 | $542,614 | $542,614 | $689.03 | | |
| SCH205BOND | School 205-401 BOND | 0.9396497583 | $542,614 | $542,614 | $509.87 | | |
| ST | State School | 1.3035497053 | $542,614 | $542,614 | $707.32 | | |
| ST2 | State School Part 2 | 0.8169543533 | $542,614 | $542,614 | $443.29 | | |
| | Total Tax Rate: | 7.3209764117 | | | | | |
| | | | | Taxes w/Current Exemptions: | $3,972.48 | | |
| | | | | Taxes w/o Exemptions: | $3,972.48 | | |
Improvement / Building
| Improvement #1: | RESIDENTIAL | State Code: | Y | 1453.5 sqft | Value: | $332,614 |
| Bathrooms: | 2 | Bedrooms: | 2 | | Ceiling: | DRYWALL PAINTED | Exterior Wall/Cover: | CEMENT FIBER | | Floor Covering: | HARDWOOD/CARP 60-40 | Floor Structure: | WOOD W/SUBFLOOR | | Foundation: | CONCRETE | Heating: | FHA GAS | | Interior Finish: | DRYWALL PAINT | Plumbing Fixture Cnt: | 10 | | Roof Slope: | 6" IN 12" | Roof Structure/Cover: | CJ ASPHALT |
|
| | Type | Description | Class CD | Sub Class CD | Year Built | Area |
| | BAS | BASE/MAIN FLOOR | 3 | 0 | 2018 | 1453.5 |
| | OP1 | OPEN PORCH SLAB | 3 | 0 | 2018 | 434.9 |
| | AGR | ATTACHED GARAGE | 3 | 0 | 2018 | 420.0 |
| | OP1 | OPEN PORCH SLAB | 3 | 0 | 2018 | 240.0 |
Sketch
Property Image
Land
| 1 | 14 | SQ (08001-12000) | 0.0000 | 0.00 | 0.00 | 0.00 | 1.00 | $210,000 | $0 |
Roll Value History
| 2026 | N/A | N/A | N/A | N/A | N/A |
| 2025 | $332,614 | $210,000 | $0 | $542,614 | $542,614 |
| 2024 | $335,319 | $185,000 | $0 | $520,319 | $520,319 |
| 2023 | $338,024 | $180,000 | $0 | $518,024 | $518,024 |
| 2022 | $308,526 | $180,000 | $0 | $488,526 | $488,526 |
| 2021 | $270,423 | $140,000 | $0 | $410,423 | $410,423 |
| 2020 | $262,908 | $100,000 | $0 | $362,908 | $362,908 |
| 2019 | $193,690 | $130,000 | $0 | $323,690 | $323,690 |
| 2018 | $195,154 | $35,000 | $0 | $230,154 | $230,154 |
| 2017 | $0 | $30,000 | $0 | $30,000 | $30,000 |
| 2016 | $0 | $30,000 | $0 | $30,000 | $30,000 |
| 2015 | $0 | $25,000 | $0 | $25,000 | $25,000 |
| 2014 | $0 | $25,000 | $0 | $25,000 | $25,000 |
| 2013 | $0 | $40,000 | $0 | $40,000 | $40,000 |
| 2012 | $0 | $49,500 | $0 | $49,500 | $49,500 |
| 2011 | $0 | $12,750 | $0 | $12,750 | $12,750 |
| 2010 | $0 | $12,750 | $0 | $12,750 | $12,750 |
| 2009 | $0 | $14,400 | $0 | $14,400 | $14,400 |
| 2008 | $0 | $16,330 | $0 | $16,330 | $16,330 |
| 2007 | $0 | $16,000 | $0 | $16,000 | $16,000 |
Deed and Sales History
| 1 | 05/22/2018 | WD | Warranty Deed | TITAN FRAMING, LLC | SPENCER, MICHAEL | | | $320,000.00 | 34204 | 4444870 |
| 2 | 07/26/2017 | WD | Warranty Deed | BULGER, W F | TITAN FRAMING, LLC | | | $36,200.00 | 30376 | 4427048 |
| 3 | 04/01/1984 | REC | Real Estate Contract | BULGER, W F | ROGERS, WILLIAM T | | | $0.00 | 41033 | 0 |
| 4 | 04/01/1984 | REC | Real Estate Contract | ROGERS, WILLIAM T | BULGER, W F | | | $3,000.00 | 41141 | 423774 |
| 5 | 01/01/1900 | OTHER | Other - Misc. Documents | Unknown | ROGERS, WILLIAM T | | | $0.00 | 0 | 0 |
Payout Agreement
| No payout information available.. |