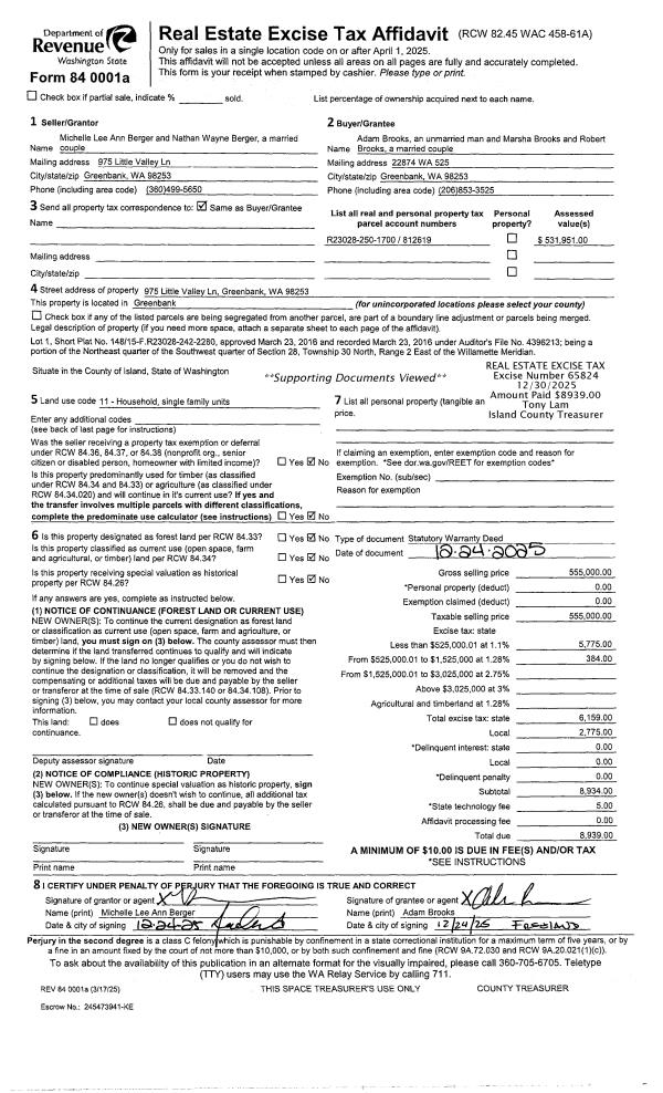
Property
Account |
| Property ID: | 2231 | Abbreviated Legal Description: | 47 - W/2 SE SW NW SUBJ TO & TGW EZ |
| Geographic ID: | R13102-292-0830 | Agent Code: | |
| Type: | Real | | |
| Tax Area: | 312 - APPRAISER-Cpvl Schl Dist, outside Cpvl, improved, greater than 1 acre | Land Use Code | 11 |
| Open Space: | N | DFL | N |
| Historic Property: | N | Remodel Property: | N |
| Multi-Family Redevelopment: | N | | |
| Township: | 31 | Section: | 02 |
| Range: | R1 |
Location |
| Address: | 753 NATURE LN COUPEVILLE, WA 98239 | Mapsco: | |
| Neighborhood: | Cycle 2 | Map ID: | 23 |
| Neighborhood CD: | 2 |
Owner |
| Name: | DIRIG, IRIS A | Owner ID: | 291738 |
| Mailing Address: | SCOTT A DIRIG 753 NATURE LN COUPEVILLE, WA 98239 | % Ownership: | 100.0000000000% |
| | | Exemptions: | |
Taxes and Assessment Details
Values
| (+) Improvement Homesite Value: | + | $0 | |
| (+) Improvement Non-Homesite Value: | + | $271,468 | |
| (+) Land Homesite Value: | + | $0 | |
| (+) Land Non-Homesite Value: | + | $340,000 | |
| (+) Curr Use (HS): | + | $0 | $0 |
| (+) Curr Use (NHS): | + | $0 | $0 |
| | | -------------------------- | |
| (=) Market Value: | = | $611,468 | |
| (–) Productivity Loss: | – | $0 | |
| | | -------------------------- | |
| (=) Subtotal: | = | $611,468 | |
| (+) Senior Appraised Value: | + | $0 | |
| (+) Non-Senior Appraised Value: | + | $611,468 | |
| | | -------------------------- | |
| (=) Total Appraised Value: | = | $611,468 | |
| (–) Senior Exemption Loss: | – | $0 | |
| (–) Exemption Loss: | – | $0 | |
| | | -------------------------- | |
| (=) Taxable Value: | = | $611,468 | |
Taxing Jurisdiction
| Owner: | DIRIG, IRIS A | | |
| % Ownership: | 100.0000000000% | | |
| Total Value: | $611,468 | | |
| Tax Area: | 312 - APPRAISER-Cpvl Schl Dist, outside Cpvl, improved, greater than 1 acre |
| CF | Conservation Futures | 0.0316035091 | $611,468 | $611,468 | $19.32 | | |
| CEM2 | Cemetery #2 | 0.0095056933 | $611,468 | $611,468 | $5.81 | | |
| FIRE5 | Fire & Rescue Dist #5 C Whidbey GEN | 1.2008080668 | $611,468 | $611,468 | $734.26 | | |
| FIRE5BOND | Fire & Rescue Dist #5 C Whidbey BOND | 0.1400090713 | $611,468 | $611,468 | $85.61 | | |
| HOBOND | Hospital BOND | 0.1910887512 | $611,468 | $611,468 | $116.84 | | |
| HOGEN | Hospital GEN | 0.3902502903 | $611,468 | $611,468 | $238.63 | | |
| CE | County Current Expense | 0.3708482477 | $611,468 | $611,468 | $226.76 | | |
| CR | County Roads | 0.4584763726 | $611,468 | $611,468 | $280.34 | | |
| ISLANDEMS | Hospital GEN (EMS) | 0.5000000000 | $611,468 | $611,468 | $305.73 | | |
| LIB | Library Sno-Isle GEN | 0.3153421757 | $611,468 | $611,468 | $192.82 | | |
| LIBCAP | Library Sno-Isle BOND (Cap Fac Imp Area) | 0.0543427938 | $611,468 | $611,468 | $33.23 | | |
| POCOUP | Port of Coupeville GEN | 0.1093371703 | $611,468 | $611,468 | $66.86 | | |
| POCOUPIDD | Port of Coupeville IDD | 0.3409740022 | $611,468 | $611,468 | $208.49 | | |
| COUPSDTECH | School 204 CP (TECH) | 0.7545480007 | $611,468 | $611,468 | $461.38 | | |
| SCH204MO | School 204 Enrichment | 0.6716186034 | $611,468 | $611,468 | $410.67 | | |
| ST | State School | 1.3035497053 | $611,468 | $611,468 | $797.08 | | |
| ST2 | State School Part 2 | 0.8169543533 | $611,468 | $611,468 | $499.54 | | |
| | Total Tax Rate: | 7.6592568070 | | | | | |
| | | | | Taxes w/Current Exemptions: | $4,683.37 | | |
| | | | | Taxes w/o Exemptions: | $4,683.37 | | |
Improvement / Building
| Improvement #1: | RESIDENTIAL | State Code: | Y | 2064.0 sqft | Value: | $271,468 |
| Bathrooms: | 2 | Bedrooms: | 4 | | Ceiling: | DRYWALL PAINTED | Cooling: | HEAT PUMP/CONV/V | | Exterior Wall/Cover: | WOOD SIDING | Floor Covering: | CARPET/VINYL 80-20 | | Floor Structure: | WOOD W/SUBFLOOR | Foundation: | CONCRETE | | Interior Finish: | DRYWALL PAINT | Plumbing Fixture Cnt: | 9 | | Roof Slope: | 4" IN 12" | Roof Structure/Cover: | CJ ALUMINIUM HEAVY |
|
| | Type | Description | Class CD | Sub Class CD | Year Built | Area |
| | BAS | BASE/MAIN FLOOR | 3 | 0 | 1972 | 1032.0 |
| | OP3 | OPEN PORCH W/ROOF | 3 | 0 | 1972 | 172.0 |
| | AGR | ATTACHED GARAGE | 3 | 0 | 1972 | 528.0 |
| | CPD | OPEN CARPORT DIRT FLOOR | 3 | 0 | 1972 | 1224.0 |
| | DWN | DOWNSTAIRS LIVING AREA | 3 | 0 | 1972 | 1032.0 |
Sketch
Property Image
Land
| 1 | 91 | UNDEVELOPED LAND-METES AND BOUNDS | 4.0000 | 174240.00 | 0.00 | 0.00 | 1.00 | $120,000 | $0 |
| 2 | HS | HOMESITE | 1.0000 | 43560.00 | 0.00 | 0.00 | 1.00 | $220,000 | $0 |
Roll Value History
| 2026 | N/A | N/A | N/A | N/A | N/A |
| 2025 | $271,468 | $340,000 | $0 | $611,468 | $611,468 |
| 2024 | $267,659 | $300,000 | $0 | $567,659 | $567,659 |
| 2023 | $271,468 | $280,000 | $0 | $551,468 | $551,468 |
| 2022 | $249,266 | $260,000 | $0 | $509,266 | $509,266 |
| 2021 | $219,754 | $170,000 | $0 | $389,754 | $389,754 |
| 2020 | $214,964 | $160,000 | $0 | $374,964 | $374,964 |
| 2019 | $159,431 | $230,000 | $0 | $389,431 | $389,431 |
| 2018 | $137,135 | $200,000 | $0 | $337,135 | $337,135 |
| 2017 | $138,210 | $200,000 | $0 | $338,210 | $338,210 |
| 2016 | $140,360 | $150,000 | $0 | $290,360 | $290,360 |
| 2015 | $142,511 | $125,000 | $0 | $267,511 | $267,511 |
| 2014 | $144,660 | $125,000 | $0 | $269,660 | $269,660 |
| 2013 | $146,810 | $121,500 | $0 | $268,310 | $268,310 |
| 2012 | $148,962 | $121,500 | $0 | $270,462 | $270,462 |
| 2011 | $151,112 | $135,000 | $0 | $286,112 | $286,112 |
| 2010 | $164,039 | $135,000 | $0 | $299,039 | $299,039 |
| 2009 | $170,051 | $150,800 | $0 | $320,851 | $320,851 |
| 2008 | $173,175 | $147,500 | $0 | $320,675 | $320,675 |
| 2007 | $161,601 | $147,500 | $0 | $309,101 | $309,101 |
Deed and Sales History
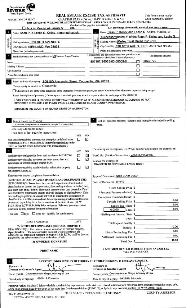
| 1 | 09/03/2019 | WD | Warranty Deed | MAIER TRUSTEE, ALBERT | DIRIG, IRIS A | | | $350,000.00 | 40229 | 4471224 |
| 2 | 11/07/2011 | QCD | Quit Claim Deed | MAIER, ALBERT | MAIER TRUSTEE, ALBERT | | | $0.00 | 6148 | 4304901 |
Payout Agreement
| No payout information available.. |