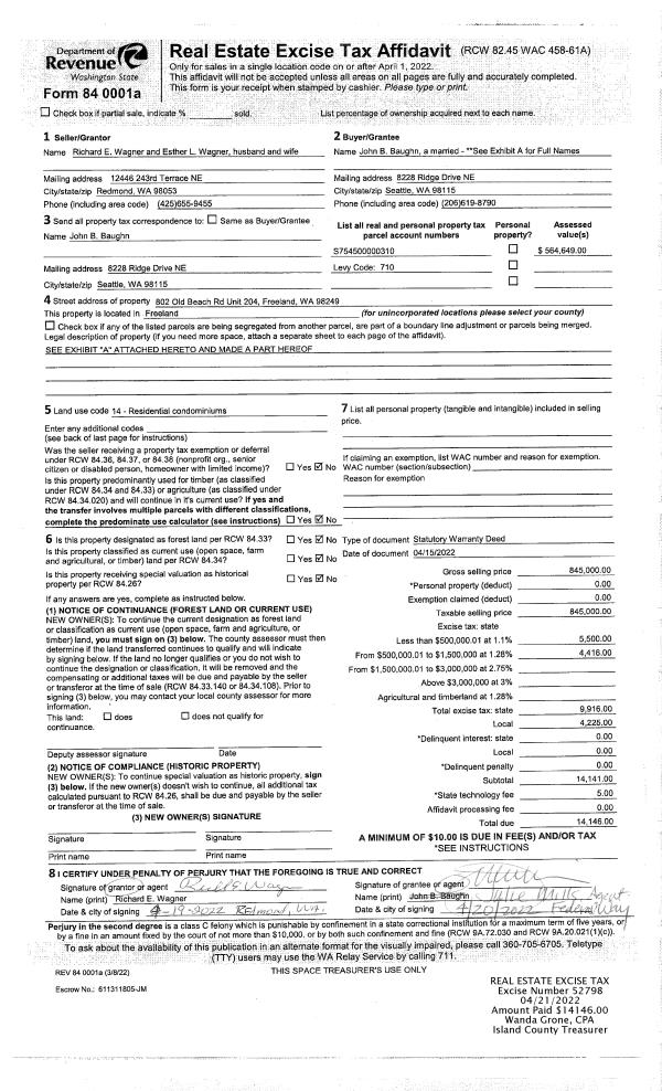
Property
Account |
| Property ID: | 223154 | Abbreviated Legal Description: | CAM VISTA 1 LOTS 36 & 37 & PT LOTS 34 & 35 LY SLY OF FOLL DESC LN: BG SWCR LOT 35 N ALG WLN LOT 35 21' TPB SD LN N79*E149.98' TP ON ELN LOT 34 & PT OF TERM SD LN |
| Geographic ID: | S6280-00-00036-0 | Agent Code: | |
| Type: | Real | | |
| Tax Area: | 560 - APPRAISER-Stan/Cam Schl Dist, Special Dist, improved & less than 1 acre | Land Use Code | 11 |
| Open Space: | N | DFL | N |
| Historic Property: | N | Remodel Property: | N |
| Multi-Family Redevelopment: | N | | |
| Township: | | Section: | |
| Range: | |
Location |
| Address: | 3026 SULTAN DR CAMANO ISLAND, WA 98282 | Mapsco: | |
| Neighborhood: | 58CamanoVistaS | Map ID: | 864 |
| Neighborhood CD: | 58RcmvstaS |
Owner |
| Name: | SILVA, CHRISTOPHER | Owner ID: | 298164 |
| Mailing Address: | 3026 SULTAN DR CAMANO ISLAND, WA 98282 | % Ownership: | 100.0000000000% |
| | | Exemptions: | |
Taxes and Assessment Details
Values
| (+) Improvement Homesite Value: | + | $0 | |
| (+) Improvement Non-Homesite Value: | + | $114,753 | |
| (+) Land Homesite Value: | + | $0 | |
| (+) Land Non-Homesite Value: | + | $220,000 | |
| (+) Curr Use (HS): | + | $0 | $0 |
| (+) Curr Use (NHS): | + | $0 | $0 |
| | | -------------------------- | |
| (=) Market Value: | = | $334,753 | |
| (–) Productivity Loss: | – | $0 | |
| | | -------------------------- | |
| (=) Subtotal: | = | $334,753 | |
| (+) Senior Appraised Value: | + | $0 | |
| (+) Non-Senior Appraised Value: | + | $334,753 | |
| | | -------------------------- | |
| (=) Total Appraised Value: | = | $334,753 | |
| (–) Senior Exemption Loss: | – | $0 | |
| (–) Exemption Loss: | – | $0 | |
| | | -------------------------- | |
| (=) Taxable Value: | = | $334,753 | |
Taxing Jurisdiction
| Owner: | SILVA, CHRISTOPHER | | |
| % Ownership: | 100.0000000000% | | |
| Total Value: | $334,753 | | |
| Tax Area: | 560 - APPRAISER-Stan/Cam Schl Dist, Special Dist, improved & less than 1 acre |
| CF | Conservation Futures | 0.0316035091 | $334,753 | $334,753 | $10.58 | | |
| EMS1 | Fire & Rescue Dist #1 Camano GEN (EMS) | 0.3677864386 | $334,753 | $334,753 | $123.12 | | |
| FIRE1 | Fire & Rescue Dist #1 Camano GEN | 1.2502910536 | $334,753 | $334,753 | $418.54 | | |
| FIRE1BOND | Fire & Rescue Dist #1 Camano BOND | 0.1570001679 | $334,753 | $334,753 | $52.56 | | |
| CE | County Current Expense | 0.3708482477 | $334,753 | $334,753 | $124.14 | | |
| CR | County Roads | 0.4584763726 | $334,753 | $334,753 | $153.48 | | |
| LCIB | Library Sno-Isle BOND (Camano Island) | 0.0396325772 | $334,753 | $334,753 | $13.27 | | |
| LIB | Library Sno-Isle GEN | 0.3153421757 | $334,753 | $334,753 | $105.56 | | |
| SCH205_401 | School 205-401 Enrichment | 1.2698420524 | $334,753 | $334,753 | $425.08 | | |
| SCH205BOND | School 205-401 BOND | 0.9396497583 | $334,753 | $334,753 | $314.55 | | |
| ST | State School | 1.3035497053 | $334,753 | $334,753 | $436.37 | | |
| ST2 | State School Part 2 | 0.8169543533 | $334,753 | $334,753 | $273.48 | | |
| | Total Tax Rate: | 7.3209764117 | | | | | |
| | | | | Taxes w/Current Exemptions: | $2,450.73 | | |
| | | | | Taxes w/o Exemptions: | $2,450.73 | | |
Improvement / Building
| Improvement #1: | MANUFACTURED HOME | State Code: | Y | 1596.0 sqft | Value: | $114,753 |
| Bathrooms: | 0 | Bedrooms: | 0 | | Ceiling: | PLASTER PAINTED | Cooling: | EVAP NO DUCT | | Exterior Wall/Cover: | VINYL | Floor Covering: | CARPET 100% | | Floor Structure: | SLAB ON GRADE | Foundation: | SLAB | | Heating: | FHA ELECTRIC | Interior Finish: | PLASTER | | Plumbing Fixture Cnt: | 1 | Roof Slope: | FLAT | | Roof Structure/Cover: | CJ ALUMINIUM HEAVY |   |   |
|
| | Type | Description | Class CD | Sub Class CD | Year Built | Area |
| | BAS | BASE/MAIN FLOOR | 4 | 0 | 1979 | 1596.0 |
| | OWC | OPEN WOOD PORCH W/STEPS/ROOF/C | 4 | 0 | 1979 | 433.8 |
| | OWP | OPEN WOOD PORCH W/STEPS | 4 | 0 | 1979 | 158.2 |
| | UTY | STORAGE/UTILITY | 4 | 0 | 1979 | 1152.0 |
Sketch
Property Image
Land
| 1 | 16 | AC (00.51-01.00) | 0.5300 | 23086.80 | 0.00 | 0.00 | 1.00 | $220,000 | $0 |
Roll Value History
| 2026 | N/A | N/A | N/A | N/A | N/A |
| 2025 | $114,753 | $220,000 | $0 | $334,753 | $334,753 |
| 2024 | $119,743 | $190,000 | $0 | $309,743 | $309,743 |
| 2023 | $110,634 | $180,000 | $0 | $290,634 | $290,634 |
| 2022 | $104,102 | $180,000 | $0 | $284,102 | $284,102 |
| 2021 | $93,936 | $140,000 | $0 | $233,936 | $233,936 |
| 2020 | $55,395 | $100,000 | $0 | $155,395 | $155,395 |
| 2019 | $46,851 | $130,000 | $0 | $176,851 | $176,851 |
| 2018 | $48,572 | $130,000 | $0 | $178,572 | $178,572 |
| 2017 | $50,294 | $50,000 | $0 | $100,294 | $100,294 |
| 2016 | $52,014 | $35,000 | $0 | $87,014 | $87,014 |
| 2015 | $38,896 | $35,000 | $0 | $73,896 | $73,896 |
| 2014 | $40,956 | $35,000 | $0 | $75,956 | $75,956 |
| 2013 | $42,329 | $40,000 | $0 | $82,329 | $82,329 |
| 2012 | $43,702 | $63,600 | $0 | $107,302 | $107,302 |
| 2011 | $45,075 | $79,500 | $0 | $124,575 | $124,575 |
| 2010 | $51,316 | $79,500 | $0 | $130,816 | $130,816 |
| 2009 | $54,495 | $88,000 | $0 | $142,495 | $142,495 |
| 2008 | $56,281 | $102,950 | $0 | $159,231 | $159,231 |
| 2007 | $58,088 | $83,500 | $0 | $141,588 | $141,588 |
Deed and Sales History
| 1 | 02/09/2021 | WD | Warranty Deed | BOSTROM, DANNY M | SILVA, CHRISTOPHER | | | $299,950.00 | 46994 | 4511314 |
| 2 | 11/29/2000 | WD | Warranty Deed | HOOPLE, EDWARD J | BOSTROM, DANNY M | | | $148,560.00 | 4560 | 20021030 |
| 3 | 10/27/2000 | BLA | DNU - Boundary Line Adjustment | HOOPLE, EDWARD J | HOOPLE, EDWARD J | | | $0.00 | 68820 | 20009205 |
| 4 | 11/23/1999 | SEG | DNU - Segregation | Unknown | HOOPLE, EDWARD J | | | $0.00 | 68484 | 0 |
Payout Agreement
| No payout information available.. |