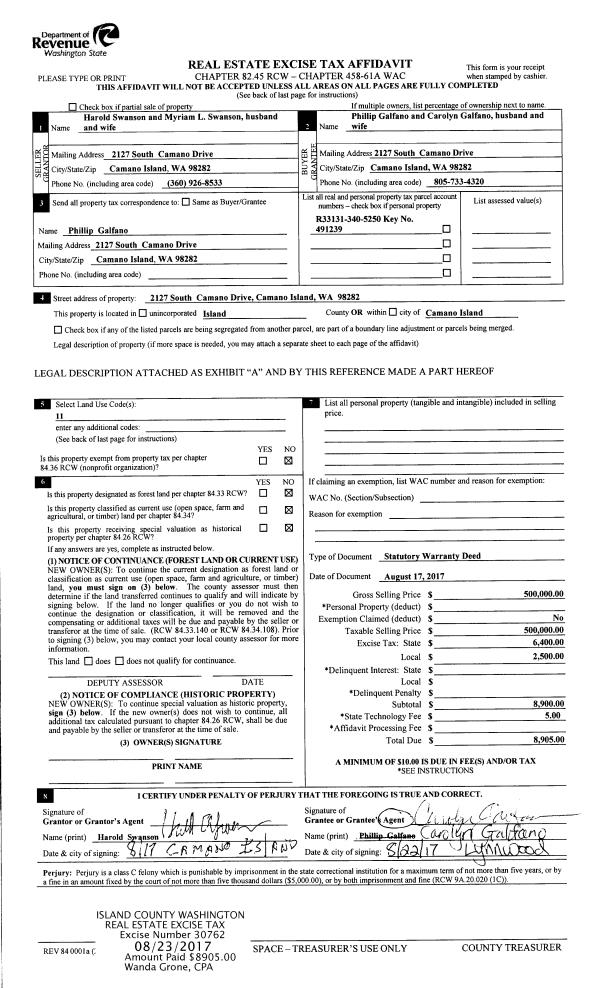
Property
Account |
| Property ID: | 223225 | Abbreviated Legal Description: | CAM VISTA 1 LOTS 43 & 44 |
| Geographic ID: | S6280-00-00043-0 | Agent Code: | |
| Type: | Real | | |
| Tax Area: | 560 - APPRAISER-Stan/Cam Schl Dist, Special Dist, improved & less than 1 acre | Land Use Code | 11 |
| Open Space: | N | DFL | N |
| Historic Property: | N | Remodel Property: | N |
| Multi-Family Redevelopment: | N | | |
| Township: | | Section: | |
| Range: | |
Location |
| Address: | 3058 SILVER CRESCENT CT CAMANO ISLAND, WA 98282 | Mapsco: | |
| Neighborhood: | 58CamanoVistaS | Map ID: | 864 |
| Neighborhood CD: | 58RcmvstaS |
Owner |
| Name: | FISCHER, RANDIE MARCEL | Owner ID: | 290069 |
| Mailing Address: | 3058 SILVER CRESCENT CT CAMANO ISLAND, WA 98282 | % Ownership: | 100.0000000000% |
| | | Exemptions: | |
Taxes and Assessment Details
Values
| (+) Improvement Homesite Value: | + | $150,005 | |
| (+) Improvement Non-Homesite Value: | + | $0 | |
| (+) Land Homesite Value: | + | $220,000 | |
| (+) Land Non-Homesite Value: | + | $0 | |
| (+) Curr Use (HS): | + | $0 | $0 |
| (+) Curr Use (NHS): | + | $0 | $0 |
| | | -------------------------- | |
| (=) Market Value: | = | $370,005 | |
| (–) Productivity Loss: | – | $0 | |
| | | -------------------------- | |
| (=) Subtotal: | = | $370,005 | |
| (+) Senior Appraised Value: | + | $0 | |
| (+) Non-Senior Appraised Value: | + | $370,005 | |
| | | -------------------------- | |
| (=) Total Appraised Value: | = | $370,005 | |
| (–) Senior Exemption Loss: | – | $0 | |
| (–) Exemption Loss: | – | $0 | |
| | | -------------------------- | |
| (=) Taxable Value: | = | $370,005 | |
Taxing Jurisdiction
| Owner: | FISCHER, RANDIE MARCEL | | |
| % Ownership: | 100.0000000000% | | |
| Total Value: | $370,005 | | |
| Tax Area: | 560 - APPRAISER-Stan/Cam Schl Dist, Special Dist, improved & less than 1 acre |
| CF | Conservation Futures | 0.0316035091 | $370,005 | $370,005 | $11.69 | | |
| EMS1 | Fire & Rescue Dist #1 Camano GEN (EMS) | 0.3677864386 | $370,005 | $370,005 | $136.08 | | |
| FIRE1 | Fire & Rescue Dist #1 Camano GEN | 1.2502910536 | $370,005 | $370,005 | $462.61 | | |
| FIRE1BOND | Fire & Rescue Dist #1 Camano BOND | 0.1570001679 | $370,005 | $370,005 | $58.09 | | |
| CE | County Current Expense | 0.3708482477 | $370,005 | $370,005 | $137.22 | | |
| CR | County Roads | 0.4584763726 | $370,005 | $370,005 | $169.64 | | |
| LCIB | Library Sno-Isle BOND (Camano Island) | 0.0396325772 | $370,005 | $370,005 | $14.66 | | |
| LIB | Library Sno-Isle GEN | 0.3153421757 | $370,005 | $370,005 | $116.68 | | |
| SCH205_401 | School 205-401 Enrichment | 1.2698420524 | $370,005 | $370,005 | $469.85 | | |
| SCH205BOND | School 205-401 BOND | 0.9396497583 | $370,005 | $370,005 | $347.68 | | |
| ST | State School | 1.3035497053 | $370,005 | $370,005 | $482.32 | | |
| ST2 | State School Part 2 | 0.8169543533 | $370,005 | $370,005 | $302.28 | | |
| | Total Tax Rate: | 7.3209764117 | | | | | |
| | | | | Taxes w/Current Exemptions: | $2,708.80 | | |
| | | | | Taxes w/o Exemptions: | $2,708.80 | | |
Improvement / Building
| Improvement #1: | MANUFACTURED HOME | State Code: | Y | 1600.0 sqft | Value: | $150,005 |
| Bathrooms: | 0 | Bedrooms: | 0 | | Ceiling: | PLASTER PAINTED | Cooling: | EVAP NO DUCT | | Exterior Wall/Cover: | VINYL | Floor Covering: | CARPET 100% | | Floor Structure: | SLAB ON GRADE | Foundation: | SLAB | | Heating: | FHA ELECTRIC | Interior Finish: | PLASTER | | Plumbing Fixture Cnt: | 1 | Roof Slope: | FLAT | | Roof Structure/Cover: | CJ ALUMINIUM HEAVY |   |   |
|
| | Type | Description | Class CD | Sub Class CD | Year Built | Area |
| | BAS | BASE/MAIN FLOOR | 4 | 0 | 1995 | 1600.0 |
| | DGR | DETACHED GARAGE | 4 | 0 | 1995 | 816.0 |
| | OWP | OPEN WOOD PORCH W/STEPS | 4 | 0 | 1995 | 50.0 |
Sketch
Property Image
Land
| 1 | 16 | AC (00.51-01.00) | 0.5881 | 25617.64 | 0.00 | 0.00 | 1.00 | $220,000 | $0 |
Roll Value History
| 2026 | N/A | N/A | N/A | N/A | N/A |
| 2025 | $150,005 | $220,000 | $0 | $370,005 | $370,005 |
| 2024 | $154,291 | $225,000 | $0 | $379,291 | $379,291 |
| 2023 | $136,024 | $220,000 | $0 | $356,024 | $356,024 |
| 2022 | $126,539 | $240,000 | $0 | $366,539 | $366,539 |
| 2021 | $114,981 | $190,000 | $0 | $304,981 | $304,981 |
| 2020 | $113,184 | $135,000 | $0 | $248,184 | $248,184 |
| 2019 | $81,292 | $165,000 | $0 | $246,292 | $246,292 |
| 2018 | $82,420 | $150,000 | $0 | $232,420 | $232,420 |
| 2017 | $70,393 | $150,000 | $0 | $220,393 | $220,393 |
| 2016 | $71,372 | $150,000 | $0 | $221,372 | $74,489 |
| 2015 | $77,315 | $105,000 | $0 | $182,315 | $72,926 |
| 2014 | $78,697 | $105,000 | $0 | $183,697 | $119,403 |
| 2013 | $79,388 | $120,000 | $0 | $199,388 | $121,044 |
| 2012 | $80,770 | $103,200 | $0 | $183,970 | $119,580 |
| 2011 | $82,152 | $129,000 | $0 | $211,152 | $121,044 |
| 2010 | $76,874 | $129,000 | $0 | $205,874 | $121,044 |
| 2009 | $80,982 | $103,068 | $0 | $184,050 | $119,633 |
| 2008 | $83,872 | $102,950 | $0 | $186,822 | $121,434 |
| 2007 | $86,794 | $83,500 | $0 | $170,294 | $170,294 |
Deed and Sales History
| 1 | 05/20/2019 | WD | Warranty Deed | STEDMAN, CAROLINE M | FISCHER, RANDIE MARCEL | | | $310,000.00 | 38806 | 4464643 |
| 2 | 05/09/2017 | WD | Warranty Deed | THOMAS, JACK D SR / DONNA M | STEDMAN, CAROLINE M | | | $245,000.00 | 29365 | 4422884 |
| 3 | 07/01/1996 | WD | Warranty Deed | REEVES, JAMES H | THOMAS, JACK D | | | $32,000.00 | 62418 | 96011963 |
| 4 | 01/01/1995 | TRUSTEED | Trustee's Deed | CUMMINGS, JOHN J | REEVES, JAMES H | | | $0.00 | 50172 | 95000885 |
| 5 | 01/01/1992 | WD | Warranty Deed | WHISPERING, PINES R | CUMMINGS, JOHN J | | | $25,000.00 | 20609 | 92002962 |
| 6 | 09/01/1991 | WD | Warranty Deed | DEVCO, GROUP I | WHISPERING, PINES R | | | $0.00 | 13901 | 91016662 |
| 7 | 10/01/1990 | WD | Warranty Deed | COLLIER, M A | DEVCO, GROUP I | | | $15,000.00 | 5694 | 90019200 |
| 8 | 03/01/1972 | CD | DNU - Correction Deed | COLLIER, M A | COLLIER, M A | | | $0.00 | 43633 | 0 |
| 9 | 06/21/1969 | REC | Real Estate Contract | THOMAS, JACK D | COLLIER, M A | | | $0.00 | 37867 | 0 |
| 10 | 01/01/1900 | OTHER | Other - Misc. Documents | Unknown | THOMAS, JACK D | | | $0.00 | 0 | 0 |
Payout Agreement
| No payout information available.. |