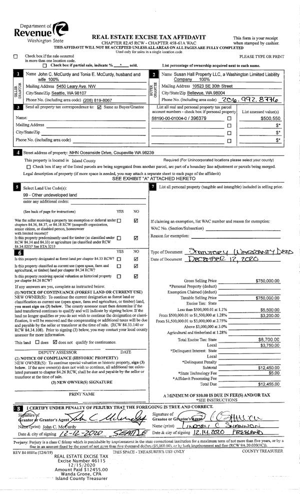
Property
Account |
| Property ID: | 223430 | Abbreviated Legal Description: | CAM VISTA 1 LOT 64 |
| Geographic ID: | S6280-00-00064-0 | Agent Code: | |
| Type: | Real | | |
| Tax Area: | 560 - APPRAISER-Stan/Cam Schl Dist, Special Dist, improved & less than 1 acre | Land Use Code | 11 |
| Open Space: | N | DFL | N |
| Historic Property: | N | Remodel Property: | N |
| Multi-Family Redevelopment: | N | | |
| Township: | | Section: | |
| Range: | |
Location |
| Address: | 1486 PILCHUCK DR CAMANO ISLAND, WA 98282 | Mapsco: | |
| Neighborhood: | 58CamanoVistaS | Map ID: | 864 |
| Neighborhood CD: | 58RcmvstaS |
Owner |
| Name: | BARRETT, SAMUEL | Owner ID: | 297265 |
| Mailing Address: | LAURA BARRETT 1486 PILCHUCK DRIVE CAMANO ISLAND, WA 98282 | % Ownership: | 100.0000000000% |
| | | Exemptions: | |
Taxes and Assessment Details
Values
| (+) Improvement Homesite Value: | + | $275,438 | |
| (+) Improvement Non-Homesite Value: | + | $0 | |
| (+) Land Homesite Value: | + | $210,000 | |
| (+) Land Non-Homesite Value: | + | $0 | |
| (+) Curr Use (HS): | + | $0 | $0 |
| (+) Curr Use (NHS): | + | $0 | $0 |
| | | -------------------------- | |
| (=) Market Value: | = | $485,438 | |
| (–) Productivity Loss: | – | $0 | |
| | | -------------------------- | |
| (=) Subtotal: | = | $485,438 | |
| (+) Senior Appraised Value: | + | $0 | |
| (+) Non-Senior Appraised Value: | + | $485,438 | |
| | | -------------------------- | |
| (=) Total Appraised Value: | = | $485,438 | |
| (–) Senior Exemption Loss: | – | $0 | |
| (–) Exemption Loss: | – | $0 | |
| | | -------------------------- | |
| (=) Taxable Value: | = | $485,438 | |
Taxing Jurisdiction
| Owner: | BARRETT, SAMUEL | | |
| % Ownership: | 100.0000000000% | | |
| Total Value: | $485,438 | | |
| Tax Area: | 560 - APPRAISER-Stan/Cam Schl Dist, Special Dist, improved & less than 1 acre |
| CF | Conservation Futures | 0.0316035091 | $485,438 | $485,438 | $15.34 | | |
| EMS1 | Fire & Rescue Dist #1 Camano GEN (EMS) | 0.3677864386 | $485,438 | $485,438 | $178.54 | | |
| FIRE1 | Fire & Rescue Dist #1 Camano GEN | 1.2502910536 | $485,438 | $485,438 | $606.94 | | |
| FIRE1BOND | Fire & Rescue Dist #1 Camano BOND | 0.1570001679 | $485,438 | $485,438 | $76.21 | | |
| CE | County Current Expense | 0.3708482477 | $485,438 | $485,438 | $180.02 | | |
| CR | County Roads | 0.4584763726 | $485,438 | $485,438 | $222.56 | | |
| LCIB | Library Sno-Isle BOND (Camano Island) | 0.0396325772 | $485,438 | $485,438 | $19.24 | | |
| LIB | Library Sno-Isle GEN | 0.3153421757 | $485,438 | $485,438 | $153.08 | | |
| SCH205_401 | School 205-401 Enrichment | 1.2698420524 | $485,438 | $485,438 | $616.43 | | |
| SCH205BOND | School 205-401 BOND | 0.9396497583 | $485,438 | $485,438 | $456.14 | | |
| ST | State School | 1.3035497053 | $485,438 | $485,438 | $632.79 | | |
| ST2 | State School Part 2 | 0.8169543533 | $485,438 | $485,438 | $396.58 | | |
| | Total Tax Rate: | 7.3209764117 | | | | | |
| | | | | Taxes w/Current Exemptions: | $3,553.87 | | |
| | | | | Taxes w/o Exemptions: | $3,553.87 | | |
Improvement / Building
| Improvement #1: | RESIDENTIAL | State Code: | Y | 1650.0 sqft | Value: | $275,438 |
| Bathrooms: | 2 | Bedrooms: | 3 | | Ceiling: | DRYWALL PAINTED | Exterior Wall/Cover: | PLY/HARDBOARD T-111 | | Floor Covering: | CARPET/VINYL 60-40 | Floor Structure: | WOOD W/SUBFLOOR | | Foundation: | CONCRETE | Heating: | WALL HEAT ELECTRIC | | Interior Finish: | DRYWALL PAINT | Plumbing Fixture Cnt: | 10 | | Roof Slope: | 5" IN 12" | Roof Structure/Cover: | CJ ASPHALT |
|
| | Type | Description | Class CD | Sub Class CD | Year Built | Area |
| | BAS | BASE/MAIN FLOOR | 3 | 0 | 1996 | 1026.0 |
| | AGR | ATTACHED GARAGE | 3 | 0 | 1996 | 192.0 |
| | BIG | BUILT IN GARAGE | 3 | 0 | 1996 | 288.0 |
| | OWP | OPEN WOOD PORCH W/STEPS | 3 | 0 | 1996 | 54.0 |
| | OWP | OPEN WOOD PORCH W/STEPS | 3 | 0 | 1996 | 218.0 |
| | DWN | DOWNSTAIRS LIVING AREA | 3 | 0 | 1996 | 624.0 |
Sketch
Property Image
Land
| 1 | 14 | SQ (08001-12000) | 0.0000 | 0.00 | 0.00 | 0.00 | 1.00 | $210,000 | $0 |
Roll Value History
| 2026 | N/A | N/A | N/A | N/A | N/A |
| 2025 | $275,438 | $210,000 | $0 | $485,438 | $485,438 |
| 2024 | $278,746 | $185,000 | $0 | $463,746 | $463,746 |
| 2023 | $282,055 | $180,000 | $0 | $462,055 | $462,055 |
| 2022 | $258,397 | $180,000 | $0 | $438,397 | $438,397 |
| 2021 | $216,878 | $140,000 | $0 | $356,878 | $356,878 |
| 2020 | $186,320 | $100,000 | $0 | $286,320 | $286,320 |
| 2019 | $137,311 | $130,000 | $0 | $267,311 | $75,427 |
| 2018 | $137,730 | $130,000 | $0 | $267,730 | $75,427 |
| 2017 | $138,568 | $50,000 | $0 | $188,568 | $75,427 |
| 2016 | $140,243 | $50,000 | $0 | $190,243 | $190,243 |
| 2015 | $136,458 | $35,000 | $0 | $171,458 | $171,458 |
| 2014 | $138,087 | $35,000 | $0 | $173,087 | $173,087 |
| 2013 | $139,718 | $40,000 | $0 | $179,718 | $179,718 |
| 2012 | $141,347 | $60,000 | $0 | $201,347 | $201,347 |
| 2011 | $142,974 | $75,000 | $0 | $217,974 | $217,974 |
| 2010 | $150,199 | $75,000 | $0 | $225,199 | $225,199 |
| 2009 | $151,613 | $80,000 | $0 | $231,613 | $231,613 |
| 2008 | $153,515 | $71,000 | $0 | $224,515 | $224,515 |
| 2007 | $155,416 | $71,000 | $0 | $226,416 | $226,416 |
Deed and Sales History
| 1 | 08/31/2020 | WD | Warranty Deed | TIPPS, GLORYA M. | BARRETT, SAMUEL | | | $387,000.00 | 44665 | 4496055 |
| 2 | 06/26/2014 | WD | Warranty Deed | HARRIS, SHAWN B | TIPPS, GLORYA M. | | | $208,000.00 | 15836 | 4361641 |
| 3 | 04/26/2004 | WD | Warranty Deed | HOLT-RAPALYEA, JUDITH S | HARRIS, SHAWN B | | | $172,500.00 | 41688 | 4098623 |
| 4 | 03/07/2002 | WD | Warranty Deed | DEROSIER, TODD R | HOLT-RAPALYEA, JUDITH S | | | $145,500.00 | 21046 | 4014667 |
| 5 | 02/01/1997 | WD | Warranty Deed | D, G B | DEROSIER, TODD R | | | $118,000.00 | 70556 | 97002582 |
| 6 | 04/01/1996 | WD | Warranty Deed | CARLETON, STANLEY G | D, G B | | | $22,500.00 | 61437 | 96007199 |
| 7 | 12/01/1978 | CD | DNU - Correction Deed | GALLACHER, LAVERN E | CARLETON, STANLEY G | | | $1.00 | 13674 | 390760 |
| 8 | 03/01/1972 | CD | DNU - Correction Deed | Unknown | GALLACHER, LAVERN E | | | $0.00 | 43638 | 0 |
Payout Agreement
| No payout information available.. |