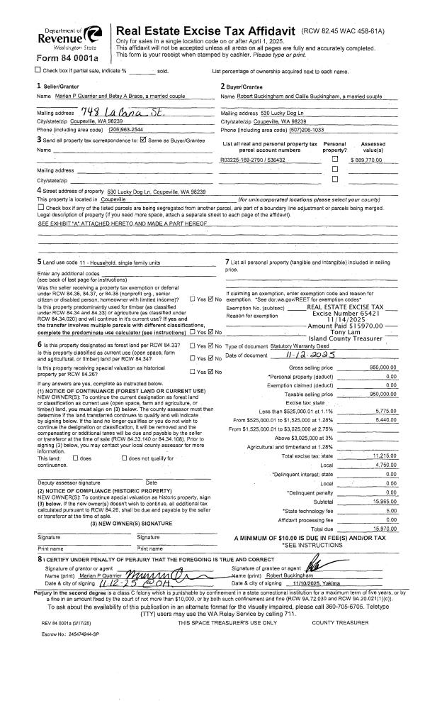
Property
Account |
| Property ID: | 223591 | Abbreviated Legal Description: | CAMANO VISTA 2 LOT 5 TGW PT LOT 68 SUNNY SHORE ACRES DESC: BG NECR SD LOT 5 N0*E50' N89*W TP INTER/W WLN LOT 68 SUNNY- SHORE AC SWLY ALG WLN SD LOT 68 TP INTER/W NLN LOT 7 CAMANO VISTA #2 S89*E ALG NLN LOTS 7, 6 & 5 TO NECR LOT 5 & TPB PLA #3-92 V13 PLA |
| Geographic ID: | S6280-02-00005-0 | Agent Code: | |
| Type: | Real | | |
| Tax Area: | 560 - APPRAISER-Stan/Cam Schl Dist, Special Dist, improved & less than 1 acre | Land Use Code | 11 |
| Open Space: | N | DFL | N |
| Historic Property: | N | Remodel Property: | N |
| Multi-Family Redevelopment: | N | | |
| Township: | | Section: | |
| Range: | |
Location |
| Address: | 1334 PILCHUCK DR CAMANO ISLAND, WA 98282 | Mapsco: | |
| Neighborhood: | 58CamanoVistaS | Map ID: | 864 |
| Neighborhood CD: | 58RcmvstaS |
Owner |
| Name: | KALATA, GEORGE | Owner ID: | 315925 |
| Mailing Address: | 1334 PILCHUCK DR CAMANO ISLAND, WA 98282 | % Ownership: | 100.0000000000% |
| | | Exemptions: | |
Taxes and Assessment Details
Values
| (+) Improvement Homesite Value: | + | $0 | |
| (+) Improvement Non-Homesite Value: | + | $133,265 | |
| (+) Land Homesite Value: | + | $0 | |
| (+) Land Non-Homesite Value: | + | $210,000 | |
| (+) Curr Use (HS): | + | $0 | $0 |
| (+) Curr Use (NHS): | + | $0 | $0 |
| | | -------------------------- | |
| (=) Market Value: | = | $343,265 | |
| (–) Productivity Loss: | – | $0 | |
| | | -------------------------- | |
| (=) Subtotal: | = | $343,265 | |
| (+) Senior Appraised Value: | + | $0 | |
| (+) Non-Senior Appraised Value: | + | $343,265 | |
| | | -------------------------- | |
| (=) Total Appraised Value: | = | $343,265 | |
| (–) Senior Exemption Loss: | – | $0 | |
| (–) Exemption Loss: | – | $0 | |
| | | -------------------------- | |
| (=) Taxable Value: | = | $343,265 | |
Taxing Jurisdiction
| Owner: | KALATA, GEORGE | | |
| % Ownership: | 100.0000000000% | | |
| Total Value: | $343,265 | | |
| Tax Area: | 560 - APPRAISER-Stan/Cam Schl Dist, Special Dist, improved & less than 1 acre |
| CF | Conservation Futures | 0.0316035091 | $343,265 | $343,265 | $10.85 | | |
| EMS1 | Fire & Rescue Dist #1 Camano GEN (EMS) | 0.3677864386 | $343,265 | $343,265 | $126.25 | | |
| FIRE1 | Fire & Rescue Dist #1 Camano GEN | 1.2502910536 | $343,265 | $343,265 | $429.18 | | |
| FIRE1BOND | Fire & Rescue Dist #1 Camano BOND | 0.1570001679 | $343,265 | $343,265 | $53.89 | | |
| CE | County Current Expense | 0.3708482477 | $343,265 | $343,265 | $127.30 | | |
| CR | County Roads | 0.4584763726 | $343,265 | $343,265 | $157.38 | | |
| LCIB | Library Sno-Isle BOND (Camano Island) | 0.0396325772 | $343,265 | $343,265 | $13.60 | | |
| LIB | Library Sno-Isle GEN | 0.3153421757 | $343,265 | $343,265 | $108.25 | | |
| SCH205_401 | School 205-401 Enrichment | 1.2698420524 | $343,265 | $343,265 | $435.89 | | |
| SCH205BOND | School 205-401 BOND | 0.9396497583 | $343,265 | $343,265 | $322.55 | | |
| ST | State School | 1.3035497053 | $343,265 | $343,265 | $447.46 | | |
| ST2 | State School Part 2 | 0.8169543533 | $343,265 | $343,265 | $280.43 | | |
| | Total Tax Rate: | 7.3209764117 | | | | | |
| | | | | Taxes w/Current Exemptions: | $2,513.03 | | |
| | | | | Taxes w/o Exemptions: | $2,513.03 | | |
Improvement / Building
| Improvement #1: | MANUFACTURED HOME | State Code: | Y | 1296.0 sqft | Value: | $133,265 |
| Bathrooms: | 0 | Bedrooms: | 0 | | Ceiling: | PLASTER PAINTED | Cooling: | EVAP NO DUCT | | Exterior Wall/Cover: | VINYL | Floor Covering: | CARPET 100% | | Floor Structure: | SLAB ON GRADE | Foundation: | SLAB | | Heating: | FHA ELECTRIC | Interior Finish: | PLASTER | | Plumbing Fixture Cnt: | 1 | Roof Slope: | FLAT | | Roof Structure/Cover: | CJ ALUMINIUM HEAVY |   |   |
|
| | Type | Description | Class CD | Sub Class CD | Year Built | Area |
| | BAS | BASE/MAIN FLOOR | 4 | 0 | 1991 | 1296.0 |
| | oGAR | GARAGE | 3 | 0 | 1986 | 572.0 |
| | OWP | OPEN WOOD PORCH W/STEPS | 4 | 0 | 1991 | 21.0 |
| | OWP | OPEN WOOD PORCH W/STEPS | 4 | 0 | 1991 | 76.0 |
| | OWP | OPEN WOOD PORCH W/STEPS | 4 | 0 | 1991 | 24.0 |
Sketch
| No sketches available for this property. |
Property Image
Land
| 1 | 15 | SQ (12001-21780) | 0.0000 | 0.00 | 0.00 | 0.00 | 1.00 | $210,000 | $0 |
Roll Value History
| 2026 | N/A | N/A | N/A | N/A | N/A |
| 2025 | $133,265 | $210,000 | $0 | $343,265 | $343,265 |
| 2024 | $89,683 | $185,000 | $0 | $274,683 | $274,683 |
| 2023 | $80,821 | $180,000 | $0 | $260,821 | $260,821 |
| 2022 | $77,036 | $180,000 | $0 | $257,036 | $35,395 |
| 2021 | $57,983 | $140,000 | $0 | $197,983 | $35,395 |
| 2020 | $58,031 | $100,000 | $0 | $158,031 | $35,395 |
| 2019 | $48,125 | $130,000 | $0 | $178,125 | $35,395 |
| 2018 | $49,729 | $130,000 | $0 | $179,729 | $35,395 |
| 2017 | $51,333 | $50,000 | $0 | $101,333 | $35,395 |
| 2016 | $52,938 | $50,000 | $0 | $102,938 | $35,395 |
| 2015 | $60,395 | $35,000 | $0 | $95,395 | $35,395 |
| 2014 | $61,750 | $35,000 | $0 | $96,750 | $96,750 |
| 2013 | $63,105 | $40,000 | $0 | $103,105 | $103,105 |
| 2012 | $64,460 | $63,600 | $0 | $128,060 | $128,060 |
| 2011 | $65,814 | $79,500 | $0 | $145,314 | $145,314 |
| 2010 | $65,220 | $79,500 | $0 | $144,720 | $144,720 |
| 2009 | $69,670 | $88,000 | $0 | $157,670 | $157,670 |
| 2008 | $71,402 | $102,950 | $0 | $174,352 | $174,352 |
| 2007 | $71,657 | $83,500 | $0 | $155,157 | $155,157 |
Deed and Sales History
| 1 | 03/20/2025 | WD | Warranty Deed | STONE RESTORATIONS LLC | KALATA, GEORGE | | | $453,000.00 | 62926 | 4583669 |
| 2 | 07/25/2024 | WD | Warranty Deed | PETERSON, SHERRY L | STONE RESTORATIONS LLC | | | $240,000.00 | 60772 | 4575148 |
| 3 | 07/25/2024 | QCD | Quit Claim Deed | GENDVIL, NIKIA | PETERSON, SHERRY L | | | $0.00 | 60771 | 4575147 |
| 4 | 07/20/2001 | DECREE | Divorce Decree/Legal Separation | GENDVIL, RICHARD J | GENDVIL, NIKIA | | | $0.00 | 12756 | 20037843 |
| 5 | 05/01/1993 | WD | Warranty Deed | GENDVIL, RICHARD J | GENDVIL, RICHARD J | | | $10,137.00 | 31729 | 93008976 |
| 6 | 04/01/1993 | OTHER | Other - Misc. Documents | GENDVIL, RICHARD / | GENDVIL, RICHARD J | | | $0.00 | 65352 | 0 |
| 7 | 09/01/1991 | OTHER | Other - Misc. Documents | GENDVIL, RICHARD J | GENDVIL, RICHARD / | | | $42,532.00 | 11111111 | 0 |
| 8 | 10/01/1988 | WD | Warranty Deed | SHALAN, MOAYED | GENDVIL, RICHARD J | | | $16,500.00 | 83673 | 88013701 |
| 9 | 06/01/1983 | REC | Real Estate Contract | JOYCE, BRYON E | SHALAN, MOAYED | | | $13,000.00 | 31790 | 411584 |
| 10 | 09/01/1979 | EXECUTORD | Executor Deed | JACKSON, GEOFFREY W | JOYCE, BRYON E | | | $5,500.00 | 94622 | 358976 |
| 11 | 01/01/1900 | OTHER | Other - Misc. Documents | Unknown | JACKSON, GEOFFREY W | | | $0.00 | 0 | 0 |
Payout Agreement
| No payout information available.. |