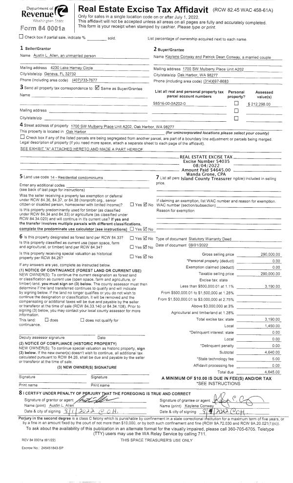
Property
Account |
| Property ID: | 223840 | Abbreviated Legal Description: | CAM VISTA 2 LOT 30 |
| Geographic ID: | S6280-02-00030-0 | Agent Code: | |
| Type: | Real | | |
| Tax Area: | 560 - APPRAISER-Stan/Cam Schl Dist, Special Dist, improved & less than 1 acre | Land Use Code | 11 |
| Open Space: | N | DFL | N |
| Historic Property: | N | Remodel Property: | N |
| Multi-Family Redevelopment: | N | | |
| Township: | | Section: | |
| Range: | |
Location |
| Address: | 1452 PILCHUCK DR CAMANO ISLAND, WA 98282 | Mapsco: | |
| Neighborhood: | 58CamanoVistaS | Map ID: | 864 |
| Neighborhood CD: | 58RcmvstaS |
Owner |
| Name: | BEYKOVSKY, PAUL JOSEPH | Owner ID: | 256555 |
| Mailing Address: | DEBORAH LOUISE BEYKOVSKY 2306 CAMANO REAL PL CAMANO ISLAND, WA 98282 | % Ownership: | 100.0000000000% |
| | | Exemptions: | |
Taxes and Assessment Details
Values
| (+) Improvement Homesite Value: | + | $0 | |
| (+) Improvement Non-Homesite Value: | + | $187,894 | |
| (+) Land Homesite Value: | + | $0 | |
| (+) Land Non-Homesite Value: | + | $210,000 | |
| (+) Curr Use (HS): | + | $0 | $0 |
| (+) Curr Use (NHS): | + | $0 | $0 |
| | | -------------------------- | |
| (=) Market Value: | = | $397,894 | |
| (–) Productivity Loss: | – | $0 | |
| | | -------------------------- | |
| (=) Subtotal: | = | $397,894 | |
| (+) Senior Appraised Value: | + | $0 | |
| (+) Non-Senior Appraised Value: | + | $397,894 | |
| | | -------------------------- | |
| (=) Total Appraised Value: | = | $397,894 | |
| (–) Senior Exemption Loss: | – | $0 | |
| (–) Exemption Loss: | – | $0 | |
| | | -------------------------- | |
| (=) Taxable Value: | = | $397,894 | |
Taxing Jurisdiction
| Owner: | BEYKOVSKY, PAUL JOSEPH | | |
| % Ownership: | 100.0000000000% | | |
| Total Value: | $397,894 | | |
| Tax Area: | 560 - APPRAISER-Stan/Cam Schl Dist, Special Dist, improved & less than 1 acre |
| CF | Conservation Futures | 0.0316035091 | $397,894 | $397,894 | $12.57 | | |
| EMS1 | Fire & Rescue Dist #1 Camano GEN (EMS) | 0.3677864386 | $397,894 | $397,894 | $146.34 | | |
| FIRE1 | Fire & Rescue Dist #1 Camano GEN | 1.2502910536 | $397,894 | $397,894 | $497.48 | | |
| FIRE1BOND | Fire & Rescue Dist #1 Camano BOND | 0.1570001679 | $397,894 | $397,894 | $62.47 | | |
| CE | County Current Expense | 0.3708482477 | $397,894 | $397,894 | $147.56 | | |
| CR | County Roads | 0.4584763726 | $397,894 | $397,894 | $182.42 | | |
| LCIB | Library Sno-Isle BOND (Camano Island) | 0.0396325772 | $397,894 | $397,894 | $15.77 | | |
| LIB | Library Sno-Isle GEN | 0.3153421757 | $397,894 | $397,894 | $125.47 | | |
| SCH205_401 | School 205-401 Enrichment | 1.2698420524 | $397,894 | $397,894 | $505.26 | | |
| SCH205BOND | School 205-401 BOND | 0.9396497583 | $397,894 | $397,894 | $373.88 | | |
| ST | State School | 1.3035497053 | $397,894 | $397,894 | $518.67 | | |
| ST2 | State School Part 2 | 0.8169543533 | $397,894 | $397,894 | $325.06 | | |
| | Total Tax Rate: | 7.3209764117 | | | | | |
| | | | | Taxes w/Current Exemptions: | $2,912.95 | | |
| | | | | Taxes w/o Exemptions: | $2,912.95 | | |
Improvement / Building
| Improvement #1: | RESIDENTIAL | State Code: | Y | 978.0 sqft | Value: | $187,894 |
| Bathrooms: | 1 | Bedrooms: | 3 | | Ceiling: | DRYWALL PAINTED | Exterior Wall/Cover: | PLY/HARDBOARD T-111 | | Floor Covering: | SOFTWOOD 100% | Floor Structure: | WOOD W/SUBFLOOR | | Foundation: | CONCRETE | Heating: | WALL HEAT ELECTRIC | | Interior Finish: | DRYWALL PAINT | Plumbing Fixture Cnt: | 6 | | Roof Slope: | 4" IN 12" | Roof Structure/Cover: | CJ ASPHALT |
|
| | Type | Description | Class CD | Sub Class CD | Year Built | Area |
| | BAS | BASE/MAIN FLOOR | 3 | 0 | 1994 | 978.0 |
| | AGR | ATTACHED GARAGE | 3 | 0 | 1994 | 288.0 |
| | OWP | OPEN WOOD PORCH W/STEPS | 3 | 0 | 1994 | 227.0 |
| | OWC | OPEN WOOD PORCH W/STEPS/ROOF/C | 3 | 0 | 1994 | 95.0 |
Sketch
Property Image
Land
| 1 | 14 | SQ (08001-12000) | 0.0000 | 0.00 | 0.00 | 0.00 | 1.00 | $210,000 | $0 |
Roll Value History
| 2026 | N/A | N/A | N/A | N/A | N/A |
| 2025 | $187,894 | $210,000 | $0 | $397,894 | $397,894 |
| 2024 | $190,266 | $185,000 | $0 | $375,266 | $375,266 |
| 2023 | $192,636 | $180,000 | $0 | $372,636 | $372,636 |
| 2022 | $176,586 | $180,000 | $0 | $356,586 | $356,586 |
| 2021 | $143,086 | $140,000 | $0 | $283,086 | $283,086 |
| 2020 | $138,835 | $100,000 | $0 | $238,835 | $238,835 |
| 2019 | $100,441 | $130,000 | $0 | $230,441 | $230,441 |
| 2018 | $100,751 | $130,000 | $0 | $230,751 | $230,751 |
| 2017 | $101,369 | $50,000 | $0 | $151,369 | $151,369 |
| 2016 | $102,605 | $50,000 | $0 | $152,605 | $152,605 |
| 2015 | $99,641 | $35,000 | $0 | $134,641 | $134,641 |
| 2014 | $100,900 | $35,000 | $0 | $135,900 | $135,900 |
| 2013 | $102,161 | $40,000 | $0 | $142,161 | $142,161 |
| 2012 | $103,421 | $60,000 | $0 | $163,421 | $163,421 |
| 2011 | $104,680 | $75,000 | $0 | $179,680 | $179,680 |
| 2010 | $111,028 | $75,000 | $0 | $186,028 | $186,028 |
| 2009 | $113,163 | $80,000 | $0 | $193,163 | $193,163 |
| 2008 | $114,725 | $71,000 | $0 | $185,725 | $185,725 |
| 2007 | $116,300 | $71,000 | $0 | $187,300 | $187,300 |
Deed and Sales History
| 1 | 11/09/2011 | WD | Warranty Deed | SECRETARY OF HOUSING AND URBAN DEVELOPMENT | BEYKOVSKY, PAUL JOSEPH | | | $0.00 | 6572 | 4307722 |
| 2 | 09/10/2010 | WD | Warranty Deed | MUNSON, JEREMY M | SECRETARY OF HOUSING AND URBAN DEVELOPMENT | | | $0.00 | 2265 | 4280742 |
| 3 | 11/23/2004 | WD | Warranty Deed | BRANDVOLD, DUANE G | MUNSON, JEREMY M | | | $151,000.00 | 45530 | 4119167 |
| 4 | 10/01/1990 | WD | Warranty Deed | BRANDVOLD, DUANE G | BRANDVOLD, DUANE G | | | $12,500.00 | 6139 | 90020920 |
| 5 | 09/01/1990 | QCD | Quit Claim Deed | DRAGER, JIM B | BRANDVOLD, DUANE G | | | $0.00 | 6140 | 90020921 |
| 6 | 01/01/1900 | OTHER | Other - Misc. Documents | Unknown | DRAGER, JIM B | | | $0.00 | 0 | 0 |
Payout Agreement
| No payout information available.. |