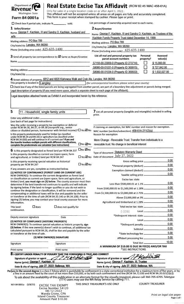
Property
Account |
| Property ID: | 223886 | Abbreviated Legal Description: | CAM VISTA 2 LOT 34 |
| Geographic ID: | S6280-02-00034-0 | Agent Code: | |
| Type: | Real | | |
| Tax Area: | 560 - APPRAISER-Stan/Cam Schl Dist, Special Dist, improved & less than 1 acre | Land Use Code | 11 |
| Open Space: | N | DFL | N |
| Historic Property: | N | Remodel Property: | N |
| Multi-Family Redevelopment: | N | | |
| Township: | | Section: | |
| Range: | |
Location |
| Address: | 1451 PILCHUCK DR CAMANO ISLAND, WA 98282 | Mapsco: | |
| Neighborhood: | 58CamanoVistaS | Map ID: | 864 |
| Neighborhood CD: | 58RcmvstaS |
Owner |
| Name: | WILL, JERRY A & RENA L | Owner ID: | 63936 |
| Mailing Address: | 1451 PILCHUCK DR CAMANO ISLAND, WA 98282 | % Ownership: | 100.0000000000% |
| | | Exemptions: | |
Taxes and Assessment Details
Values
| (+) Improvement Homesite Value: | + | $0 | |
| (+) Improvement Non-Homesite Value: | + | $173,675 | |
| (+) Land Homesite Value: | + | $0 | |
| (+) Land Non-Homesite Value: | + | $210,000 | |
| (+) Curr Use (HS): | + | $0 | $0 |
| (+) Curr Use (NHS): | + | $0 | $0 |
| | | -------------------------- | |
| (=) Market Value: | = | $383,675 | |
| (–) Productivity Loss: | – | $0 | |
| | | -------------------------- | |
| (=) Subtotal: | = | $383,675 | |
| (+) Senior Appraised Value: | + | $0 | |
| (+) Non-Senior Appraised Value: | + | $383,675 | |
| | | -------------------------- | |
| (=) Total Appraised Value: | = | $383,675 | |
| (–) Senior Exemption Loss: | – | $0 | |
| (–) Exemption Loss: | – | $0 | |
| | | -------------------------- | |
| (=) Taxable Value: | = | $383,675 | |
Taxing Jurisdiction
| Owner: | WILL, JERRY A & RENA L | | |
| % Ownership: | 100.0000000000% | | |
| Total Value: | $383,675 | | |
| Tax Area: | 560 - APPRAISER-Stan/Cam Schl Dist, Special Dist, improved & less than 1 acre |
| CF | Conservation Futures | 0.0316035091 | $383,675 | $383,675 | $12.13 | | |
| EMS1 | Fire & Rescue Dist #1 Camano GEN (EMS) | 0.3677864386 | $383,675 | $383,675 | $141.11 | | |
| FIRE1 | Fire & Rescue Dist #1 Camano GEN | 1.2502910536 | $383,675 | $383,675 | $479.71 | | |
| FIRE1BOND | Fire & Rescue Dist #1 Camano BOND | 0.1570001679 | $383,675 | $383,675 | $60.24 | | |
| CE | County Current Expense | 0.3708482477 | $383,675 | $383,675 | $142.29 | | |
| CR | County Roads | 0.4584763726 | $383,675 | $383,675 | $175.91 | | |
| LCIB | Library Sno-Isle BOND (Camano Island) | 0.0396325772 | $383,675 | $383,675 | $15.21 | | |
| LIB | Library Sno-Isle GEN | 0.3153421757 | $383,675 | $383,675 | $120.99 | | |
| SCH205_401 | School 205-401 Enrichment | 1.2698420524 | $383,675 | $383,675 | $487.21 | | |
| SCH205BOND | School 205-401 BOND | 0.9396497583 | $383,675 | $383,675 | $360.52 | | |
| ST | State School | 1.3035497053 | $383,675 | $383,675 | $500.14 | | |
| ST2 | State School Part 2 | 0.8169543533 | $383,675 | $383,675 | $313.44 | | |
| | Total Tax Rate: | 7.3209764117 | | | | | |
| | | | | Taxes w/Current Exemptions: | $2,808.90 | | |
| | | | | Taxes w/o Exemptions: | $2,808.90 | | |
Improvement / Building
| Improvement #1: | RESIDENTIAL | State Code: | Y | 1008.0 sqft | Value: | $173,675 |
| Bathrooms: | 1 | Bedrooms: | 3 | | Ceiling: | DRYWALL PAINTED | Exterior Wall/Cover: | PLY/HARDBOARD T-111 | | Floor Covering: | SOFTWOOD 100% | Floor Structure: | WOOD W/SUBFLOOR | | Foundation: | CONCRETE | Heating: | FHA ELECTRIC | | Interior Finish: | DRYWALL PAINT | Plumbing Fixture Cnt: | 6 | | Roof Slope: | 4" IN 12" | Roof Structure/Cover: | CJ ASPHALT |
|
| | Type | Description | Class CD | Sub Class CD | Year Built | Area |
| | BAS | BASE/MAIN FLOOR | 3 | 0 | 1994 | 1008.0 |
| | OP2 | OPEN PORCH W/STEPS | 3 | 0 | 1994 | 24.0 |
| | OP4 | OPEN PORCH W/CEILING-ROOF | 3 | 0 | 1994 | 16.0 |
| | AGR | ATTACHED GARAGE | 3 | 0 | 1994 | 440.0 |
| | OP1 | OPEN PORCH SLAB | 3 | 0 | 1994 | 80.0 |
Sketch
Property Image
Land
| 1 | 14 | SQ (08001-12000) | 0.0000 | 0.00 | 0.00 | 0.00 | 1.00 | $210,000 | $0 |
Roll Value History
| 2026 | N/A | N/A | N/A | N/A | N/A |
| 2025 | $173,675 | $210,000 | $0 | $383,675 | $383,675 |
| 2024 | $176,014 | $185,000 | $0 | $361,014 | $361,014 |
| 2023 | $178,354 | $180,000 | $0 | $358,354 | $358,354 |
| 2022 | $163,614 | $180,000 | $0 | $343,614 | $343,614 |
| 2021 | $141,260 | $140,000 | $0 | $281,260 | $281,260 |
| 2020 | $137,343 | $100,000 | $0 | $237,343 | $237,343 |
| 2019 | $97,949 | $130,000 | $0 | $227,949 | $227,949 |
| 2018 | $98,267 | $130,000 | $0 | $228,267 | $228,267 |
| 2017 | $98,900 | $50,000 | $0 | $148,900 | $148,900 |
| 2016 | $100,170 | $50,000 | $0 | $150,170 | $150,170 |
| 2015 | $96,765 | $35,000 | $0 | $131,765 | $131,765 |
| 2014 | $98,002 | $35,000 | $0 | $133,002 | $133,002 |
| 2013 | $99,237 | $40,000 | $0 | $139,237 | $139,237 |
| 2012 | $100,474 | $60,000 | $0 | $160,474 | $160,474 |
| 2011 | $101,708 | $75,000 | $0 | $176,708 | $176,708 |
| 2010 | $102,892 | $75,000 | $0 | $177,892 | $177,892 |
| 2009 | $105,660 | $80,000 | $0 | $185,660 | $185,660 |
| 2008 | $106,965 | $71,000 | $0 | $177,965 | $177,965 |
| 2007 | $108,303 | $71,000 | $0 | $179,303 | $179,303 |
Deed and Sales History
| 1 | 09/01/1994 | WD | Warranty Deed | JOHNSON, DAVID B | WILL, JERRY A | | | $99,950.00 | 43795 | 94019807 |
| 2 | 12/01/1993 | WD | Warranty Deed | FLEMING, SHARON V | JOHNSON, DAVID B | | | $18,000.00 | 40140 | 94000823 |
| 3 | 08/01/1982 | QCD | Quit Claim Deed | FLEMING, KEITH L | FLEMING, SHARON V | | | $0.00 | 32820 | 415511 |
| 4 | 01/01/1900 | OTHER | Other - Misc. Documents | Unknown | FLEMING, KEITH L | | | $0.00 | 0 | 0 |
Payout Agreement
| No payout information available.. |