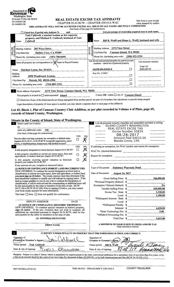
Property
Account |
| Property ID: | 223948 | Abbreviated Legal Description: | CAM VISTA 2 LOT 40 |
| Geographic ID: | S6280-02-00040-0 | Agent Code: | |
| Type: | Real | | |
| Tax Area: | 560 - APPRAISER-Stan/Cam Schl Dist, Special Dist, improved & less than 1 acre | Land Use Code | 11 |
| Open Space: | N | DFL | N |
| Historic Property: | N | Remodel Property: | N |
| Multi-Family Redevelopment: | N | | |
| Township: | | Section: | |
| Range: | |
Location |
| Address: | 1399 PILCHUCK DR CAMANO ISLAND, WA 98282 | Mapsco: | |
| Neighborhood: | 58CamanoVistaS | Map ID: | 864 |
| Neighborhood CD: | 58RcmvstaS |
Owner |
| Name: | BIANCHI, BRANDON | Owner ID: | 280368 |
| Mailing Address: | 1399 PILCHUCK DR CAMANO ISLAND, WA 98282 | % Ownership: | 100.0000000000% |
| | | Exemptions: | |
Taxes and Assessment Details
Values
| (+) Improvement Homesite Value: | + | $0 | |
| (+) Improvement Non-Homesite Value: | + | $197,591 | |
| (+) Land Homesite Value: | + | $0 | |
| (+) Land Non-Homesite Value: | + | $210,000 | |
| (+) Curr Use (HS): | + | $0 | $0 |
| (+) Curr Use (NHS): | + | $0 | $0 |
| | | -------------------------- | |
| (=) Market Value: | = | $407,591 | |
| (–) Productivity Loss: | – | $0 | |
| | | -------------------------- | |
| (=) Subtotal: | = | $407,591 | |
| (+) Senior Appraised Value: | + | $0 | |
| (+) Non-Senior Appraised Value: | + | $407,591 | |
| | | -------------------------- | |
| (=) Total Appraised Value: | = | $407,591 | |
| (–) Senior Exemption Loss: | – | $0 | |
| (–) Exemption Loss: | – | $0 | |
| | | -------------------------- | |
| (=) Taxable Value: | = | $407,591 | |
Taxing Jurisdiction
| Owner: | BIANCHI, BRANDON | | |
| % Ownership: | 100.0000000000% | | |
| Total Value: | $407,591 | | |
| Tax Area: | 560 - APPRAISER-Stan/Cam Schl Dist, Special Dist, improved & less than 1 acre |
| CF | Conservation Futures | 0.0316035091 | $407,591 | $407,591 | $12.88 | | |
| EMS1 | Fire & Rescue Dist #1 Camano GEN (EMS) | 0.3677864386 | $407,591 | $407,591 | $149.91 | | |
| FIRE1 | Fire & Rescue Dist #1 Camano GEN | 1.2502910536 | $407,591 | $407,591 | $509.61 | | |
| FIRE1BOND | Fire & Rescue Dist #1 Camano BOND | 0.1570001679 | $407,591 | $407,591 | $63.99 | | |
| CE | County Current Expense | 0.3708482477 | $407,591 | $407,591 | $151.15 | | |
| CR | County Roads | 0.4584763726 | $407,591 | $407,591 | $186.87 | | |
| LCIB | Library Sno-Isle BOND (Camano Island) | 0.0396325772 | $407,591 | $407,591 | $16.15 | | |
| LIB | Library Sno-Isle GEN | 0.3153421757 | $407,591 | $407,591 | $128.53 | | |
| SCH205_401 | School 205-401 Enrichment | 1.2698420524 | $407,591 | $407,591 | $517.58 | | |
| SCH205BOND | School 205-401 BOND | 0.9396497583 | $407,591 | $407,591 | $382.99 | | |
| ST | State School | 1.3035497053 | $407,591 | $407,591 | $531.32 | | |
| ST2 | State School Part 2 | 0.8169543533 | $407,591 | $407,591 | $332.98 | | |
| | Total Tax Rate: | 7.3209764117 | | | | | |
| | | | | Taxes w/Current Exemptions: | $2,983.96 | | |
| | | | | Taxes w/o Exemptions: | $2,983.96 | | |
Improvement / Building
| Improvement #1: | RESIDENTIAL | State Code: | Y | 1040.0 sqft | Value: | $197,591 |
| Bathrooms: | 2 | Bedrooms: | 3 | | Ceiling: | TONGUE & GROOVE | Exterior Wall/Cover: | WOOD SIDING | | Floor Covering: | CERAMIC TILE/HWD 40/60 | Floor Structure: | WOOD W/SUBFLOOR | | Foundation: | CONCRETE | Heating: | WALL HEAT ELECTRIC | | Interior Finish: | DRYWALL PAINT | Plumbing Fixture Cnt: | 9 | | Roof Slope: | 8" IN 12" | Roof Structure/Cover: | BEAM ASPHALT |
|
| | Type | Description | Class CD | Sub Class CD | Year Built | Area |
| | BAS | BASE/MAIN FLOOR | 3 | 0 | 1977 | 896.0 |
| | DGR | DETACHED GARAGE | 3 | 0 | 1977 | 420.0 |
| | OP4 | OPEN PORCH W/CEILING-ROOF | 3 | 0 | 1977 | 192.0 |
| | LOF | LOFT | 3 | 0 | 1977 | 144.0 |
Sketch
Property Image
Land
| 1 | 14 | SQ (08001-12000) | 0.0000 | 0.00 | 0.00 | 0.00 | 1.00 | $210,000 | $0 |
Roll Value History
| 2026 | N/A | N/A | N/A | N/A | N/A |
| 2025 | $197,591 | $210,000 | $0 | $407,591 | $407,591 |
| 2024 | $200,364 | $185,000 | $0 | $385,364 | $385,364 |
| 2023 | $203,137 | $180,000 | $0 | $383,137 | $383,137 |
| 2022 | $186,453 | $180,000 | $0 | $366,453 | $366,453 |
| 2021 | $111,467 | $140,000 | $0 | $251,467 | $251,467 |
| 2020 | $108,682 | $100,000 | $0 | $208,682 | $208,682 |
| 2019 | $76,197 | $130,000 | $0 | $206,197 | $206,197 |
| 2018 | $76,465 | $130,000 | $0 | $206,465 | $206,465 |
| 2017 | $75,573 | $50,000 | $0 | $125,573 | $125,573 |
| 2016 | $76,623 | $50,000 | $0 | $126,623 | $126,623 |
| 2015 | $74,216 | $40,000 | $0 | $114,216 | $114,216 |
| 2014 | $75,285 | $40,000 | $0 | $115,285 | $115,285 |
| 2013 | $76,355 | $40,000 | $0 | $116,355 | $116,355 |
| 2012 | $77,426 | $60,000 | $0 | $137,426 | $137,426 |
| 2011 | $78,495 | $75,000 | $0 | $153,495 | $153,495 |
| 2010 | $83,508 | $75,000 | $0 | $158,508 | $158,508 |
| 2009 | $84,985 | $80,000 | $0 | $164,985 | $164,985 |
| 2008 | $86,135 | $71,000 | $0 | $157,135 | $157,135 |
| 2007 | $87,307 | $71,000 | $0 | $158,307 | $158,307 |
Deed and Sales History
| 1 | 06/05/2017 | WD | Warranty Deed | GUTIERREZ, EILER | BIANCHI, BRANDON | | | $200,000.00 | 29724 | 4424202 |
|   | |
| 2 | 05/20/2006 | WD | Warranty Deed | HODGE, DAVID A | GUTIERREZ, EILER | | | $183,914.00 | 62402 | 4172009 |
| 3 | 02/28/2002 | WD | Warranty Deed | MILLER, LORRAINE N | HODGE, DAVID A | | | $103,068.00 | 20748 | 4012591 |
| 4 | 02/25/2002 | ESTSEPPROP | Establish Separate Property | HODGE, DAVID A | HODGE, DAVID A | | | $0.00 | 20848 | 4013201 |
| 5 | 08/06/1999 | WD | Warranty Deed | JUDSON, BETH A | MILLER, LORRAINE N | | | $89,450.00 | 93376 | 99019361 |
| 6 | 03/01/1989 | WD | Warranty Deed | HUNTER, KENNETH | JUDSON, BETH A | | | $34,357.00 | 90894 | 89003181 |
| 7 | 01/01/1900 | OTHER | Other - Misc. Documents | Unknown | HUNTER, KENNETH | | | $0.00 | 0 | 0 |
Payout Agreement
| No payout information available.. |