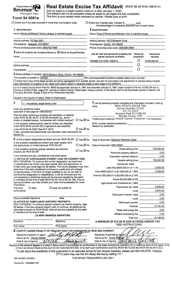
Property
Account |
| Property ID: | 224028 | Abbreviated Legal Description: | CAM VISTA 2 LOT 48 |
| Geographic ID: | S6280-02-00048-0 | Agent Code: | |
| Type: | Real | | |
| Tax Area: | 560 - APPRAISER-Stan/Cam Schl Dist, Special Dist, improved & less than 1 acre | Land Use Code | 11 |
| Open Space: | N | DFL | N |
| Historic Property: | N | Remodel Property: | N |
| Multi-Family Redevelopment: | N | | |
| Township: | | Section: | |
| Range: | |
Location |
| Address: | 3068 GOLD CRESCENT CT CAMANO ISLAND, WA 98282 | Mapsco: | |
| Neighborhood: | 58CamanoVistaS | Map ID: | 864 |
| Neighborhood CD: | 58RcmvstaS |
Owner |
| Name: | PEJACSEVICH-MIKO, ANDREA | Owner ID: | 282916 |
| Mailing Address: | 3068 GOLD CRESCENT CT CAMANO ISLAND, WA 98282 | % Ownership: | 100.0000000000% |
| | | Exemptions: | |
Taxes and Assessment Details
Values
| (+) Improvement Homesite Value: | + | $0 | |
| (+) Improvement Non-Homesite Value: | + | $345,794 | |
| (+) Land Homesite Value: | + | $0 | |
| (+) Land Non-Homesite Value: | + | $210,000 | |
| (+) Curr Use (HS): | + | $0 | $0 |
| (+) Curr Use (NHS): | + | $0 | $0 |
| | | -------------------------- | |
| (=) Market Value: | = | $555,794 | |
| (–) Productivity Loss: | – | $0 | |
| | | -------------------------- | |
| (=) Subtotal: | = | $555,794 | |
| (+) Senior Appraised Value: | + | $0 | |
| (+) Non-Senior Appraised Value: | + | $555,794 | |
| | | -------------------------- | |
| (=) Total Appraised Value: | = | $555,794 | |
| (–) Senior Exemption Loss: | – | $0 | |
| (–) Exemption Loss: | – | $0 | |
| | | -------------------------- | |
| (=) Taxable Value: | = | $555,794 | |
Taxing Jurisdiction
| Owner: | PEJACSEVICH-MIKO, ANDREA | | |
| % Ownership: | 100.0000000000% | | |
| Total Value: | $555,794 | | |
| Tax Area: | 560 - APPRAISER-Stan/Cam Schl Dist, Special Dist, improved & less than 1 acre |
| CF | Conservation Futures | 0.0316035091 | $555,794 | $555,794 | $17.57 | | |
| EMS1 | Fire & Rescue Dist #1 Camano GEN (EMS) | 0.3677864386 | $555,794 | $555,794 | $204.41 | | |
| FIRE1 | Fire & Rescue Dist #1 Camano GEN | 1.2502910536 | $555,794 | $555,794 | $694.90 | | |
| FIRE1BOND | Fire & Rescue Dist #1 Camano BOND | 0.1570001679 | $555,794 | $555,794 | $87.26 | | |
| CE | County Current Expense | 0.3708482477 | $555,794 | $555,794 | $206.12 | | |
| CR | County Roads | 0.4584763726 | $555,794 | $555,794 | $254.82 | | |
| LCIB | Library Sno-Isle BOND (Camano Island) | 0.0396325772 | $555,794 | $555,794 | $22.03 | | |
| LIB | Library Sno-Isle GEN | 0.3153421757 | $555,794 | $555,794 | $175.27 | | |
| SCH205_401 | School 205-401 Enrichment | 1.2698420524 | $555,794 | $555,794 | $705.77 | | |
| SCH205BOND | School 205-401 BOND | 0.9396497583 | $555,794 | $555,794 | $522.25 | | |
| ST | State School | 1.3035497053 | $555,794 | $555,794 | $724.51 | | |
| ST2 | State School Part 2 | 0.8169543533 | $555,794 | $555,794 | $454.06 | | |
| | Total Tax Rate: | 7.3209764117 | | | | | |
| | | | | Taxes w/Current Exemptions: | $4,068.97 | | |
| | | | | Taxes w/o Exemptions: | $4,068.97 | | |
Improvement / Building
| Improvement #1: | RESIDENTIAL | State Code: | Y | 1509.0 sqft | Value: | $345,794 |
| Bathrooms: | 2 | Bedrooms: | 3 | | Ceiling: | DRYWALL PAINTED | Exterior Wall/Cover: | CEMENT FIBER | | Floor Covering: | HARDWOOD/CARP 60-40 | Floor Structure: | WOOD W/SUBFLOOR | | Foundation: | CONCRETE | Heating: | WALL HEAT ELECTRIC | | Interior Finish: | DRYWALL PAINT | Plumbing Fixture Cnt: | 11 | | Roof Slope: | 6" IN 12" | Roof Structure/Cover: | CJ ASPHALT |
|
| | Type | Description | Class CD | Sub Class CD | Year Built | Area |
| | BAS | BASE/MAIN FLOOR | 3 | 0 | 2017 | 1509.0 |
| | AGR | ATTACHED GARAGE | 3 | 0 | 2017 | 494.0 |
| | OWP | OPEN WOOD PORCH W/STEPS | 3 | 0 | 2017 | 204.5 |
| | OWC | OPEN WOOD PORCH W/STEPS/ROOF/C | 3 | 0 | 2017 | 139.0 |
Sketch
Property Image
Land
| 1 | 14 | SQ (08001-12000) | 0.2629 | 11451.92 | 0.00 | 0.00 | 1.00 | $210,000 | $0 |
Roll Value History
| 2026 | N/A | N/A | N/A | N/A | N/A |
| 2025 | $345,794 | $210,000 | $0 | $555,794 | $555,794 |
| 2024 | $348,606 | $185,000 | $0 | $533,606 | $533,606 |
| 2023 | $351,417 | $180,000 | $0 | $531,417 | $531,417 |
| 2022 | $320,753 | $180,000 | $0 | $500,753 | $500,753 |
| 2021 | $281,137 | $140,000 | $0 | $421,137 | $421,137 |
| 2020 | $273,103 | $100,000 | $0 | $373,103 | $373,103 |
| 2019 | $200,637 | $130,000 | $0 | $330,637 | $330,637 |
| 2018 | $202,153 | $130,000 | $0 | $332,153 | $332,153 |
| 2017 | $161,404 | $50,000 | $0 | $211,404 | $211,404 |
| 2016 | $4,000 | $30,000 | $0 | $34,000 | $34,000 |
| 2015 | $10,555 | $35,000 | $0 | $45,555 | $45,555 |
| 2014 | $10,759 | $35,000 | $0 | $45,759 | $45,759 |
| 2013 | $11,168 | $40,000 | $0 | $51,168 | $51,168 |
| 2012 | $11,372 | $57,600 | $0 | $68,972 | $68,972 |
| 2011 | $11,781 | $72,000 | $0 | $83,781 | $83,781 |
| 2010 | $12,099 | $72,000 | $0 | $84,099 | $84,099 |
| 2009 | $12,503 | $76,800 | $0 | $89,303 | $89,303 |
| 2008 | $12,522 | $71,000 | $0 | $83,522 | $83,522 |
| 2007 | $12,549 | $56,000 | $0 | $68,549 | $68,549 |
Deed and Sales History
| 1 | 11/09/2017 | WD | Warranty Deed | NEW 2 U HOMES NW, LLC | PEJACSEVICH-MIKO, ANDREA | | | $299,950.00 | 31924 | 4434169 |
| 2 | 09/10/2016 | WD | Warranty Deed | BRECK, CAROL J | NEW 2 U HOMES NW, LLC | | | $35,000.00 | 26122 | 4407317 |
| 3 | 06/27/2014 | DECREE | Divorce Decree/Legal Separation | BRECK, JOHN T | BRECK, CAROL J | | | $0.00 | 15941 | 4362034 |
| 4 | 03/01/1989 | OTHER | Other - Misc. Documents | HOOPLE, EDWARD J | BRECK, JOHN T | | | $10,990.00 | 91014 | 0 |
| 5 | 12/01/1988 | SHERIFFD | Sheriff Deed | BRECK, JOHN T | HOOPLE, EDWARD J | | | $0.00 | 90153 | 89000514 |
| 6 | 02/01/1988 | WD | Warranty Deed | TODD, RONALD J | BRECK, JOHN T | | | $6,835.00 | 91015 | 89003549 |
| 7 | 02/01/1985 | OTHER | Other - Misc. Documents | TODD, RONALD J | TODD, RONALD J | | | $12,000.00 | 50266 | 0 |
| 8 | 01/01/1985 | WD | Warranty Deed | HOOPLE, EDWARD J | TODD, RONALD J | | | $16,500.00 | 50267 | 85001239 |
| 9 | 05/01/1979 | EXECUTORD | Executor Deed | KOCH, RICHARD M | HOOPLE, EDWARD J | | | $8,500.00 | 92789 | 353643 |
| 10 | 04/01/1979 | OTHER | Other - Misc. Documents | HOOPLE, EDWARD J | KOCH, RICHARD M | | | $4,500.00 | 918890 | 3513660 |
Payout Agreement
| No payout information available.. |