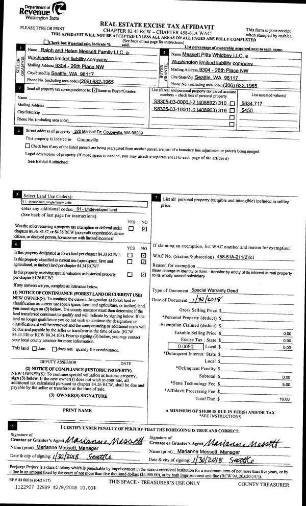
Property
Account |
| Property ID: | 224288 | Abbreviated Legal Description: | CAMANO WEST LOT 2 |
| Geographic ID: | S6285-00-00002-0 | Agent Code: | |
| Type: | Real | | |
| Tax Area: | 510 - APPRAISER-Stan/Cam Schl Dist, improved & 1 acre or less | Land Use Code | 11 |
| Open Space: | N | DFL | N |
| Historic Property: | N | Remodel Property: | N |
| Multi-Family Redevelopment: | N | | |
| Township: | | Section: | |
| Range: | |
Location |
| Address: | 210 BURKE DR CAMANO ISLAND, WA 98282 | Mapsco: | |
| Neighborhood: | North Camano | Map ID: | 574 |
| Neighborhood CD: | 06-C |
Owner |
| Name: | EVENSON, RICHARD K | Owner ID: | 307642 |
| Mailing Address: | LESLIE A EVENSON 210 BURKE DR CAMANO ISLAND, WA 98282 | % Ownership: | 100.0000000000% |
| | | Exemptions: | |
Taxes and Assessment Details
Values
| (+) Improvement Homesite Value: | + | $0 | |
| (+) Improvement Non-Homesite Value: | + | $914,292 | |
| (+) Land Homesite Value: | + | $0 | |
| (+) Land Non-Homesite Value: | + | $450,000 | |
| (+) Curr Use (HS): | + | $0 | $0 |
| (+) Curr Use (NHS): | + | $0 | $0 |
| | | -------------------------- | |
| (=) Market Value: | = | $1,364,292 | |
| (–) Productivity Loss: | – | $0 | |
| | | -------------------------- | |
| (=) Subtotal: | = | $1,364,292 | |
| (+) Senior Appraised Value: | + | $0 | |
| (+) Non-Senior Appraised Value: | + | $1,364,292 | |
| | | -------------------------- | |
| (=) Total Appraised Value: | = | $1,364,292 | |
| (–) Senior Exemption Loss: | – | $0 | |
| (–) Exemption Loss: | – | $0 | |
| | | -------------------------- | |
| (=) Taxable Value: | = | $1,364,292 | |
Taxing Jurisdiction
| Owner: | EVENSON, RICHARD K | | |
| % Ownership: | 100.0000000000% | | |
| Total Value: | $1,364,292 | | |
| Tax Area: | 510 - APPRAISER-Stan/Cam Schl Dist, improved & 1 acre or less |
| CF | Conservation Futures | 0.0316035091 | $1,364,292 | $1,364,292 | $43.12 | | |
| EMS1 | Fire & Rescue Dist #1 Camano GEN (EMS) | 0.3677864386 | $1,364,292 | $1,364,292 | $501.77 | | |
| FIRE1 | Fire & Rescue Dist #1 Camano GEN | 1.2502910536 | $1,364,292 | $1,364,292 | $1,705.76 | | |
| FIRE1BOND | Fire & Rescue Dist #1 Camano BOND | 0.1570001679 | $1,364,292 | $1,364,292 | $214.19 | | |
| CE | County Current Expense | 0.3708482477 | $1,364,292 | $1,364,292 | $505.95 | | |
| CR | County Roads | 0.4584763726 | $1,364,292 | $1,364,292 | $625.50 | | |
| LCIB | Library Sno-Isle BOND (Camano Island) | 0.0396325772 | $1,364,292 | $1,364,292 | $54.07 | | |
| LIB | Library Sno-Isle GEN | 0.3153421757 | $1,364,292 | $1,364,292 | $430.22 | | |
| SCH205_401 | School 205-401 Enrichment | 1.2698420524 | $1,364,292 | $1,364,292 | $1,732.44 | | |
| SCH205BOND | School 205-401 BOND | 0.9396497583 | $1,364,292 | $1,364,292 | $1,281.96 | | |
| ST | State School | 1.3035497053 | $1,364,292 | $1,364,292 | $1,778.42 | | |
| ST2 | State School Part 2 | 0.8169543533 | $1,364,292 | $1,364,292 | $1,114.56 | | |
| | Total Tax Rate: | 7.3209764117 | | | | | |
| | | | | Taxes w/Current Exemptions: | $9,987.96 | | |
| | | | | Taxes w/o Exemptions: | $9,987.96 | | |
Improvement / Building
| Improvement #1: | RESIDENTIAL | State Code: | Y | 3612.7 sqft | Value: | $914,292 |
| Bathrooms: | 3.5 | Bedrooms: | 3 | | Ceiling: | DRYWALL PAINTED | Cooling: | HEAT PUMP/CONV/V | | Exterior Wall/Cover: | CEMENT FIBER | Floor Covering: | CERAMIC TILE/HWD 40/60 | | Floor Structure: | WOOD W/SUBFLOOR | Foundation: | CONCRETE | | Interior Finish: | DRYWALL PAINT | Plumbing Fixture Cnt: | 17 | | Roof Slope: | 6" IN 12" | Roof Structure/Cover: | CJ ASPHALT |
|
| | Type | Description | Class CD | Sub Class CD | Year Built | Area |
| | BAS | BASE/MAIN FLOOR | 5 | 0 | 2017 | 2244.2 |
| | AGR | ATTACHED GARAGE | 5 | 0 | 2017 | 680.0 |
| | DWN | DOWNSTAIRS LIVING AREA | 5 | 0 | 2017 | 1368.5 |
| | OWC | OPEN WOOD PORCH W/STEPS/ROOF/C | 5 | 0 | 2017 | 240.0 |
| | OP4 | OPEN PORCH W/CEILING-ROOF | 5 | 0 | 2017 | 120.0 |
| | OP2 | OPEN PORCH W/STEPS | 5 | 0 | 2017 | 168.0 |
Sketch
Property Image
Land
| 1 | 14 | SQ (08001-12000) | 0.0000 | 0.00 | 0.00 | 0.00 | 1.00 | $450,000 | $0 |
Roll Value History
| 2026 | N/A | N/A | N/A | N/A | N/A |
| 2025 | $914,292 | $450,000 | $0 | $1,364,292 | $1,364,292 |
| 2024 | $923,890 | $450,000 | $0 | $1,373,890 | $1,373,890 |
| 2023 | $940,688 | $450,000 | $0 | $1,390,688 | $1,390,688 |
| 2022 | $616,383 | $360,000 | $0 | $976,383 | $976,383 |
| 2021 | $540,258 | $300,000 | $0 | $840,258 | $840,258 |
| 2020 | $525,157 | $220,000 | $0 | $745,157 | $745,157 |
| 2019 | $433,434 | $275,000 | $0 | $708,434 | $708,434 |
| 2018 | $434,538 | $210,000 | $0 | $644,538 | $644,538 |
| 2017 | $256,367 | $100,000 | $0 | $356,367 | $356,367 |
| 2016 | $0 | $100,000 | $0 | $100,000 | $100,000 |
| 2015 | $0 | $83,520 | $0 | $83,520 | $83,520 |
| 2014 | $0 | $83,520 | $0 | $83,520 | $83,520 |
| 2013 | $0 | $83,520 | $0 | $83,520 | $83,520 |
| 2012 | $0 | $83,520 | $0 | $83,520 | $83,520 |
| 2011 | $0 | $104,400 | $0 | $104,400 | $104,400 |
| 2010 | $0 | $104,400 | $0 | $104,400 | $104,400 |
| 2009 | $0 | $150,000 | $0 | $150,000 | $150,000 |
| 2008 | $0 | $270,000 | $0 | $270,000 | $270,000 |
| 2007 | $0 | $270,000 | $0 | $270,000 | $270,000 |
Deed and Sales History
| 1 | 08/25/2022 | WD | Warranty Deed | COCKER, RICHARD L | EVENSON, RICHARD K | | | $1,450,000.00 | 54400 | 4550612 |
| 2 | 01/22/2018 | WD | Warranty Deed | CALIKIA, LLC | COCKER, RICHARD L | | | $810,000.00 | 32711 | 4438008 |
| 3 | 09/06/2016 | WD | Warranty Deed | SJOBLOM, NANCY | CALIKIA, LLC | | | $122,500.00 | 26023 | 4406770 |
Payout Agreement
| No payout information available.. |