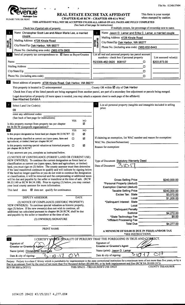
Property
Account |
| Property ID: | 224340 | Abbreviated Legal Description: | CAMANO WEST LOT 8 |
| Geographic ID: | S6285-00-00008-0 | Agent Code: | |
| Type: | Real | | |
| Tax Area: | 510 - APPRAISER-Stan/Cam Schl Dist, improved & 1 acre or less | Land Use Code | 11 |
| Open Space: | N | DFL | N |
| Historic Property: | N | Remodel Property: | N |
| Multi-Family Redevelopment: | N | | |
| Township: | | Section: | |
| Range: | |
Location |
| Address: | 242 BURKE DR CAMANO ISLAND, WA 98282 | Mapsco: | |
| Neighborhood: | North Camano | Map ID: | 574 |
| Neighborhood CD: | 06-C |
Owner |
| Name: | EWELL, CRIS | Owner ID: | 306272 |
| Mailing Address: | KRISTY EWELL 242 BURKE DR CAMANO ISLAND, WA 98282 | % Ownership: | 100.0000000000% |
| | | Exemptions: | |
Taxes and Assessment Details
Values
| (+) Improvement Homesite Value: | + | $0 | |
| (+) Improvement Non-Homesite Value: | + | $368,806 | |
| (+) Land Homesite Value: | + | $0 | |
| (+) Land Non-Homesite Value: | + | $450,000 | |
| (+) Curr Use (HS): | + | $0 | $0 |
| (+) Curr Use (NHS): | + | $0 | $0 |
| | | -------------------------- | |
| (=) Market Value: | = | $818,806 | |
| (–) Productivity Loss: | – | $0 | |
| | | -------------------------- | |
| (=) Subtotal: | = | $818,806 | |
| (+) Senior Appraised Value: | + | $0 | |
| (+) Non-Senior Appraised Value: | + | $818,806 | |
| | | -------------------------- | |
| (=) Total Appraised Value: | = | $818,806 | |
| (–) Senior Exemption Loss: | – | $0 | |
| (–) Exemption Loss: | – | $0 | |
| | | -------------------------- | |
| (=) Taxable Value: | = | $818,806 | |
Taxing Jurisdiction
| Owner: | EWELL, CRIS | | |
| % Ownership: | 100.0000000000% | | |
| Total Value: | $818,806 | | |
| Tax Area: | 510 - APPRAISER-Stan/Cam Schl Dist, improved & 1 acre or less |
| CF | Conservation Futures | 0.0316035091 | $818,806 | $818,806 | $25.88 | | |
| EMS1 | Fire & Rescue Dist #1 Camano GEN (EMS) | 0.3677864386 | $818,806 | $818,806 | $301.15 | | |
| FIRE1 | Fire & Rescue Dist #1 Camano GEN | 1.2502910536 | $818,806 | $818,806 | $1,023.75 | | |
| FIRE1BOND | Fire & Rescue Dist #1 Camano BOND | 0.1570001679 | $818,806 | $818,806 | $128.55 | | |
| CE | County Current Expense | 0.3708482477 | $818,806 | $818,806 | $303.65 | | |
| CR | County Roads | 0.4584763726 | $818,806 | $818,806 | $375.40 | | |
| LCIB | Library Sno-Isle BOND (Camano Island) | 0.0396325772 | $818,806 | $818,806 | $32.45 | | |
| LIB | Library Sno-Isle GEN | 0.3153421757 | $818,806 | $818,806 | $258.20 | | |
| SCH205_401 | School 205-401 Enrichment | 1.2698420524 | $818,806 | $818,806 | $1,039.75 | | |
| SCH205BOND | School 205-401 BOND | 0.9396497583 | $818,806 | $818,806 | $769.39 | | |
| ST | State School | 1.3035497053 | $818,806 | $818,806 | $1,067.35 | | |
| ST2 | State School Part 2 | 0.8169543533 | $818,806 | $818,806 | $668.93 | | |
| | Total Tax Rate: | 7.3209764117 | | | | | |
| | | | | Taxes w/Current Exemptions: | $5,994.45 | | |
| | | | | Taxes w/o Exemptions: | $5,994.45 | | |
Improvement / Building
| Improvement #1: | RESIDENTIAL | State Code: | Y | 2061.8 sqft | Value: | $368,806 |
| Bathrooms: | 3 | Bedrooms: | 3 | | Ceiling: | DRYWALL PAINTED | Cooling: | HEAT PUMP/CONV/V | | Exterior Wall/Cover: | PLY/HARDBOARD T-111 | Floor Covering: | HARDWOOD/CARP 80-20 | | Floor Structure: | WOOD W/SUBFLOOR | Foundation: | CONCRETE | | Interior Finish: | DRYWALL PAINT | Plumbing Fixture Cnt: | 15 | | Roof Slope: | 5" IN 12" | Roof Structure/Cover: | CJ ASPHALT |
|
| | Type | Description | Class CD | Sub Class CD | Year Built | Area |
| | BAS | BASE/MAIN FLOOR | 3 | 0 | 2000 | 1303.7 |
| | DWN | DOWNSTAIRS LIVING AREA | 3 | 0 | 2000 | 758.1 |
| | OP1 | OPEN PORCH SLAB | 3 | 0 | 2000 | 208.0 |
| | BIG | BUILT IN GARAGE | 3 | 0 | 2000 | 440.0 |
| | OWP | OPEN WOOD PORCH W/STEPS | 3 | 0 | 2000 | 396.9 |
| | OP3 | OPEN PORCH W/ROOF | 3 | 0 | 2000 | 144.0 |
Sketch
Property Image
Land
| 1 | 14 | SQ (08001-12000) | 0.0000 | 0.00 | 0.00 | 0.00 | 1.00 | $450,000 | $0 |
Roll Value History
| 2026 | N/A | N/A | N/A | N/A | N/A |
| 2025 | $368,806 | $450,000 | $0 | $818,806 | $818,806 |
| 2024 | $371,907 | $450,000 | $0 | $821,907 | $821,907 |
| 2023 | $375,210 | $450,000 | $0 | $825,210 | $825,210 |
| 2022 | $272,528 | $360,000 | $0 | $632,528 | $632,528 |
| 2021 | $239,856 | $300,000 | $0 | $539,856 | $539,856 |
| 2020 | $233,174 | $220,000 | $0 | $453,174 | $453,174 |
| 2019 | $165,744 | $275,000 | $0 | $440,744 | $440,744 |
| 2018 | $166,230 | $210,000 | $0 | $376,230 | $376,230 |
| 2017 | $167,189 | $150,000 | $0 | $317,189 | $317,189 |
| 2016 | $165,960 | $130,000 | $0 | $295,960 | $295,960 |
| 2015 | $167,959 | $92,800 | $0 | $260,759 | $260,759 |
| 2014 | $169,960 | $92,800 | $0 | $262,760 | $262,760 |
| 2013 | $171,959 | $92,800 | $0 | $264,759 | $264,759 |
| 2012 | $173,957 | $92,800 | $0 | $266,757 | $266,757 |
| 2011 | $175,958 | $116,000 | $0 | $291,958 | $291,958 |
| 2010 | $179,374 | $116,000 | $0 | $295,374 | $295,374 |
| 2009 | $187,092 | $200,000 | $0 | $387,092 | $387,092 |
| 2008 | $189,380 | $200,000 | $0 | $389,380 | $389,380 |
| 2007 | $189,735 | $200,000 | $0 | $389,735 | $389,735 |
Deed and Sales History
| 1 | 09/27/2022 | WD | Warranty Deed | WHITCUTT, SANDRA | EWELL, CRIS | | | $900,000.00 | 54772 | 4552189 |
| 2 | 10/24/2002 | 5 | DNU - Marriage License/Name Change | WHITCUTT, SANDRA | WHITCUTT, SANDRA | | | $0.00 | 24246 | 4035159 |
| 3 | 04/17/2001 | ESTSEPPROP | Establish Separate Property | MACKELLAR, SANDRA | WHITCUTT, SANDRA | | | $0.00 | 11321 | 20030242 |
| 4 | 03/13/2000 | WD | Warranty Deed | HAYES, MIKE | MACKELLAR, SANDRA | | | $179,800.00 | 946 | 20004670 |
| 5 | 11/29/1999 | WD | Warranty Deed | JOHANSSON, PAUL J | HAYES, MIKE | | | $45,000.00 | 95218 | 99029015 |
| 6 | 10/01/1987 | WD | Warranty Deed | HAKANSSON, VILHELM | JOHANSSON, PAUL J | | | $5,405.00 | 73072 | 87013577 |
| 7 | 01/01/1900 | OTHER | Other - Misc. Documents | Unknown | HAKANSSON, VILHELM | | | $0.00 | 0 | 0 |
Payout Agreement
| No payout information available.. |