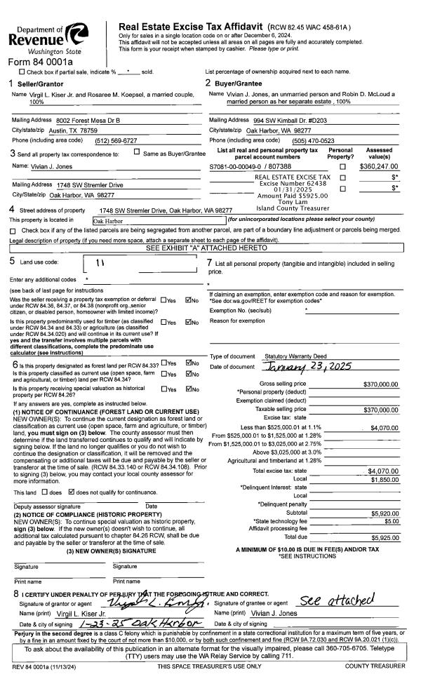
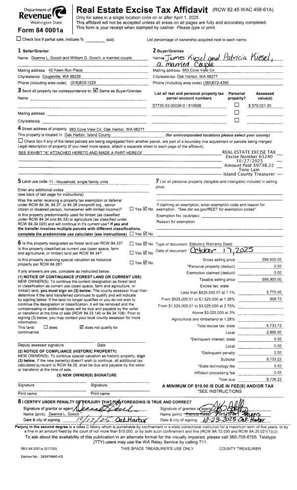
Property
Account |
| Property ID: | 224439 | Abbreviated Legal Description: | CAMANO WEST LOT 17 |
| Geographic ID: | S6285-00-00017-0 | Agent Code: | |
| Type: | Real | | |
| Tax Area: | 510 - APPRAISER-Stan/Cam Schl Dist, improved & 1 acre or less | Land Use Code | 11 |
| Open Space: | N | DFL | N |
| Historic Property: | N | Remodel Property: | N |
| Multi-Family Redevelopment: | N | | |
| Township: | | Section: | |
| Range: | |
Location |
| Address: | 851 LINDA LN CAMANO ISLAND, WA 98282 | Mapsco: | |
| Neighborhood: | North Camano | Map ID: | 574 |
| Neighborhood CD: | 06-C |
Owner |
| Name: | GODEK III, JOHN | Owner ID: | 313341 |
| Mailing Address: | DEBORAH LK GODEK 851 WEST LINDA LN CAMANO ISLAND, WA 98282 | % Ownership: | 100.0000000000% |
| | | Exemptions: | |
Taxes and Assessment Details
Values
| (+) Improvement Homesite Value: | + | $0 | |
| (+) Improvement Non-Homesite Value: | + | $657,236 | |
| (+) Land Homesite Value: | + | $0 | |
| (+) Land Non-Homesite Value: | + | $450,000 | |
| (+) Curr Use (HS): | + | $0 | $0 |
| (+) Curr Use (NHS): | + | $0 | $0 |
| | | -------------------------- | |
| (=) Market Value: | = | $1,107,236 | |
| (–) Productivity Loss: | – | $0 | |
| | | -------------------------- | |
| (=) Subtotal: | = | $1,107,236 | |
| (+) Senior Appraised Value: | + | $0 | |
| (+) Non-Senior Appraised Value: | + | $1,107,236 | |
| | | -------------------------- | |
| (=) Total Appraised Value: | = | $1,107,236 | |
| (–) Senior Exemption Loss: | – | $0 | |
| (–) Exemption Loss: | – | $0 | |
| | | -------------------------- | |
| (=) Taxable Value: | = | $1,107,236 | |
Taxing Jurisdiction
| Owner: | GODEK III, JOHN | | |
| % Ownership: | 100.0000000000% | | |
| Total Value: | $1,107,236 | | |
| Tax Area: | 510 - APPRAISER-Stan/Cam Schl Dist, improved & 1 acre or less |
| CF | Conservation Futures | 0.0316035091 | $1,107,236 | $1,107,236 | $34.99 | | |
| EMS1 | Fire & Rescue Dist #1 Camano GEN (EMS) | 0.3677864386 | $1,107,236 | $1,107,236 | $407.23 | | |
| FIRE1 | Fire & Rescue Dist #1 Camano GEN | 1.2502910536 | $1,107,236 | $1,107,236 | $1,384.37 | | |
| FIRE1BOND | Fire & Rescue Dist #1 Camano BOND | 0.1570001679 | $1,107,236 | $1,107,236 | $173.84 | | |
| CE | County Current Expense | 0.3708482477 | $1,107,236 | $1,107,236 | $410.62 | | |
| CR | County Roads | 0.4584763726 | $1,107,236 | $1,107,236 | $507.64 | | |
| LCIB | Library Sno-Isle BOND (Camano Island) | 0.0396325772 | $1,107,236 | $1,107,236 | $43.88 | | |
| LIB | Library Sno-Isle GEN | 0.3153421757 | $1,107,236 | $1,107,236 | $349.16 | | |
| SCH205_401 | School 205-401 Enrichment | 1.2698420524 | $1,107,236 | $1,107,236 | $1,406.01 | | |
| SCH205BOND | School 205-401 BOND | 0.9396497583 | $1,107,236 | $1,107,236 | $1,040.41 | | |
| ST | State School | 1.3035497053 | $1,107,236 | $1,107,236 | $1,443.34 | | |
| ST2 | State School Part 2 | 0.8169543533 | $1,107,236 | $1,107,236 | $904.56 | | |
| | Total Tax Rate: | 7.3209764117 | | | | | |
| | | | | Taxes w/Current Exemptions: | $8,106.05 | | |
| | | | | Taxes w/o Exemptions: | $8,106.05 | | |
Improvement / Building
| Improvement #1: | RESIDENTIAL | State Code: | Y | 3436.6 sqft | Value: | $657,236 |
| Bathrooms: | 2.25 | Bedrooms: | 2 | | Ceiling: | DRYWALL PAINTED | Cooling: | HEAT PUMP/CONV/V | | Exterior Wall/Cover: | CEMENT FIBER | Floor Covering: | CARPET/VINYL 80-20 | | Floor Structure: | WOOD W/SUBFLOOR | Foundation: | CONCRETE | | Interior Finish: | DRYWALL PAINT | Plumbing Fixture Cnt: | 14 | | Roof Slope: | 5" IN 12" | Roof Structure/Cover: | CJ ASPHALT |
|
| | Type | Description | Class CD | Sub Class CD | Year Built | Area |
| | BAS | BASE/MAIN FLOOR | 4 | 0 | 1998 | 1718.3 |
| | OP2 | OPEN PORCH W/STEPS | 4 | 0 | 1998 | 1014.0 |
| | UTY | STORAGE/UTILITY | 4 | 0 | 1998 | 168.0 |
| | OP3 | OPEN PORCH W/ROOF | 4 | 0 | 1998 | 562.3 |
| | OP4 | OPEN PORCH W/CEILING-ROOF | 4 | 0 | 1998 | 42.6 |
| | AGR | ATTACHED GARAGE | 4 | 0 | 1998 | 587.5 |
| | OP3 | OPEN PORCH W/ROOF | 4 | 0 | 1998 | 98.0 |
| | OWC | OPEN WOOD PORCH W/STEPS/ROOF/C | 4 | 0 | 1998 | 412.2 |
| | DWN | DOWNSTAIRS LIVING AREA | 4 | 0 | 1998 | 1718.3 |
Sketch
| No sketches available for this property. |
Property Image
Land
| 1 | 14 | SQ (08001-12000) | 0.0000 | 0.00 | 0.00 | 0.00 | 1.00 | $450,000 | $0 |
Roll Value History
| 2026 | N/A | N/A | N/A | N/A | N/A |
| 2025 | $657,236 | $450,000 | $0 | $1,107,236 | $1,107,236 |
| 2024 | $420,777 | $450,000 | $0 | $870,777 | $870,777 |
| 2023 | $425,893 | $450,000 | $0 | $875,893 | $875,893 |
| 2022 | $353,238 | $360,000 | $0 | $713,238 | $713,238 |
| 2021 | $311,199 | $300,000 | $0 | $611,199 | $611,199 |
| 2020 | $304,249 | $220,000 | $0 | $524,249 | $524,249 |
| 2019 | $242,715 | $275,000 | $0 | $517,715 | $517,715 |
| 2018 | $243,481 | $210,000 | $0 | $453,481 | $453,481 |
| 2017 | $244,623 | $150,000 | $0 | $394,623 | $394,623 |
| 2016 | $239,339 | $130,000 | $0 | $369,339 | $369,339 |
| 2015 | $242,296 | $92,800 | $0 | $335,096 | $335,096 |
| 2014 | $245,248 | $92,800 | $0 | $338,048 | $338,048 |
| 2013 | $242,449 | $92,800 | $0 | $335,249 | $335,249 |
| 2012 | $245,334 | $92,800 | $0 | $338,134 | $338,134 |
| 2011 | $245,313 | $116,000 | $0 | $361,313 | $361,313 |
| 2010 | $276,646 | $116,000 | $0 | $392,646 | $392,646 |
| 2009 | $288,395 | $200,000 | $0 | $488,395 | $488,395 |
| 2008 | $291,621 | $200,000 | $0 | $491,621 | $491,621 |
| 2007 | $296,924 | $197,949 | $0 | $494,873 | $494,873 |
Deed and Sales History
| 1 | 07/29/2024 | WD | Warranty Deed | SHINKLE, MICHAEL R / VALERIE | GODEK III, JOHN | | | $1,350,000.00 | 60797 | 4575262 |
| 2 | 05/01/1997 | WD | Warranty Deed | CARTER, CHARLES S | SHINKLE, MICHAEL R | | | $54,000.00 | 71683 | 97007751 |
| 3 | 01/01/1900 | OTHER | Other - Misc. Documents | Unknown | CARTER, CHARLES S | | | $0.00 | 0 | 0 |
Payout Agreement
| No payout information available.. |