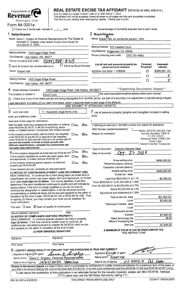
Property
Account |
| Property ID: | 224484 | Abbreviated Legal Description: | CAMANO WEST LOT 22 |
| Geographic ID: | S6285-00-00022-0 | Agent Code: | |
| Type: | Real | | |
| Tax Area: | 510 - APPRAISER-Stan/Cam Schl Dist, improved & 1 acre or less | Land Use Code | 11 |
| Open Space: | N | DFL | N |
| Historic Property: | N | Remodel Property: | N |
| Multi-Family Redevelopment: | N | | |
| Township: | | Section: | |
| Range: | |
Location |
| Address: | 275 BURKE DR CAMANO ISLAND, WA 98282 | Mapsco: | |
| Neighborhood: | North Camano | Map ID: | 574 |
| Neighborhood CD: | 06-C |
Owner |
| Name: | ZENTLER, TIMOTHY W | Owner ID: | 261091 |
| Mailing Address: | SHARON A ZENTLER PO BOX 2374 RICHLAND, WA 99352-0107 | % Ownership: | 100.0000000000% |
| | | Exemptions: | |
Taxes and Assessment Details
Values
| (+) Improvement Homesite Value: | + | $0 | |
| (+) Improvement Non-Homesite Value: | + | $345,705 | |
| (+) Land Homesite Value: | + | $0 | |
| (+) Land Non-Homesite Value: | + | $360,000 | |
| (+) Curr Use (HS): | + | $0 | $0 |
| (+) Curr Use (NHS): | + | $0 | $0 |
| | | -------------------------- | |
| (=) Market Value: | = | $705,705 | |
| (–) Productivity Loss: | – | $0 | |
| | | -------------------------- | |
| (=) Subtotal: | = | $705,705 | |
| (+) Senior Appraised Value: | + | $0 | |
| (+) Non-Senior Appraised Value: | + | $705,705 | |
| | | -------------------------- | |
| (=) Total Appraised Value: | = | $705,705 | |
| (–) Senior Exemption Loss: | – | $0 | |
| (–) Exemption Loss: | – | $0 | |
| | | -------------------------- | |
| (=) Taxable Value: | = | $705,705 | |
Taxing Jurisdiction
| Owner: | ZENTLER, TIMOTHY W | | |
| % Ownership: | 100.0000000000% | | |
| Total Value: | $705,705 | | |
| Tax Area: | 510 - APPRAISER-Stan/Cam Schl Dist, improved & 1 acre or less |
| CF | Conservation Futures | 0.0316035091 | $705,705 | $705,705 | $22.30 | | |
| EMS1 | Fire & Rescue Dist #1 Camano GEN (EMS) | 0.3677864386 | $705,705 | $705,705 | $259.55 | | |
| FIRE1 | Fire & Rescue Dist #1 Camano GEN | 1.2502910536 | $705,705 | $705,705 | $882.34 | | |
| FIRE1BOND | Fire & Rescue Dist #1 Camano BOND | 0.1570001679 | $705,705 | $705,705 | $110.80 | | |
| CE | County Current Expense | 0.3708482477 | $705,705 | $705,705 | $261.71 | | |
| CR | County Roads | 0.4584763726 | $705,705 | $705,705 | $323.55 | | |
| LCIB | Library Sno-Isle BOND (Camano Island) | 0.0396325772 | $705,705 | $705,705 | $27.97 | | |
| LIB | Library Sno-Isle GEN | 0.3153421757 | $705,705 | $705,705 | $222.54 | | |
| SCH205_401 | School 205-401 Enrichment | 1.2698420524 | $705,705 | $705,705 | $896.13 | | |
| SCH205BOND | School 205-401 BOND | 0.9396497583 | $705,705 | $705,705 | $663.12 | | |
| ST | State School | 1.3035497053 | $705,705 | $705,705 | $919.92 | | |
| ST2 | State School Part 2 | 0.8169543533 | $705,705 | $705,705 | $576.53 | | |
| | Total Tax Rate: | 7.3209764117 | | | | | |
| | | | | Taxes w/Current Exemptions: | $5,166.46 | | |
| | | | | Taxes w/o Exemptions: | $5,166.46 | | |
Improvement / Building
| Improvement #1: | RESIDENTIAL | State Code: | Y | 2660.0 sqft | Value: | $345,705 |
| Bathrooms: | 2.5 | Bedrooms: | 3 | | Ceiling: | DRYWALL PAINTED | Cooling: | HEAT PUMP/CONV/V | | Exterior Wall/Cover: | WOOD SIDING | Floor Covering: | CARPET/VINYL 80-20 | | Floor Structure: | WOOD W/SUBFLOOR | Foundation: | CONCRETE | | Interior Finish: | DRYWALL PAINT | Plumbing Fixture Cnt: | 12 | | Roof Slope: | 5" IN 12" | Roof Structure/Cover: | CJ ASPHALT |
|
| | Type | Description | Class CD | Sub Class CD | Year Built | Area |
| | BAS | BASE/MAIN FLOOR | 3 | 0 | 1981 | 1686.2 |
| | UB8 | BASEMENT UNFINISHED 8" | 3 | 0 | 1981 | 440.0 |
| | OP3 | OPEN PORCH W/ROOF | 3 | 0 | 1981 | 157.5 |
| | AGR | ATTACHED GARAGE | 3 | 0 | 1981 | 540.0 |
| | OWP | OPEN WOOD PORCH W/STEPS | 3 | 0 | 1981 | 64.0 |
| | OWP | OPEN WOOD PORCH W/STEPS | 3 | 0 | 1981 | 210.0 |
| | OWR | OPEN WOOD PORCH W/STEPS/ROOF | 3 | 0 | 1981 | 131.2 |
| | OWC | OPEN WOOD PORCH W/STEPS/ROOF/C | 3 | 0 | 1981 | 75.0 |
| | DWN | DOWNSTAIRS LIVING AREA | 3 | 0 | 1981 | 973.8 |
Sketch
Property Image
Land
| 1 | 14 | SQ (08001-12000) | 0.0000 | 0.00 | 0.00 | 0.00 | 1.00 | $360,000 | $0 |
Roll Value History
| 2026 | N/A | N/A | N/A | N/A | N/A |
| 2025 | $345,705 | $360,000 | $0 | $705,705 | $705,705 |
| 2024 | $350,299 | $360,000 | $0 | $710,299 | $710,299 |
| 2023 | $354,893 | $360,000 | $0 | $714,893 | $714,893 |
| 2022 | $317,188 | $260,000 | $0 | $577,188 | $577,188 |
| 2021 | $279,442 | $200,000 | $0 | $479,442 | $479,442 |
| 2020 | $273,034 | $180,000 | $0 | $453,034 | $453,034 |
| 2019 | $214,313 | $210,000 | $0 | $424,313 | $424,313 |
| 2018 | $214,988 | $180,000 | $0 | $394,988 | $394,988 |
| 2017 | $216,295 | $130,000 | $0 | $346,295 | $346,295 |
| 2016 | $211,336 | $130,000 | $0 | $341,336 | $341,336 |
| 2015 | $200,043 | $92,800 | $0 | $292,843 | $292,843 |
| 2014 | $202,785 | $92,800 | $0 | $295,585 | $295,585 |
| 2013 | $205,526 | $92,800 | $0 | $298,326 | $298,326 |
| 2012 | $205,472 | $92,800 | $0 | $298,272 | $298,272 |
| 2011 | $208,326 | $116,000 | $0 | $324,326 | $324,326 |
| 2010 | $209,131 | $116,000 | $0 | $325,131 | $325,131 |
| 2009 | $218,522 | $200,000 | $0 | $418,522 | $418,522 |
| 2008 | $219,071 | $200,000 | $0 | $419,071 | $419,071 |
| 2007 | $222,099 | $200,000 | $0 | $422,099 | $422,099 |
Deed and Sales History
| 1 | 02/28/2013 | WD | Warranty Deed | ELSNER, DAVID J | ZENTLER, TIMOTHY W | | | $305,000.00 | 10605 | 4335032 |
| 2 | 10/04/1999 | WD | Warranty Deed | BARKER, HUGH R | ELSNER, DAVID J | | | $235,000.00 | 94258 | 99023398 |
| 3 | 01/01/1900 | OTHER | Other - Misc. Documents | Unknown | BARKER, HUGH R | | | $0.00 | 0 | 0 |
Payout Agreement
| No payout information available.. |