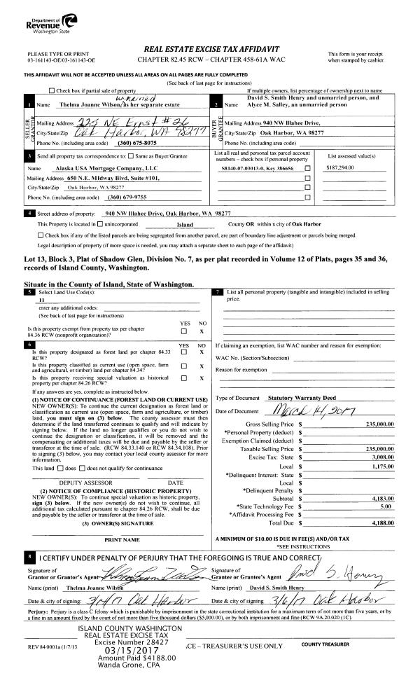
Property
Account |
| Property ID: | 224518 | Abbreviated Legal Description: | CAMANO WEST LOT 25 |
| Geographic ID: | S6285-00-00025-0 | Agent Code: | |
| Type: | Real | | |
| Tax Area: | 510 - APPRAISER-Stan/Cam Schl Dist, improved & 1 acre or less | Land Use Code | 11 |
| Open Space: | N | DFL | N |
| Historic Property: | N | Remodel Property: | N |
| Multi-Family Redevelopment: | N | | |
| Township: | | Section: | |
| Range: | |
Location |
| Address: | 257 BURKE DR CAMANO ISLAND, WA 98282 | Mapsco: | |
| Neighborhood: | North Camano | Map ID: | 574 |
| Neighborhood CD: | 06-C |
Owner |
| Name: | MILTON, ROBERT A | Owner ID: | 155114 |
| Mailing Address: | ANNE C MILTON 26910 92ND AVE NW C5-#190 STANWOOD, WA 98292 | % Ownership: | 100.0000000000% |
| | | Exemptions: | |
Taxes and Assessment Details
Values
| (+) Improvement Homesite Value: | + | $0 | |
| (+) Improvement Non-Homesite Value: | + | $538,832 | |
| (+) Land Homesite Value: | + | $0 | |
| (+) Land Non-Homesite Value: | + | $450,000 | |
| (+) Curr Use (HS): | + | $0 | $0 |
| (+) Curr Use (NHS): | + | $0 | $0 |
| | | -------------------------- | |
| (=) Market Value: | = | $988,832 | |
| (–) Productivity Loss: | – | $0 | |
| | | -------------------------- | |
| (=) Subtotal: | = | $988,832 | |
| (+) Senior Appraised Value: | + | $0 | |
| (+) Non-Senior Appraised Value: | + | $988,832 | |
| | | -------------------------- | |
| (=) Total Appraised Value: | = | $988,832 | |
| (–) Senior Exemption Loss: | – | $0 | |
| (–) Exemption Loss: | – | $0 | |
| | | -------------------------- | |
| (=) Taxable Value: | = | $988,832 | |
Taxing Jurisdiction
| Owner: | MILTON, ROBERT A | | |
| % Ownership: | 100.0000000000% | | |
| Total Value: | $988,832 | | |
| Tax Area: | 510 - APPRAISER-Stan/Cam Schl Dist, improved & 1 acre or less |
| CF | Conservation Futures | 0.0316035091 | $988,832 | $988,832 | $31.25 | | |
| EMS1 | Fire & Rescue Dist #1 Camano GEN (EMS) | 0.3677864386 | $988,832 | $988,832 | $363.68 | | |
| FIRE1 | Fire & Rescue Dist #1 Camano GEN | 1.2502910536 | $988,832 | $988,832 | $1,236.33 | | |
| FIRE1BOND | Fire & Rescue Dist #1 Camano BOND | 0.1570001679 | $988,832 | $988,832 | $155.25 | | |
| CE | County Current Expense | 0.3708482477 | $988,832 | $988,832 | $366.71 | | |
| CR | County Roads | 0.4584763726 | $988,832 | $988,832 | $453.36 | | |
| LCIB | Library Sno-Isle BOND (Camano Island) | 0.0396325772 | $988,832 | $988,832 | $39.19 | | |
| LIB | Library Sno-Isle GEN | 0.3153421757 | $988,832 | $988,832 | $311.82 | | |
| SCH205_401 | School 205-401 Enrichment | 1.2698420524 | $988,832 | $988,832 | $1,255.66 | | |
| SCH205BOND | School 205-401 BOND | 0.9396497583 | $988,832 | $988,832 | $929.16 | | |
| ST | State School | 1.3035497053 | $988,832 | $988,832 | $1,288.99 | | |
| ST2 | State School Part 2 | 0.8169543533 | $988,832 | $988,832 | $807.83 | | |
| | Total Tax Rate: | 7.3209764117 | | | | | |
| | | | | Taxes w/Current Exemptions: | $7,239.23 | | |
| | | | | Taxes w/o Exemptions: | $7,239.23 | | |
Improvement / Building
| Improvement #1: | RESIDENTIAL | State Code: | Y | 3522.0 sqft | Value: | $538,832 |
| Bathrooms: | 3 | Bedrooms: | 3 | | Ceiling: | DRYWALL PAINTED | Cooling: | HEAT PUMP/CONV/V | | Exterior Wall/Cover: | WOOD SIDING | Floor Covering: | VINYL/HARDWOOD 20-80 | | Floor Structure: | WOOD W/SUBFLOOR | Foundation: | CONCRETE | | Interior Finish: | DRYWALL PAINT | Plumbing Fixture Cnt: | 14 | | Roof Slope: | 6" IN 12" | Roof Structure/Cover: | CJ ASPHALT |
|
| | Type | Description | Class CD | Sub Class CD | Year Built | Area |
| | BAS | BASE/MAIN FLOOR | 4 | 0 | 1997 | 1810.8 |
| | OP1 | OPEN PORCH SLAB | 4 | 0 | 1997 | 121.6 |
| | OP4 | OPEN PORCH W/CEILING-ROOF | 4 | 0 | 1997 | 42.0 |
| | AGR | ATTACHED GARAGE | 4 | 0 | 1997 | 534.6 |
| | OWP | OPEN WOOD PORCH W/STEPS | 4 | 0 | 1997 | 375.2 |
| | DWN | DOWNSTAIRS LIVING AREA | 4 | 0 | 1997 | 1711.2 |
Sketch
Property Image
Land
| 1 | 14 | SQ (08001-12000) | 0.0000 | 0.00 | 0.00 | 0.00 | 1.00 | $450,000 | $0 |
Roll Value History
| 2026 | N/A | N/A | N/A | N/A | N/A |
| 2025 | $538,832 | $450,000 | $0 | $988,832 | $988,832 |
| 2024 | $545,305 | $450,000 | $0 | $995,305 | $995,305 |
| 2023 | $551,775 | $450,000 | $0 | $1,001,775 | $1,001,775 |
| 2022 | $458,814 | $360,000 | $0 | $818,814 | $818,814 |
| 2021 | $403,837 | $300,000 | $0 | $703,837 | $703,837 |
| 2020 | $394,385 | $220,000 | $0 | $614,385 | $614,385 |
| 2019 | $315,983 | $275,000 | $0 | $590,983 | $590,983 |
| 2018 | $316,910 | $210,000 | $0 | $526,910 | $526,910 |
| 2017 | $318,765 | $150,000 | $0 | $468,765 | $468,765 |
| 2016 | $321,975 | $130,000 | $0 | $451,975 | $451,975 |
| 2015 | $325,903 | $92,800 | $0 | $418,703 | $418,703 |
| 2014 | $329,830 | $92,800 | $0 | $422,630 | $422,630 |
| 2013 | $333,755 | $92,800 | $0 | $426,555 | $426,555 |
| 2012 | $337,682 | $92,800 | $0 | $430,482 | $430,482 |
| 2011 | $341,609 | $116,000 | $0 | $457,609 | $457,609 |
| 2010 | $351,358 | $116,000 | $0 | $467,358 | $467,358 |
| 2009 | $366,750 | $200,000 | $0 | $566,750 | $566,750 |
| 2008 | $370,999 | $200,000 | $0 | $570,999 | $570,999 |
| 2007 | $375,784 | $200,000 | $0 | $575,784 | $575,784 |
Deed and Sales History
| 1 | 11/07/2005 | WD | Warranty Deed | MARSH, MAHLON/PATRICIA J | MILTON, ROBERT A | | | $565,000.00 | 55748 | 4154221 |
| 2 | 12/01/1997 | WD | Warranty Deed | BELL, GARTH W | MARSH, MAHLON/PATRICIA J | | | $283,000.00 | 80016 | 98000060 |
| 3 | 08/01/1996 | WD | Warranty Deed | VERDA, DANIEL J | BELL, GARTH W | | | $55,000.00 | 62906 | 96014226 |
| 4 | 07/01/1996 | DECREE | Divorce Decree/Legal Separation | VERDA, DANIEL J | VERDA, DANIEL J | | | $0.00 | 62623 | 96012970 |
| 5 | 09/01/1990 | WD | Warranty Deed | BROCKWAY, RANDALL S | VERDA, DANIEL J | | | $57,500.00 | 5330 | 90017788 |
| 6 | 09/01/1989 | WD | Warranty Deed | HAGEN, THEODORE | BROCKWAY, RANDALL S | | | $20,000.00 | 94082 | 89013520 |
| 7 | 01/01/1900 | OTHER | Other - Misc. Documents | Unknown | HAGEN, THEODORE | | | $0.00 | 0 | 0 |
Payout Agreement
| No payout information available.. |