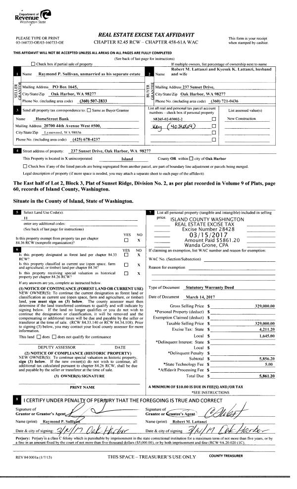
Property
Account |
| Property ID: | 224563 | Abbreviated Legal Description: | CAMANO WEST LOT 30 |
| Geographic ID: | S6285-00-00030-0 | Agent Code: | |
| Type: | Real | | |
| Tax Area: | 510 - APPRAISER-Stan/Cam Schl Dist, improved & 1 acre or less | Land Use Code | 11 |
| Open Space: | N | DFL | N |
| Historic Property: | N | Remodel Property: | N |
| Multi-Family Redevelopment: | N | | |
| Township: | | Section: | |
| Range: | |
Location |
| Address: | 229 BURKE DR CAMANO ISLAND, WA 98282 | Mapsco: | |
| Neighborhood: | North Camano | Map ID: | 574 |
| Neighborhood CD: | 06-C |
Owner |
| Name: | SARVER, MICHAEL R | Owner ID: | 261009 |
| Mailing Address: | SANDRA L SARVER 229 BURKE DR CAMANO ISLAND, WA 98282-7325 | % Ownership: | 100.0000000000% |
| | | Exemptions: | SNR/DSBL |
Taxes and Assessment Details
Values
| (+) Improvement Homesite Value: | + | $352,176 | |
| (+) Improvement Non-Homesite Value: | + | $0 | |
| (+) Land Homesite Value: | + | $450,000 | |
| (+) Land Non-Homesite Value: | + | $0 | |
| (+) Curr Use (HS): | + | $0 | $0 |
| (+) Curr Use (NHS): | + | $0 | $0 |
| | | -------------------------- | |
| (=) Market Value: | = | $802,176 | |
| (–) Productivity Loss: | – | $0 | |
| | | -------------------------- | |
| (=) Subtotal: | = | $802,176 | |
| (+) Senior Appraised Value: | + | $802,176 | |
| (+) Non-Senior Appraised Value: | + | $0 | |
| | | -------------------------- | |
| (=) Total Appraised Value: | = | $802,176 | |
| (–) Senior Exemption Loss: | – | $0 | |
| (–) Exemption Loss: | – | $0 | |
| | | -------------------------- | |
| (=) Taxable Value: | = | $802,176 | |
Taxing Jurisdiction
| Owner: | SARVER, MICHAEL R | | |
| % Ownership: | 100.0000000000% | | |
| Total Value: | $802,176 | | |
| Tax Area: | 510 - APPRAISER-Stan/Cam Schl Dist, improved & 1 acre or less |
| CF | Conservation Futures | 0.0316035091 | $802,176 | $802,176 | $25.35 | | |
| EMS1 | Fire & Rescue Dist #1 Camano GEN (EMS) | 0.3677864386 | $802,176 | $802,176 | $295.03 | | |
| FIRE1 | Fire & Rescue Dist #1 Camano GEN | 1.2502910536 | $802,176 | $802,176 | $1,002.95 | | |
| FIRE1BOND | Fire & Rescue Dist #1 Camano BOND | 0.0000000000 | $802,176 | $0 | $0.00 | | |
| CE | County Current Expense | 0.3708482477 | $802,176 | $802,176 | $297.49 | | |
| CR | County Roads | 0.4584763726 | $802,176 | $802,176 | $367.78 | | |
| LCIB | Library Sno-Isle BOND (Camano Island) | 0.0000000000 | $802,176 | $0 | $0.00 | | |
| LIB | Library Sno-Isle GEN | 0.3153421757 | $802,176 | $802,176 | $252.96 | | |
| SCH205_401 | School 205-401 Enrichment | 0.0000000000 | $802,176 | $0 | $0.00 | | |
| SCH205BOND | School 205-401 BOND | 0.0000000000 | $802,176 | $0 | $0.00 | | |
| ST | State School | 1.3035497053 | $802,176 | $802,176 | $1,045.68 | | |
| ST2 | State School Part 2 | 0.0000000000 | $802,176 | $0 | $0.00 | | |
| | Total Tax Rate: | 4.0978975026 | | | | | |
| | | | | Taxes w/Current Exemptions: | $3,287.24 | | |
| | | | | Taxes w/o Exemptions: | $5,872.71 | | |
Improvement / Building
| Improvement #1: | RESIDENTIAL | State Code: | Y | 1622.5 sqft | Value: | $352,176 |
| Bathrooms: | 2.75 | Bedrooms: | 3 | | Ceiling: | DRY WALL SPRAYED | Cooling: | HEAT PUMP/CONV/V | | Exterior Wall/Cover: | WOOD SIDING | Floor Covering: | CARPET/VINYL 80-20 | | Floor Structure: | WOOD W/SUBFLOOR | Foundation: | CONCRETE | | Interior Finish: | DRYWALL PAINT | Plumbing Fixture Cnt: | 12 | | Roof Slope: | 4" IN 12" | Roof Structure/Cover: | CJ ALUMINIUM HEAVY |
|
| | Type | Description | Class CD | Sub Class CD | Year Built | Area |
| | BAS | BASE/MAIN FLOOR | 3 | 0 | 1980 | 1622.5 |
| | UB8 | BASEMENT UNFINISHED 8" | 3 | 0 | 1980 | 1456.0 |
| | OP4 | OPEN PORCH W/CEILING-ROOF | 3 | 0 | 1980 | 96.8 |
| | AGR | ATTACHED GARAGE | 3 | 0 | 1980 | 661.5 |
| | OWP | OPEN WOOD PORCH W/STEPS | 3 | 0 | 1980 | 791.0 |
Sketch
Property Image
Land
| 1 | 13 | SQ (06001-08000) | 0.0000 | 0.00 | 0.00 | 0.00 | 1.00 | $450,000 | $0 |
Roll Value History
| 2026 | N/A | N/A | N/A | N/A | N/A |
| 2025 | $352,176 | $450,000 | $0 | $802,176 | $802,176 |
| 2024 | $356,735 | $450,000 | $0 | $806,735 | $806,735 |
| 2023 | $361,294 | $450,000 | $0 | $811,294 | $811,294 |
| 2022 | $314,780 | $360,000 | $0 | $674,780 | $674,780 |
| 2021 | $277,319 | $300,000 | $0 | $577,319 | $577,319 |
| 2020 | $270,138 | $220,000 | $0 | $490,138 | $490,138 |
| 2019 | $195,882 | $275,000 | $0 | $470,882 | $470,882 |
| 2018 | $196,499 | $210,000 | $0 | $406,499 | $406,499 |
| 2017 | $197,474 | $150,000 | $0 | $347,474 | $347,474 |
| 2016 | $159,313 | $130,000 | $0 | $289,313 | $289,313 |
| 2015 | $161,764 | $92,800 | $0 | $254,564 | $254,564 |
| 2014 | $164,215 | $92,800 | $0 | $257,015 | $257,015 |
| 2013 | $166,665 | $92,800 | $0 | $259,465 | $259,465 |
| 2012 | $171,445 | $92,800 | $0 | $264,245 | $264,245 |
| 2011 | $173,932 | $116,000 | $0 | $289,932 | $289,932 |
| 2010 | $189,231 | $116,000 | $0 | $305,231 | $305,231 |
| 2009 | $197,460 | $200,000 | $0 | $397,460 | $397,460 |
| 2008 | $199,553 | $200,000 | $0 | $399,553 | $399,553 |
| 2007 | $202,092 | $200,000 | $0 | $402,092 | $402,092 |
Deed and Sales History
| 1 | 02/11/2013 | WD | Warranty Deed | BETHEL, EDWARD L | SARVER, MICHAEL R | | | $260,000.00 | 10531 | 4334556 |
| 2 | 04/20/2011 | | | BETHEL, EDWARD L / JOYCE M | BETHEL, EDWARD L | | | | 82044 | |
| 3 | 07/01/1995 | WD | Warranty Deed | SCHERF, ELMER E | BETHEL, EDWARD L | | | $159,950.00 | 52509 | 95011599 |
| 4 | 06/01/1987 | QCD | Quit Claim Deed | SCHERF, ELMER E | SCHERF, ELMER E | | | $0.00 | 71746 | 87008597 |
| 5 | 01/01/1900 | OTHER | Other - Misc. Documents | Unknown | SCHERF, ELMER E | | | $0.00 | 0 | 0 |
Payout Agreement
| No payout information available.. |