Property
Account |
| Property ID: | 224590 | Abbreviated Legal Description: | CAMANO WEST LOT 33 |
| Geographic ID: | S6285-00-00033-0 | Agent Code: | |
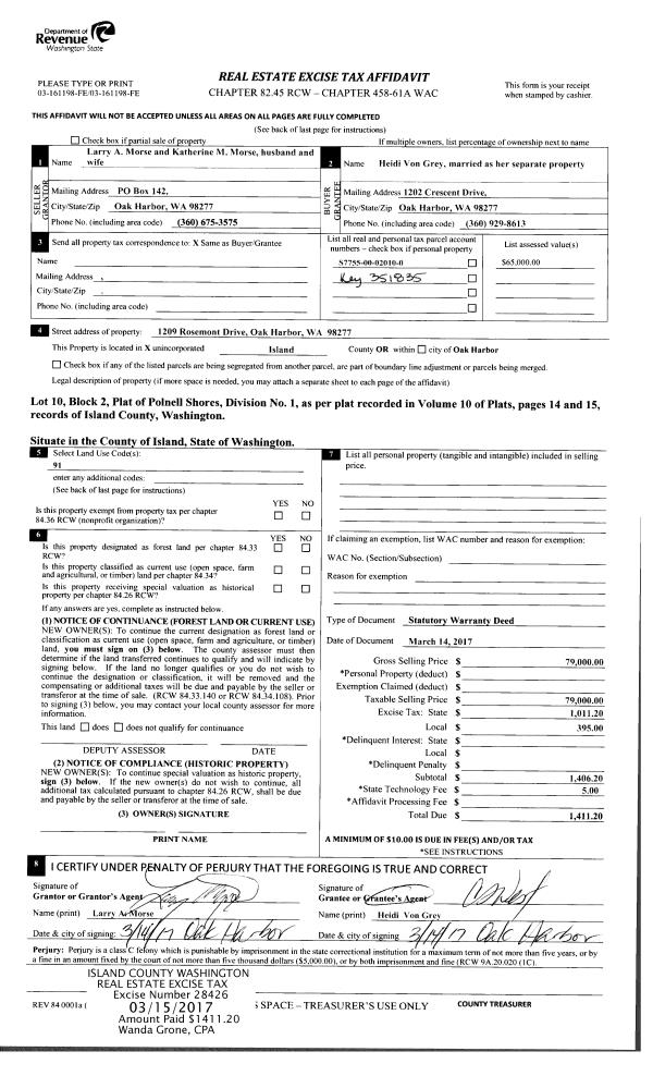
| Type: | Real | | |
| Tax Area: | 510 - APPRAISER-Stan/Cam Schl Dist, improved & 1 acre or less | Land Use Code | 11 |
| Open Space: | N | DFL | N |
| Historic Property: | N | Remodel Property: | N |
| Multi-Family Redevelopment: | N | | |
| Township: | | Section: | |
| Range: | |
Location |
| Address: | 215 BURKE DR CAMANO ISLAND, WA 98282 | Mapsco: | |
| Neighborhood: | North Camano | Map ID: | 574 |
| Neighborhood CD: | 06-C |
Owner |
| Name: | CATON III, WILLIAM D | Owner ID: | 270027 |
| Mailing Address: | ROSEMARY M CATON 215 BURKE DR CAMANO ISLAND, WA 98282 | % Ownership: | 100.0000000000% |
| | | Exemptions: | |
Taxes and Assessment Details
Values
| (+) Improvement Homesite Value: | + | $0 | |
| (+) Improvement Non-Homesite Value: | + | $537,113 | |
| (+) Land Homesite Value: | + | $0 | |
| (+) Land Non-Homesite Value: | + | $360,000 | |
| (+) Curr Use (HS): | + | $0 | $0 |
| (+) Curr Use (NHS): | + | $0 | $0 |
| | | -------------------------- | |
| (=) Market Value: | = | $897,113 | |
| (–) Productivity Loss: | – | $0 | |
| | | -------------------------- | |
| (=) Subtotal: | = | $897,113 | |
| (+) Senior Appraised Value: | + | $0 | |
| (+) Non-Senior Appraised Value: | + | $897,113 | |
| | | -------------------------- | |
| (=) Total Appraised Value: | = | $897,113 | |
| (–) Senior Exemption Loss: | – | $0 | |
| (–) Exemption Loss: | – | $0 | |
| | | -------------------------- | |
| (=) Taxable Value: | = | $897,113 | |
Taxing Jurisdiction
| Owner: | CATON III, WILLIAM D | | |
| % Ownership: | 100.0000000000% | | |
| Total Value: | $897,113 | | |
| Tax Area: | 510 - APPRAISER-Stan/Cam Schl Dist, improved & 1 acre or less |
| CF | Conservation Futures | 0.0316035091 | $897,113 | $897,113 | $28.35 | | |
| EMS1 | Fire & Rescue Dist #1 Camano GEN (EMS) | 0.3677864386 | $897,113 | $897,113 | $329.95 | | |
| FIRE1 | Fire & Rescue Dist #1 Camano GEN | 1.2502910536 | $897,113 | $897,113 | $1,121.65 | | |
| FIRE1BOND | Fire & Rescue Dist #1 Camano BOND | 0.1570001679 | $897,113 | $897,113 | $140.85 | | |
| CE | County Current Expense | 0.3708482477 | $897,113 | $897,113 | $332.69 | | |
| CR | County Roads | 0.4584763726 | $897,113 | $897,113 | $411.31 | | |
| LCIB | Library Sno-Isle BOND (Camano Island) | 0.0396325772 | $897,113 | $897,113 | $35.55 | | |
| LIB | Library Sno-Isle GEN | 0.3153421757 | $897,113 | $897,113 | $282.90 | | |
| SCH205_401 | School 205-401 Enrichment | 1.2698420524 | $897,113 | $897,113 | $1,139.19 | | |
| SCH205BOND | School 205-401 BOND | 0.9396497583 | $897,113 | $897,113 | $842.97 | | |
| ST | State School | 1.3035497053 | $897,113 | $897,113 | $1,169.43 | | |
| ST2 | State School Part 2 | 0.8169543533 | $897,113 | $897,113 | $732.90 | | |
| | Total Tax Rate: | 7.3209764117 | | | | | |
| | | | | Taxes w/Current Exemptions: | $6,567.74 | | |
| | | | | Taxes w/o Exemptions: | $6,567.74 | | |
Improvement / Building
| Improvement #1: | RESIDENTIAL | State Code: | Y | 2616.3 sqft | Value: | $537,113 |
| Bathrooms: | 2.5 | Bedrooms: | 3 | | Ceiling: | DRYWALL PAINTED | Cooling: | HEAT PUMP/CONV/V | | Exterior Wall/Cover: | CEMENT FIBER | Floor Covering: | HARDWOOD/CARP 60-40 | | Floor Structure: | WOOD W/SUBFLOOR | Foundation: | CONCRETE | | Interior Finish: | DRYWALL PAINT | Plumbing Fixture Cnt: | 14 | | Roof Slope: | 4" IN 12" | Roof Structure/Cover: | CJ ASPHALT |
|
| | Type | Description | Class CD | Sub Class CD | Year Built | Area |
| | BAS | BASE/MAIN FLOOR | 4 | 0 | 2014 | 1740.3 |
| | AGR | ATTACHED GARAGE | 4 | 0 | 2014 | 462.0 |
| | DWN | DOWNSTAIRS LIVING AREA | 4 | 0 | 2014 | 876.0 |
| | OWC | OPEN WOOD PORCH W/STEPS/ROOF/C | 4 | 0 | 2014 | 74.0 |
| | OP1 | OPEN PORCH SLAB | 4 | 0 | 2014 | 194.2 |
| | OWP | OPEN WOOD PORCH W/STEPS | 4 | 0 | 2014 | 129.2 |
| | OP4 | OPEN PORCH W/CEILING-ROOF | 4 | 0 | 2014 | 42.0 |
| | OP4 | OPEN PORCH W/CEILING-ROOF | 4 | 0 | 2014 | 132.0 |
Sketch
Property Image
Land
| 1 | 13 | SQ (06001-08000) | 0.0000 | 0.00 | 0.00 | 0.00 | 1.00 | $360,000 | $0 |
Roll Value History
| 2026 | N/A | N/A | N/A | N/A | N/A |
| 2025 | $537,113 | $360,000 | $0 | $897,113 | $897,113 |
| 2024 | $541,481 | $360,000 | $0 | $901,481 | $901,481 |
| 2023 | $545,847 | $360,000 | $0 | $905,847 | $905,847 |
| 2022 | $476,593 | $260,000 | $0 | $736,593 | $736,593 |
| 2021 | $417,831 | $200,000 | $0 | $617,831 | $617,831 |
| 2020 | $405,770 | $180,000 | $0 | $585,770 | $585,770 |
| 2019 | $311,396 | $210,000 | $0 | $521,396 | $521,396 |
| 2018 | $312,214 | $180,000 | $0 | $492,214 | $492,214 |
| 2017 | $313,850 | $130,000 | $0 | $443,850 | $443,850 |
| 2016 | $316,040 | $110,000 | $0 | $426,040 | $426,040 |
| 2015 | $319,298 | $92,800 | $0 | $412,098 | $412,098 |
| 2014 | $57,485 | $83,520 | $0 | $141,005 | $141,005 |
| 2013 | $0 | $83,520 | $0 | $83,520 | $83,520 |
| 2012 | $0 | $83,520 | $0 | $83,520 | $83,520 |
| 2011 | $0 | $104,400 | $0 | $104,400 | $104,400 |
| 2010 | $0 | $104,400 | $0 | $104,400 | $104,400 |
| 2009 | $0 | $150,000 | $0 | $150,000 | $150,000 |
| 2008 | $0 | $270,000 | $0 | $270,000 | $270,000 |
| 2007 | $0 | $270,000 | $0 | $270,000 | $270,000 |
Deed and Sales History
| 1 | 04/21/2015 | WD | Warranty Deed | NW BUILDERS INC | CATON III, WILLIAM D | | | $445,000.00 | 19396 | 4377555 |
| 2 | 02/28/2014 | WD | Warranty Deed | CLYMER, RONALD D | NW BUILDERS INC | | | $76,500.00 | 14606 | 4356693 |
| 3 | 03/01/1979 | OTHER | Other - Misc. Documents | Unknown | CLYMER, RONALD D | | | $8,500.00 | 91152 | 349119 |
Payout Agreement
| No payout information available.. |