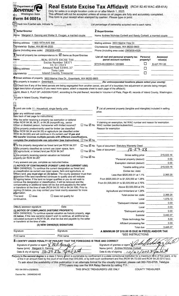
Property
Account |
| Property ID: | 224698 | Abbreviated Legal Description: | CAMANO WEST LOT 43 |
| Geographic ID: | S6285-00-00043-0 | Agent Code: | |
| Type: | Real | | |
| Tax Area: | 510 - APPRAISER-Stan/Cam Schl Dist, improved & 1 acre or less | Land Use Code | 11 |
| Open Space: | N | DFL | N |
| Historic Property: | N | Remodel Property: | N |
| Multi-Family Redevelopment: | N | | |
| Township: | | Section: | |
| Range: | |
Location |
| Address: | 244 HENNING DR CAMANO ISLAND, WA 98282 | Mapsco: | |
| Neighborhood: | North Camano | Map ID: | 574 |
| Neighborhood CD: | 06-C |
Owner |
| Name: | RUSSELL, WALTER J | Owner ID: | 257643 |
| Mailing Address: | SUSAN J RUSSELL 244 HENNING DR CAMANO ISLAND, WA 98282 | % Ownership: | 100.0000000000% |
| | | Exemptions: | |
Taxes and Assessment Details
Values
| (+) Improvement Homesite Value: | + | $0 | |
| (+) Improvement Non-Homesite Value: | + | $443,002 | |
| (+) Land Homesite Value: | + | $0 | |
| (+) Land Non-Homesite Value: | + | $360,000 | |
| (+) Curr Use (HS): | + | $0 | $0 |
| (+) Curr Use (NHS): | + | $0 | $0 |
| | | -------------------------- | |
| (=) Market Value: | = | $803,002 | |
| (–) Productivity Loss: | – | $0 | |
| | | -------------------------- | |
| (=) Subtotal: | = | $803,002 | |
| (+) Senior Appraised Value: | + | $0 | |
| (+) Non-Senior Appraised Value: | + | $803,002 | |
| | | -------------------------- | |
| (=) Total Appraised Value: | = | $803,002 | |
| (–) Senior Exemption Loss: | – | $0 | |
| (–) Exemption Loss: | – | $0 | |
| | | -------------------------- | |
| (=) Taxable Value: | = | $803,002 | |
Taxing Jurisdiction
| Owner: | RUSSELL, WALTER J | | |
| % Ownership: | 100.0000000000% | | |
| Total Value: | $803,002 | | |
| Tax Area: | 510 - APPRAISER-Stan/Cam Schl Dist, improved & 1 acre or less |
| CF | Conservation Futures | 0.0316035091 | $803,002 | $803,002 | $25.38 | | |
| EMS1 | Fire & Rescue Dist #1 Camano GEN (EMS) | 0.3677864386 | $803,002 | $803,002 | $295.33 | | |
| FIRE1 | Fire & Rescue Dist #1 Camano GEN | 1.2502910536 | $803,002 | $803,002 | $1,003.99 | | |
| FIRE1BOND | Fire & Rescue Dist #1 Camano BOND | 0.1570001679 | $803,002 | $803,002 | $126.07 | | |
| CE | County Current Expense | 0.3708482477 | $803,002 | $803,002 | $297.79 | | |
| CR | County Roads | 0.4584763726 | $803,002 | $803,002 | $368.16 | | |
| LCIB | Library Sno-Isle BOND (Camano Island) | 0.0396325772 | $803,002 | $803,002 | $31.83 | | |
| LIB | Library Sno-Isle GEN | 0.3153421757 | $803,002 | $803,002 | $253.22 | | |
| SCH205_401 | School 205-401 Enrichment | 1.2698420524 | $803,002 | $803,002 | $1,019.69 | | |
| SCH205BOND | School 205-401 BOND | 0.9396497583 | $803,002 | $803,002 | $754.54 | | |
| ST | State School | 1.3035497053 | $803,002 | $803,002 | $1,046.75 | | |
| ST2 | State School Part 2 | 0.8169543533 | $803,002 | $803,002 | $656.02 | | |
| | Total Tax Rate: | 7.3209764117 | | | | | |
| | | | | Taxes w/Current Exemptions: | $5,878.77 | | |
| | | | | Taxes w/o Exemptions: | $5,878.77 | | |
Improvement / Building
| Improvement #1: | RESIDENTIAL | State Code: | Y | 2502.0 sqft | Value: | $443,002 |
| Bathrooms: | 3 | Bedrooms: | 3 | | Ceiling: | DRYWALL PAINTED | Cooling: | HEAT PUMP/CONV/V | | Exterior Wall/Cover: | CEMENT FIBER | Floor Covering: | CERAMIC TILE/HWD 40/60 | | Floor Structure: | WOOD W/SUBFLOOR | Foundation: | CONCRETE | | Interior Finish: | DRYWALL PAINT | Plumbing Fixture Cnt: | 12 | | Roof Slope: | 4" IN 12" | Roof Structure/Cover: | CJ ASPHALT |
|
| | Type | Description | Class CD | Sub Class CD | Year Built | Area |
| | BAS | BASE/MAIN FLOOR | 3 | 0 | 2013 | 1530.0 |
| | DWN | DOWNSTAIRS LIVING AREA | 3 | 0 | 2013 | 972.0 |
| | AGR | ATTACHED GARAGE | 3 | 0 | 2013 | 520.0 |
| | UB8 | BASEMENT UNFINISHED 8" | 3 | 0 | 2013 | 540.0 |
| | OWP | OPEN WOOD PORCH W/STEPS | 3 | 0 | 2013 | 459.4 |
Sketch
Property Image
Land
| 1 | 14 | SQ (08001-12000) | 0.0000 | 0.00 | 0.00 | 0.00 | 1.00 | $360,000 | $0 |
Roll Value History
| 2026 | N/A | N/A | N/A | N/A | N/A |
| 2025 | $443,002 | $360,000 | $0 | $803,002 | $803,002 |
| 2024 | $446,603 | $360,000 | $0 | $806,603 | $806,603 |
| 2023 | $450,204 | $360,000 | $0 | $810,204 | $810,204 |
| 2022 | $387,247 | $260,000 | $0 | $647,247 | $647,247 |
| 2021 | $339,327 | $200,000 | $0 | $539,327 | $539,327 |
| 2020 | $329,997 | $180,000 | $0 | $509,997 | $509,997 |
| 2019 | $259,258 | $210,000 | $0 | $469,258 | $469,258 |
| 2018 | $259,946 | $180,000 | $0 | $439,946 | $439,946 |
| 2017 | $261,321 | $130,000 | $0 | $391,321 | $391,321 |
| 2016 | $246,292 | $130,000 | $0 | $376,292 | $376,292 |
| 2015 | $248,859 | $92,800 | $0 | $341,659 | $341,659 |
| 2014 | $251,424 | $92,800 | $0 | $344,224 | $344,224 |
| 2013 | $123,428 | $83,520 | $0 | $206,948 | $206,948 |
| 2012 | $0 | $83,520 | $0 | $83,520 | $83,520 |
| 2011 | $0 | $104,400 | $0 | $104,400 | $104,400 |
| 2010 | $0 | $104,400 | $0 | $104,400 | $104,400 |
| 2009 | $0 | $150,000 | $0 | $150,000 | $150,000 |
| 2008 | $0 | $250,000 | $0 | $250,000 | $250,000 |
| 2007 | $0 | $270,000 | $0 | $270,000 | $270,000 |
Deed and Sales History
| 1 | 05/09/2012 | WD | Warranty Deed | SCHWARZENBACH, MARIAN C | RUSSELL, WALTER J | | | $80,000.00 | 7657 | 4315374 |
| 2 | 08/26/2003 | WD | Warranty Deed | BLIGHT, STEVEN K | SCHWARZENBACH, MARIAN C | | | $89,000.00 | 33799 | 4072880 |
| 3 | 09/01/1989 | WD | Warranty Deed | STRUBLE, CHARLES C | BLIGHT, STEVEN K | | | $16,500.00 | 94251 | 89013962 |
| 4 | 01/01/1900 | OTHER | Other - Misc. Documents | Unknown | STRUBLE, CHARLES C | | | $0.00 | 0 | 0 |
Payout Agreement
| No payout information available.. |